Информационная система
«Ёшкин Кот»

Скачать базу одним архивом
Скачать обновления
История создания базы
Карта сайта

Скачать Шифр М8.10/2007 Комплектные системы КНАУФ. Внутренние стены из гипсовых пазогребневых плит для жилых, общественных и производственных зданий. Материалы для проектирования и рабочие чертежи узлов

Дата актуализации: 10.08.2017

Шифр М8.10/2007

Комплектные системы КНАУФ. Внутренние стены из гипсовых пазогребневых плит для жилых, общественных и производственных зданий. Материалы для проектирования и рабочие чертежи узлов

Обозначение: Шифр М8.10/2007
Обозначение англ: М8.10/2007
Статус:не определен законодательством
Название рус.:Комплектные системы КНАУФ. Внутренние стены из гипсовых пазогребневых плит для жилых, общественных и производственных зданий. Материалы для проектирования и рабочие чертежи узлов
Дата добавления в базу:01.09.2013
Дата актуализации:05.05.2017
Дата введения:01.01.2007
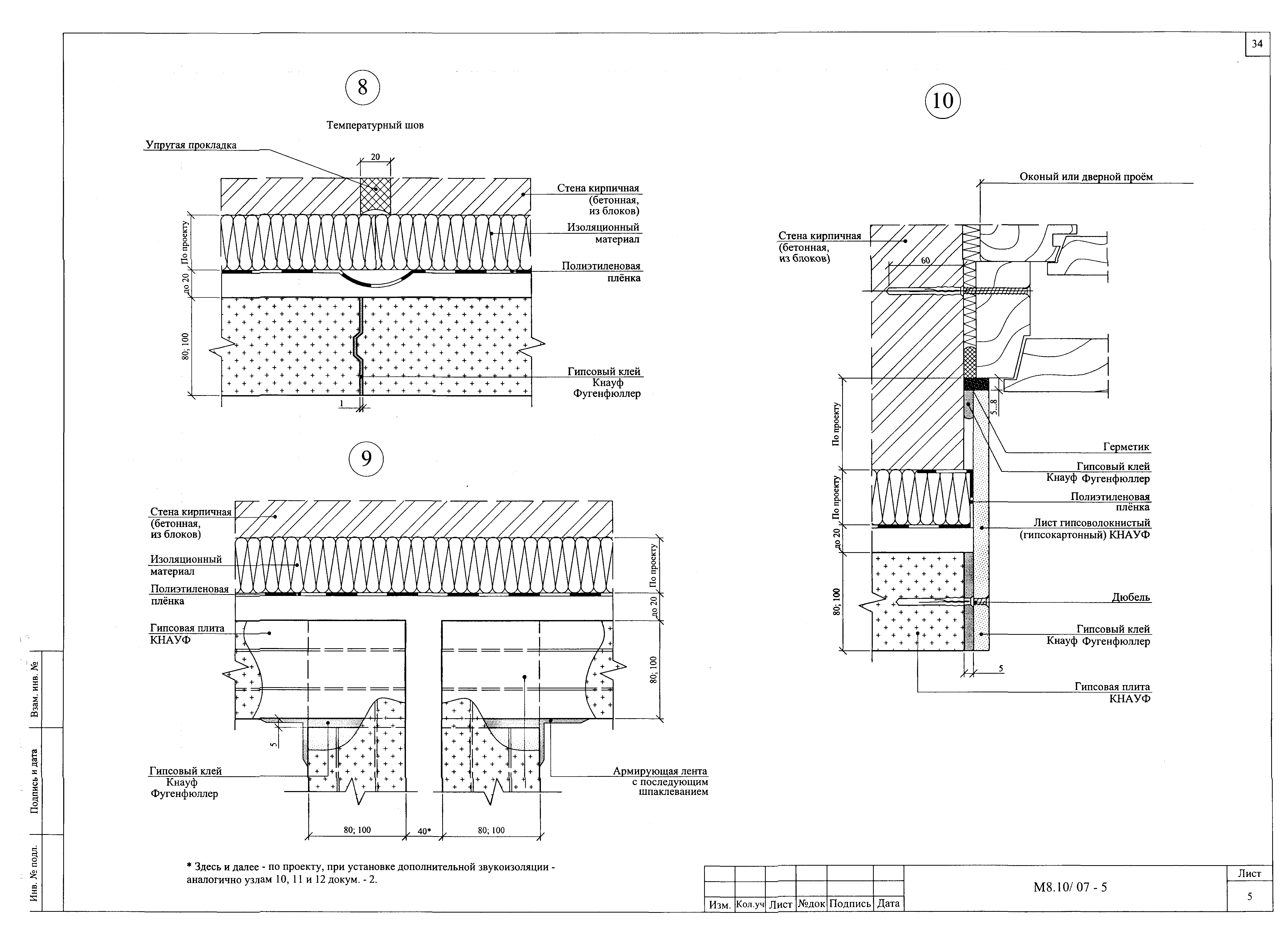
Область применения:Альбом включает материалы для проектирования и рабочие чертежи узлов конструкций из гипсовых пазогребневых плит толщиной 80 и 100 мм для перегородок и облицовок внутренних стен зданий различного назначения. Конструкции предназначены для помещений в зданиях со стенами из различных материалов с сухим, нормальным и влажным режимами по СНиП 23-02-2003 "Тепловая защита зданий"
Разработан: ОАО ЦНИИпромзданий
Утверждён:01.01.2007 ОАО ЦНИИпромзданий (TsNIIpromzdaniy OAO )
Расположен в:Техническая документация Строительство Справочные документы Типовые строительные конструкции, изделия и узлы Разработанные другими министерствами, ведомствами и организациями
Заменяет собой:
Нормативные ссылки:
Шифр М8.10/2007Шифр М8.10/2007Шифр М8.10/2007Шифр М8.10/2007Шифр М8.10/2007Шифр М8.10/2007Шифр М8.10/2007Шифр М8.10/2007Шифр М8.10/2007Шифр М8.10/2007Шифр М8.10/2007Шифр М8.10/2007Шифр М8.10/2007Шифр М8.10/2007Шифр М8.10/2007Шифр М8.10/2007Шифр М8.10/2007Шифр М8.10/2007Шифр М8.10/2007Шифр М8.10/2007Шифр М8.10/2007Шифр М8.10/2007Шифр М8.10/2007Шифр М8.10/2007Шифр М8.10/2007Шифр М8.10/2007Шифр М8.10/2007Шифр М8.10/2007Шифр М8.10/2007Шифр М8.10/2007Шифр М8.10/2007Шифр М8.10/2007Шифр М8.10/2007Шифр М8.10/2007Шифр М8.10/2007Шифр М8.10/2007Шифр М8.10/2007Шифр М8.10/2007Шифр М8.10/2007Шифр М8.10/2007Шифр М8.10/2007Шифр М8.10/2007Шифр М8.10/2007Шифр М8.10/2007

© 2013 Ёшкин Кот :-) Карта сайта