Информационная система
«Ёшкин Кот»

Скачать базу одним архивом
Скачать обновления
История создания базы
Карта сайта

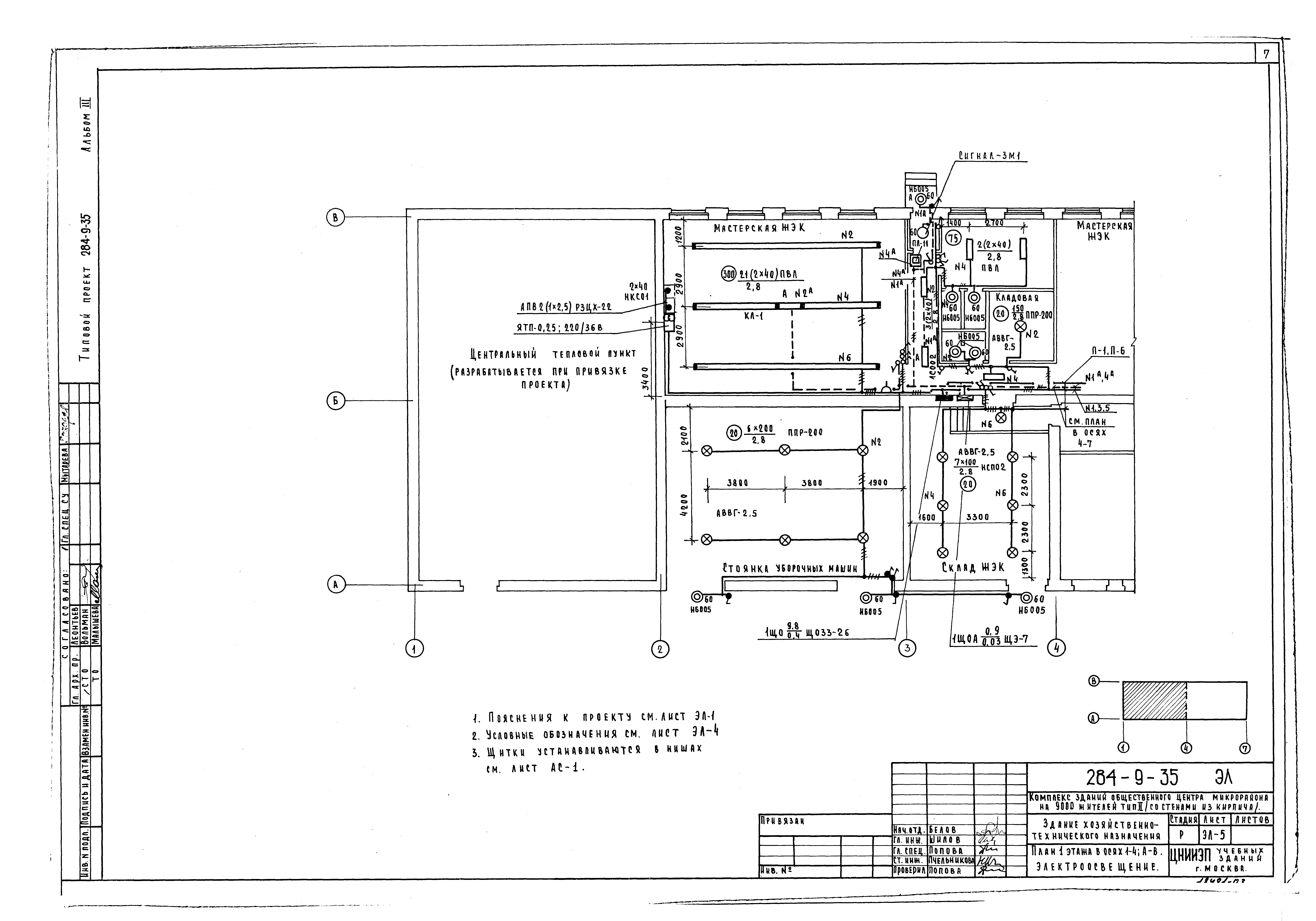
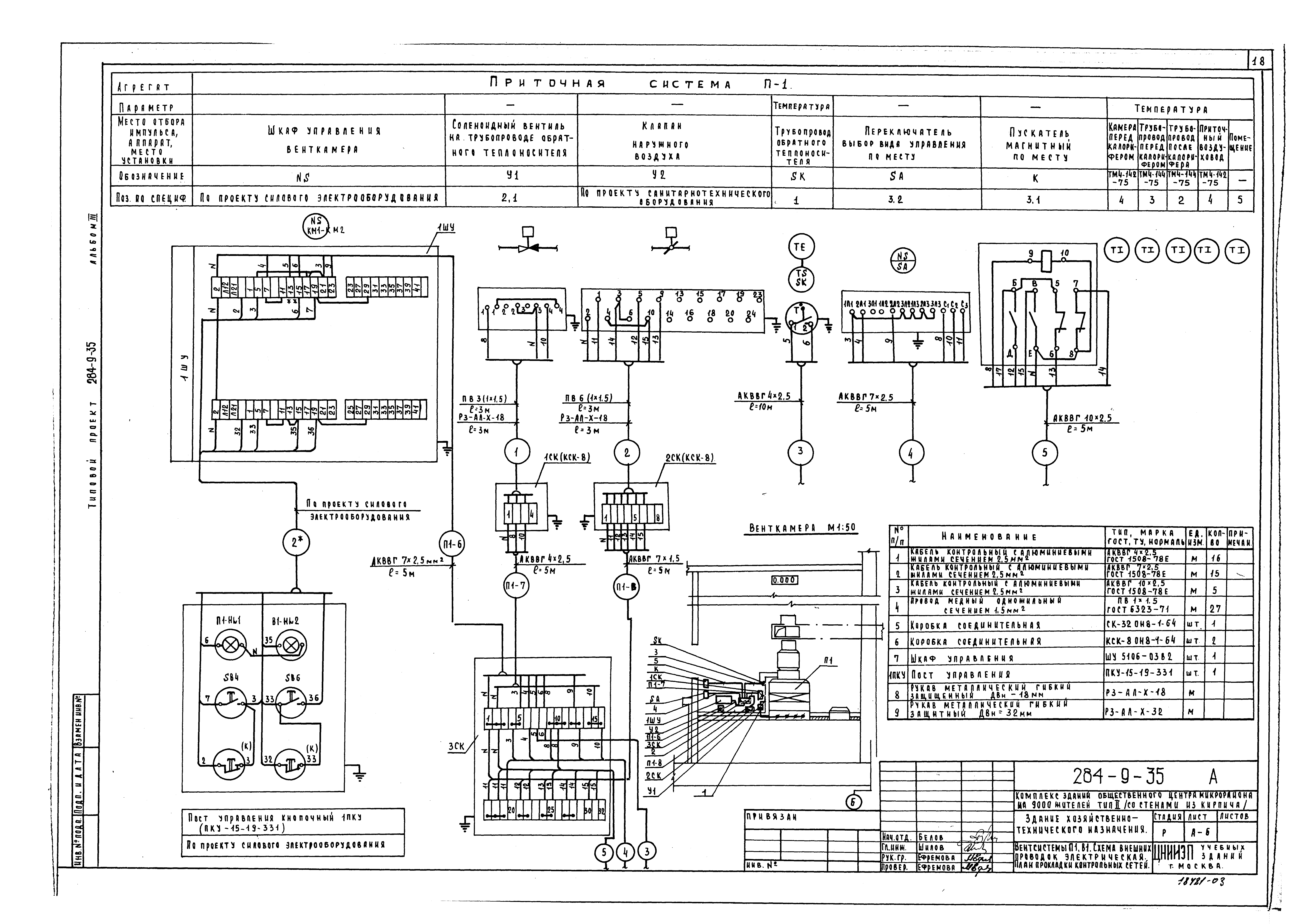
Скачать Типовой проект 284-9-35 Альбом III. Электротехнические чертежи

Дата актуализации: 10.08.2017

Типовой проект 284-9-35

Альбом III. Электротехнические чертежи

Обозначение: Типовой проект 284-9-35
Обозначение англ: 284-9-35
Статус:не определен законодательством
Название рус.:Альбом III. Электротехнические чертежи
Дата добавления в базу:01.09.2013
Дата актуализации:05.05.2017
Дата введения:28.01.1983
Разработан: ЦНИИЭП учебных зданий Госгражданстроя
Утверждён:19.10.1978 Госгражданстрой (Gosgrazhdanstroy 221)
Расположен в:Техническая документация Строительство Справочные документы Типовые строительные конструкции, изделия и узлы Общероссийский строительный каталог Общественные здания в городах и поселках городского типа Предприятия торговли и общественного питания. Общественные центры Кооперированные здания предприятий торговли, общественного питания и бытового обслуживания Торговые центры
Типовой проект 284-9-35Типовой проект 284-9-35Типовой проект 284-9-35Типовой проект 284-9-35Типовой проект 284-9-35Типовой проект 284-9-35Типовой проект 284-9-35Типовой проект 284-9-35Типовой проект 284-9-35Типовой проект 284-9-35Типовой проект 284-9-35Типовой проект 284-9-35Типовой проект 284-9-35Типовой проект 284-9-35Типовой проект 284-9-35Типовой проект 284-9-35Типовой проект 284-9-35Типовой проект 284-9-35Типовой проект 284-9-35Типовой проект 284-9-35Типовой проект 284-9-35Типовой проект 284-9-35Типовой проект 284-9-35

© 2013 Ёшкин Кот :-) Карта сайта