Информационная система
«Ёшкин Кот»

Скачать базу одним архивом
Скачать обновления
История создания базы
Карта сайта

Скачать Типовой проект 902-3-73.3.87 Альбом IV. Строительная часть (сооружения из кирпича)

Дата актуализации: 10.08.2017

Типовой проект 902-3-73.3.87

Альбом IV. Строительная часть (сооружения из кирпича)

Обозначение: Типовой проект 902-3-73.3.87
Обозначение англ: 902-3-73.3.87
Статус:не определен законодательством
Название рус.:Альбом IV. Строительная часть (сооружения из кирпича)
Дата добавления в базу:01.09.2013
Дата актуализации:05.05.2017
Дата введения:30.10.1987
Оглавление:Содержание альбома
Общие данные
Септики СПК-1, СПК-2 прямоугольные из кирпича
Септик СПК-3 прямоугольный из кирпича
Септики СПК-4, СПК-5 прямоугольные из кирпича. Разрезы 1-1; 2-2
Септики СПК-4, СПК-5. Разрезы 3-3; 4-4
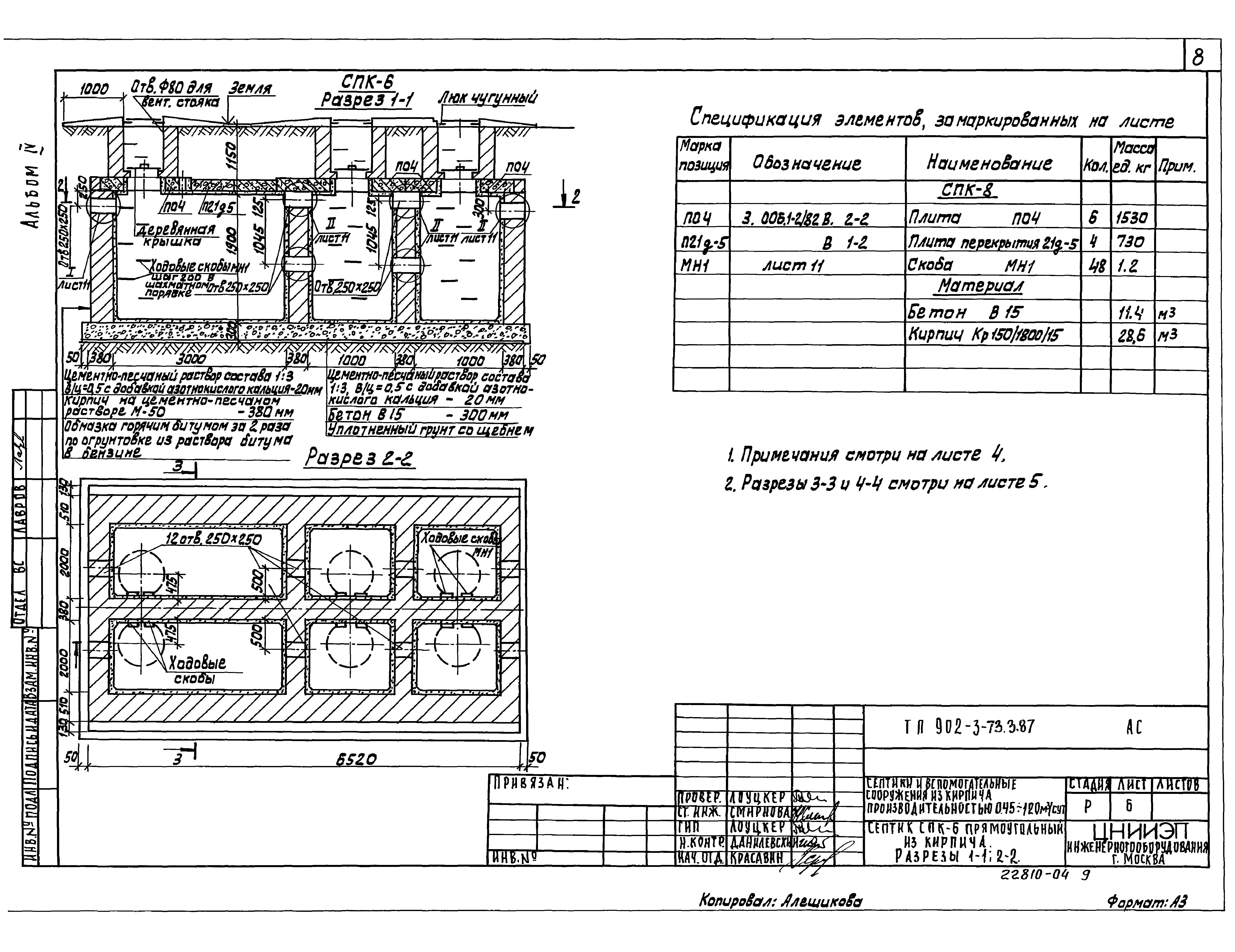
Септик СПК-6 прямоугольный из кирпича. Разрезы 1-1; 2-2
Раскладка плит покрытия септиков СПК-1 - СПК-6
Колодцы распределительные КРКК-1, КРКК-2. Разрезы 1-1 - 3-3
Колодцы собирающие КСКК-1, КСКК-2. Разрезы 1-1, 2-2
Распределительные лотки из кирпича и бетона. Плита перекрытия лотков ПМ-1
Горловина. Деревянная крышка. Детали заделки труб
Разработан: ЦНИИЭП иженерного оборудования
Утверждён:30.10.1987 Госгражданстрой (Gosgrazhdanstroy 333)
Расположен в:Техническая документация Строительство Справочные документы Типовые строительные конструкции, изделия и узлы Общероссийский строительный каталог Промышленные предприятия, здания и сооружения Здания и сооружения санитарно-технические Канализация Сооружения биологической (биохимической) очистки Септики
Типовой проект 902-3-73.3.87Типовой проект 902-3-73.3.87Типовой проект 902-3-73.3.87Типовой проект 902-3-73.3.87Типовой проект 902-3-73.3.87Типовой проект 902-3-73.3.87Типовой проект 902-3-73.3.87Типовой проект 902-3-73.3.87Типовой проект 902-3-73.3.87Типовой проект 902-3-73.3.87Типовой проект 902-3-73.3.87Типовой проект 902-3-73.3.87Типовой проект 902-3-73.3.87Типовой проект 902-3-73.3.87

© 2013 Ёшкин Кот :-) Карта сайта