Информационная система
«Ёшкин Кот»

Скачать базу одним архивом
Скачать обновления
История создания базы
Карта сайта

Скачать Шифр 25.0016 Железобетонные опоры ВЛ 6 - 10 кВ с защищенными проводами с подвесными изоляторами

Дата актуализации: 10.08.2017

Шифр 25.0016

Железобетонные опоры ВЛ 6 - 10 кВ с защищенными проводами с подвесными изоляторами

Обозначение: Шифр 25.0016
Обозначение англ: 25.0016
Статус:не определен законодательством
Название рус.:Железобетонные опоры ВЛ 6 - 10 кВ с защищенными проводами с подвесными изоляторами
Дата добавления в базу:01.09.2013
Дата актуализации:05.05.2017
Дата введения:01.01.2005
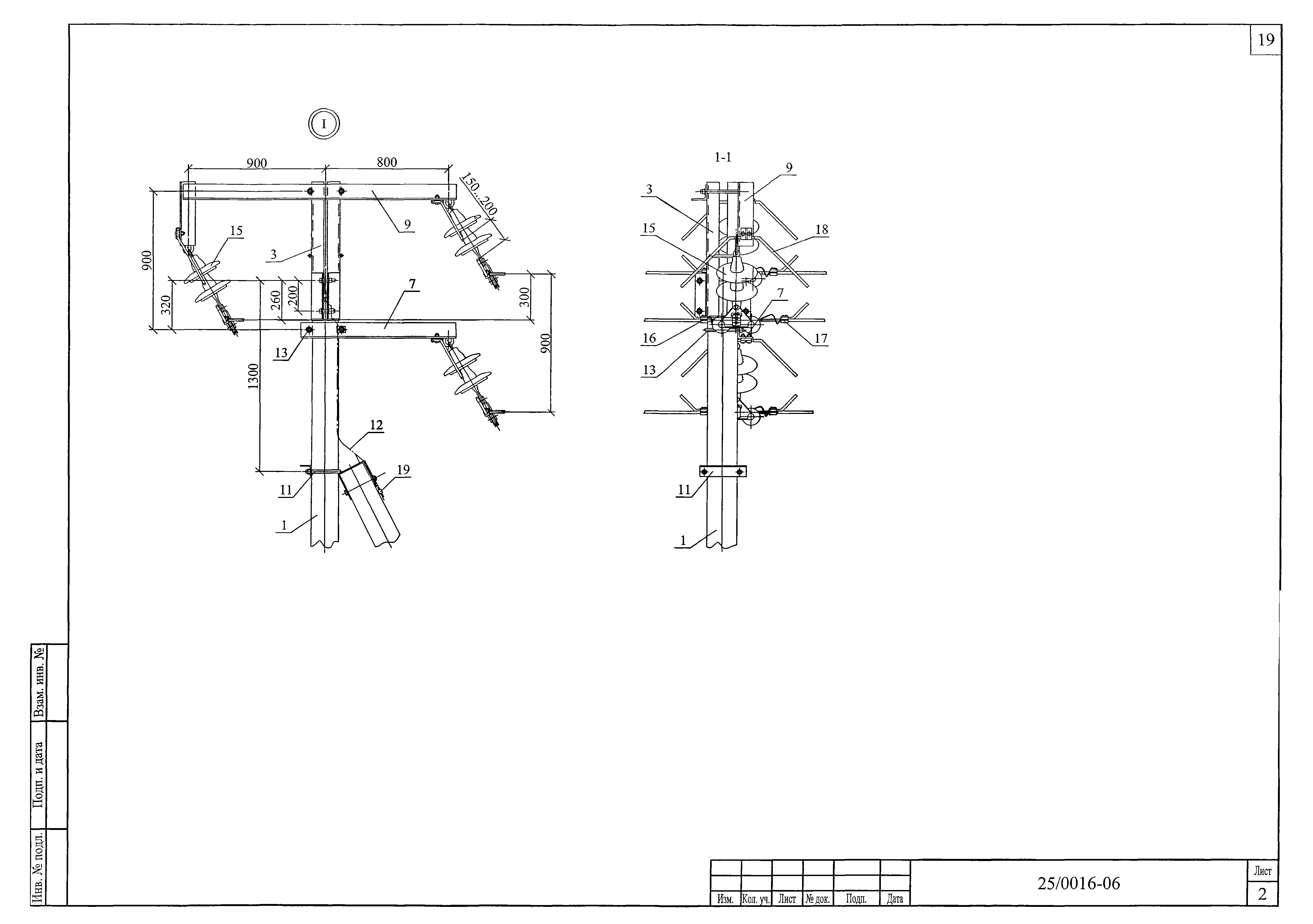
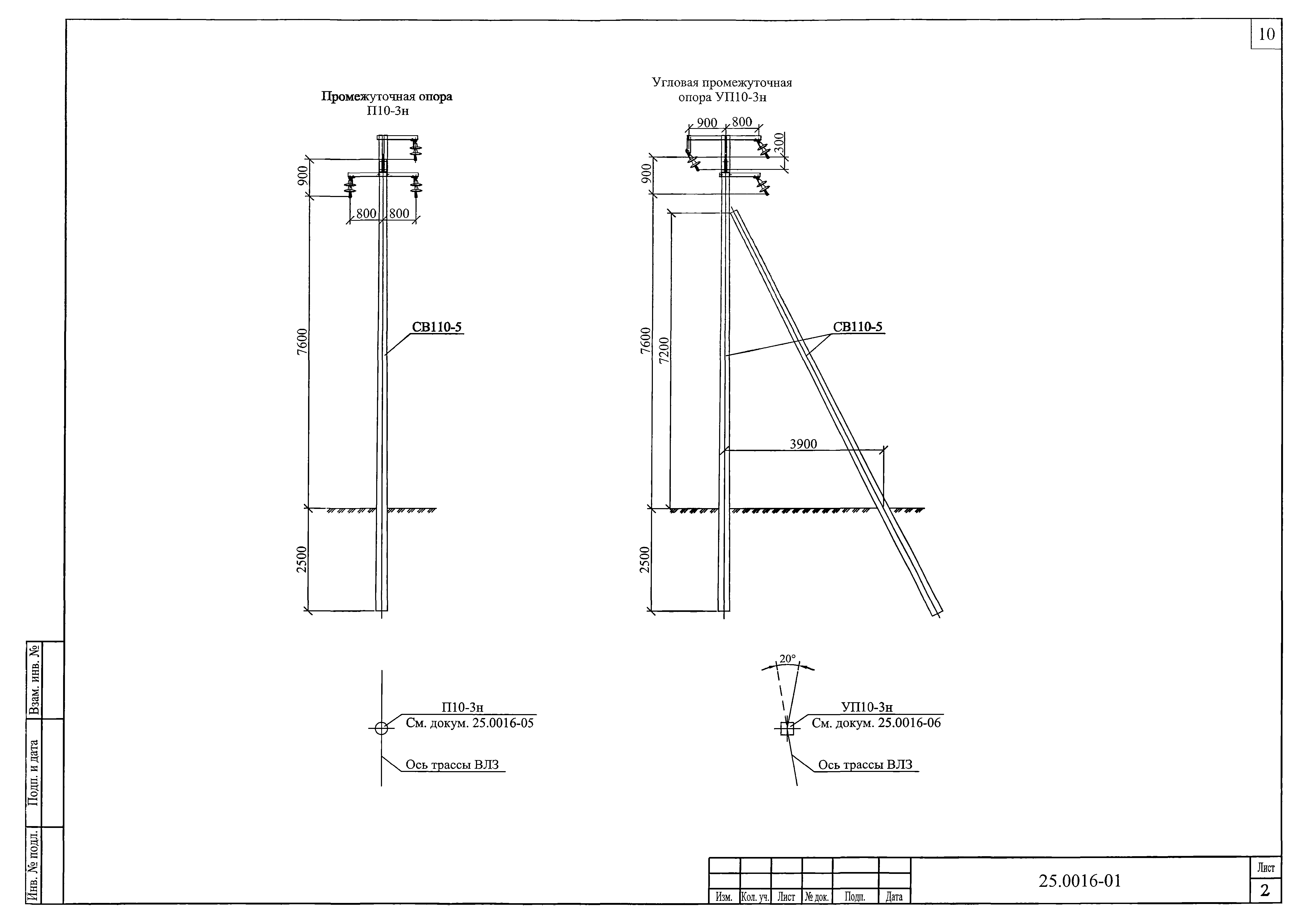
Область применения:В составе данного проекта разработаны одноцепные промежуточные опоры П10-1н и П10-3н и угловые промежуточные опоры УП10-1н и УП10-3н на базе железобетонных стоек СВ105-5 и СВ110-5. Опоры разработаны для применения в ненаселенной и населенной местностях
Разработан: ОАО РОСЭП
Утверждён:01.01.2005 ОАО РАО ЕЭС России (UES of Russia RAO OAO )
Расположен в:Техническая документация Строительство Справочные документы Типовые строительные конструкции, изделия и узлы Разработанные другими министерствами, ведомствами и организациями
Шифр 25.0016Шифр 25.0016Шифр 25.0016Шифр 25.0016Шифр 25.0016Шифр 25.0016Шифр 25.0016Шифр 25.0016Шифр 25.0016Шифр 25.0016Шифр 25.0016Шифр 25.0016Шифр 25.0016Шифр 25.0016Шифр 25.0016Шифр 25.0016Шифр 25.0016Шифр 25.0016Шифр 25.0016Шифр 25.0016Шифр 25.0016Шифр 25.0016Шифр 25.0016Шифр 25.0016Шифр 25.0016Шифр 25.0016Шифр 25.0016Шифр 25.0016Шифр 25.0016Шифр 25.0016

© 2013 Ёшкин Кот :-) Карта сайта