Информационная система
«Ёшкин Кот»

Скачать базу одним архивом
Скачать обновления
История создания базы
Карта сайта

Скачать Серия 5.905-27.08 Выпуск 1. Рабочие чертежи

Дата актуализации: 10.08.2017

Серия 5.905-27.08

Выпуск 1. Рабочие чертежи

Обозначение: Серия 5.905-27.08
Обозначение англ: Series 5.905-27.08
Статус:не определен законодательством
Название рус.:Выпуск 1. Рабочие чертежи
Дата добавления в базу:01.09.2013
Дата актуализации:05.05.2017
Дата введения:25.01.2008
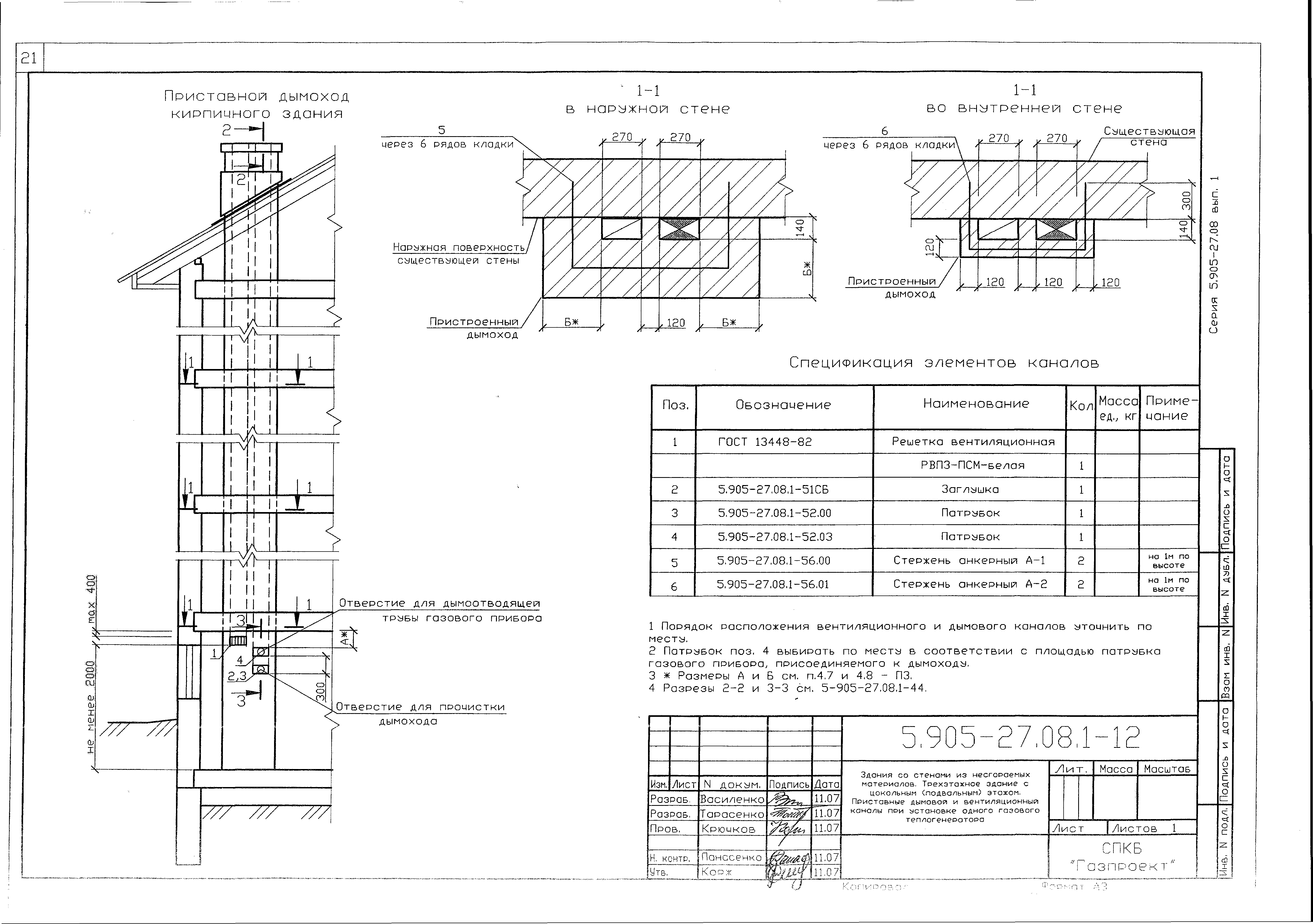
Область применения:Рабочие чертежи настоящей типовой документации применяются при проектировании, строительстве и эксплуатации дымовых и вентиляционных каналов газифицируемых помещений, зданий и сооружений (дома жилые, жилые зданий, общественные здания и сооружения, производственные зданий, административные и бытовые здания) при установке бытовых теплогенераторов, при сейсмичности не более 9 баллов, для районов с расчетной температурой наружного воздуха не ниже минус 40 градусов Цельсия
Разработан: ОАО СПКБ Газпроект -БТЦ
Утверждён:21.01.2008 ОАО Росгазификация (Rosgazifikatsiya OAO 1)
Расположен в:Техническая документация Экология СТРОИТЕЛЬНЫЕ МАТЕРИАЛЫ И СТРОИТЕЛЬСТВО Установки в зданиях Вентиляционные системы и системы кондиционирования воздуха Строительство Справочные документы Типовые строительные конструкции, изделия и узлы Общероссийский строительный каталог Строительные конструкции, изделия и узлы зданий и сооружений для всех видов строительства Инженерное оборудование Инженерное оборудование; изделия и узлы инженерного оборудования зданий и сооружений Установки газоснабжения
Заменяет собой:
Серия 5.905-27.08Серия 5.905-27.08Серия 5.905-27.08Серия 5.905-27.08Серия 5.905-27.08Серия 5.905-27.08Серия 5.905-27.08Серия 5.905-27.08Серия 5.905-27.08Серия 5.905-27.08Серия 5.905-27.08Серия 5.905-27.08Серия 5.905-27.08Серия 5.905-27.08Серия 5.905-27.08Серия 5.905-27.08Серия 5.905-27.08Серия 5.905-27.08Серия 5.905-27.08Серия 5.905-27.08Серия 5.905-27.08Серия 5.905-27.08Серия 5.905-27.08Серия 5.905-27.08Серия 5.905-27.08Серия 5.905-27.08Серия 5.905-27.08Серия 5.905-27.08Серия 5.905-27.08Серия 5.905-27.08Серия 5.905-27.08Серия 5.905-27.08Серия 5.905-27.08Серия 5.905-27.08Серия 5.905-27.08Серия 5.905-27.08Серия 5.905-27.08Серия 5.905-27.08Серия 5.905-27.08Серия 5.905-27.08Серия 5.905-27.08Серия 5.905-27.08Серия 5.905-27.08Серия 5.905-27.08Серия 5.905-27.08Серия 5.905-27.08Серия 5.905-27.08Серия 5.905-27.08Серия 5.905-27.08Серия 5.905-27.08Серия 5.905-27.08Серия 5.905-27.08Серия 5.905-27.08Серия 5.905-27.08Серия 5.905-27.08Серия 5.905-27.08Серия 5.905-27.08Серия 5.905-27.08Серия 5.905-27.08Серия 5.905-27.08Серия 5.905-27.08Серия 5.905-27.08Серия 5.905-27.08Серия 5.905-27.08Серия 5.905-27.08Серия 5.905-27.08

© 2013 Ёшкин Кот :-) Карта сайта