Скачать ОТП-26.0013 Пункт автоматического секционирования, пункт автоматического ввода резервного питания, пункт отключения ответвления воздушных и воздушно-кабельных линий 10 (6) кВ на базе реклоузера РВА/TEL-10-12,5/630Дата актуализации: 10.08.2017 ОТП-26.0013
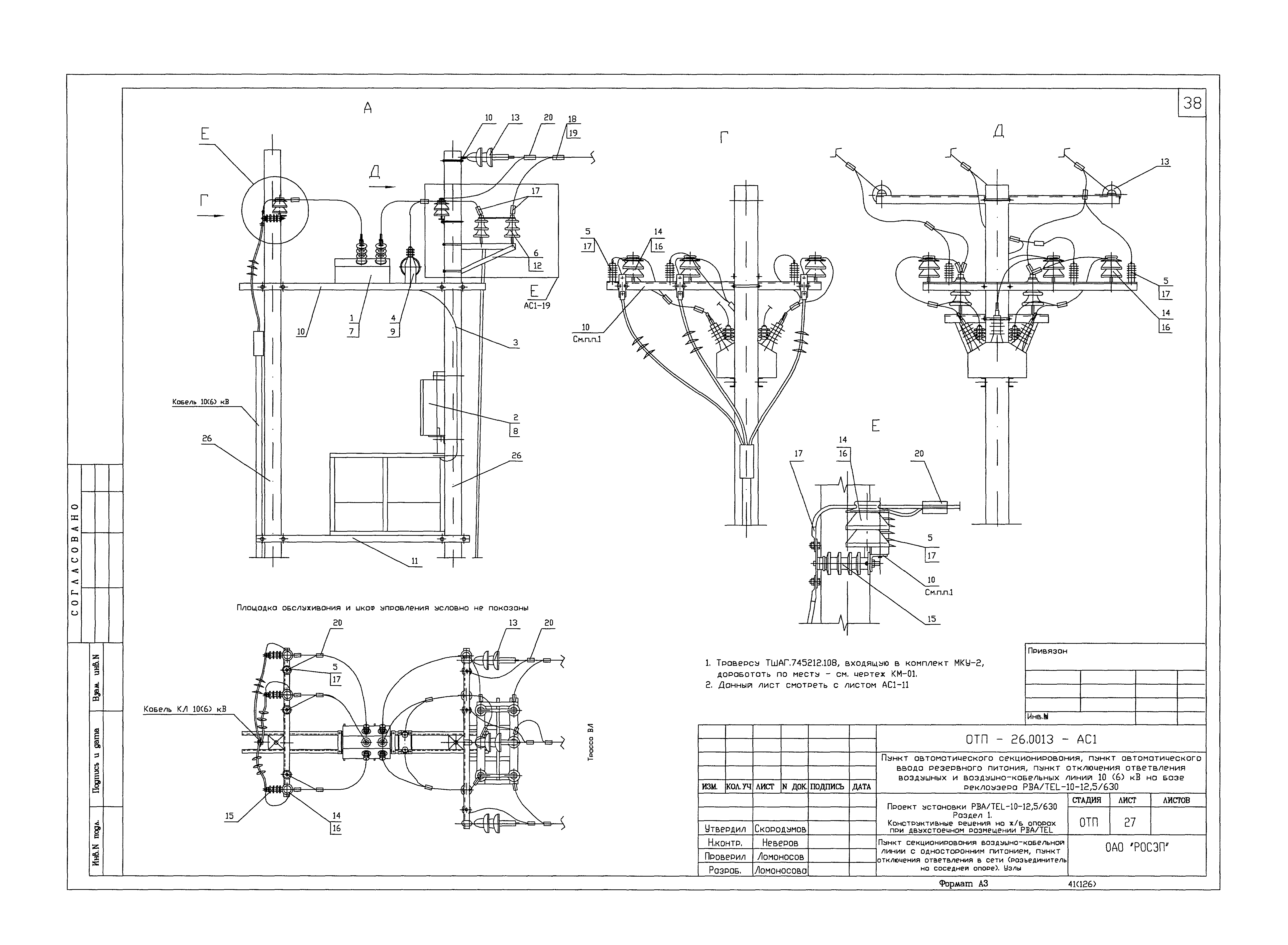
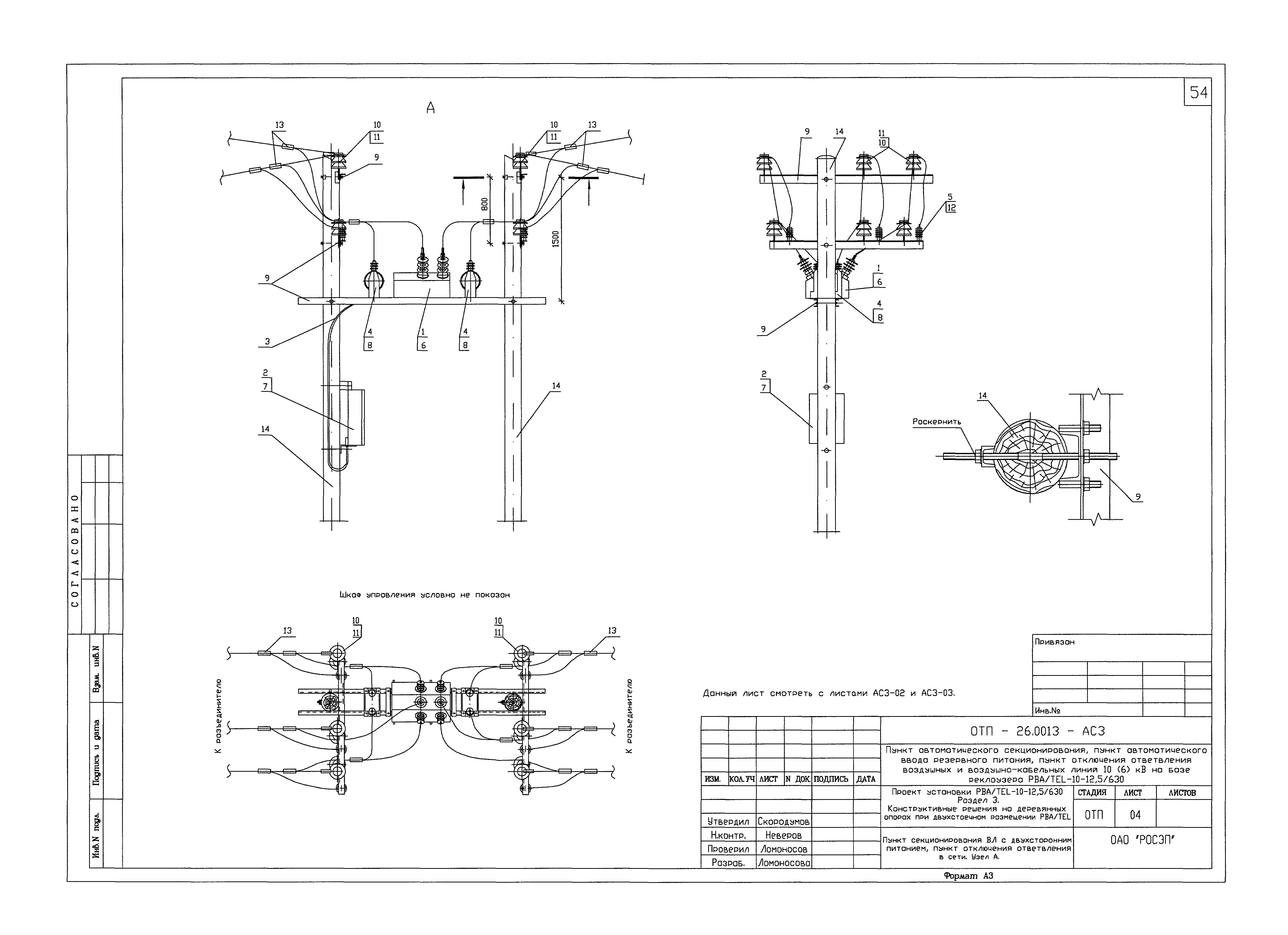
Пункт автоматического секционирования, пункт автоматического ввода резервного питания, пункт отключения ответвления воздушных и воздушно-кабельных линий 10 (6) кВ на базе реклоузера РВА/TEL-10-12,5/630Обозначение: | ОТП-26.0013 | Обозначение англ: | ОТП-26.0013 | Статус: | не определен законодательством | Название рус.: | Пункт автоматического секционирования, пункт автоматического ввода резервного питания, пункт отключения ответвления воздушных и воздушно-кабельных линий 10 (6) кВ на базе реклоузера РВА/TEL-10-12,5/630 | Дата добавления в базу: | 01.09.2013 | Дата актуализации: | 05.05.2017 | Дата введения: | 10.10.2005 | Разработан: | ОАО РОСЭП
| Расположен в: |
|
                                                                    
|