Скачать Серия Выпуск 0. Материалы для проектирования. Элементы и конструкция проезжей части мостового полотна. Узлы. Рабочая документацияДата актуализации: 10.08.2017 Серия
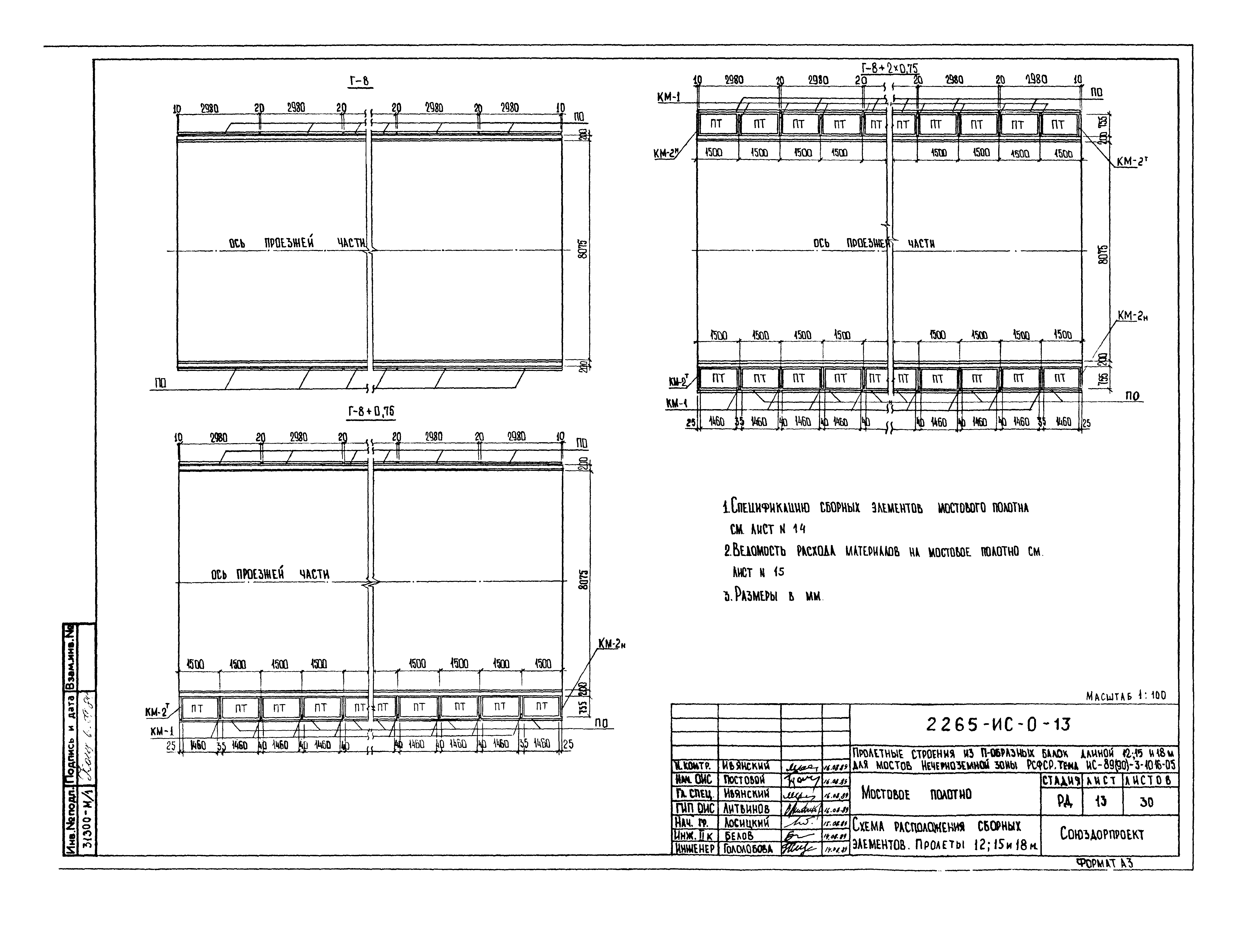
Выпуск 0. Материалы для проектирования. Элементы и конструкция проезжей части мостового полотна. Узлы. Рабочая документацияОбозначение: | Серия | Обозначение англ: | Series | Статус: | не определен законодательством | Название рус.: | Выпуск 0. Материалы для проектирования. Элементы и конструкция проезжей части мостового полотна. Узлы. Рабочая документация | Дата добавления в базу: | 01.09.2013 | Дата актуализации: | 05.05.2017 | Дата введения: | 15.08.1989 | Разработан: | ГПИ Союздорпроект
| Утверждён: | 15.08.1989 ГПИ Союздорпроект (Soyuzdorproject GPI )
| Расположен в: |
|
                              
|