Информационная система
«Ёшкин Кот»

Скачать базу одним архивом
Скачать обновления
История создания базы
Карта сайта

Скачать Серия 2.250-1 Выпуск 3. Лестницы каркасно-панельных зданий

Дата актуализации: 10.08.2017

Серия 2.250-1

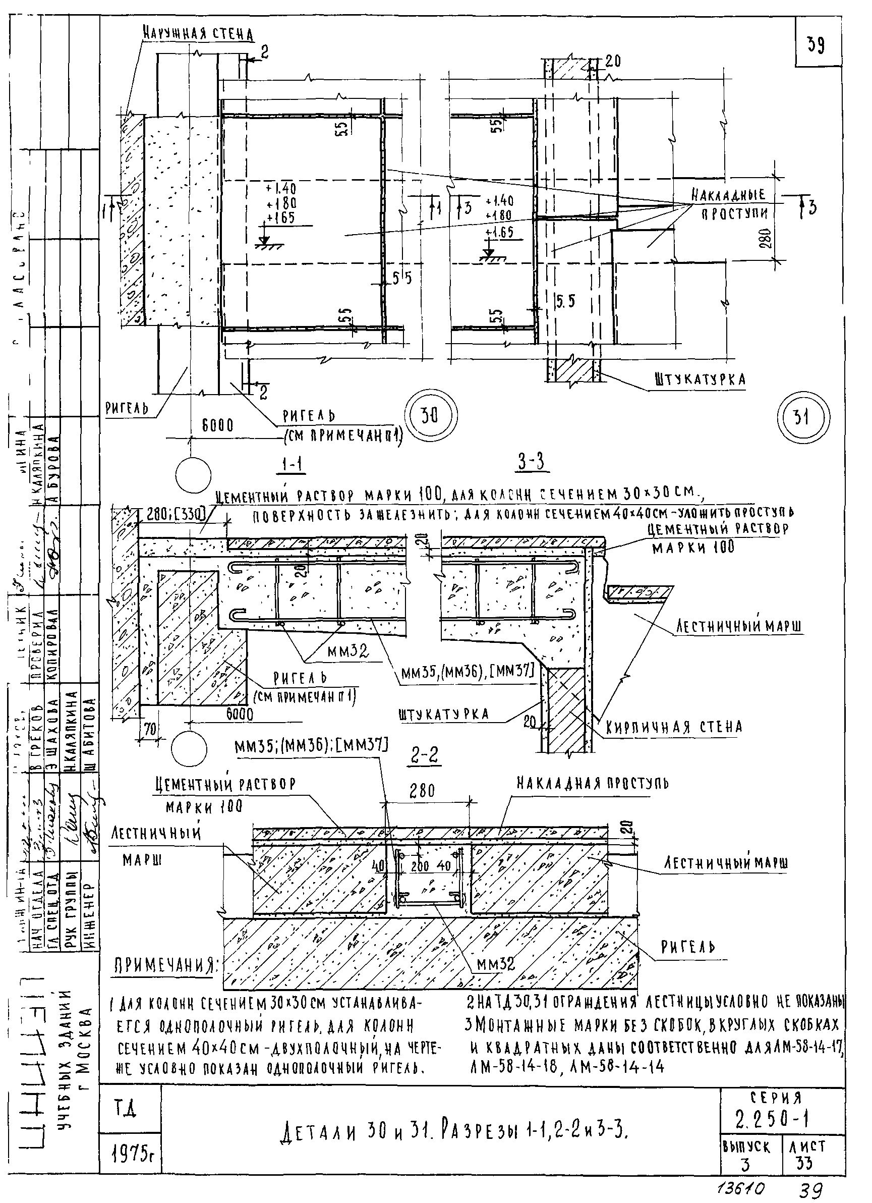
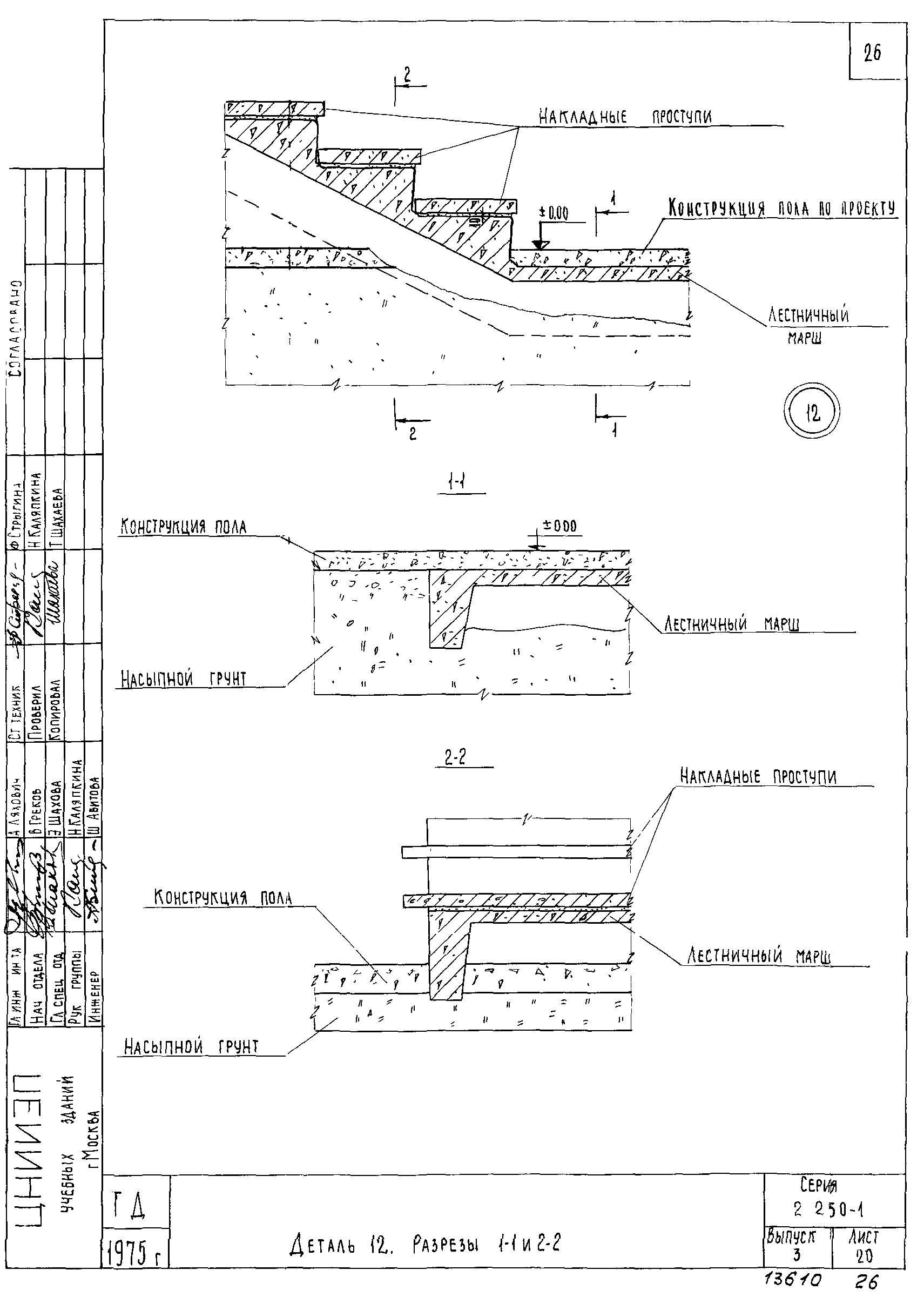
Выпуск 3. Лестницы каркасно-панельных зданий

Обозначение: Серия 2.250-1
Обозначение англ: Series 2.250-1
Статус:не действует
Название рус.:Выпуск 3. Лестницы каркасно-панельных зданий
Дата добавления в базу:01.09.2013
Дата актуализации:05.05.2017
Дата введения:15.12.1975
Дата окончания срока действия:26.02.1987
Разработан: ЦНИИЭП учебных зданий Госгражданстроя
Утверждён:20.11.1975 Государственный комитет по гражданскому строительству и архитектуре при Госстрое СССР (258)
Расположен в:Техническая документация Строительство Справочные документы Типовые строительные конструкции, изделия и узлы Общероссийский строительный каталог Строительные конструкции, изделия и узлы зданий и сооружений для всех видов строительства Конструкции, изделия и узлы зданий Несущие конструкции двухэтажных и многоэтажных зданий Лестницы
Чем заменён:
Серия 2.250-1Серия 2.250-1Серия 2.250-1Серия 2.250-1Серия 2.250-1Серия 2.250-1Серия 2.250-1Серия 2.250-1Серия 2.250-1Серия 2.250-1Серия 2.250-1Серия 2.250-1Серия 2.250-1Серия 2.250-1Серия 2.250-1Серия 2.250-1Серия 2.250-1Серия 2.250-1Серия 2.250-1Серия 2.250-1Серия 2.250-1Серия 2.250-1Серия 2.250-1Серия 2.250-1Серия 2.250-1Серия 2.250-1Серия 2.250-1Серия 2.250-1Серия 2.250-1Серия 2.250-1Серия 2.250-1Серия 2.250-1Серия 2.250-1Серия 2.250-1Серия 2.250-1Серия 2.250-1Серия 2.250-1Серия 2.250-1Серия 2.250-1Серия 2.250-1Серия 2.250-1Серия 2.250-1Серия 2.250-1Серия 2.250-1Серия 2.250-1Серия 2.250-1Серия 2.250-1Серия 2.250-1Серия 2.250-1Серия 2.250-1Серия 2.250-1Серия 2.250-1Серия 2.250-1Серия 2.250-1Серия 2.250-1Серия 2.250-1Серия 2.250-1Серия 2.250-1Серия 2.250-1Серия 2.250-1Серия 2.250-1Серия 2.250-1Серия 2.250-1

© 2013 Ёшкин Кот :-) Карта сайта