Скачать Серия ЭЛ-ТП.35/110.01 Стальные опоры из гнутого профиля для воздушных линий электропередачи 35 и 110 кВДата актуализации: 10.08.2017 Серия ЭЛ-ТП.35/110.01
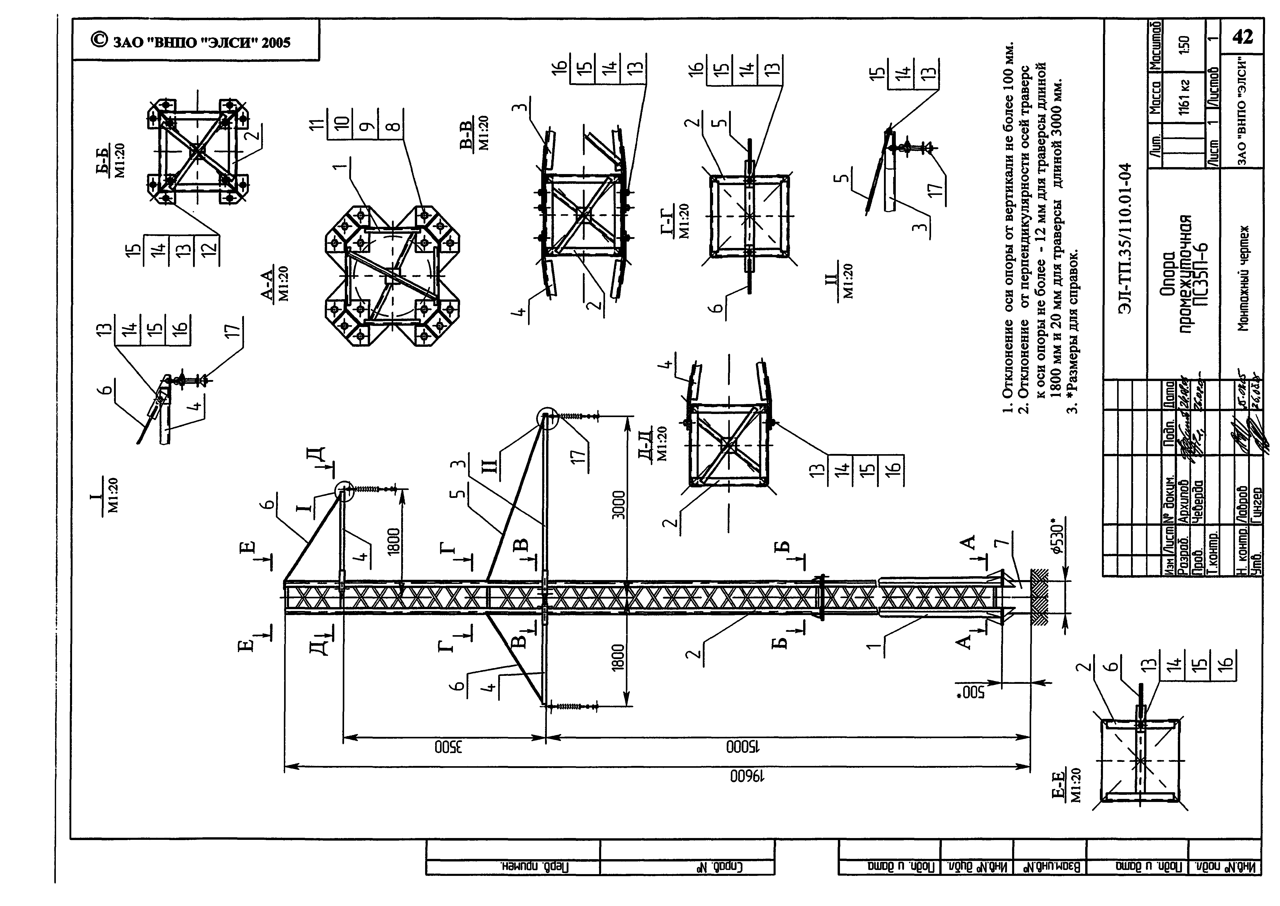
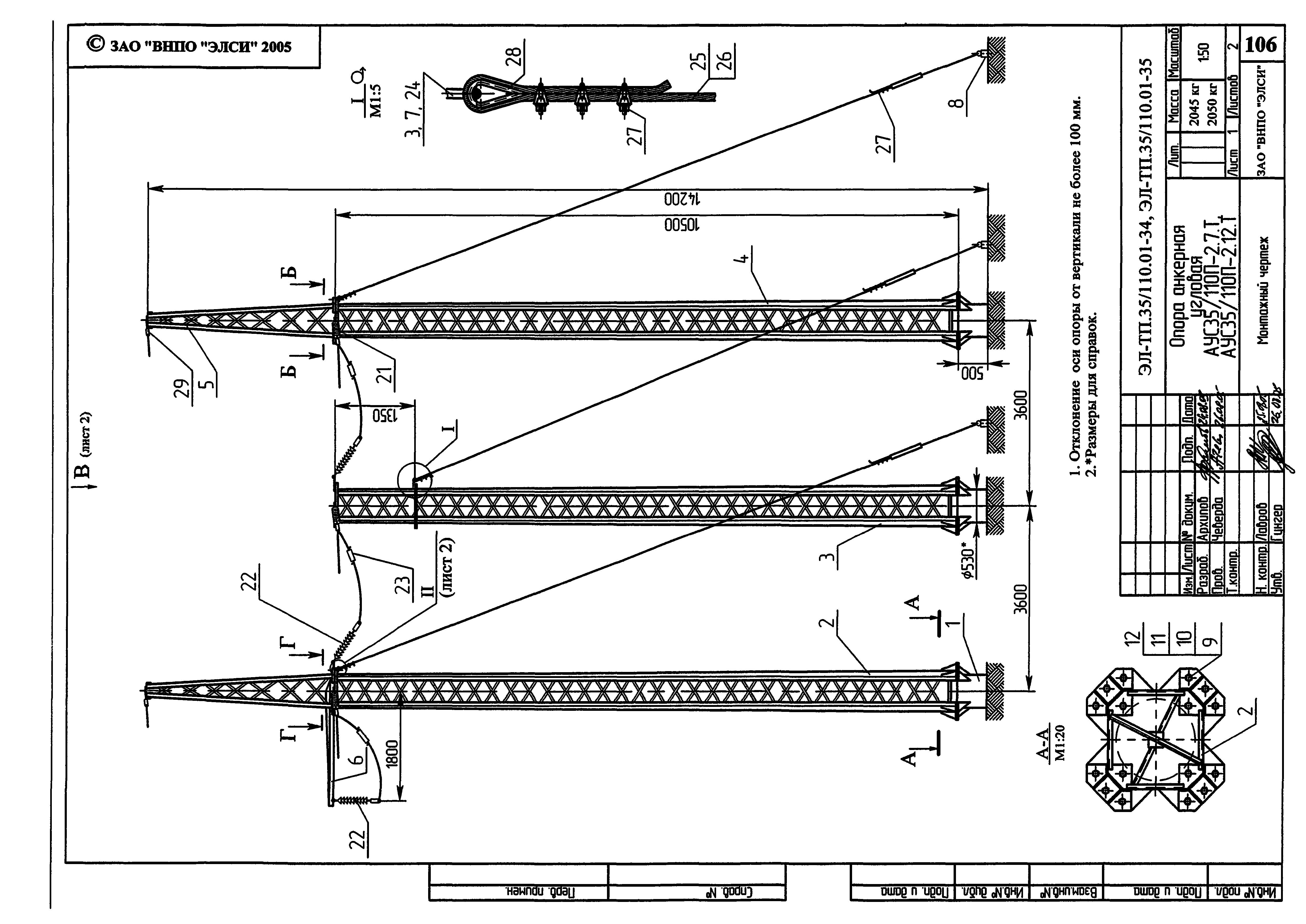
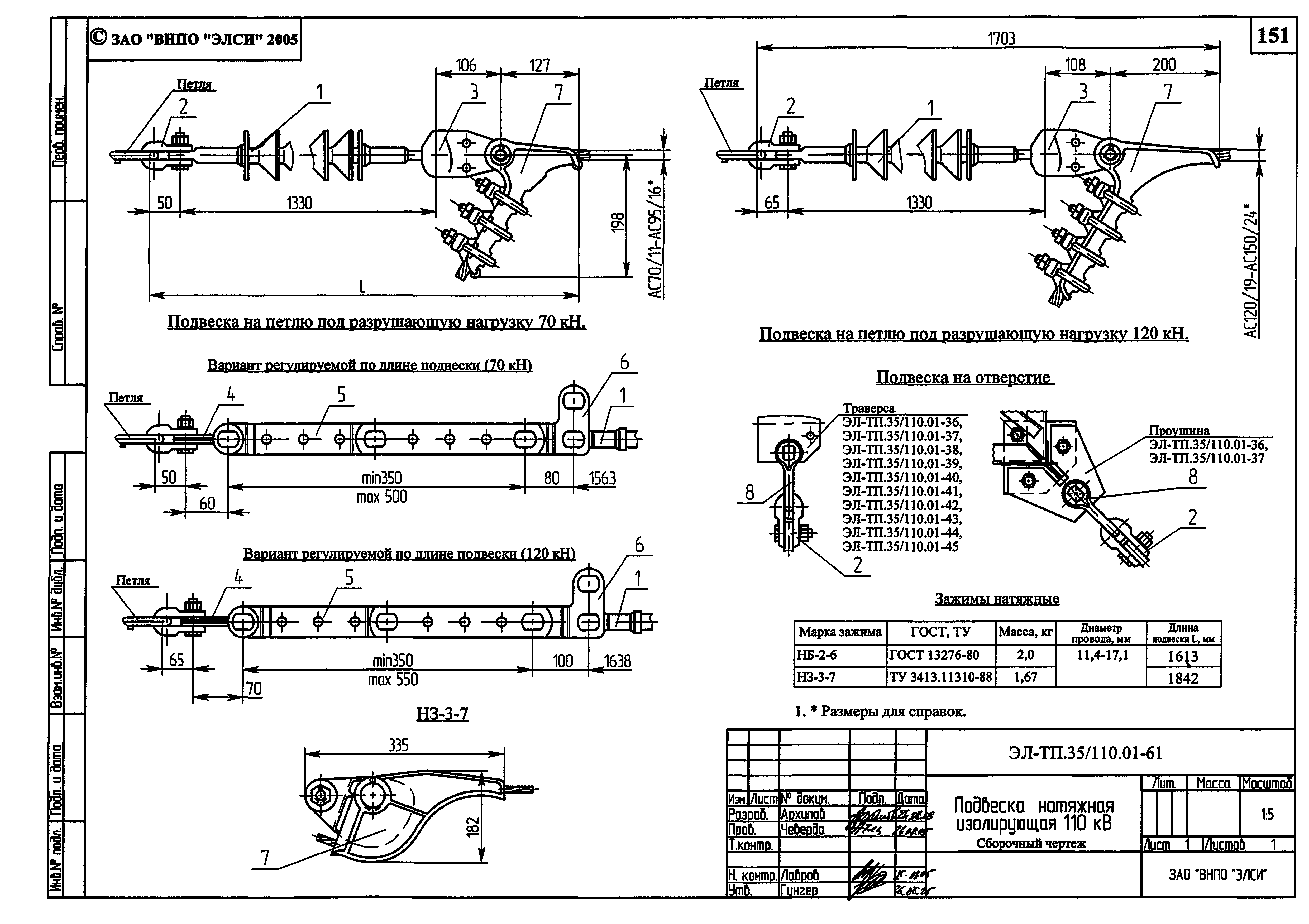
Стальные опоры из гнутого профиля для воздушных линий электропередачи 35 и 110 кВОбозначение: | Серия ЭЛ-ТП.35/110.01 | Обозначение англ: | Series ЭЛ-ТП.35/110.01 | Статус: | не действует | Название рус.: | Стальные опоры из гнутого профиля для воздушных линий электропередачи 35 и 110 кВ | Дата добавления в базу: | 01.09.2013 | Дата актуализации: | 05.05.2017 | Дата введения: | 01.01.2013 | Область применения: | В типовом проекте представлены промежуточные свободностоящие, а также анкерные и анкерные угловые опоры для одноцепных и двухцепных ВЛ 35 и 110 кВ | Оглавление: | Пояснительная записка Введение 1. Общая часть 2. Особенности проектирования ВЛ с учетом требований ПУЭ седьмого издания 3. Указания по применению опор 4. Провода, изоляторы, арматура 5. Основные положения по расчету опор 6. Фундаменты опор 7. Заземляющие устройства опор 8. Технико-экономические и экологические показатели ЭЛ-ТП.35/110.01-01 Номенклатура опор ВЛ 35-110 кВ Стальные промежуточные опоры для ВЛ 35 кВ ЭЛ-ТП.35/110.01-02 ПС35П-4Б одноцепная свободностоящая ЭЛ-ТП.35/110.01-03 ПС35П-5А одноцепная свободностоящая ЭЛ-ТП.35/110.01-04 ПС35П-6 пониженная одноцепная свободностоящая ЭЛ-ТП.35/110.01-05 ПС35П-5 пониженная одноцепная свободностоящая ЭЛ-ТП.35/110.01-06 ПС35/110ПУ-1.35.Т усиленная одноцепная свободностоящая ЭЛ-ТП.35/110.01-07 ПС35/110ПУ-1.35 усиленная одноцепная свободностоящая ЭЛ-ТП.35/110.01-08 ПС35/110ПУ-2.35.Т усиленная одноцепная свободностоящая ЭЛ-ТП.35/110.01-09 ПС35/110ПУ-2.35 усиленная одноцепная свободностоящая ЭЛ-ТП.35/110.01-10 ПС35/110ПУ-3.35.Т усиленная одноцепная свободностоящая ЭЛ-ТП.35/110.01-11 ПС35/110ПУ-3.3 5 усиленная одноцепная свободностоящая ЭЛ-ТП.35/110.01-12 2ПС35П-4 двухцепная свободностоящая ЭЛ-ТП.35/110.01-13 2ПС35П-5 двухцепная свободностоящая ЭЛ-ТП.35/110.01-14 2ПС35/110ПУ-2.35.Т усиленная двухцепная свободностоящая ЭЛ-ТП.35/110.01-15 2ПС35/110ПУ-2.35 усиленная двухцепная свободностоящая Стальные промежуточные опоры для ВЛ 110 кВ ЭЛ-ТП.35/110.01-16 ПС110П-4 одноцепная свободностоящая ЭЛ-ТП.35/110.01-17 ПС35/110ПУ-1.110.Т усиленная одноцепная свободностоящая ЭЛ-ТП.35/110.01-18 ПС35/110ПУ-1.110 усиленная одноцепная свободностоящая ЭЛ-ТП.35/110.01-19 ПС35/110ПУ-2.110.Т усиленная одноцепная свободностоящая ЭЛ-ТП.35/110.01-20 ПС35/110ПУ-2.110 усиленная одноцепная свободностоящая ЭЛ-ТП.35/110.01-21 ПС35/110ПУ-3.110.Т усиленная одноцепная свободностоящая ЭЛ-ТП.35/110.01-22 ПС35/110ПУ-3.110 усиленная одноцепная свободностоящая ЭЛ-ТП.35/110.01-23 2ПС110П-6 двухцепная свободностоящая ЭЛ-ТП.35/110.01-24 2ПС110П-6П двухцепная свободностоящая повышенная ЭЛ-ТП.35/110.01-25 2ПС35/110ПУ-1.110Т усиленная двухцепная свободностоящая ЭЛ-ТП.35/110.01-26 2ПС35/110ПУ-1.110.ТП усиленная двухцепная свободностоящая повышенная ЭЛ-ТП.35/110.01-27 2ПС110ПУ усиленная двухцепная свободностоящая Анкерные и анкерные угловые опоры для ВЛ 35 и 110 кВ ЭЛ-ТП.35/110.01-28 АС35/110П-1.7 анкерная концевая одноцепная ЭЛ-ТП.35/110.01-29 АС35/110П-1.12 анкерная концевая одноцепная ЭЛ-ТП.35/110.01-30 АС35/110П-1.7Т анкерная концевая одноцепная ЭЛ-ТП.35/110.01-31 АС35/110П-1.12Т анкерная концевая одноцепная ЭЛ-ТП.35/110.01-32 АУС35/110П-2.7 анкерная угловая одноцепная ЭЛ-ТП.35/110.01-33 АУС35/110П-2.12 анкерная угловая одноцепная ЭЛ-ТП.35/110.01-34 АУС35/110П-2.7Т анкерная угловая одноцепная ЭЛ-ТП.35/110.01-35 АУС35/110П-2.12Т анкерная угловая одноцепная ЭЛ-ТП.35/110.01-36 АУС35/110П-3.7Т анкерная угловая одноцепная ЭЛ-ТП.35/110.01-37 АУС35/110П-3.12Т анкерная угловая одноцепная ЭЛ-ТП.35/110.01-38 2АС35/110П-1.7 анкерная концевая двухцепная ЭЛ-ТП.35/110.01-39 2АС35/110П-1.12 анкерная концевая двухцепная ЭЛ-ТП.35/110.01-40 2АС35/110П-1.7Т анкерная концевая двухцепная ЭЛ-ТП.35/110.01-41 2АС35/110П-1.12Т анкерная концевая двухцепная ЭЛ-ТП.35/110.01-42 2АУС35/110П-1.7 анкерная угловая двухцепная ЭЛ-ТП.35/110.01-43 2АУС35/110П-1.12 анкерная угловая двухцепная ЭЛ-ТП.35/110.01-44 2АУС35/110П-1.7Т анкерная угловая двухцепная ЭЛ-ТП.35/110.01-45 2АУС35/110П-1.12Т анкерная угловая двухцепная Фундаменты опор для ВЛ 35 и 110 кВ ЭЛ-ТП.35/110.01-46 Фундамент Ф530 ЭЛ-ТП.35/110.01-47 Фундамент Ф530А ЭЛ-ТП.35/110.01-48 Фундамент Ф720.1 ЭЛ-ТП.35/110.01-49 Фундамент Ф720А1 ЭЛ-ТП.35/110.01-50 Фундамент Ф720.А2 ЭЛ-ТП.35/110.01-51 Фундамент Ф720.2 ЭЛ-ТП.35/110.01-52 Фундамент Ф4.325 ЭЛ-ТП.35/110.01-53 Фундамент поверхностный ФП.1 ЭЛ-ТП.35/110.01-54 Фундамент поверхностный заглубленный ФП3.530 ЭЛ-ТП.35/110.01-55 Фундамент скальный анкерный ФСА.2 ЭЛ-ТП.35/110.01-56 Фундамент оттяжки ФО.1 ЭЛ-ТП.35/110.01-57 Фундамент оттяжки ФО.2 Подвески изолирующие ЭЛ-ТП.35/110.01-58 Подвеска поддерживающая изолирующая для ВЛ 35 кВ ЭЛ-ТП.35/110.01-59 Подвеска поддерживающая изолирующая для ВЛ 110 кВ ЭЛ-ТП.35/110.01-60 Подвеска натяжная изолирующая для ВЛ 35 кВ ЭЛ-ТП.35/110.01-61 Подвеска натяжная изолирующая для ВЛ 110 кВ Крепление троса ЭЛ-ТП.35/110.01-62 Крепление троса поддерживающее ЭЛ-ТП.35/110.01-63 Крепление троса натяжное неизолированное ЭЛ-ТП.35/110.01-64 Крепление троса натяжное изолированное Дополнение ЭЛ-ТП.35/110.01-65 ПС110ПВ одноцепная с вантовой полимерной траверсой на оттяжках ЭЛ-ТП.35/110.01-66 Байтовая полимерная траверса для ВЛ 110 кВ (70 кН) ЭЛ-ТП.35/110.01-67 Байтовая полимерная траверса для ВЛ 110 кВ (120 кН) ЭЛ-ТП.35/110.01-68 Фундамент оттяжки ФО.3 Дополнительно разработанные модификации опор и конструкции фундаментов ЭЛ-ТП.35/110.01-69 Сварка труб Ф530 ЭЛ-ТП.35/110.01-70 Опора промежуточная с ответвлением ПС35П-6.0 ЭЛ-ТП.35/110.01-71 Опора промежуточная двухцепная ПС35П-4.И ЭЛ-ТП.35/110.01-72 Фундамент Ф2.325 | Разработан: | ЗАО ВНПО ЭЛСИ
| Утверждён: | 01.09.2005 ЗАО ВНПО ЭЛСИ
| Расположен в: |
| Чем заменён: | - Серия ЭЛ-ТП.35/110/220.02 «Стальные многогранные облегченные опоры для воздушных линий электропередачи 35, 110 и 220 кВ»
- Серия ЭЛ-ТП.10-220.01.04 «Том 4. Фундаменты для опор стальных из гнутого профиля для воздушных линий электропередачи напряжением 10, 35, 110 и 220 кВ»
- Серия ЭЛ-ТП.10-220.01.04 «Том 4 (дополнение). Фундаменты для опор стальных из гнутого профиля для воздушных линий электропередачи напряжением 10, 35, 110 и 220 кВ»
|
                                                                                                                                                                          
|