Информационная система
«Ёшкин Кот»

Скачать базу одним архивом
Скачать обновления
История создания базы
Карта сайта

Скачать Шифр 25.0074 Опоры ВЛ 6 - 10 кВ из стальных труб для районов Крайнего Севера

Дата актуализации: 10.08.2017

Шифр 25.0074

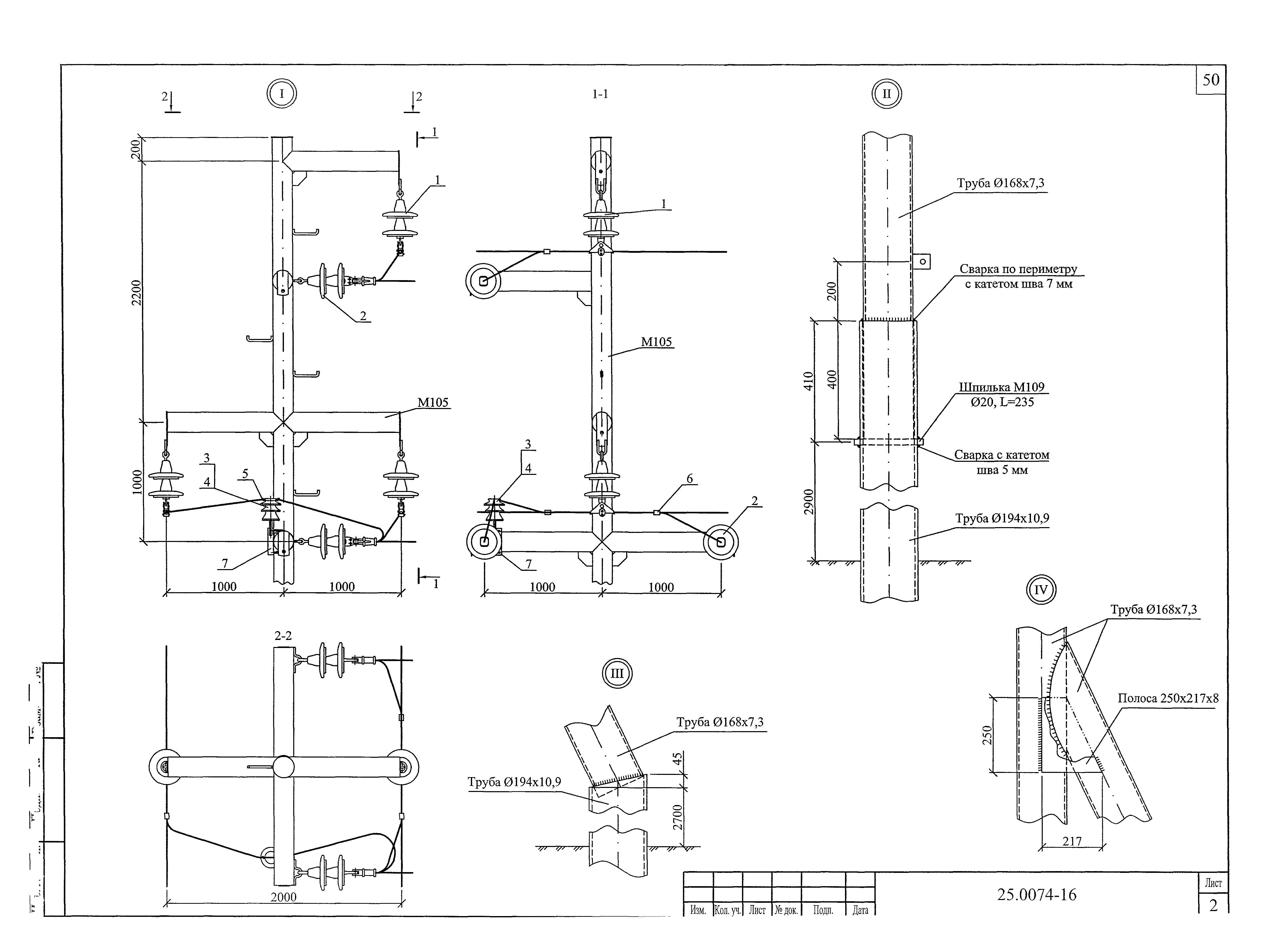
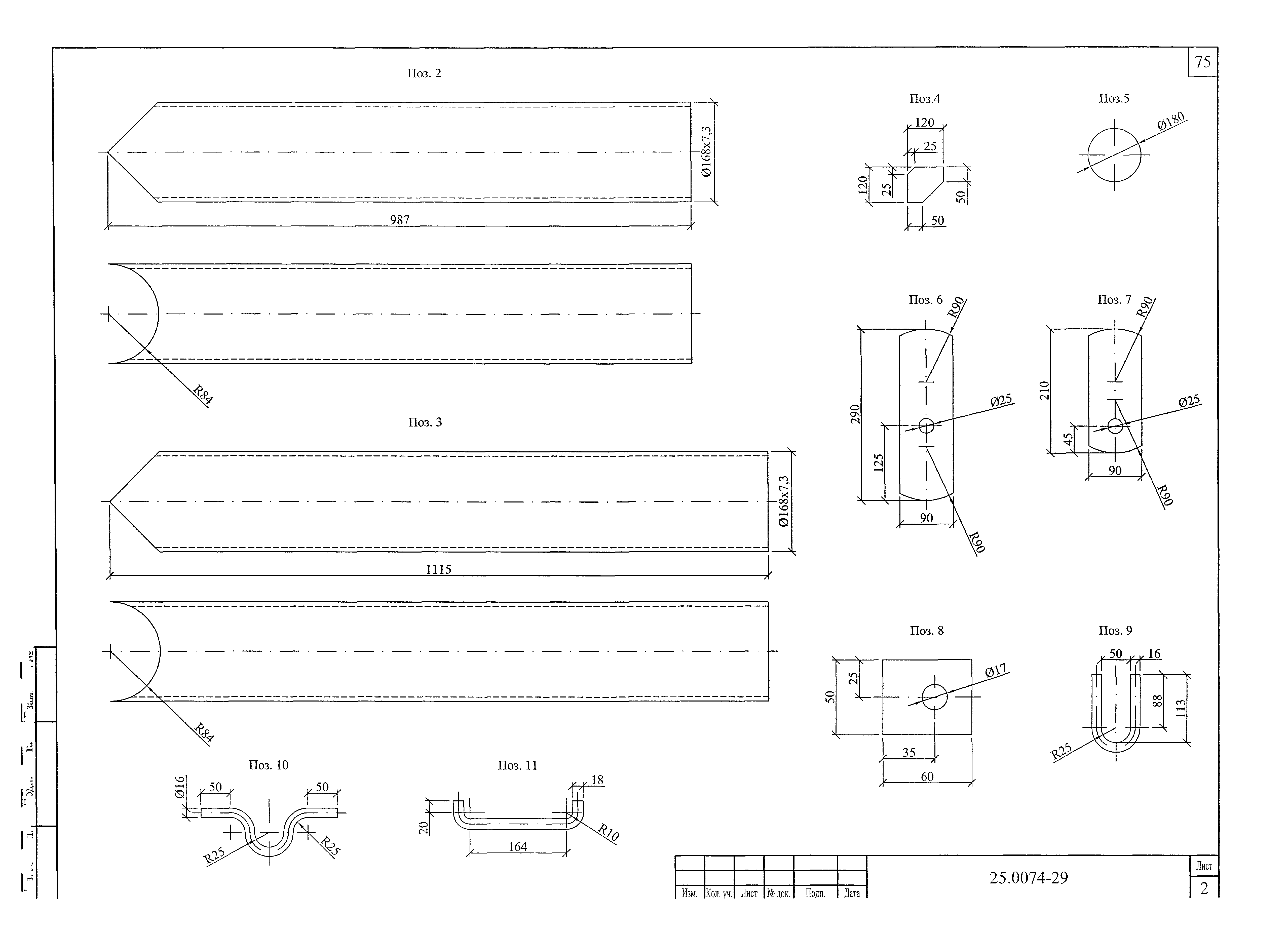
Опоры ВЛ 6 - 10 кВ из стальных труб для районов Крайнего Севера

Обозначение: Шифр 25.0074
Обозначение англ: 25.0074
Статус:не определен законодательством
Название рус.:Опоры ВЛ 6 - 10 кВ из стальных труб для районов Крайнего Севера
Дата добавления в базу:01.09.2013
Дата актуализации:05.05.2017
Дата введения:10.11.2005
Область применения:Опоры ВЛ 6-10 кВ предназначены для строительства в районах Крайнего Севера в I-IV ветровых районах и II, III районах по гололеду при температуре от +30 градусов Цельсия до - 50 градусов Цельсия
Разработан: ОАО РОСЭП
Утверждён:10.11.2005 ОАО РАО ЕЭС России (UES of Russia RAO OAO )
Расположен в:Техническая документация Строительство Справочные документы Типовые строительные конструкции, изделия и узлы Разработанные другими министерствами, ведомствами и организациями
Шифр 25.0074Шифр 25.0074Шифр 25.0074Шифр 25.0074Шифр 25.0074Шифр 25.0074Шифр 25.0074Шифр 25.0074Шифр 25.0074Шифр 25.0074Шифр 25.0074Шифр 25.0074Шифр 25.0074Шифр 25.0074Шифр 25.0074Шифр 25.0074Шифр 25.0074Шифр 25.0074Шифр 25.0074Шифр 25.0074Шифр 25.0074Шифр 25.0074Шифр 25.0074Шифр 25.0074Шифр 25.0074Шифр 25.0074Шифр 25.0074Шифр 25.0074Шифр 25.0074Шифр 25.0074Шифр 25.0074Шифр 25.0074Шифр 25.0074Шифр 25.0074Шифр 25.0074Шифр 25.0074Шифр 25.0074Шифр 25.0074Шифр 25.0074Шифр 25.0074Шифр 25.0074Шифр 25.0074Шифр 25.0074Шифр 25.0074Шифр 25.0074Шифр 25.0074Шифр 25.0074Шифр 25.0074Шифр 25.0074Шифр 25.0074Шифр 25.0074Шифр 25.0074Шифр 25.0074Шифр 25.0074Шифр 25.0074Шифр 25.0074Шифр 25.0074Шифр 25.0074Шифр 25.0074Шифр 25.0074Шифр 25.0074Шифр 25.0074Шифр 25.0074Шифр 25.0074Шифр 25.0074Шифр 25.0074Шифр 25.0074Шифр 25.0074Шифр 25.0074Шифр 25.0074Шифр 25.0074Шифр 25.0074Шифр 25.0074Шифр 25.0074Шифр 25.0074Шифр 25.0074Шифр 25.0074Шифр 25.0074Шифр 25.0074Шифр 25.0074Шифр 25.0074Шифр 25.0074Шифр 25.0074Шифр 25.0074Шифр 25.0074Шифр 25.0074Шифр 25.0074Шифр 25.0074Шифр 25.0074Шифр 25.0074Шифр 25.0074Шифр 25.0074

© 2013 Ёшкин Кот :-) Карта сайта