Информационная система
«Ёшкин Кот»

Скачать базу одним архивом
Скачать обновления
История создания базы
Карта сайта

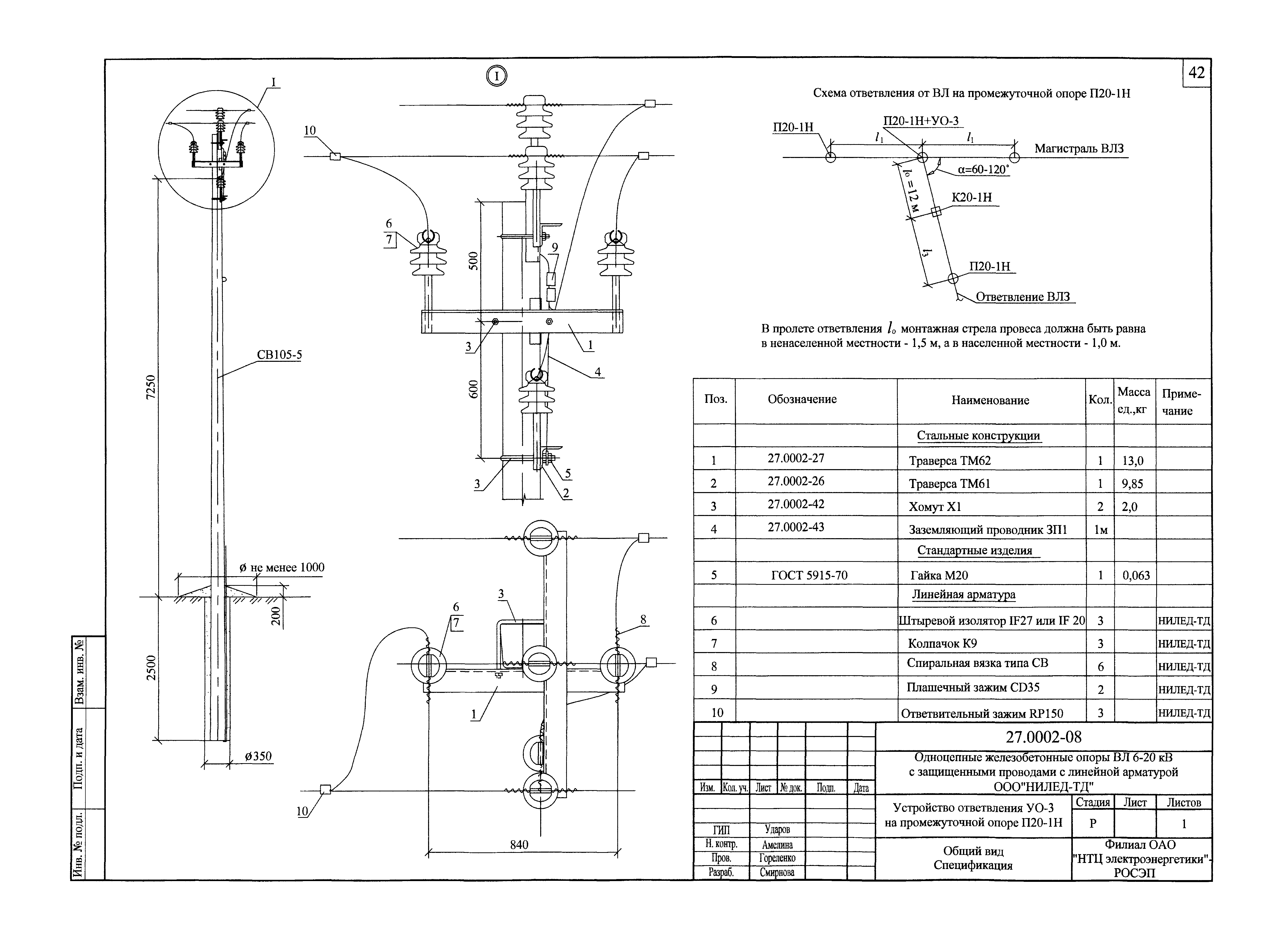
Скачать Шифр 27.0002 Одноцепные железобетонные опоры ВЛ 6-20 кВ с защищенными проводами с линейной арматурой ООО НИЛЕД-ТД

Дата актуализации: 10.08.2017

Шифр 27.0002

Одноцепные железобетонные опоры ВЛ 6-20 кВ с защищенными проводами с линейной арматурой ООО "НИЛЕД-ТД"

Обозначение: Шифр 27.0002
Обозначение англ: 27.0002
Статус:не определен законодательством
Название рус.:Одноцепные железобетонные опоры ВЛ 6-20 кВ с защищенными проводами с линейной арматурой ООО "НИЛЕД-ТД"
Дата добавления в базу:01.09.2013
Дата актуализации:05.05.2017
Дата введения:01.01.2007
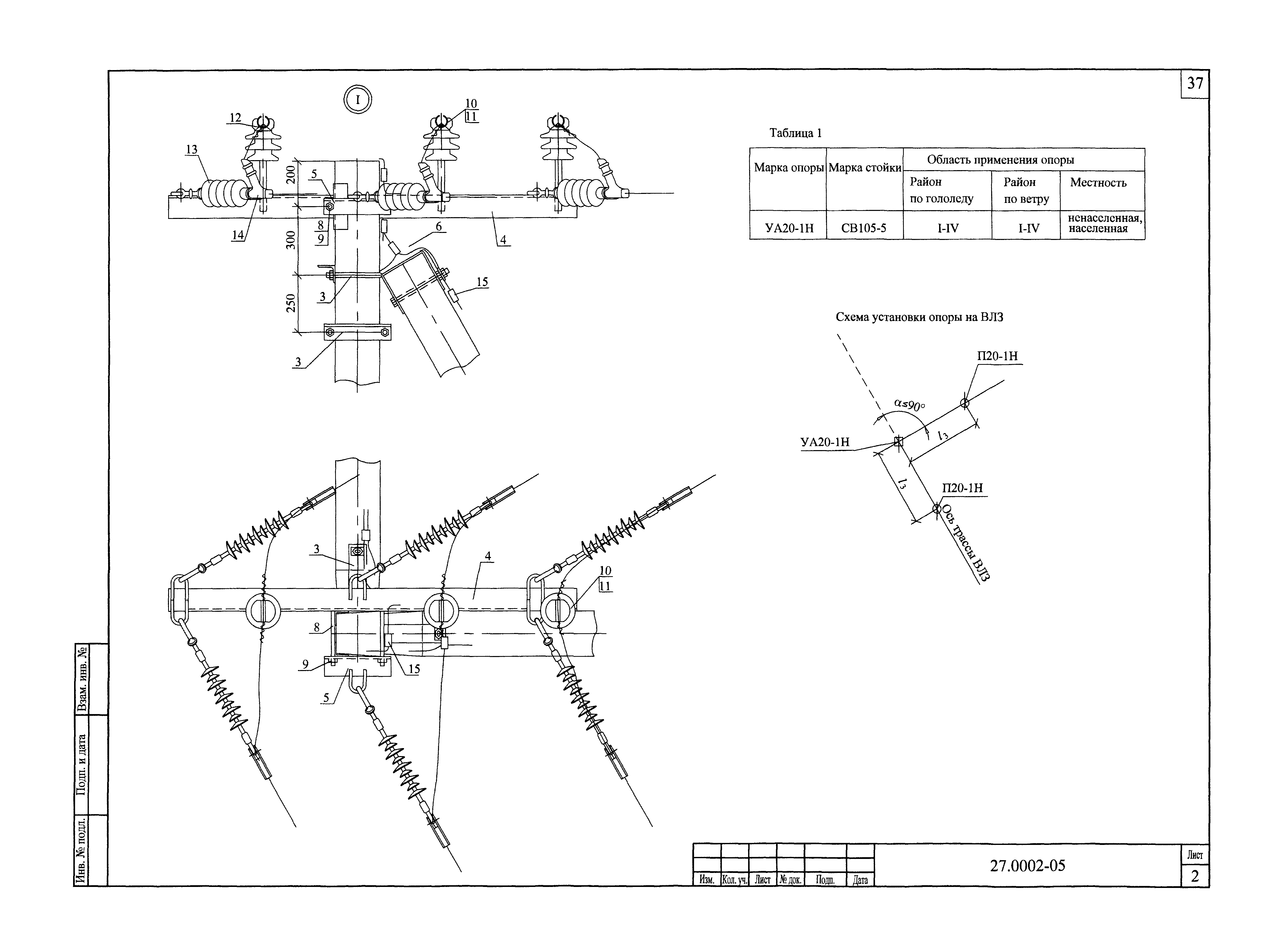
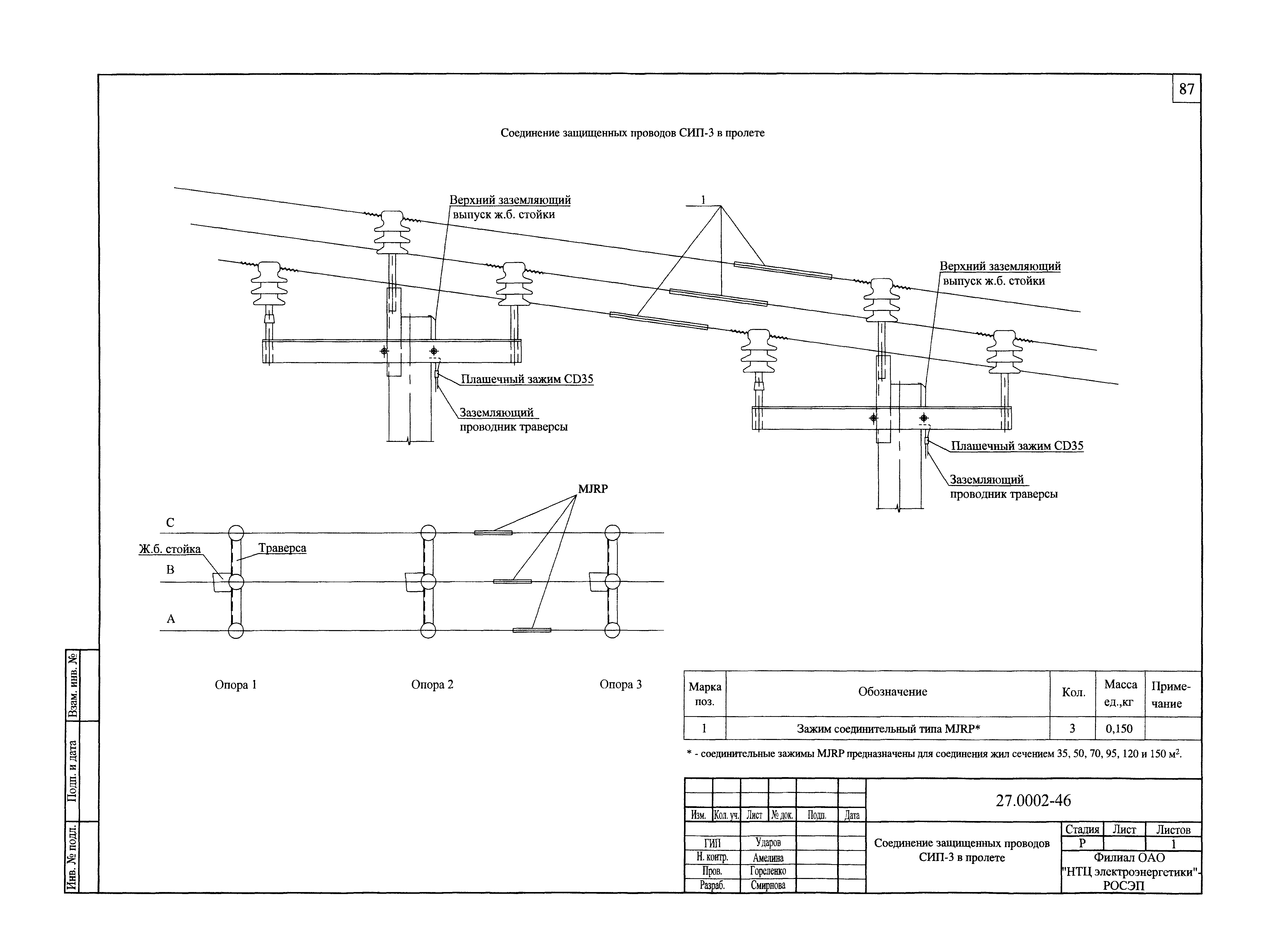
Область применения:В составе данного проекта разработаны одноцепные промежуточные, угловые промежуточные, анкерные, концевые, угловые анкерные, ответвительные анкерные и угловые ответвительные анкерные опоры ВЛ-6-20 кВ с защищенными проводами типа СИП-3 с линейной арматурой "НИЛЕД-ТД"
Разработан: Филиал ОАО НТЦ электроэнергетики - РОСЭП
Утверждён:01.01.2007 ОАО РАО ЕЭС России (UES of Russia RAO OAO )
Расположен в:Техническая документация Строительство Справочные документы Типовые строительные конструкции, изделия и узлы Разработанные другими министерствами, ведомствами и организациями
Шифр 27.0002Шифр 27.0002Шифр 27.0002Шифр 27.0002Шифр 27.0002Шифр 27.0002Шифр 27.0002Шифр 27.0002Шифр 27.0002Шифр 27.0002Шифр 27.0002Шифр 27.0002Шифр 27.0002Шифр 27.0002Шифр 27.0002Шифр 27.0002Шифр 27.0002Шифр 27.0002Шифр 27.0002Шифр 27.0002Шифр 27.0002Шифр 27.0002Шифр 27.0002Шифр 27.0002Шифр 27.0002Шифр 27.0002Шифр 27.0002Шифр 27.0002Шифр 27.0002Шифр 27.0002Шифр 27.0002Шифр 27.0002Шифр 27.0002Шифр 27.0002Шифр 27.0002Шифр 27.0002Шифр 27.0002Шифр 27.0002Шифр 27.0002Шифр 27.0002Шифр 27.0002Шифр 27.0002Шифр 27.0002Шифр 27.0002Шифр 27.0002Шифр 27.0002Шифр 27.0002Шифр 27.0002Шифр 27.0002Шифр 27.0002Шифр 27.0002Шифр 27.0002Шифр 27.0002Шифр 27.0002Шифр 27.0002Шифр 27.0002Шифр 27.0002Шифр 27.0002Шифр 27.0002Шифр 27.0002Шифр 27.0002Шифр 27.0002Шифр 27.0002Шифр 27.0002Шифр 27.0002Шифр 27.0002Шифр 27.0002Шифр 27.0002Шифр 27.0002Шифр 27.0002Шифр 27.0002Шифр 27.0002Шифр 27.0002Шифр 27.0002Шифр 27.0002Шифр 27.0002Шифр 27.0002Шифр 27.0002Шифр 27.0002Шифр 27.0002Шифр 27.0002Шифр 27.0002Шифр 27.0002Шифр 27.0002Шифр 27.0002Шифр 27.0002Шифр 27.0002Шифр 27.0002

© 2013 Ёшкин Кот :-) Карта сайта