Информационная система
«Ёшкин Кот»

Скачать базу одним архивом
Скачать обновления
История создания базы
Карта сайта

Скачать Типовой проект 708-75.93 Альбом 7. Строительные изделия

Дата актуализации: 10.08.2017

Типовой проект 708-75.93

Альбом 7. Строительные изделия

Обозначение: Типовой проект 708-75.93
Обозначение англ: 708-75.93
Статус:не определен законодательством
Название рус.:Альбом 7. Строительные изделия
Дата добавления в базу:01.09.2013
Дата актуализации:05.05.2017
Дата введения:06.12.1993
Оглавление:Содержание
708-75.93 КЖ.И.-ТУ1 Технические условия на изготовление арматурных и закладных изделий
708-75.93 КЖ.И.-1.0 Изделие закладное МН1
708-75.93 КЖ.И.-2.0 Фундамент Ф1
708-75.93 КЖ.И.-3.0 Колонна К1
708-75.93 КЖ.И.-4.0 Плита (ПР60.15-6АтV-а; ПР60.15-6АтV-б)
708-75.93 КЖ.И.-5.0 Стеновая панель (7ПСО 30.33.3.5-а; ПСЛ 30.33.3.5-а)
708-75.93 КЖ.И.-6.0 Рама стальная РС1
708-75.93 КЖ.И.-7.0 Изделие соединительное МС1. Изделие закладное МН2
708-75.93 КЖ.И.-8.0 Анкерный болт А1
708-75.93 КЖ.И.-9.0 Изделие закладное (МН3;МН4)
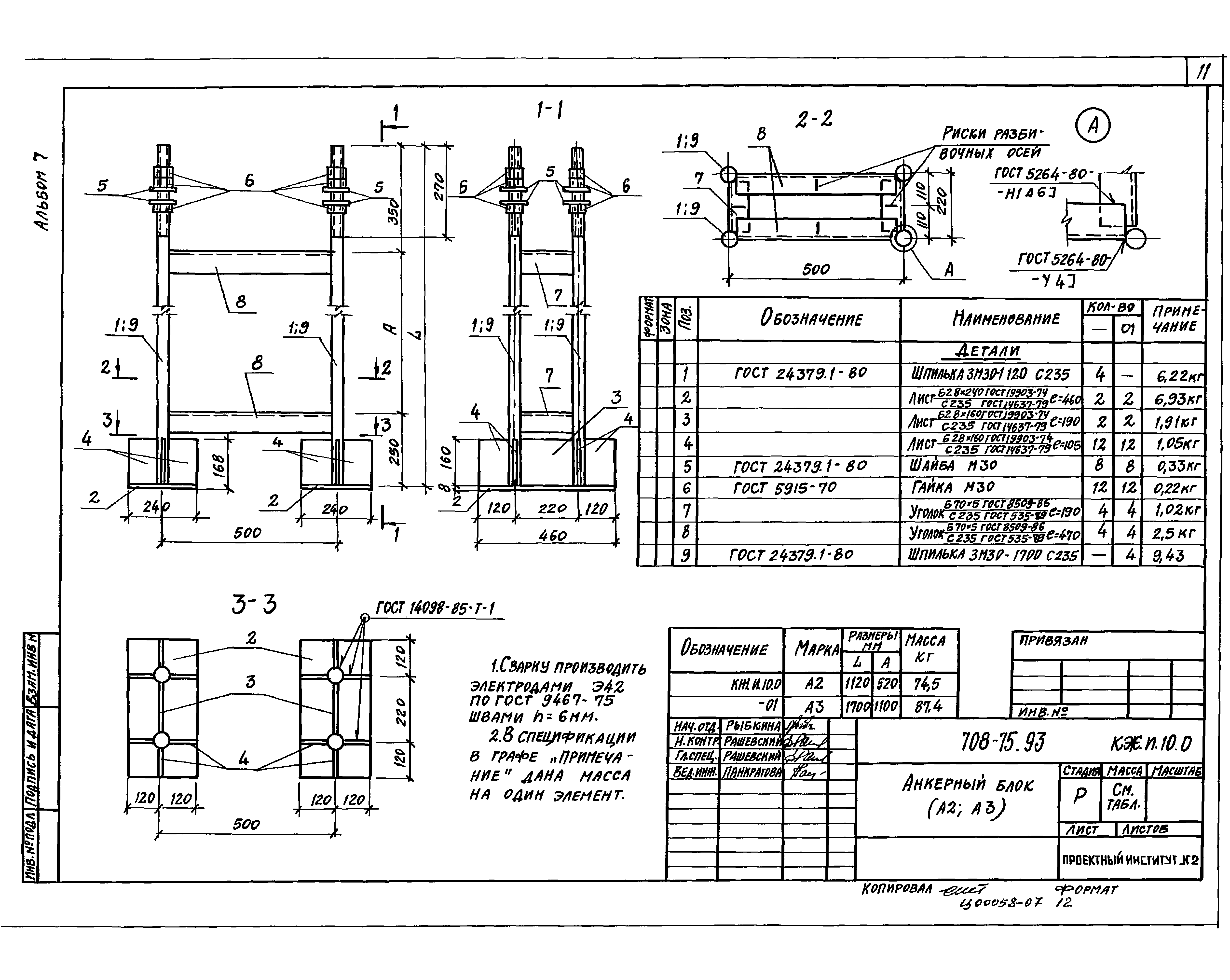
708-75.93 КЖ.И.-10.0 Анкерный блок (А2,А3)
708-75.93 КЖ.И.-11.0 Каркас пространственный (КП1;КП2)
708-75.93 КЖ.И.-12.0 Сетки арматурные (С1…С7)
Разработан: Проектный институт №2
Утверждён:30.11.1993 Главпроект Госстроя России (9-3-1/254)
Расположен в:Техническая документация Строительство Справочные документы Типовые строительные конструкции, изделия и узлы Общероссийский строительный каталог Промышленные предприятия, здания и сооружения Предприятия, здания и сооружения складские Склады строительных материалов и изделий
Типовой проект 708-75.93Типовой проект 708-75.93Типовой проект 708-75.93Типовой проект 708-75.93Типовой проект 708-75.93Типовой проект 708-75.93Типовой проект 708-75.93Типовой проект 708-75.93Типовой проект 708-75.93Типовой проект 708-75.93Типовой проект 708-75.93Типовой проект 708-75.93Типовой проект 708-75.93Типовой проект 708-75.93

© 2013 Ёшкин Кот :-) Карта сайта