Информационная система
«Ёшкин Кот»

Скачать базу одним архивом
Скачать обновления
История создания базы
Карта сайта

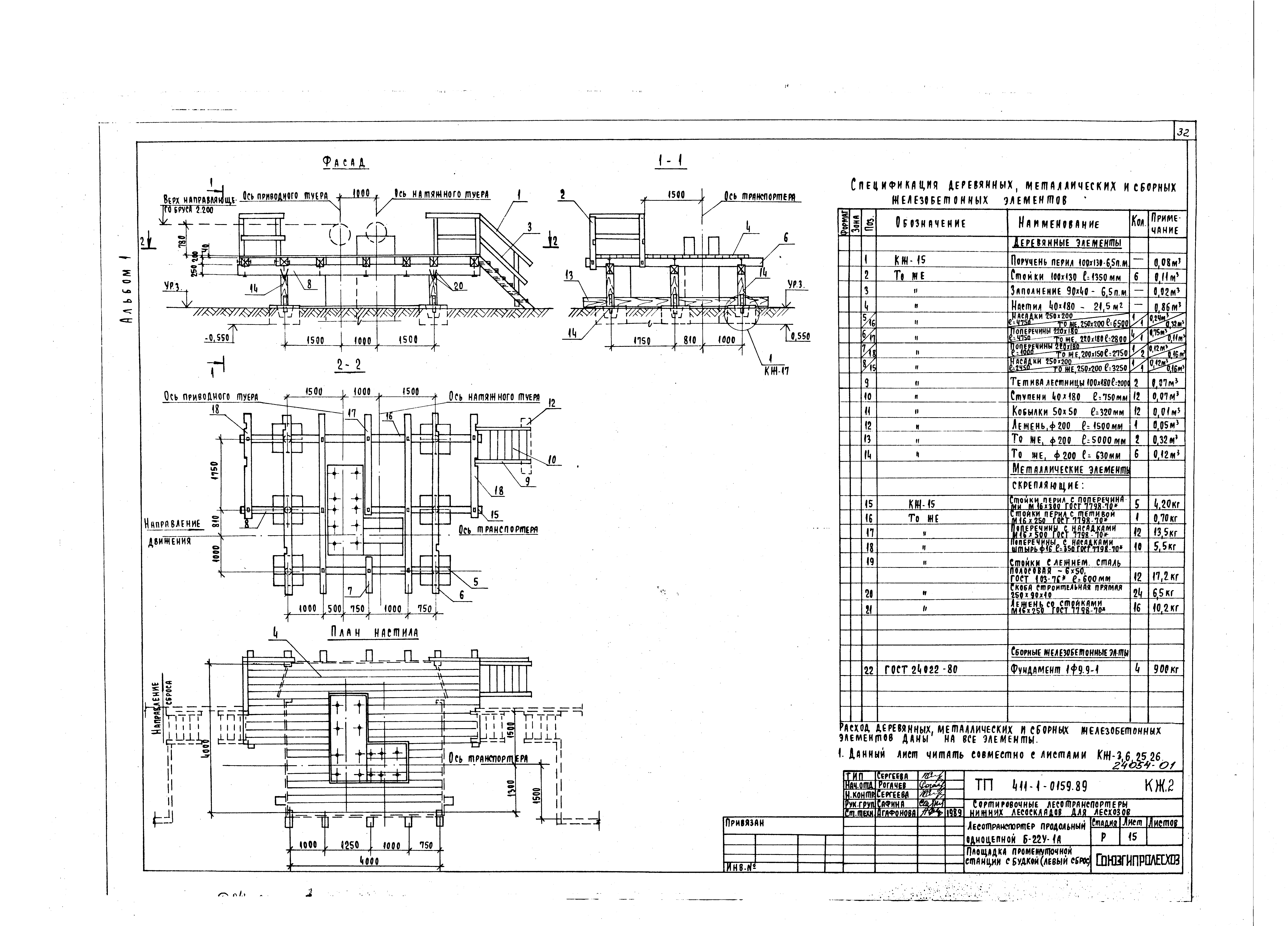
Скачать Типовые проектные решения 411-1-0159.89 Альбом 1. Лесотранспортер продольный одноцепной Б-22У-1А

Дата актуализации: 10.08.2017

Типовые проектные решения 411-1-0159.89

Альбом 1. Лесотранспортер продольный одноцепной Б-22У-1А

Обозначение: Типовые проектные решения 411-1-0159.89
Обозначение англ: 411-1-0159.89
Статус:cправочные материалы, мп, тпр
Название рус.:Альбом 1. Лесотранспортер продольный одноцепной Б-22У-1А
Дата добавления в базу:01.09.2013
Дата актуализации:05.05.2017
Дата введения:10.10.1989
Разработан: Союзгипролесхоз Госкомлеса СССР
Утверждён:10.10.1989 Госкомлес СССР (USSR Goskomles 20)
Издан: ЦИТП Госстроя СССР (CITP, Gosstroy (USSR) 1990 г. )
Расположен в:Техническая документация Строительство Справочные документы Типовые строительные конструкции, изделия и узлы Общероссийский строительный каталог Промышленные предприятия, здания и сооружения Предприятия, здания и сооружения промышленности и электроэнергетики Промышленность лесозаготовительная
Типовые проектные решения 411-1-0159.89Типовые проектные решения 411-1-0159.89Типовые проектные решения 411-1-0159.89Типовые проектные решения 411-1-0159.89Типовые проектные решения 411-1-0159.89Типовые проектные решения 411-1-0159.89Типовые проектные решения 411-1-0159.89Типовые проектные решения 411-1-0159.89Типовые проектные решения 411-1-0159.89Типовые проектные решения 411-1-0159.89Типовые проектные решения 411-1-0159.89Типовые проектные решения 411-1-0159.89Типовые проектные решения 411-1-0159.89Типовые проектные решения 411-1-0159.89Типовые проектные решения 411-1-0159.89Типовые проектные решения 411-1-0159.89Типовые проектные решения 411-1-0159.89Типовые проектные решения 411-1-0159.89Типовые проектные решения 411-1-0159.89Типовые проектные решения 411-1-0159.89Типовые проектные решения 411-1-0159.89Типовые проектные решения 411-1-0159.89Типовые проектные решения 411-1-0159.89Типовые проектные решения 411-1-0159.89Типовые проектные решения 411-1-0159.89Типовые проектные решения 411-1-0159.89Типовые проектные решения 411-1-0159.89Типовые проектные решения 411-1-0159.89Типовые проектные решения 411-1-0159.89Типовые проектные решения 411-1-0159.89Типовые проектные решения 411-1-0159.89Типовые проектные решения 411-1-0159.89Типовые проектные решения 411-1-0159.89Типовые проектные решения 411-1-0159.89Типовые проектные решения 411-1-0159.89Типовые проектные решения 411-1-0159.89Типовые проектные решения 411-1-0159.89Типовые проектные решения 411-1-0159.89Типовые проектные решения 411-1-0159.89Типовые проектные решения 411-1-0159.89Типовые проектные решения 411-1-0159.89Типовые проектные решения 411-1-0159.89Типовые проектные решения 411-1-0159.89Типовые проектные решения 411-1-0159.89Типовые проектные решения 411-1-0159.89Типовые проектные решения 411-1-0159.89Типовые проектные решения 411-1-0159.89Типовые проектные решения 411-1-0159.89Типовые проектные решения 411-1-0159.89Типовые проектные решения 411-1-0159.89Типовые проектные решения 411-1-0159.89Типовые проектные решения 411-1-0159.89Типовые проектные решения 411-1-0159.89Типовые проектные решения 411-1-0159.89Типовые проектные решения 411-1-0159.89Типовые проектные решения 411-1-0159.89Типовые проектные решения 411-1-0159.89Типовые проектные решения 411-1-0159.89Типовые проектные решения 411-1-0159.89Типовые проектные решения 411-1-0159.89Типовые проектные решения 411-1-0159.89Типовые проектные решения 411-1-0159.89Типовые проектные решения 411-1-0159.89Типовые проектные решения 411-1-0159.89Типовые проектные решения 411-1-0159.89Типовые проектные решения 411-1-0159.89Типовые проектные решения 411-1-0159.89Типовые проектные решения 411-1-0159.89Типовые проектные решения 411-1-0159.89Типовые проектные решения 411-1-0159.89Типовые проектные решения 411-1-0159.89

© 2013 Ёшкин Кот :-) Карта сайта