Информационная система
«Ёшкин Кот»

Скачать базу одним архивом
Скачать обновления
История создания базы
Карта сайта

Скачать Шифр М25.13/98 Выпуск 0. Материалы для проектирования

Дата актуализации: 10.08.2017

Шифр М25.13/98

Выпуск 0. Материалы для проектирования

Обозначение: Шифр М25.13/98
Обозначение англ: М25.13/98
Статус:не определен законодательством
Название рус.:Выпуск 0. Материалы для проектирования
Дата добавления в базу:01.09.2013
Дата актуализации:05.05.2017
Дата введения:30.07.1999
Область применения:Настоящий выпуск содержит материалы для проектирования самонесущих и навесных стен из панелей толщиной 350 мм многоэтажных каркасных общественных зданий согласно Приложению 1 главы СНиП 2.08.02-89 "Общественные здания и сооружения"
Оглавление:М25 13/98-0.ПЗ Пояснительная записка
М25 13/98-0.Н Номенклатура
М25 13/98-0.1 План стен
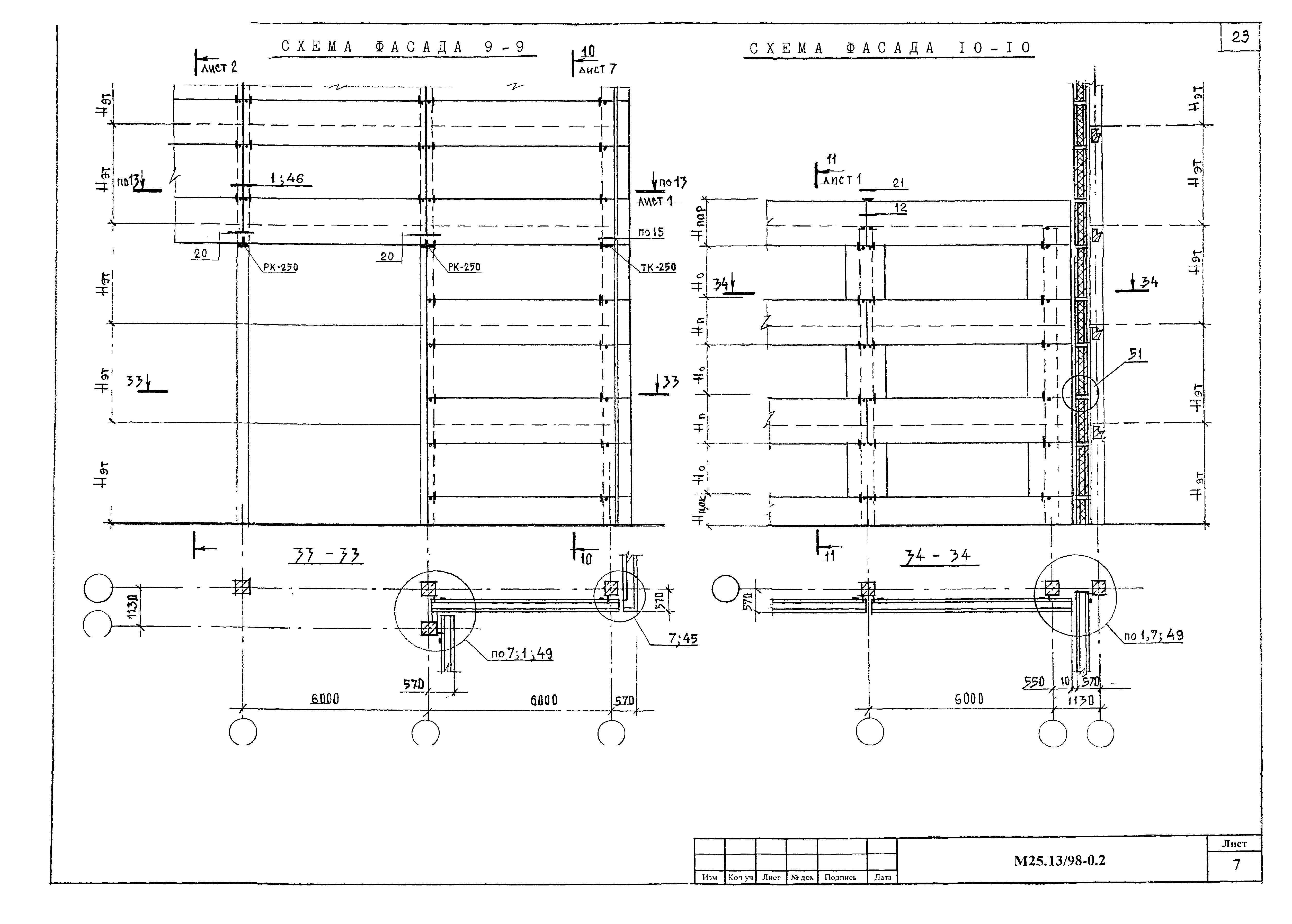
М25 13/98-0.2 Схемы узлов самонесущих стен 1-1... 10-10
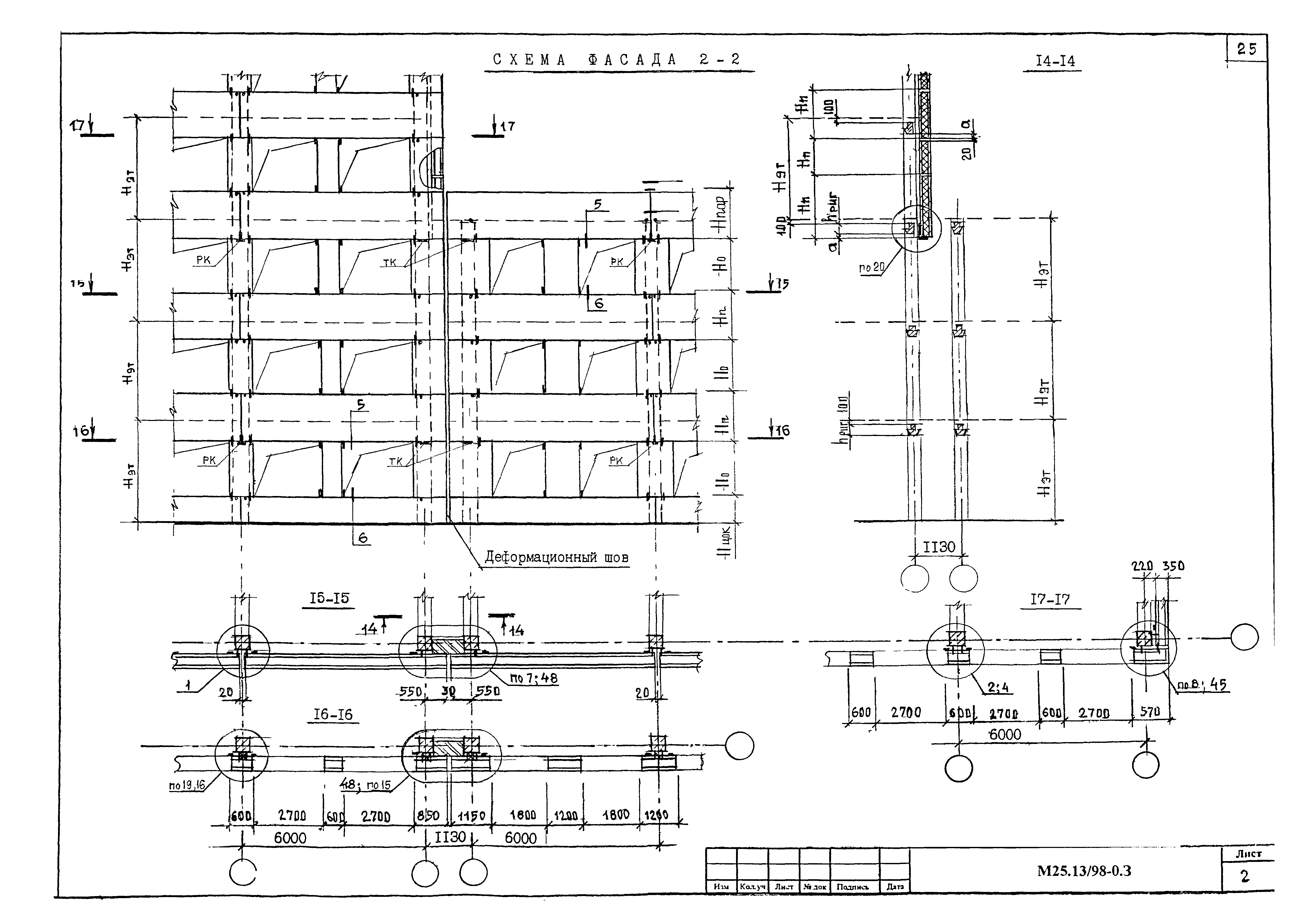
М25 13/98-0.3 Схемы узлов навесных стен 1 -1... 10-10
М25 13/98-0.4 Схемы узлов подкарнизных и карнизных панелей
М25 13/98-0.5 Пример крепления панелей в уровне верха стыка колонн
М25 13/98-0.6 Решение нулевого цикла в зданиях с полами по грунту
М25 13/98-0.7 Решение нулевого цикла в зданиях с подвалами
Разработан: ЦНИИпромзданий
Утверждён:30.07.1999 ЦНИИ промзданий (TsNII promzdaniy )
Расположен в:Техническая документация Строительство Справочные документы Типовые строительные конструкции, изделия и узлы Разработанные другими министерствами, ведомствами и организациями
Шифр М25.13/98Шифр М25.13/98Шифр М25.13/98Шифр М25.13/98Шифр М25.13/98Шифр М25.13/98Шифр М25.13/98Шифр М25.13/98Шифр М25.13/98Шифр М25.13/98Шифр М25.13/98Шифр М25.13/98Шифр М25.13/98Шифр М25.13/98Шифр М25.13/98Шифр М25.13/98Шифр М25.13/98Шифр М25.13/98Шифр М25.13/98Шифр М25.13/98Шифр М25.13/98Шифр М25.13/98Шифр М25.13/98Шифр М25.13/98Шифр М25.13/98Шифр М25.13/98Шифр М25.13/98Шифр М25.13/98Шифр М25.13/98Шифр М25.13/98Шифр М25.13/98Шифр М25.13/98Шифр М25.13/98Шифр М25.13/98Шифр М25.13/98Шифр М25.13/98

© 2013 Ёшкин Кот :-) Карта сайта