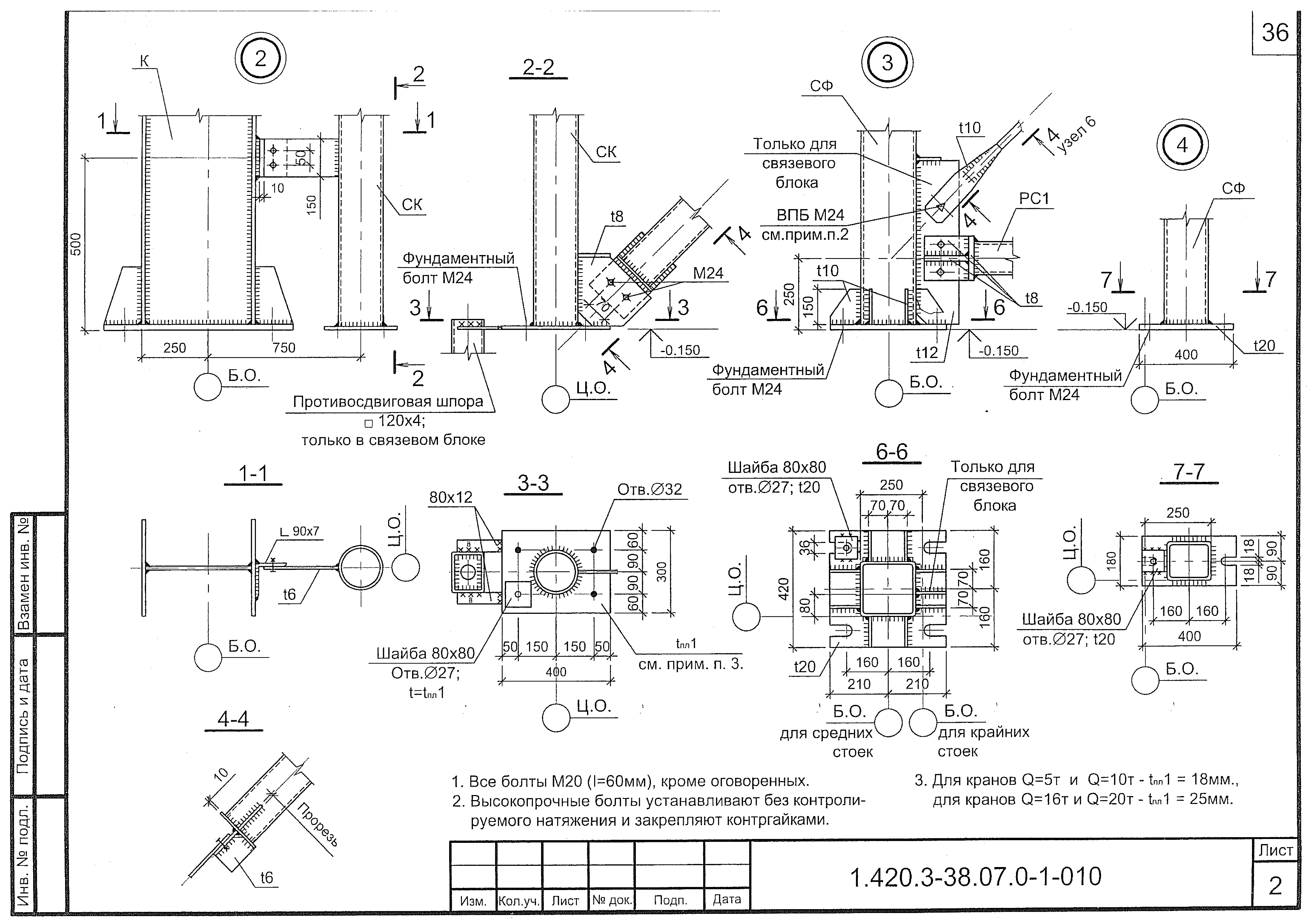
Скачать Серия 1.420.3-38.07 Выпуск 0-1. Каркасы с однопролетными рамами пролетами 18 и 24 м для бескрановых зданий, зданий с подвесными мостовыми кранами грузоподъемностью до 5 т и мостовыми опорными кранами грузоподъемностью 5, 10, 16 и 20 т. Материалы для проектированияДата актуализации: 10.08.2017 Серия 1.420.3-38.07
Выпуск 0-1. Каркасы с однопролетными рамами пролетами 18 и 24 м для бескрановых зданий, зданий с подвесными мостовыми кранами грузоподъемностью до 5 т и мостовыми опорными кранами грузоподъемностью 5, 10, 16 и 20 т. Материалы для проектированияОбозначение: | Серия 1.420.3-38.07 | Обозначение англ: | Series 1.420.3-38.07 | Статус: | не определен законодательством | Название рус.: | Выпуск 0-1. Каркасы с однопролетными рамами пролетами 18 и 24 м для бескрановых зданий, зданий с подвесными мостовыми кранами грузоподъемностью до 5 т и мостовыми опорными кранами грузоподъемностью 5, 10, 16 и 20 т. Материалы для проектирования | Дата добавления в базу: | 01.09.2013 | Дата актуализации: | 05.05.2017 | Дата введения: | 14.06.2007 | Разработан: | ООО Научно-исследовательская и проектно-строительная фирма УНИКОН
| Утверждён: | 14.06.2007 ООО Стройкомпани (5)
| Издан: | Информационный бюллетень о нормативной, методической и типовой проектной документации ФГУП ЦПП (2007 г. (11))
| Расположен в: |
|
                                                     
|