Информационная система
«Ёшкин Кот»

Скачать базу одним архивом
Скачать обновления
История создания базы
Карта сайта

Скачать НГЭА 92 Нормы годности к эксплуатации гражданских аэродромов

Дата актуализации: 10.08.2017

НГЭА 92

Нормы годности к эксплуатации гражданских аэродромов

Обозначение: НГЭА 92
Обозначение англ: 92
Статус:действует
Название рус.:Нормы годности к эксплуатации гражданских аэродромов
Дата добавления в базу:01.09.2013
Дата актуализации:05.05.2017
Область применения:НГЭА СССР содержат государственные требования безопасности полетов к гражданским аэродромам. НГЭА СССР являются обязательными для всех министерств, государственных комитетов, ведомств, предприятий, учреждений и организаций, участвующих в создании (строительстве), испытании, серийном производстве, приемке, эксплуатации и ремонте гражданских аэродромов, а также их оборудования. Порядок разработки и утверждения таких Норм определяется Советом Министров СССР.
Оглавление:1. Основные термины и определения
2. Классификация аэродромов и взлетно-посадочных полос с искусственным покрытием
3. Физические характеристики аэродромов
4. Дневная маркировка аэродромных покрытий и препятствий аэродромов
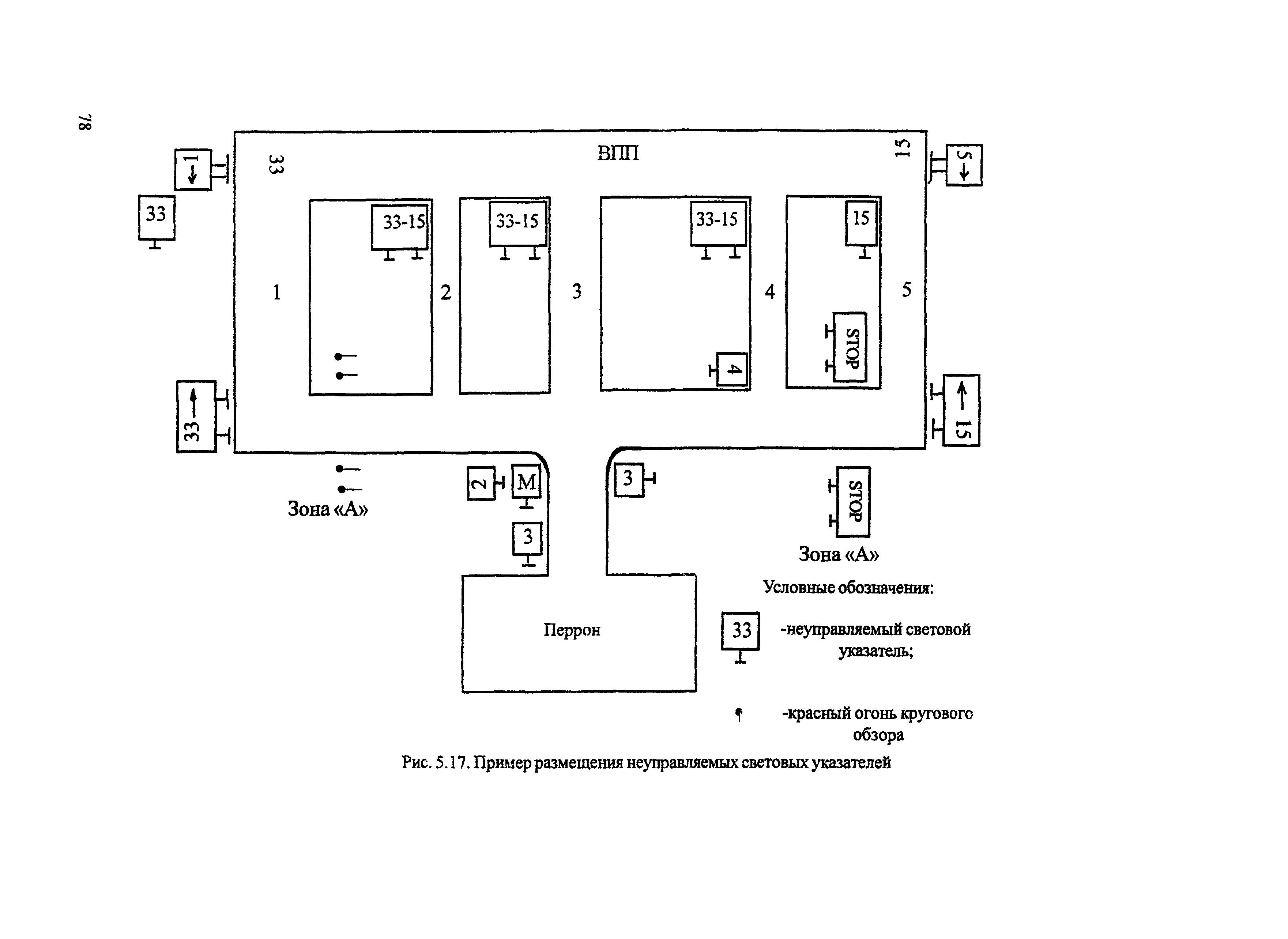
5. Радиосветотехническое оборудование и диспетчерские пункты управления воздушным движением
6. Метеорологическое оборудование
7. Электроснабжение и электрооборудование
8. Аварийно-спасательные средства
Приложение
Проект поправки № 24 к НГЭА
Поправка № 25
Утверждён:29.11.1993 Минтранс России (Russian Federation Mintrans ДВ-156/и)
Расположен в:Техническая документация Строительство Нормативные документы Отраслевые и ведомственные нормативно-методические документы Проектирование и строительство объектов других министерств
НГЭА 92НГЭА 92НГЭА 92НГЭА 92НГЭА 92НГЭА 92НГЭА 92НГЭА 92НГЭА 92НГЭА 92НГЭА 92НГЭА 92НГЭА 92НГЭА 92НГЭА 92НГЭА 92НГЭА 92НГЭА 92НГЭА 92НГЭА 92НГЭА 92НГЭА 92НГЭА 92НГЭА 92НГЭА 92НГЭА 92НГЭА 92НГЭА 92НГЭА 92НГЭА 92НГЭА 92НГЭА 92НГЭА 92НГЭА 92НГЭА 92НГЭА 92НГЭА 92НГЭА 92НГЭА 92НГЭА 92НГЭА 92НГЭА 92НГЭА 92НГЭА 92НГЭА 92НГЭА 92НГЭА 92НГЭА 92НГЭА 92НГЭА 92НГЭА 92НГЭА 92НГЭА 92НГЭА 92НГЭА 92НГЭА 92НГЭА 92НГЭА 92НГЭА 92НГЭА 92НГЭА 92НГЭА 92НГЭА 92НГЭА 92НГЭА 92НГЭА 92НГЭА 92НГЭА 92НГЭА 92НГЭА 92НГЭА 92НГЭА 92НГЭА 92НГЭА 92НГЭА 92НГЭА 92НГЭА 92НГЭА 92НГЭА 92НГЭА 92НГЭА 92НГЭА 92НГЭА 92НГЭА 92НГЭА 92НГЭА 92НГЭА 92НГЭА 92НГЭА 92НГЭА 92НГЭА 92НГЭА 92НГЭА 92НГЭА 92НГЭА 92НГЭА 92НГЭА 92НГЭА 92НГЭА 92НГЭА 92НГЭА 92НГЭА 92НГЭА 92НГЭА 92НГЭА 92НГЭА 92НГЭА 92НГЭА 92НГЭА 92НГЭА 92НГЭА 92НГЭА 92НГЭА 92НГЭА 92НГЭА 92НГЭА 92НГЭА 92НГЭА 92НГЭА 92НГЭА 92НГЭА 92НГЭА 92НГЭА 92НГЭА 92НГЭА 92НГЭА 92НГЭА 92НГЭА 92НГЭА 92НГЭА 92НГЭА 92НГЭА 92НГЭА 92НГЭА 92НГЭА 92НГЭА 92НГЭА 92НГЭА 92

© 2013 Ёшкин Кот :-) Карта сайта