Информационная система
«Ёшкин Кот»

Скачать базу одним архивом
Скачать обновления
История создания базы
Карта сайта

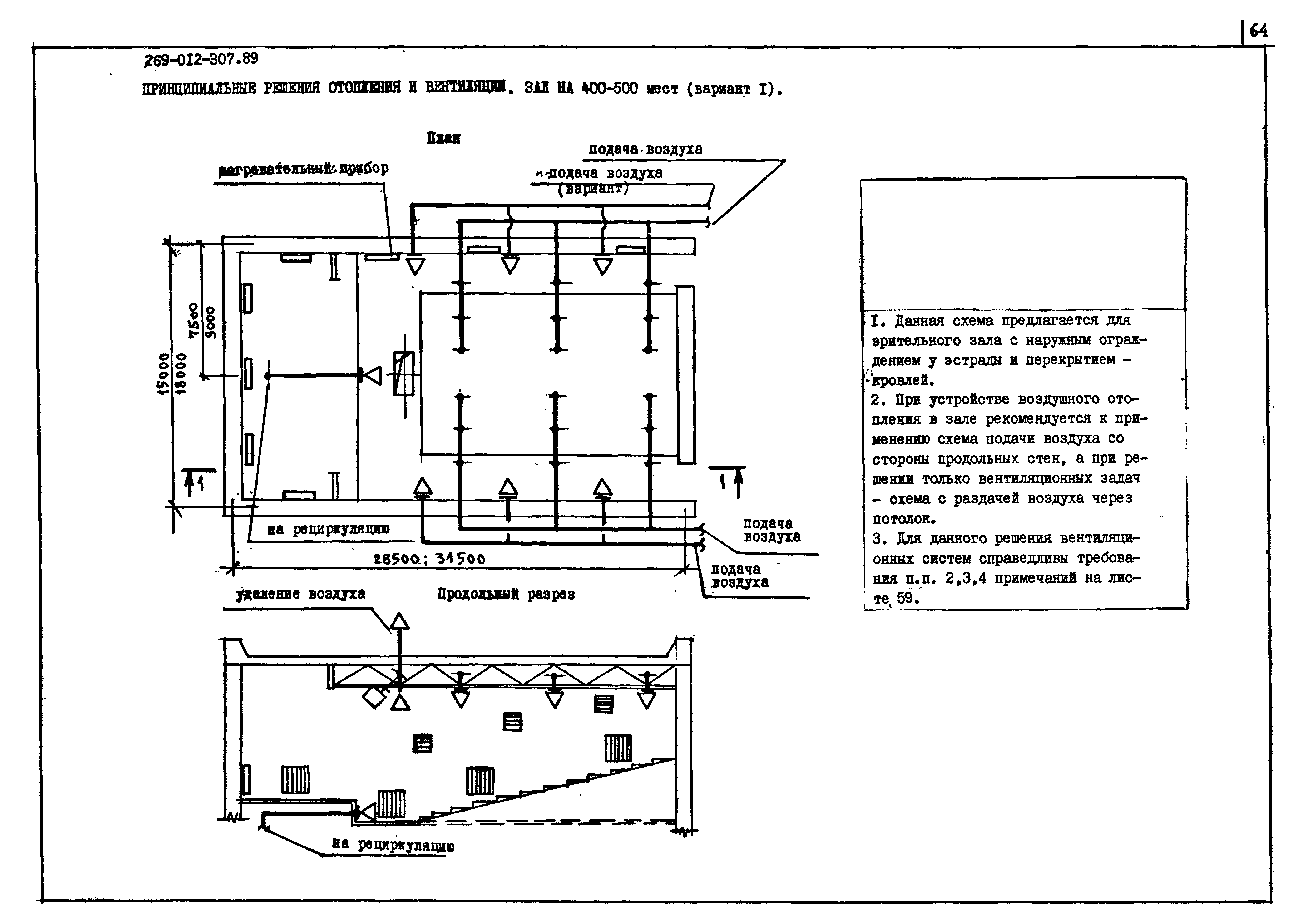
Скачать Типовой проект 269-012-307.89 Альбом типовых технологических решений зрительных залов вместимостью до 500 мест. Клубные залы

Дата актуализации: 10.08.2017

Типовой проект 269-012-307.89

Альбом типовых технологических решений зрительных залов вместимостью до 500 мест. Клубные залы

Обозначение: Типовой проект 269-012-307.89
Обозначение англ: 269-012-307.89
Статус:не определен законодательством
Название рус.:Альбом типовых технологических решений зрительных залов вместимостью до 500 мест. Клубные залы
Дата добавления в базу:01.09.2013
Дата актуализации:05.05.2017
Дата введения:30.06.2003
Разработан: ЦНИИЭП им. Б.С. Мезенцева Госгражданстроя
Утверждён:21.12.1989 Госкомархитектура (242)
Принят:20.10.1989 Министерство культуры СССР (USSR Ministry of Culture 157-05/83)
Расположен в:Техническая документация Строительство Справочные документы Типовые строительные конструкции, изделия и узлы Общероссийский строительный каталог Общественные здания в городах и поселках городского типа Зрелищные и культурно-просветительские учреждения. Здания для органов управления и общественных организаций Зрелищные и культурно-просветительские учреждения Клубы, дома культуры, центры досуга, залы танцевальные, залы игровых автоматов
Типовой проект 269-012-307.89Типовой проект 269-012-307.89Типовой проект 269-012-307.89Типовой проект 269-012-307.89Типовой проект 269-012-307.89Типовой проект 269-012-307.89Типовой проект 269-012-307.89Типовой проект 269-012-307.89Типовой проект 269-012-307.89Типовой проект 269-012-307.89Типовой проект 269-012-307.89Типовой проект 269-012-307.89Типовой проект 269-012-307.89Типовой проект 269-012-307.89Типовой проект 269-012-307.89Типовой проект 269-012-307.89Типовой проект 269-012-307.89Типовой проект 269-012-307.89Типовой проект 269-012-307.89Типовой проект 269-012-307.89Типовой проект 269-012-307.89Типовой проект 269-012-307.89Типовой проект 269-012-307.89Типовой проект 269-012-307.89Типовой проект 269-012-307.89Типовой проект 269-012-307.89Типовой проект 269-012-307.89Типовой проект 269-012-307.89Типовой проект 269-012-307.89Типовой проект 269-012-307.89Типовой проект 269-012-307.89Типовой проект 269-012-307.89Типовой проект 269-012-307.89Типовой проект 269-012-307.89Типовой проект 269-012-307.89Типовой проект 269-012-307.89Типовой проект 269-012-307.89Типовой проект 269-012-307.89Типовой проект 269-012-307.89Типовой проект 269-012-307.89Типовой проект 269-012-307.89Типовой проект 269-012-307.89Типовой проект 269-012-307.89Типовой проект 269-012-307.89Типовой проект 269-012-307.89Типовой проект 269-012-307.89Типовой проект 269-012-307.89Типовой проект 269-012-307.89Типовой проект 269-012-307.89Типовой проект 269-012-307.89Типовой проект 269-012-307.89Типовой проект 269-012-307.89Типовой проект 269-012-307.89Типовой проект 269-012-307.89Типовой проект 269-012-307.89Типовой проект 269-012-307.89Типовой проект 269-012-307.89Типовой проект 269-012-307.89Типовой проект 269-012-307.89Типовой проект 269-012-307.89Типовой проект 269-012-307.89Типовой проект 269-012-307.89Типовой проект 269-012-307.89Типовой проект 269-012-307.89Типовой проект 269-012-307.89

© 2013 Ёшкин Кот :-) Карта сайта