Скачать Типовой проект 320-35 Альбом I. Часть 1. Придомовые сады-палисадники, площадки отдыха населения, хозяйственные площадки. Рабочие чертежиДата актуализации: 10.08.2017 Типовой проект 320-35
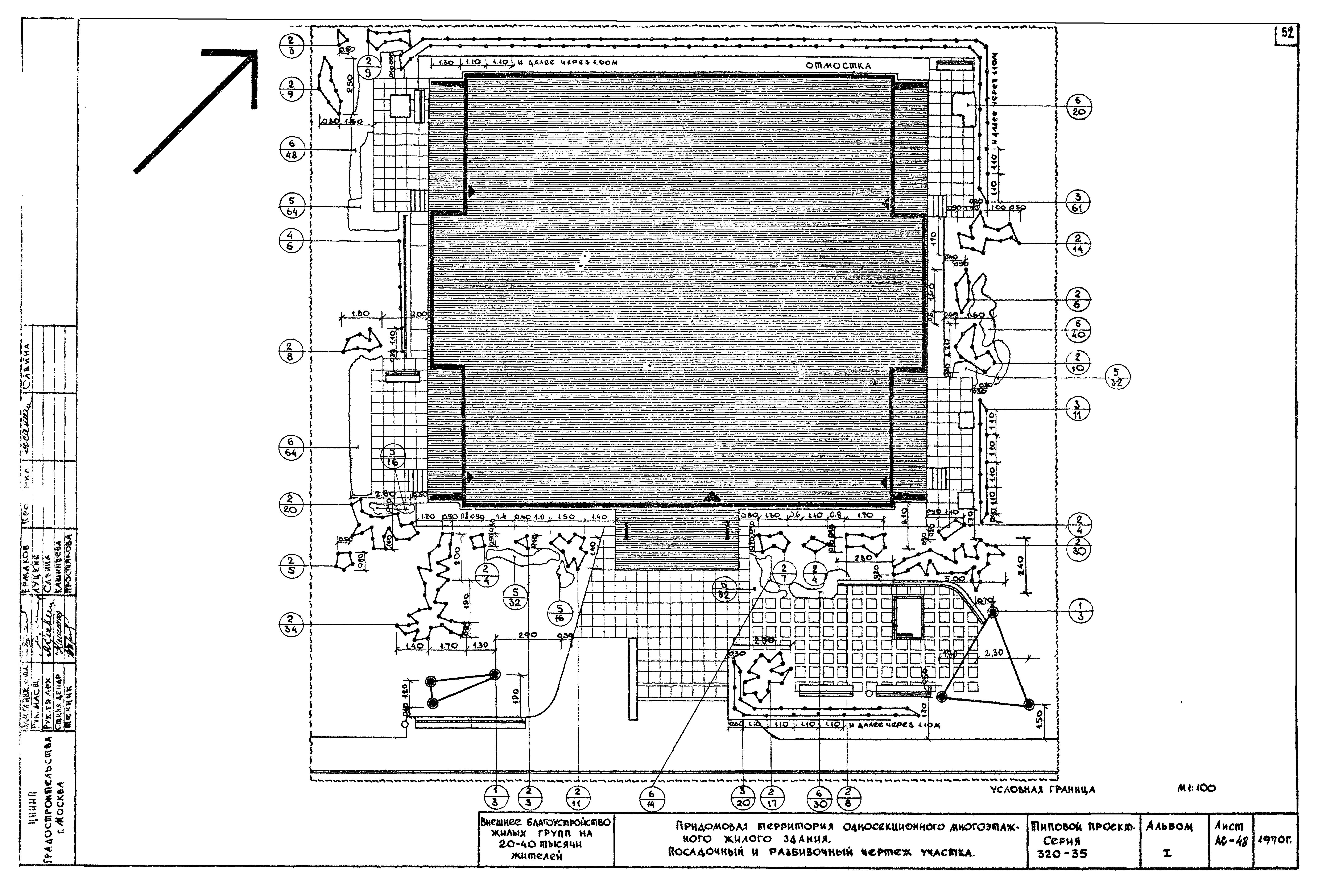
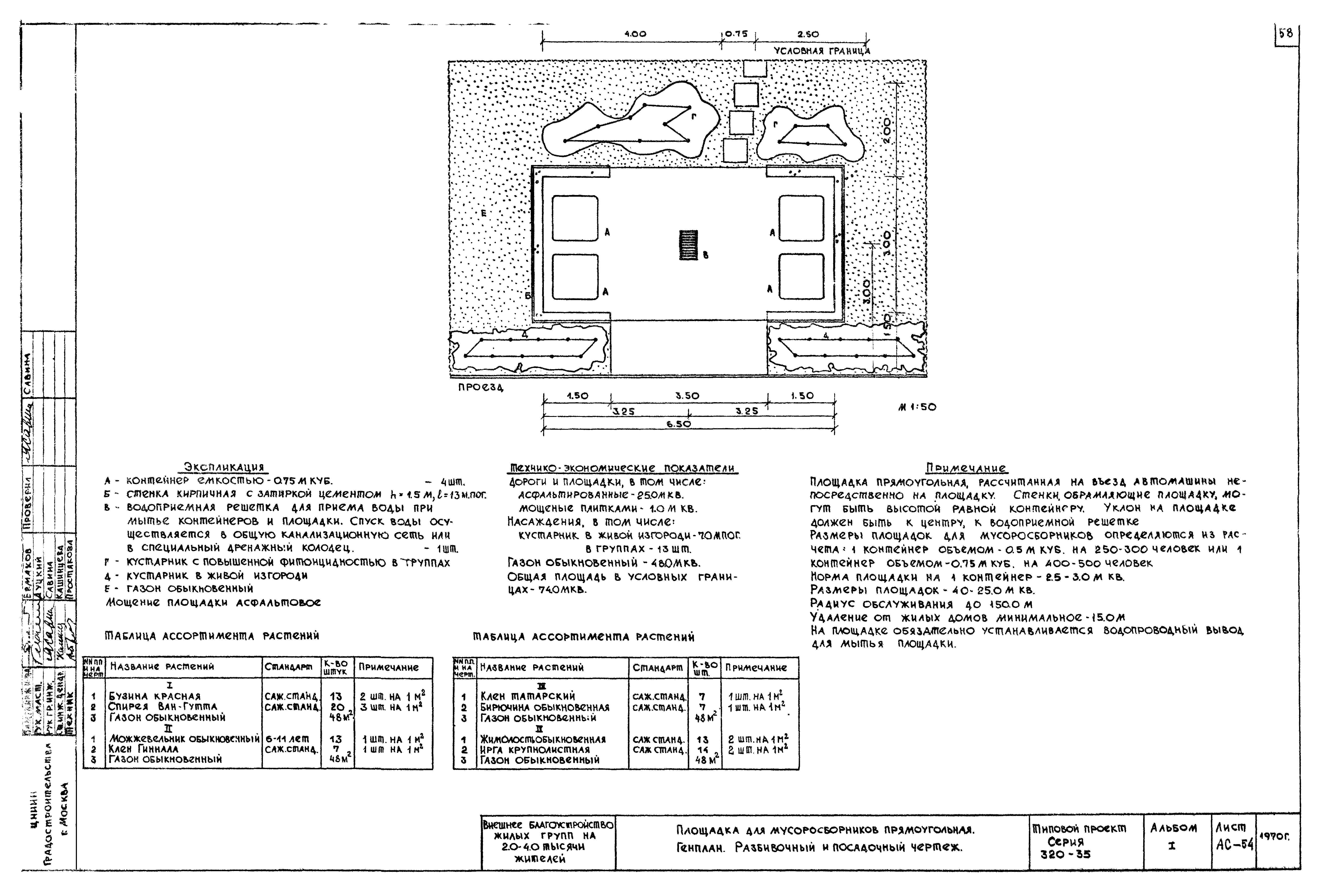
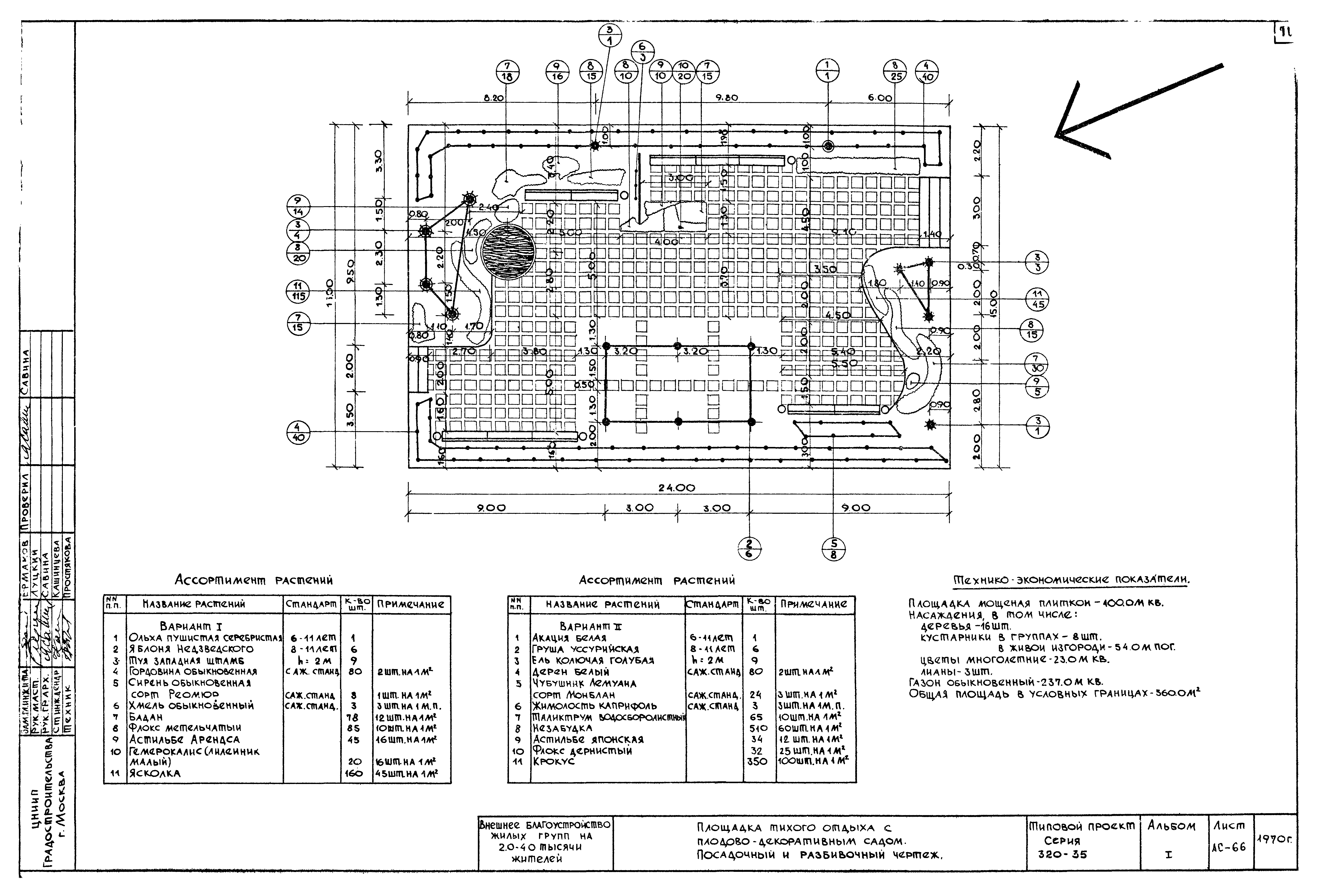
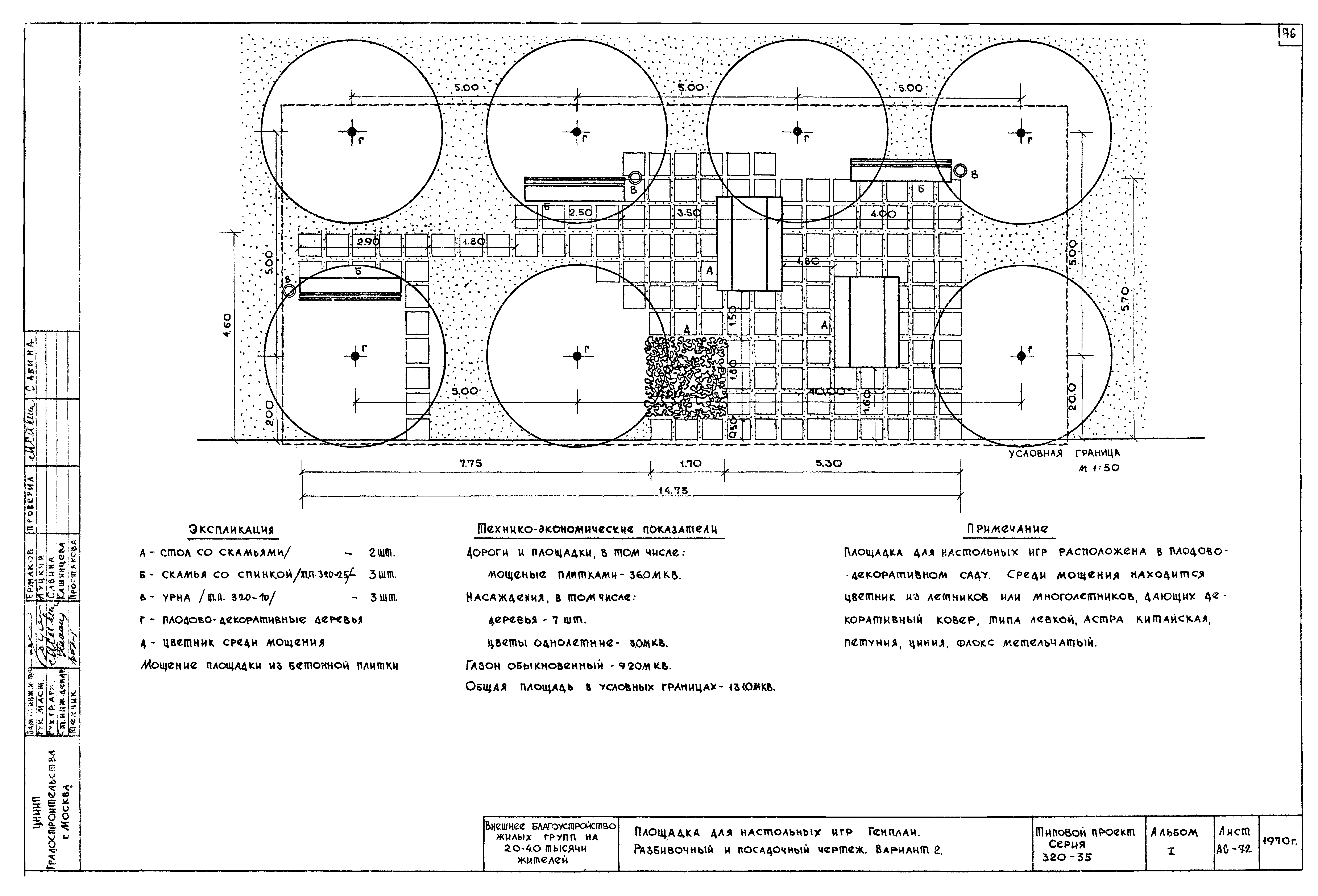
Альбом I. Часть 1. Придомовые сады-палисадники, площадки отдыха населения, хозяйственные площадки. Рабочие чертежиОбозначение: | Типовой проект 320-35 | Обозначение англ: | 320-35 | Статус: | не определен законодательством | Название рус.: | Альбом I. Часть 1. Придомовые сады-палисадники, площадки отдыха населения, хозяйственные площадки. Рабочие чертежи | Дата добавления в базу: | 01.09.2013 | Дата актуализации: | 05.05.2017 | Дата введения: | 08.12.1970 | Оглавление: | 1. Содержание альбома 2. Пояснительная записка. Условные обозначения 3. Палисадник шириной до 3-х метров. Площадки у входа в жилое здание. Генплан. Вариант 1 4. Палисадник шириной до 3-х метров. Площадки у входа в жилое здание. Разбивочный и посадочный чертеж. Вариант 1 5. Палисадник шириной до 3-х метров. Площадки у входа в жилое здание. Генплан. Вариант 2 6. Палисадник шириной до 3-х метров. Площадки у входа в жилое здание. Разбивочный и посадочный чертеж. Вариант 2 7. Палисадник шириной до 3-х метров. Площадки у входа в жилое здание. Генплан. Вариант 3 8. Палисадник шириной до 3-х метров. Площадки у входа в жилое здание. Разбивочный и посадочный чертеж. Вариант 3 9. Палисадник шириной до 3-х метров. Площадки у входа в жилое здание. Генплан. Вариант 4 10. Палисадник шириной до 3-х метров. Площадки у входа в жилое здание. Разбивочный и посадочный чертеж. Вариант 4 11. Палисадник шириной до 3-х метров. Площадки у входа в жилое здание. Генплан. Вариант 5 12. Палисадник шириной до 3-х метров. Площадки у входа в жилое здание. Разбивочный и посадочный чертеж. Вариант 5 13. Палисадник шириной до 3-х метров. Площадки у входа в жилое здание. Генплан. Вариант 6 14. Палисадник шириной до 3-х метров. Площадки у входа в жилое здание. Разбивочный и посадочный чертеж. Вариант 6 15. Палисадник шириной до 3-х метров. Площадки у входа в жилое здание. Генплан. Вариант 7 16. Палисадник шириной до 3-х метров. Площадки у входа в жилое здание. Разбивочный и посадочный чертеж. Вариант 7 17. Палисадник шириной до 3-х метров. Площадки у входа в жилое здание. Генплан. Вариант 8 18. Палисадник шириной до 3-х метров. Площадки у входа в жилое здание. Разбивочный и посадочный чертеж. Вариант 8 19. Палисадник шириной не более 6-и метров. Площадки у входа в жилое здание. Генплан. Вариант 1 20. Палисадник шириной не более 6-и метров. Площадки у входа в жилое здание. Разбивочный и посадочный чертеж. Вариант 1 21. Палисадник шириной не более 6-и метров. Площадки у входа в жилое здание. Генплан. Вариант 2 22. Палисадник шириной не более 6-и метров. Площадки у входа в жилое здание. Разбивочный и посадочный чертеж. Вариант 2 23. Палисадник шириной не более 6-и метров. Площадки у входа в жилое здание. Генплан. Вариант 3 24. Палисадник шириной не более 6-и метров. Площадки у входа в жилое здание. Разбивочный и посадочный чертеж. Вариант 3 25. Палисадник шириной не более 6-и метров. Площадки у входа в жилое здание. Генплан. Вариант 4 26. Палисадник шириной не более 6-и метров. Площадки у входа в жилое здание. Разбивочный и посадочный чертеж. Вариант 4 27. Палисадник шириной не более 6-и метров. Площадки у входа в жилое здание. Генплан. Вариант 5 28. Палисадник шириной не более 6-и метров. Площадки у входа в жилое здание. Разбивочный и посадочный чертеж. Вариант 5 29. Палисадник шириной не более 6-и метров. Площадки у входа в жилое здание. Генплан. Вариант 6 30. Палисадник шириной не более 6-и метров. Площадки у входа в жилое здание. Разбивочный и посадочный чертеж. Вариант 6 31. Палисадник шириной не более 6-и метров. Площадки у входа в жилое здание. Генплан. Вариант 7 32. Палисадник шириной не более 6-и метров. Площадки у входа в жилое здание. Разбивочный и посадочный чертеж. Вариант 7 33. Палисадник шириной не более 6-и метров. Площадки у входа в жилое здание. Генплан. Вариант 8 34. Палисадник шириной не более 6-и метров. Площадки у входа в жилое здание. Разбивочный и посадочный чертеж. Вариант 8 35. Палисадник шириной не более 6-и метров. Площадки у входа в жилое здание. Генплан. Вариант 9 36. Палисадник шириной не более 6-и метров. Площадки у входа в жилое здание. Разбивочный и посадочный чертеж. Вариант 9 37. Палисадник шириной 10-ть и более метров. Площадки у входа в жилое здание. Генплан. Вариант 1 38. Палисадник шириной 10-ть и более метров. Площадки у входа в жилое здание. Разбивочный и посадочный чертеж. Вариант 1 39. Палисадник шириной 10-ть и более метров. Площадки у входа в жилое здание. Генплан. Вариант 2 40. Палисадник шириной 10-ть и более метров. Площадки у входа в жилое здание. Разбивочный и посадочный чертеж. Вариант 2 41. Палисадник шириной 10-ть и более метров. Площадки у входа в жилое здание. Генплан. Вариант 3 42. Палисадник шириной 10-ть и более метров. Площадки у входа в жилое здание. Разбивочный и посадочный чертеж. Вариант 3 43. Палисадник шириной 10-ть и более метров. Площадки у входа в жилое здание. Генплан. Вариант 4 44. Палисадник шириной 10-ть и более метров. Площадки у входа в жилое здание. Разбивочный и посадочный чертеж. Вариант 4 45. Палисадник на уклоне шириной менее 8-ми метров. Площадки у входа в жилое здание. Генплан. Сечения 46. Палисадник на уклоне шириной менее 8-ми метров. Площадки у входа в жилое здание. Разбивочный и посадочный чертеж 47. Палисадник на уклоне шириной более 8-ми метров. Площадки у входа в жилое здание. Генплан. Сечения 48. Палисадник на уклоне шириной более 8-ми метров. Площадки у входа в жилое здание. Разбивочный и посадочный чертеж 49. Придомовая территория односекционного многоэтажного жилого здания. Генплан участка 50. Придомовая территория односекционного многоэтажного жилого здания. Разбивочный и посадочный чертеж участка 51. Придомовая территория односекционного многоэтажного жилого здания. Сводный лист таблиц 52. Придомовая территория спаренных односекционных многоэтажных жилых зданий. Генплан участка 53. Придомовая территория спаренных односекционных многоэтажных жилых зданий. Разбивочный и посадочный чертеж участка 54. Придомовая территория спаренных односекционных многоэтажных жилых зданий. Сводный лист таблиц 55. Площадка для мусоросборников круглая. Генплан. Разбивочный и посадочный чертеж 56. Площадка для мусоросборников прямоугольная. Генплан. Разбивочный и посадочный чертеж 57. Площадка с оборудованием для сушки белья. Генплан. Разбивочный и посадочный чертеж. Вариант 1 58. Площадка с оборудованием для сушки белья. Генплан. Разбивочный и посадочный чертеж. Вариант 2 59. Площадка с оборудованием для чистки ковров. Генплан. Разбивочный и посадочный чертеж. Вариант 1 60. Площадка с оборудованием для чистки ковров. Генплан. Разбивочный и посадочный чертеж. Вариант 2 61. Площадка тихого отдыха. Генплан. Разбивочный и посадочный чертеж. Вариант 1 62. Площадка тихого отдыха. Генплан. Разбивочный и посадочный чертеж. Вариант 2 63. Площадка тихого отдыха из типовых элементов. Генплан. Разбивочный и посадочный чертеж. Варианты 1, 2 64. Площадка тихого отдыха с розарием. Генплан 65. Площадка тихого отдыха с розарием. Посадочный и разбивочный чертеж 66. Площадка тихого отдыха с розарием. Сводный лист таблиц 67. Площадка тихого отдыха с плодово-декоративным садом. Генплан 68. Площадка тихого отдыха с плодово-декоративным садом. Посадочный и разбивочный чертеж 69. Обзорно-ландшафтная площадка с местами для тихого отдыха. Генплан 70. Обзорно-ландшафтная площадка с местами для тихого отдыха. Разбивочный чертеж. Посадочный чертеж кустарниковых насаждений 71. Обзорно-ландшафтная площадка с местами для тихого отдыха. Разбивочный чертеж. Посадочный чертеж цветов многолетников 72. Обзорно-ландшафтная площадка с местами для тихого отдыха. Сводный лист таблиц 73. Площадка для настольных игр. Генплан. Разбивочный и посадочный чертеж. Вариант 1 74. Площадка для настольных игр. Генплан. Разбивочный и посадочный чертеж. Вариант 2 75. Комплексная площадка отдыха. Генплан. Вариант 1 76. Комплексная площадка отдыха. Посадочный и разбивочный чертеж. Вариант 1 77. Комплексная площадка отдыха. Сводный лист таблиц. Вариант 1 78. Комплексная площадка отдыха. Генплан. Вариант 2 79. Комплексная площадка отдыха. Посадочный и разбивочный чертеж. Вариант 2 80. Комплексная площадка отдыха. Генплан. Вариант 3 81. Комплексная площадка отдыха. Посадочный и разбивочный чертеж. Вариант 3 82. Комплексная площадка отдыха. Сводный лист таблиц. Вариант 3 | Разработан: | ЦНИИП градостроительства
| Утверждён: | 08.12.1970 ЦНИИП градостроительства Госгражданстроя (346)
| Расположен в: |
|
                                                                                    
|