Информационная система
«Ёшкин Кот»

Скачать базу одним архивом
Скачать обновления
История создания базы
Карта сайта

Скачать Типовой проект 501-0-51 Типовые решения переустройства малых мостов и труб

Дата актуализации: 10.08.2017

Типовой проект 501-0-51

Типовые решения переустройства малых мостов и труб

Обозначение: Типовой проект 501-0-51
Обозначение англ: 501-0-51
Статус:не действует
Название рус.:Типовые решения переустройства малых мостов и труб
Дата добавления в базу:01.09.2013
Дата актуализации:05.05.2017
Дата введения:01.05.1975
Дата окончания срока действия:01.04.1983
Область применения:В настоящем проекте разработаны типовые решения основных видов работ по переустройству малых мостов и труб при их капитальном ремонте и реконструкции пути
Оглавление:501-0-51 Указания по применению типовых решений
501-0-51 Малые мосты
501-0-51 Железобетонные пролетные строения
501-0-51 Подъемка пути
501-0-51 Ремонт гидроизоляции
501-0-51 Металлические пролетные строения
501-0-51 Устройство опорных столиков
501-0-51 Устройство раздельных тротуаров
501-0-51 Опоры
501-0-51 Подъемка пути
501-0-51 Цементация кладки
501-0-51 Торкретирование кладки
501-0-51 Железобетонные оболочки
501-0-51 Железобетонные каркасы
501-0-51 Перекладка тела опор
501-0-51 Строительство новых опор
501-0-51 Сопряжение мостов с подходами
501-0-51 Удлинение устоев
501-0-51 Подпорные стенки
501-0-51 Замена грунтов за устоями
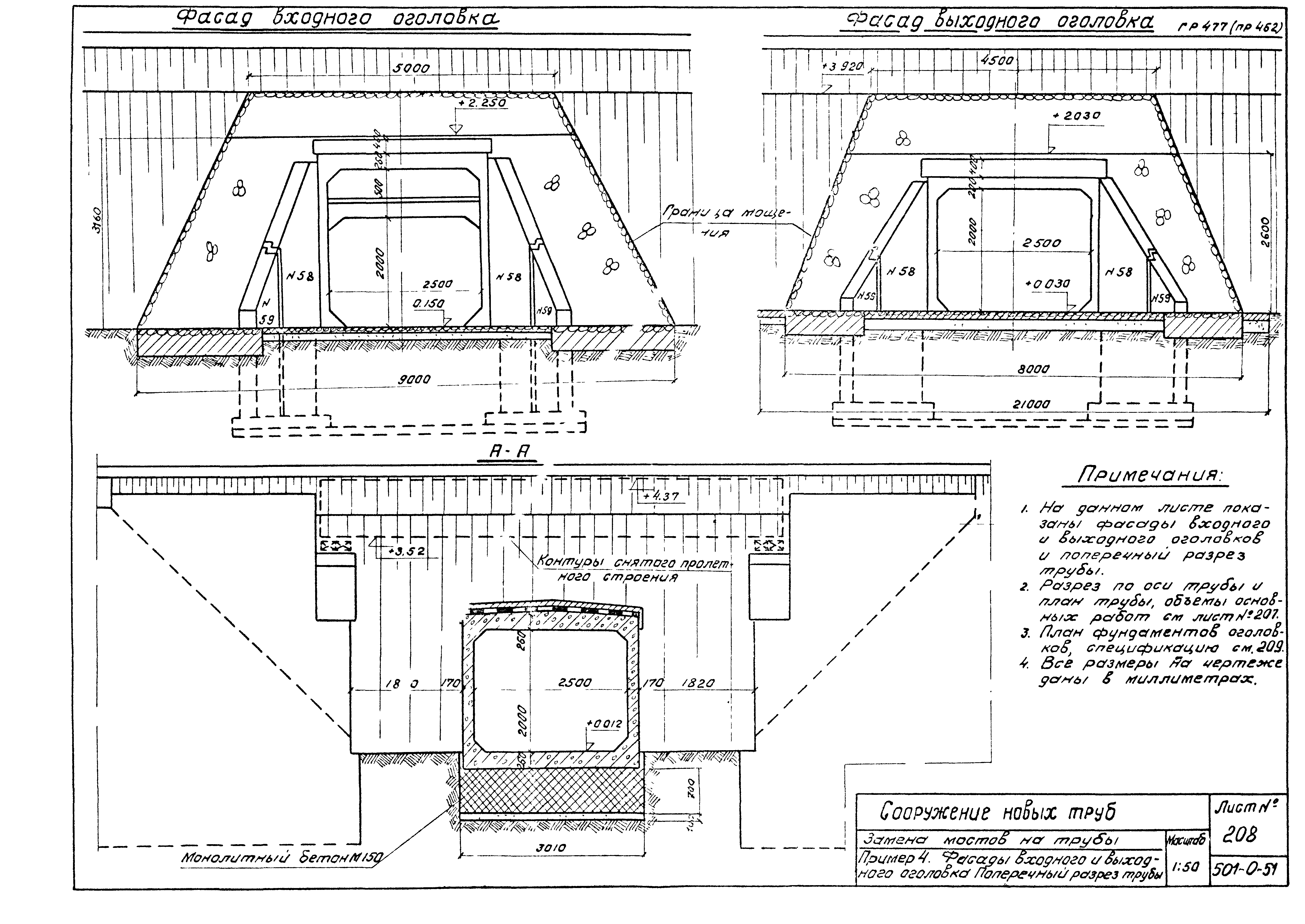
501-0-51 Трубы
501-0-51 Капитальный ремонт труб
501-0-51 Сооружение новых труб
501-0-51 Пакетные пролетные строения и временные опоры
501-0-51 Обследование мостов и труб
501-0-51 Подробный перечень проектных материалов типовых решений
Разработан: Гипротранспуть
Утверждён:01.05.1975 Гипротранспуть
Расположен в:Техническая документация Строительство Справочные документы Типовые строительные конструкции, изделия и узлы Общероссийский строительный каталог Строительные конструкции, изделия и узлы зданий и сооружений для всех видов строительства Конструкции и изделия сооружений и оборудования зданий Надземные сооружения Конструкции и сооружения транспорта Дорожные водопропускные и водоотводные сооружения
Чем заменён:
Типовой проект 501-0-51Типовой проект 501-0-51Типовой проект 501-0-51Типовой проект 501-0-51Типовой проект 501-0-51Типовой проект 501-0-51Типовой проект 501-0-51Типовой проект 501-0-51Типовой проект 501-0-51Типовой проект 501-0-51Типовой проект 501-0-51Типовой проект 501-0-51Типовой проект 501-0-51Типовой проект 501-0-51Типовой проект 501-0-51Типовой проект 501-0-51Типовой проект 501-0-51Типовой проект 501-0-51Типовой проект 501-0-51Типовой проект 501-0-51Типовой проект 501-0-51Типовой проект 501-0-51Типовой проект 501-0-51Типовой проект 501-0-51Типовой проект 501-0-51Типовой проект 501-0-51Типовой проект 501-0-51Типовой проект 501-0-51Типовой проект 501-0-51Типовой проект 501-0-51Типовой проект 501-0-51Типовой проект 501-0-51Типовой проект 501-0-51Типовой проект 501-0-51Типовой проект 501-0-51Типовой проект 501-0-51Типовой проект 501-0-51Типовой проект 501-0-51Типовой проект 501-0-51Типовой проект 501-0-51Типовой проект 501-0-51Типовой проект 501-0-51Типовой проект 501-0-51Типовой проект 501-0-51Типовой проект 501-0-51Типовой проект 501-0-51Типовой проект 501-0-51Типовой проект 501-0-51Типовой проект 501-0-51Типовой проект 501-0-51Типовой проект 501-0-51Типовой проект 501-0-51Типовой проект 501-0-51Типовой проект 501-0-51Типовой проект 501-0-51Типовой проект 501-0-51Типовой проект 501-0-51Типовой проект 501-0-51Типовой проект 501-0-51Типовой проект 501-0-51Типовой проект 501-0-51Типовой проект 501-0-51Типовой проект 501-0-51Типовой проект 501-0-51Типовой проект 501-0-51Типовой проект 501-0-51Типовой проект 501-0-51Типовой проект 501-0-51Типовой проект 501-0-51Типовой проект 501-0-51Типовой проект 501-0-51Типовой проект 501-0-51Типовой проект 501-0-51Типовой проект 501-0-51Типовой проект 501-0-51Типовой проект 501-0-51Типовой проект 501-0-51Типовой проект 501-0-51Типовой проект 501-0-51Типовой проект 501-0-51Типовой проект 501-0-51Типовой проект 501-0-51Типовой проект 501-0-51Типовой проект 501-0-51Типовой проект 501-0-51Типовой проект 501-0-51Типовой проект 501-0-51Типовой проект 501-0-51Типовой проект 501-0-51Типовой проект 501-0-51Типовой проект 501-0-51Типовой проект 501-0-51Типовой проект 501-0-51Типовой проект 501-0-51Типовой проект 501-0-51Типовой проект 501-0-51Типовой проект 501-0-51Типовой проект 501-0-51Типовой проект 501-0-51Типовой проект 501-0-51Типовой проект 501-0-51Типовой проект 501-0-51Типовой проект 501-0-51Типовой проект 501-0-51Типовой проект 501-0-51Типовой проект 501-0-51Типовой проект 501-0-51Типовой проект 501-0-51Типовой проект 501-0-51Типовой проект 501-0-51Типовой проект 501-0-51Типовой проект 501-0-51Типовой проект 501-0-51Типовой проект 501-0-51Типовой проект 501-0-51Типовой проект 501-0-51Типовой проект 501-0-51Типовой проект 501-0-51Типовой проект 501-0-51Типовой проект 501-0-51Типовой проект 501-0-51Типовой проект 501-0-51Типовой проект 501-0-51Типовой проект 501-0-51Типовой проект 501-0-51Типовой проект 501-0-51Типовой проект 501-0-51Типовой проект 501-0-51Типовой проект 501-0-51Типовой проект 501-0-51Типовой проект 501-0-51Типовой проект 501-0-51Типовой проект 501-0-51Типовой проект 501-0-51Типовой проект 501-0-51Типовой проект 501-0-51Типовой проект 501-0-51Типовой проект 501-0-51Типовой проект 501-0-51Типовой проект 501-0-51Типовой проект 501-0-51Типовой проект 501-0-51Типовой проект 501-0-51Типовой проект 501-0-51Типовой проект 501-0-51Типовой проект 501-0-51Типовой проект 501-0-51Типовой проект 501-0-51Типовой проект 501-0-51Типовой проект 501-0-51Типовой проект 501-0-51Типовой проект 501-0-51Типовой проект 501-0-51Типовой проект 501-0-51Типовой проект 501-0-51Типовой проект 501-0-51Типовой проект 501-0-51Типовой проект 501-0-51Типовой проект 501-0-51Типовой проект 501-0-51Типовой проект 501-0-51Типовой проект 501-0-51Типовой проект 501-0-51Типовой проект 501-0-51Типовой проект 501-0-51Типовой проект 501-0-51Типовой проект 501-0-51Типовой проект 501-0-51Типовой проект 501-0-51Типовой проект 501-0-51Типовой проект 501-0-51Типовой проект 501-0-51Типовой проект 501-0-51Типовой проект 501-0-51Типовой проект 501-0-51Типовой проект 501-0-51Типовой проект 501-0-51Типовой проект 501-0-51Типовой проект 501-0-51Типовой проект 501-0-51Типовой проект 501-0-51Типовой проект 501-0-51Типовой проект 501-0-51Типовой проект 501-0-51Типовой проект 501-0-51Типовой проект 501-0-51Типовой проект 501-0-51Типовой проект 501-0-51Типовой проект 501-0-51Типовой проект 501-0-51Типовой проект 501-0-51Типовой проект 501-0-51Типовой проект 501-0-51Типовой проект 501-0-51Типовой проект 501-0-51Типовой проект 501-0-51Типовой проект 501-0-51Типовой проект 501-0-51Типовой проект 501-0-51Типовой проект 501-0-51Типовой проект 501-0-51Типовой проект 501-0-51Типовой проект 501-0-51Типовой проект 501-0-51Типовой проект 501-0-51Типовой проект 501-0-51Типовой проект 501-0-51Типовой проект 501-0-51Типовой проект 501-0-51Типовой проект 501-0-51Типовой проект 501-0-51Типовой проект 501-0-51Типовой проект 501-0-51Типовой проект 501-0-51Типовой проект 501-0-51Типовой проект 501-0-51Типовой проект 501-0-51Типовой проект 501-0-51Типовой проект 501-0-51Типовой проект 501-0-51Типовой проект 501-0-51Типовой проект 501-0-51Типовой проект 501-0-51Типовой проект 501-0-51Типовой проект 501-0-51Типовой проект 501-0-51Типовой проект 501-0-51Типовой проект 501-0-51Типовой проект 501-0-51Типовой проект 501-0-51Типовой проект 501-0-51Типовой проект 501-0-51Типовой проект 501-0-51Типовой проект 501-0-51Типовой проект 501-0-51Типовой проект 501-0-51Типовой проект 501-0-51Типовой проект 501-0-51Типовой проект 501-0-51Типовой проект 501-0-51Типовой проект 501-0-51Типовой проект 501-0-51Типовой проект 501-0-51Типовой проект 501-0-51Типовой проект 501-0-51Типовой проект 501-0-51Типовой проект 501-0-51Типовой проект 501-0-51Типовой проект 501-0-51Типовой проект 501-0-51Типовой проект 501-0-51Типовой проект 501-0-51Типовой проект 501-0-51Типовой проект 501-0-51Типовой проект 501-0-51Типовой проект 501-0-51Типовой проект 501-0-51Типовой проект 501-0-51Типовой проект 501-0-51Типовой проект 501-0-51Типовой проект 501-0-51Типовой проект 501-0-51Типовой проект 501-0-51Типовой проект 501-0-51Типовой проект 501-0-51

© 2013 Ёшкин Кот :-) Карта сайта