Информационная система
«Ёшкин Кот»

Скачать базу одним архивом
Скачать обновления
История создания базы
Карта сайта

Скачать Альбом СК 3201-86 Камеры на тепловых сетях для разводящих и магистральных трубопроводов Ду <= 1200 мм из укрупненных и объемных железобетонных элементов. Строительная часть. Рабочие чертежи

Дата актуализации: 10.08.2017

Альбом СК 3201-86

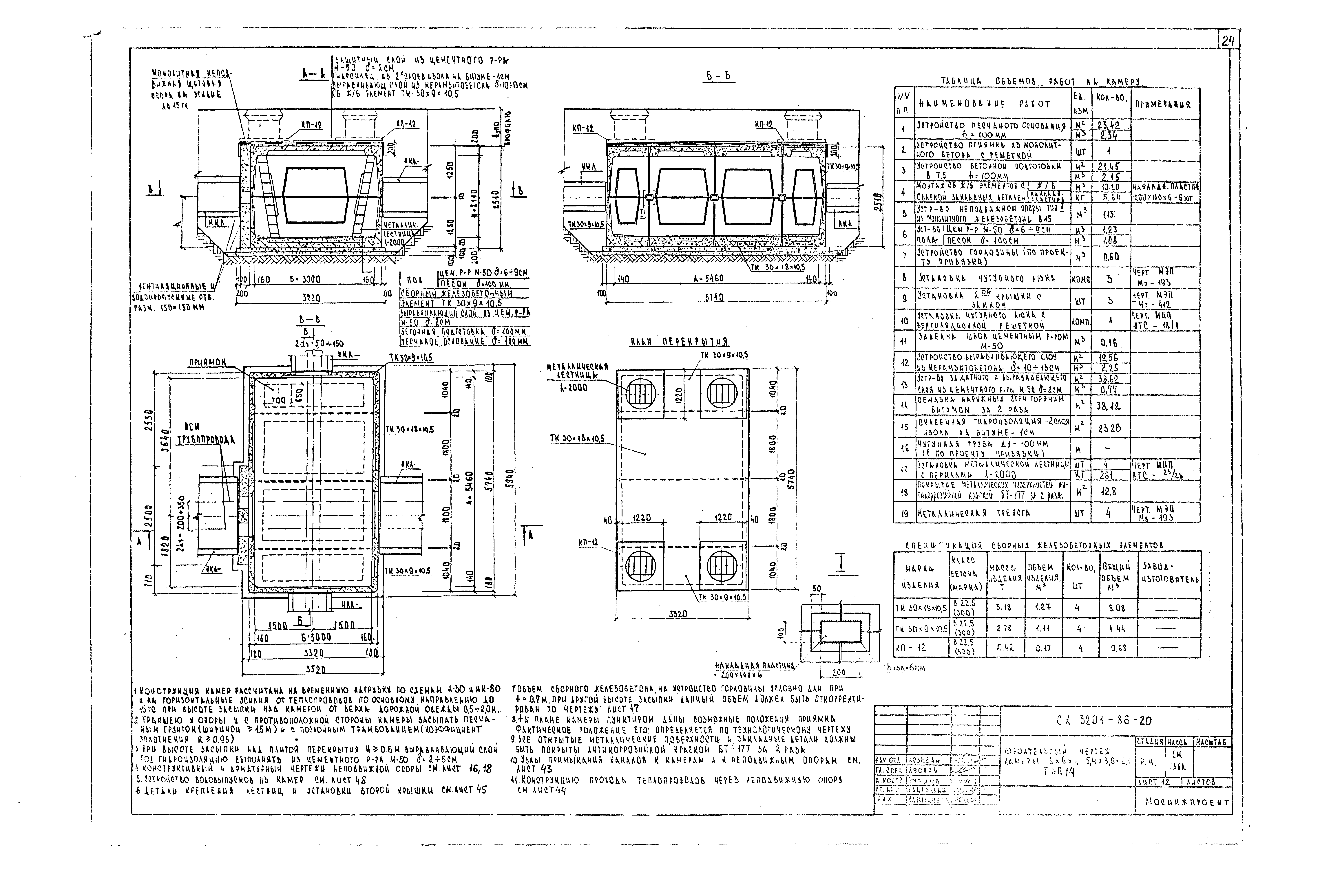
Камеры на тепловых сетях для разводящих и магистральных трубопроводов Ду <= 1200 мм из укрупненных и объемных железобетонных элементов. Строительная часть. Рабочие чертежи

Обозначение: Альбом СК 3201-86
Обозначение англ: СК 3201-86
Статус:не определен законодательством
Название рус.:Камеры на тепловых сетях для разводящих и магистральных трубопроводов Ду <= 1200 мм из укрупненных и объемных железобетонных элементов. Строительная часть. Рабочие чертежи
Дата добавления в базу:01.09.2013
Дата актуализации:05.05.2017
Дата введения:01.01.1986
Область применения:В настоящем альбоме представлены рабочие чертежи строительной части наиболее часто повторяющихся камер тепловых сетей при диаметрах основных трубопроводов Ду меньше или равно 1200 мм
Разработан: Мосинжпроект
Утверждён:01.01.1986 Мосинжпроект (Mosinzhproject )
Расположен в:Техническая документация Строительство Справочные документы Типовые строительные конструкции, изделия и узлы Разработанные другими министерствами, ведомствами и организациями
Альбом СК 3201-86Альбом СК 3201-86Альбом СК 3201-86Альбом СК 3201-86Альбом СК 3201-86Альбом СК 3201-86Альбом СК 3201-86Альбом СК 3201-86Альбом СК 3201-86Альбом СК 3201-86Альбом СК 3201-86Альбом СК 3201-86Альбом СК 3201-86Альбом СК 3201-86Альбом СК 3201-86Альбом СК 3201-86Альбом СК 3201-86Альбом СК 3201-86Альбом СК 3201-86Альбом СК 3201-86Альбом СК 3201-86Альбом СК 3201-86Альбом СК 3201-86Альбом СК 3201-86Альбом СК 3201-86Альбом СК 3201-86Альбом СК 3201-86Альбом СК 3201-86Альбом СК 3201-86Альбом СК 3201-86Альбом СК 3201-86Альбом СК 3201-86Альбом СК 3201-86Альбом СК 3201-86Альбом СК 3201-86Альбом СК 3201-86Альбом СК 3201-86Альбом СК 3201-86Альбом СК 3201-86Альбом СК 3201-86Альбом СК 3201-86Альбом СК 3201-86Альбом СК 3201-86Альбом СК 3201-86Альбом СК 3201-86Альбом СК 3201-86Альбом СК 3201-86Альбом СК 3201-86Альбом СК 3201-86Альбом СК 3201-86Альбом СК 3201-86Альбом СК 3201-86Альбом СК 3201-86Альбом СК 3201-86Альбом СК 3201-86Альбом СК 3201-86Альбом СК 3201-86Альбом СК 3201-86Альбом СК 3201-86Альбом СК 3201-86

© 2013 Ёшкин Кот :-) Карта сайта