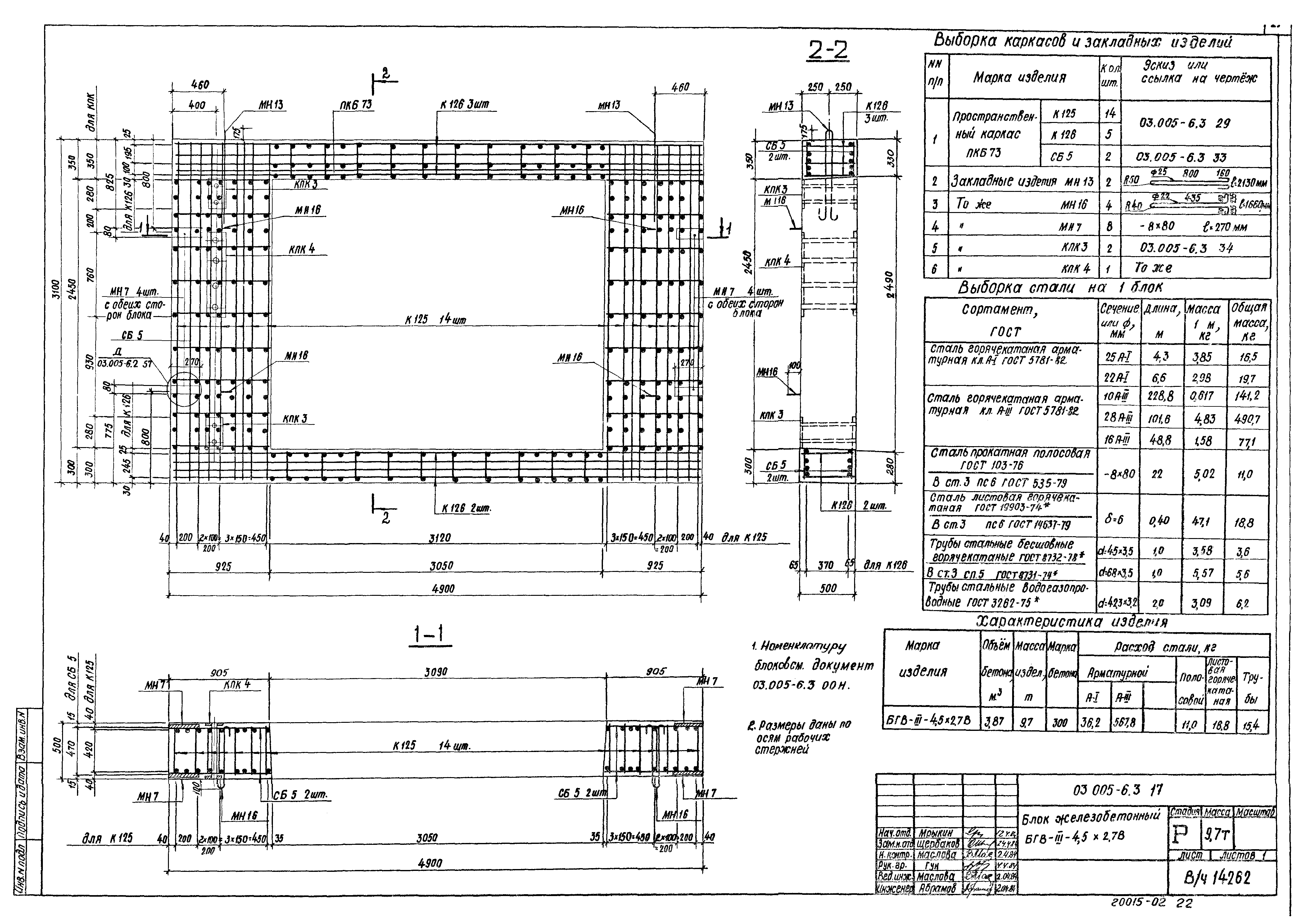
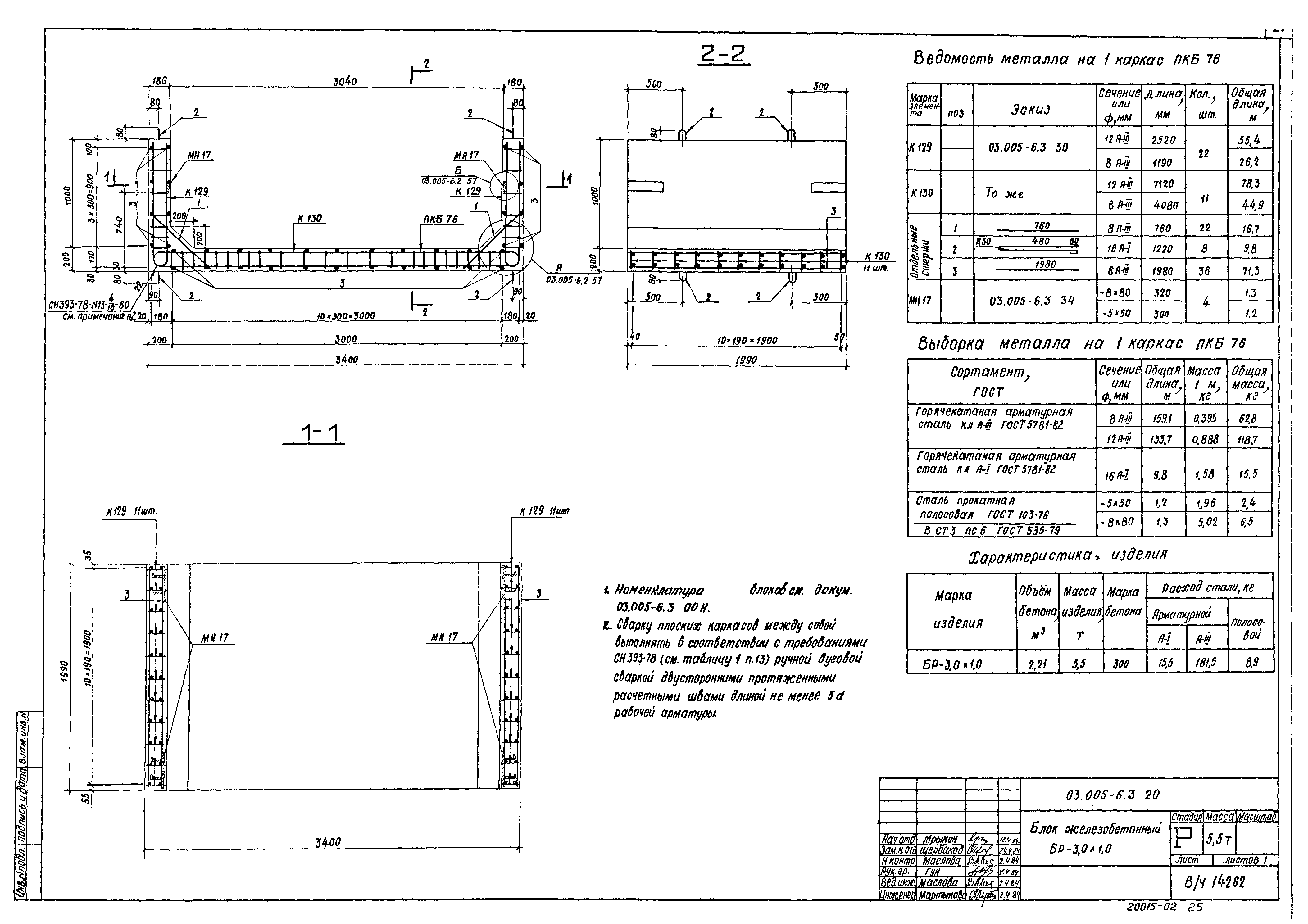
Скачать Серия 03.005-6 Выпуск 3. Сборные железобетонные блоки аварийных и эвакуационных выходов, подходных галерей, грузовых въездов и рамп. Рабочие чертежиДата актуализации: 10.08.2017 Серия 03.005-6
Выпуск 3. Сборные железобетонные блоки аварийных и эвакуационных выходов, подходных галерей, грузовых въездов и рамп. Рабочие чертежиОбозначение: | Серия 03.005-6 | Обозначение англ: | Series 03.005-6 | Статус: | не определен законодательством | Название рус.: | Выпуск 3. Сборные железобетонные блоки аварийных и эвакуационных выходов, подходных галерей, грузовых въездов и рамп. Рабочие чертежи | Дата добавления в базу: | 01.09.2013 | Дата актуализации: | 05.05.2017 | Дата введения: | 21.02.1984 | Разработан: | В/ч 14262
| Утверждён: | 21.02.1984 Госстрой СССР (Государственный комитет Совета Министров СССР по делам строительства) (USSR Gosstroy ВА-8)
| Расположен в: |
| Заменяет собой: | |
                                    
|