Скачать Альбом СК 6101-97 Часть I. Дорожные конструкции для г. Москвы. Магистральные дороги и улицы. Типовые конструкцииДата актуализации: 10.08.2017 Альбом СК 6101-97
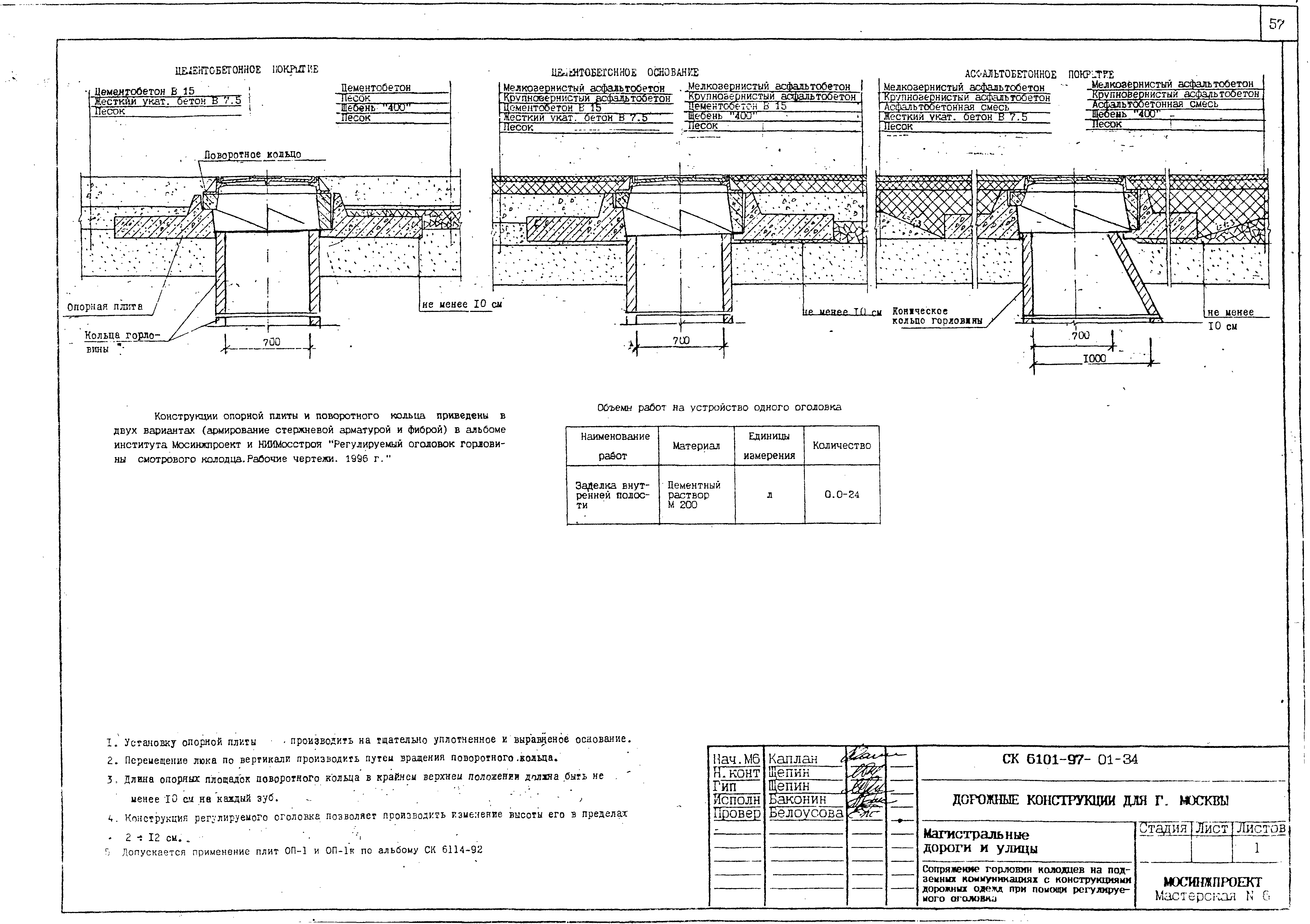
Часть I. Дорожные конструкции для г. Москвы. Магистральные дороги и улицы. Типовые конструкцииОбозначение: | Альбом СК 6101-97 | Обозначение англ: | СК 6101-97 | Статус: | cправочные материалы, мп, тпр | Название рус.: | Часть I. Дорожные конструкции для г. Москвы. Магистральные дороги и улицы. Типовые конструкции | Дата добавления в базу: | 01.09.2013 | Дата актуализации: | 05.05.2017 | Область применения: | В настоящем альбоме, СК 6101-97 часть I, разработаны дорожные конструкции для магистральных дорог и улиц г. Москвы. Дорожные конструкции включают в себя типовые поперечные профили и конструктивные схемы поперечных профилей дорог и улиц, типовые поперечные профили земляного полотна, конструкции крепления откосов земляного полотна, конструкции дорожных одежд с инженерными сооружениями, бортовыми камнями, сопряжений разнотипных дорожных одежд | Разработан: | Мосинжпроект НИИМосстрой Департамента строительства
| Утверждён: | 16.12.1997 Мосинжпроект (Mosinzhproject 26)
| Расположен в: |
|
                                                               
|