Информационная система
«Ёшкин Кот»

Скачать базу одним архивом
Скачать обновления
История создания базы
Карта сайта

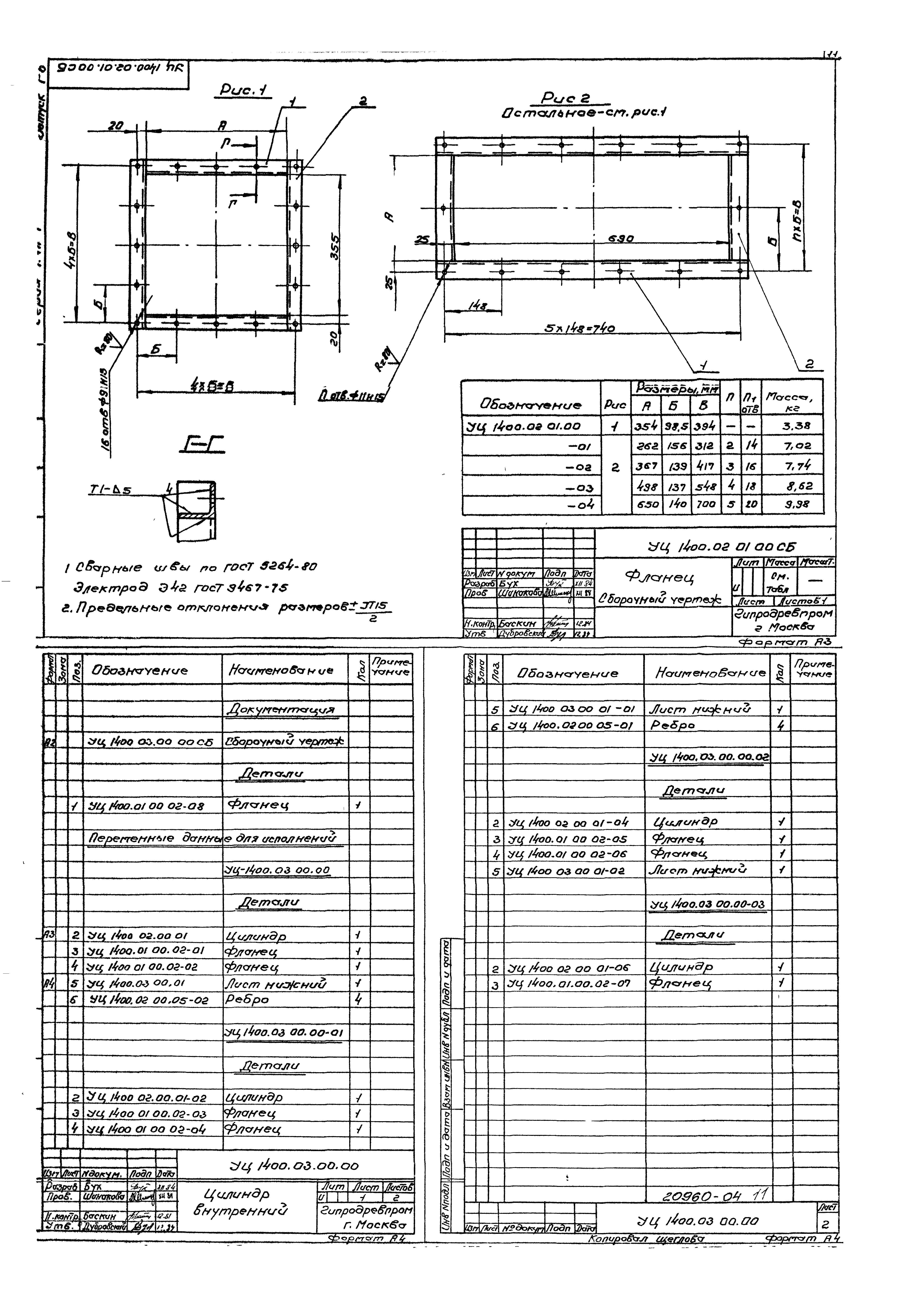
Скачать Серия 7.411-1 Выпуск 1-6. Циклоны УЦ-1400. Рабочие чертежи

Дата актуализации: 10.08.2017

Серия 7.411-1

Выпуск 1-6. Циклоны УЦ-1400. Рабочие чертежи

Обозначение: Серия 7.411-1
Обозначение англ: Series 7.411-1
Статус:не определен законодательством
Название рус.:Выпуск 1-6. Циклоны УЦ-1400. Рабочие чертежи
Дата добавления в базу:01.09.2013
Дата актуализации:05.05.2017
Дата введения:31.07.1986
Разработан: Гипродревпром Минлеспрома СССР
Утверждён:15.07.1985 Минлесбумпром СССР (USSR Minlesbumprom )
Издан: ЦИТП Госстроя СССР (CITP, Gosstroy (USSR) 1988 г. )
Расположен в:Техническая документация Строительство Справочные документы Типовые строительные конструкции, изделия и узлы Общероссийский строительный каталог Строительные конструкции, изделия и узлы зданий и сооружений для всех видов строительства Инженерное оборудование Инженерное оборудование; изделия и узлы инженерного оборудования зданий и сооружений Оборудование производственных зданий
Серия 7.411-1Серия 7.411-1Серия 7.411-1Серия 7.411-1Серия 7.411-1Серия 7.411-1Серия 7.411-1Серия 7.411-1Серия 7.411-1Серия 7.411-1Серия 7.411-1Серия 7.411-1Серия 7.411-1Серия 7.411-1Серия 7.411-1Серия 7.411-1Серия 7.411-1Серия 7.411-1Серия 7.411-1Серия 7.411-1Серия 7.411-1Серия 7.411-1Серия 7.411-1

© 2013 Ёшкин Кот :-) Карта сайта