Информационная система
«Ёшкин Кот»

Скачать базу одним архивом
Скачать обновления
История создания базы
Карта сайта

Скачать Типовой проект 407-3-660.03 Альбом 5. Архитектурно-строительные изделия

Дата актуализации: 10.08.2017

Типовой проект 407-3-660.03

Альбом 5. Архитектурно-строительные изделия

Обозначение: Типовой проект 407-3-660.03
Обозначение англ: 407-3-660.03
Статус:не определен законодательством
Название рус.:Альбом 5. Архитектурно-строительные изделия
Дата добавления в базу:01.09.2013
Дата актуализации:05.05.2017
Дата введения:23.07.2003
Оглавление:ТП 407-3-660.03 АС.И-00 Содержание альбома
ТП 407-3-660.03 АС.И-ТУ Технические условия
ТП 407-3-660.03 АС.И-МК1 Марка МК1
ТП 407-3-660.03 АС.И-МК2 Марка МК2
ТП 407-3-660.03 АС.И-МК3 Марка МК3
ТП 407-3-660.03 АС.И-МС1 Соединительное изделие МС1
ТП 407-3-660.03 АС.И-МС2 Соединительное изделие МС2
ТП 407-3-660.03 АС.И-МС3 Соединительное изделие МС3
ТП 407-3-660.03 АС.И-МН1 Изделие закладное МН1
ТП 407-3-660.03 АС.И-МН2 Изделие закладное МН2
ТП 407-3-660.03 АС.И-ВЖ1 Вентиляционная жалюзийная решетка ВЖ1
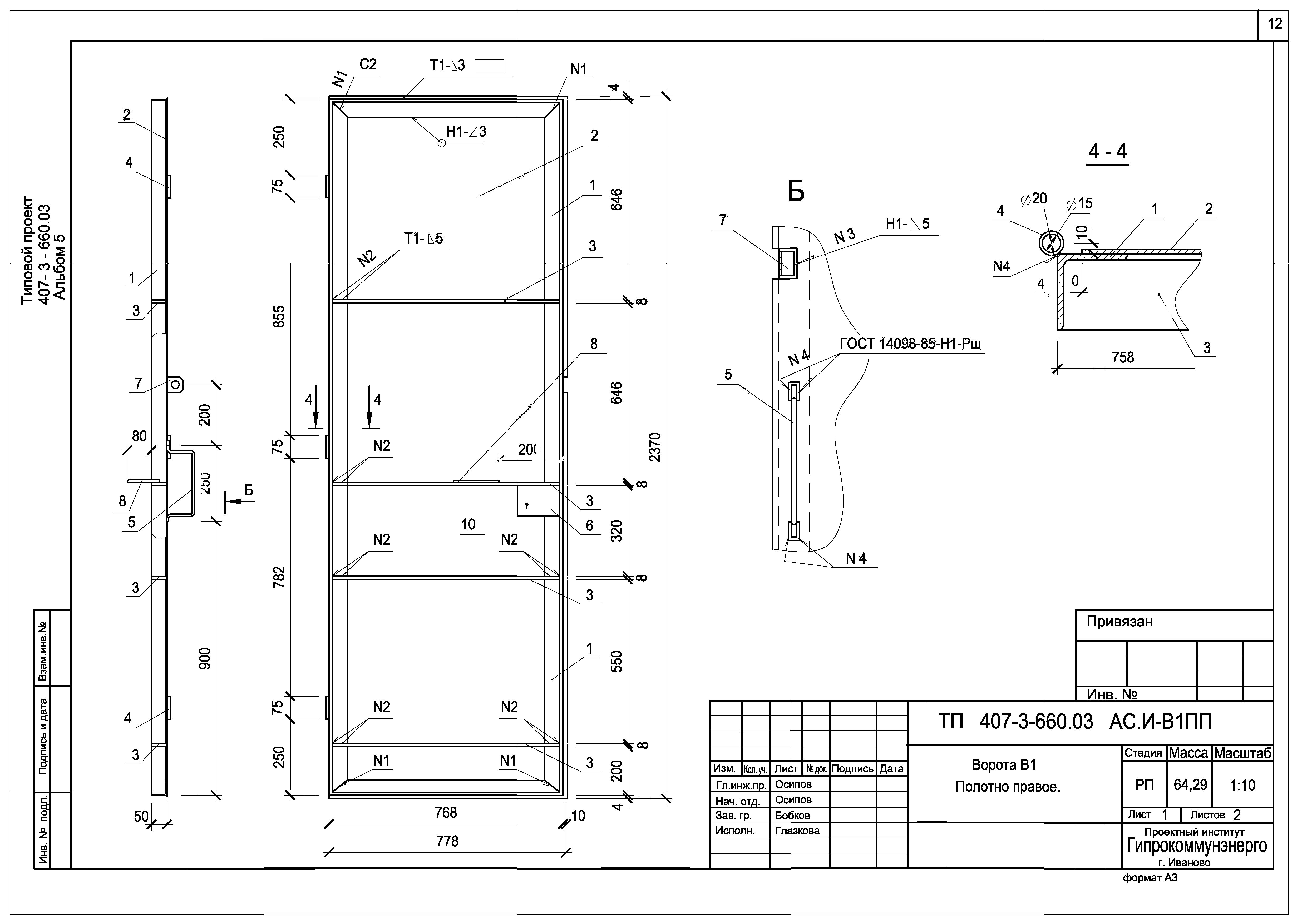
ТП 407-3-660.03 АС.И-В1 Ворота В1. Общий вид
ТП 407-3-660.03 АС.И-В1ПЛ Ворота В1. Полотно левое
ТП 407-3-660.03 АС.И-В1ПП Ворота В1. Полотно правое
ТП 407-3-660.03 АС.И-Д1 Дверной блок Д1. Общий вид
ТП 407-3-660.03 АС.И-Д1ПД Дверной блок Д1. Полотно дверное
Разработан: ОГУП ПИ Гипрокоммунэнерго
Утверждён:23.07.2003 ОАО ПО Элтехника (34)
Расположен в:Техническая документация Строительство Справочные документы Типовые строительные конструкции, изделия и узлы Общероссийский строительный каталог Промышленные предприятия, здания и сооружения Предприятия, здания и сооружения промышленности и электроэнергетики Электроэнергетика Устройства и подстанции распределительные
Типовой проект 407-3-660.03Типовой проект 407-3-660.03Типовой проект 407-3-660.03Типовой проект 407-3-660.03Типовой проект 407-3-660.03Типовой проект 407-3-660.03Типовой проект 407-3-660.03Типовой проект 407-3-660.03Типовой проект 407-3-660.03Типовой проект 407-3-660.03Типовой проект 407-3-660.03Типовой проект 407-3-660.03Типовой проект 407-3-660.03Типовой проект 407-3-660.03Типовой проект 407-3-660.03Типовой проект 407-3-660.03

© 2013 Ёшкин Кот :-) Карта сайта