Информационная система
«Ёшкин Кот»

Скачать базу одним архивом
Скачать обновления
История создания базы
Карта сайта

Скачать Рекомендации 102-04 Рекомендации по бетонированию конструкций с помощью автобетононасоса при транспортировке бетонной смеси автобетоносмесителями

Дата актуализации: 10.08.2017

Рекомендации 102-04

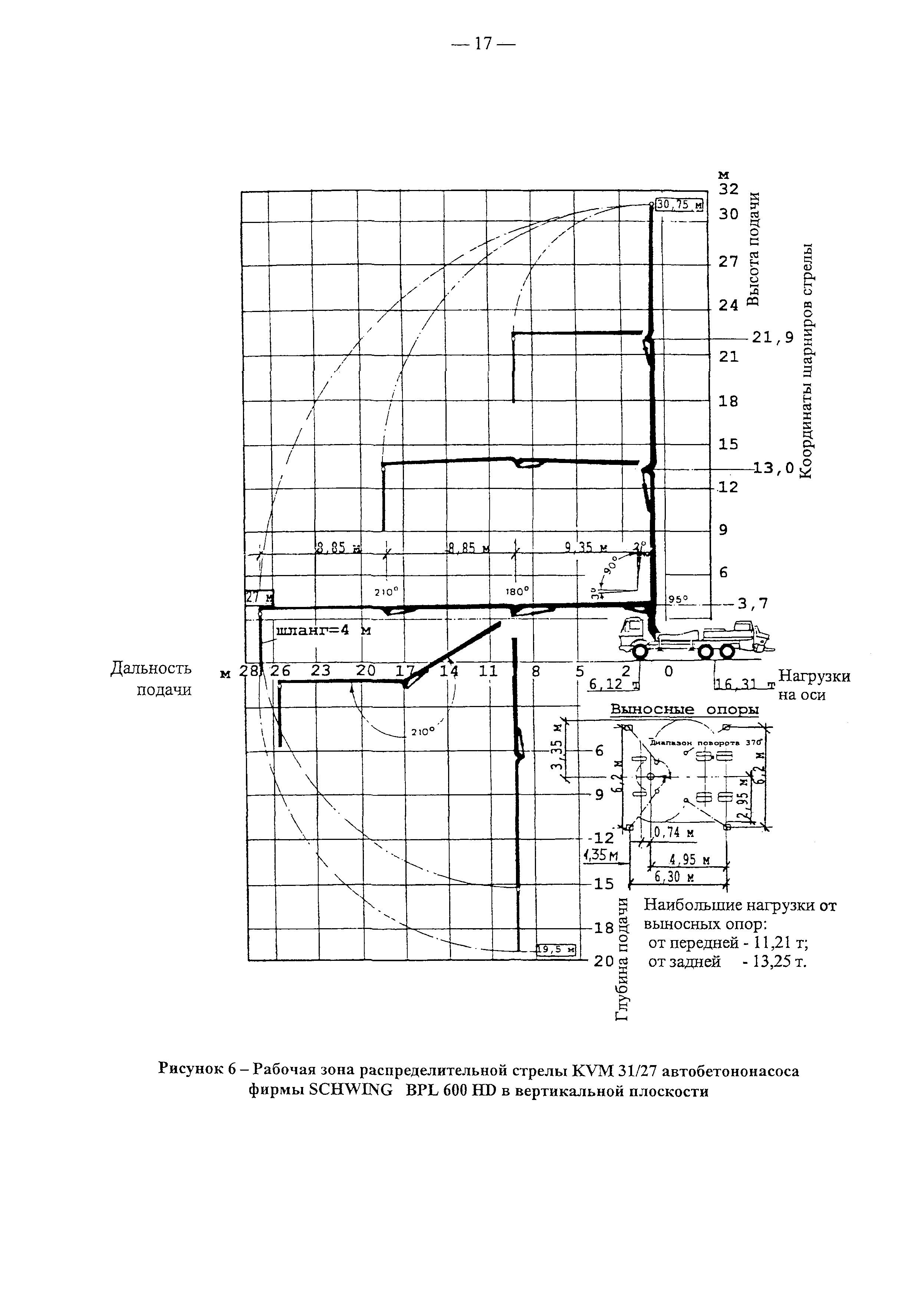
Рекомендации по бетонированию конструкций с помощью автобетононасоса при транспортировке бетонной смеси автобетоносмесителями

Обозначение: Рекомендации 102-04
Обозначение англ: Recommendations 102-04
Статус:действует
Название рус.:Рекомендации по бетонированию конструкций с помощью автобетононасоса при транспортировке бетонной смеси автобетоносмесителями
Дата добавления в базу:01.09.2013
Дата актуализации:05.05.2017
Дата введения:23.12.2004
Область применения:Рекомендации по бетонированию конструкций с помощью автобетононасоса и транспортировкой бетонной смеси автобетоносмесителем предназначены для руководства при разработке ППР и производстве работ по возведению монолитных бетонных и железобетонных конструкций, выполняемых с использованием автобетоносмесителей и автобетононасосов.
Оглавление:1 Общие положения
2 Организационные требования
3 Машины и оборудование
4 Установка автобетононасоса
5 Транспортирование бетонных смесей
6 Требования и рекомендации к материалам и бетонным смесям, перекачиваемым по бетоноводам
7 Требования к автобетононасосам при производстве бетонных работ
8 Использование автобетоносмесителей и автобетононасосов в зимних условиях
9 Разработка проектов производства работ
10 Требования безопасности и охраны труда, экологической и пожарной безопасности
11 Справочно-информационная литература
Разработан: ОАО ПКТИпромстрой
Утверждён:23.12.2004 ОАО ПКТИпромстрой (PKTIpromstroy OAO )
Издан: ОАО ПКТИпромстрой (2004 г. )
Расположен в:Техническая документация Строительство Справочные документы Директивные письма, положения, рекомендации и др.
Нормативные ссылки:
Рекомендации 102-04Рекомендации 102-04Рекомендации 102-04Рекомендации 102-04Рекомендации 102-04Рекомендации 102-04Рекомендации 102-04Рекомендации 102-04Рекомендации 102-04Рекомендации 102-04Рекомендации 102-04Рекомендации 102-04Рекомендации 102-04Рекомендации 102-04Рекомендации 102-04Рекомендации 102-04Рекомендации 102-04Рекомендации 102-04Рекомендации 102-04Рекомендации 102-04Рекомендации 102-04Рекомендации 102-04Рекомендации 102-04Рекомендации 102-04Рекомендации 102-04Рекомендации 102-04Рекомендации 102-04Рекомендации 102-04Рекомендации 102-04Рекомендации 102-04Рекомендации 102-04Рекомендации 102-04Рекомендации 102-04Рекомендации 102-04Рекомендации 102-04Рекомендации 102-04Рекомендации 102-04Рекомендации 102-04Рекомендации 102-04Рекомендации 102-04Рекомендации 102-04Рекомендации 102-04Рекомендации 102-04Рекомендации 102-04Рекомендации 102-04Рекомендации 102-04Рекомендации 102-04Рекомендации 102-04Рекомендации 102-04Рекомендации 102-04Рекомендации 102-04Рекомендации 102-04Рекомендации 102-04Рекомендации 102-04Рекомендации 102-04Рекомендации 102-04

© 2013 Ёшкин Кот :-) Карта сайта