Информационная система
«Ёшкин Кот»

Скачать базу одним архивом
Скачать обновления
История создания базы
Карта сайта

Скачать Технологическая карта Технологическая карта на устройство сооружений гражданской обороны из сборно-монолитных конструкций

Дата актуализации: 10.08.2017

Технологическая карта

Технологическая карта на устройство сооружений гражданской обороны из сборно-монолитных конструкций

Обозначение: Технологическая карта
Статус:не установлен срок действия
Название рус.:Технологическая карта на устройство сооружений гражданской обороны из сборно-монолитных конструкций
Дата добавления в базу:01.09.2013
Дата актуализации:05.05.2017
Дата введения:01.01.1989
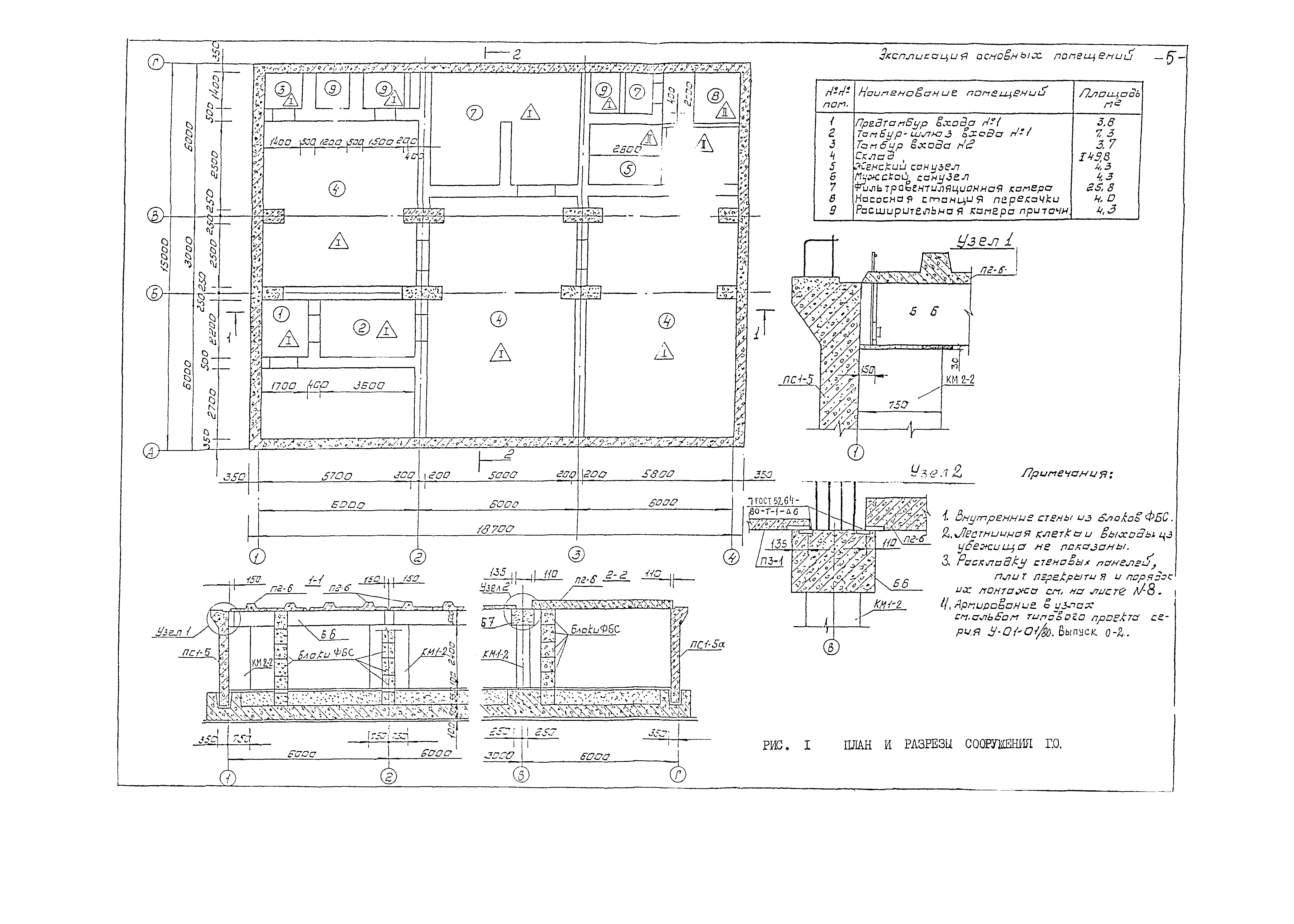
Область применения:Технологическая карта разработана на устройство заглубленных встроенных сооружений гражданской обороны из сборно-монолитных конструкций серии У-01-01/80 в летний период.
Оглавление:1 Область применения
2 Технико-экономические показатели
3 Организация и технология строительного процесса
4 Организация и методы труда рабочих
5 Материально-технические ресурсы
6 Приложения
Разработан: ПКТИ Промстрой
Утверждён:01.01.1989 ОАО ПКТИпромстрой (PKTIpromstroy OAO )
Издан: ОАО ПКТИпромстрой (1989 г. )
Расположен в:Техническая документация Строительство Справочные документы Технологические карты Монтаж бетонных и железобетонных конструкций сборных Устройство бетонных и железобетонных конструкций монолитных
Нормативные ссылки:
Технологическая карта Технологическая карта Технологическая карта Технологическая карта Технологическая карта Технологическая карта Технологическая карта Технологическая карта Технологическая карта Технологическая карта Технологическая карта Технологическая карта Технологическая карта Технологическая карта Технологическая карта Технологическая карта Технологическая карта Технологическая карта Технологическая карта Технологическая карта Технологическая карта Технологическая карта Технологическая карта Технологическая карта Технологическая карта Технологическая карта Технологическая карта Технологическая карта Технологическая карта Технологическая карта Технологическая карта

© 2013 Ёшкин Кот :-) Карта сайта