Скачать Типовые проектные решения 503-7-015.90 Альбом 2. Схемы расположения труб, узлы и деталиДата актуализации: 10.08.2017 Типовые проектные решения 503-7-015.90
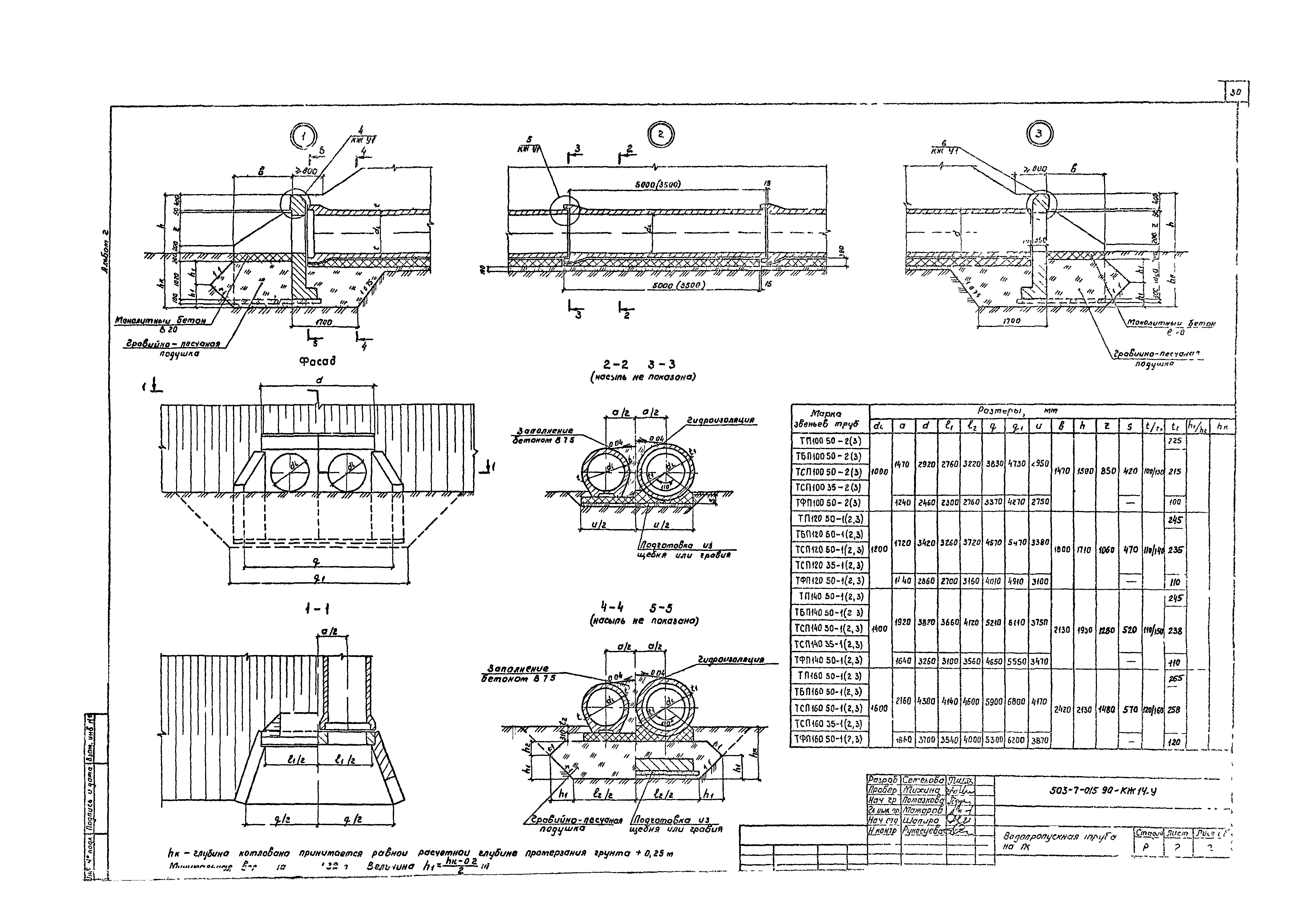
Альбом 2. Схемы расположения труб, узлы и деталиОбозначение: | Типовые проектные решения 503-7-015.90 | Обозначение англ: | 503-7-015.90 | Статус: | cправочные материалы, мп, тпр | Название рус.: | Альбом 2. Схемы расположения труб, узлы и детали | Дата добавления в базу: | 01.09.2013 | Дата актуализации: | 05.05.2017 | Дата введения: | 01.01.1991 | Оглавление: | Содержание 503-7-01590-КЖ1 Схема расположения элементов трубы С-1 503-7-01590-КЖ1 У Узлы У1,2,3 503-7-01590-КЖ2 Схема расположения элементов трубы С-2 503-7-01590-КЖ2 У Узлы У1,2,3 503-7-01590-КЖ3 Схема расположения элементов трубы С-3 503-7-01590-КЖ3 У Узлы У1,2,3 503-7-01590-КЖ4 Схема расположения элементов трубы С-4 503-7-01590-КЖ4 У Узлы У1,2,3 503-7-01590-КЖ5 Схема расположения элементов трубы С-5 503-7-01590-КЖ5 У Узлы У1,2,3 503-7-01590-КЖ6 Схема расположения элементов трубы С-6 503-7-01590-КЖ6 У Узлы У1,2,3 503-7-01590-КЖ7 Схема расположения элементов трубы С-7 503-7-01590-КЖ7 У Узлы У1,2,3 503-7-01590-КЖ8 Схема расположения элементов трубы С-8 503-7-01590-КЖ8 У Узлы У1,2,3 503-7-01590-КЖ9 Схема расположения элементов трубы С-9 503-7-01590-КЖ9 У Узлы У1,2,3 503-7-01590-КЖ10 Схема расположения элементов трубы С-10 503-7-01590-КЖ10 У Узлы У1,2,3 503-7-01590-КЖ11 Схема расположения элементов трубы С-11 503-7-01590-КЖ11 У Узлы У1,2,3 503-7-01590-КЖ12 Схема расположения элементов трубы С-12 503-7-01590-КЖ12 У Узлы У1,2,3 503-7-01590-КЖ13 Схема расположения элементов трубы С-13 503-7-01590-КЖ13 У Узлы У1,2,3 503-7-01590-КЖ14 Схема расположения элементов трубы С-14 503-7-01590-КЖ14 У Узлы У1,2,3 503-7-01590-КЖ15 Схема расположения элементов трубы С-15 503-7-01590-КЖ15 У Узлы У1,2,3 503-7-01590-КЖ16 Схема расположения элементов трубы С-16 503-7-01590-КЖ16 У Узлы У1,2,3 503-7-01590-КЖ17 Схема расположения элементов трубы С-17 503-7-01590-КЖ17 У Узлы У1,2,3 503-7-01590-КЖ18 Схема расположения элементов трубы С-18 503-7-01590-КЖ18 У Узлы У1,2,3 503-7-01590-КЖ У Участки монолитные УМ1,УМ2,УМ3 503-7-01590-КЖ У1 Узлы У4,5,6 | Разработан: | Воронежский филиал ГипродорНИИ
| Утверждён: | 05.04.1990 Министерство автомобильных дорог РСФСР (18)
| Расположен в: |
|
                                       
|