Скачать Типовой проект 901-4-69.83 Альбом II. Материалы для проектирования специальных мероприятий для резервуаров, емкостью от 50 до 20000 куб. м систем хозяйственно-питьевого водоснабжения (из ТП 901-4-63.83)Дата актуализации: 10.08.2017 Типовой проект 901-4-69.83
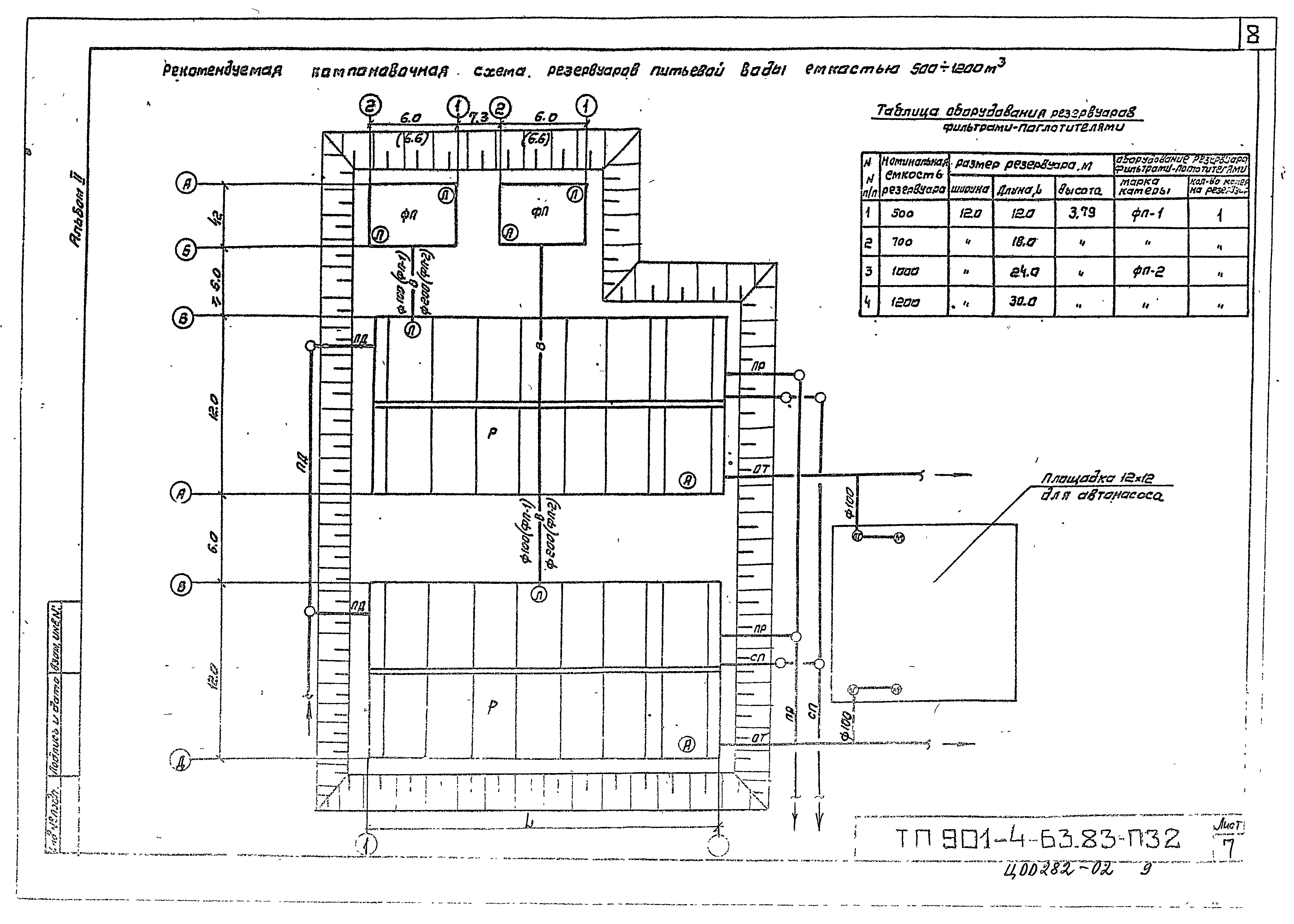
Альбом II. Материалы для проектирования специальных мероприятий для резервуаров, емкостью от 50 до 20000 куб. м систем хозяйственно-питьевого водоснабжения (из ТП 901-4-63.83)Обозначение: | Типовой проект 901-4-69.83 | Обозначение англ: | 901-4-69.83 | Статус: | не определен законодательством | Название рус.: | Альбом II. Материалы для проектирования специальных мероприятий для резервуаров, емкостью от 50 до 20000 куб. м систем хозяйственно-питьевого водоснабжения (из ТП 901-4-63.83) | Дата добавления в базу: | 01.09.2013 | Дата актуализации: | 05.05.2017 | Дата введения: | 13.07.1983 | Разработан: | Союзводоканалниипроект Харьковский водоканалпроект
| Утверждён: | 17.11.1978 Госстрой СССР (Государственный комитет Совета Министров СССР по делам строительства) (USSR Gosstroy 2/3-409)
| Расположен в: |
|
             
|