Информационная система
«Ёшкин Кот»

Скачать базу одним архивом
Скачать обновления
История создания базы
Карта сайта

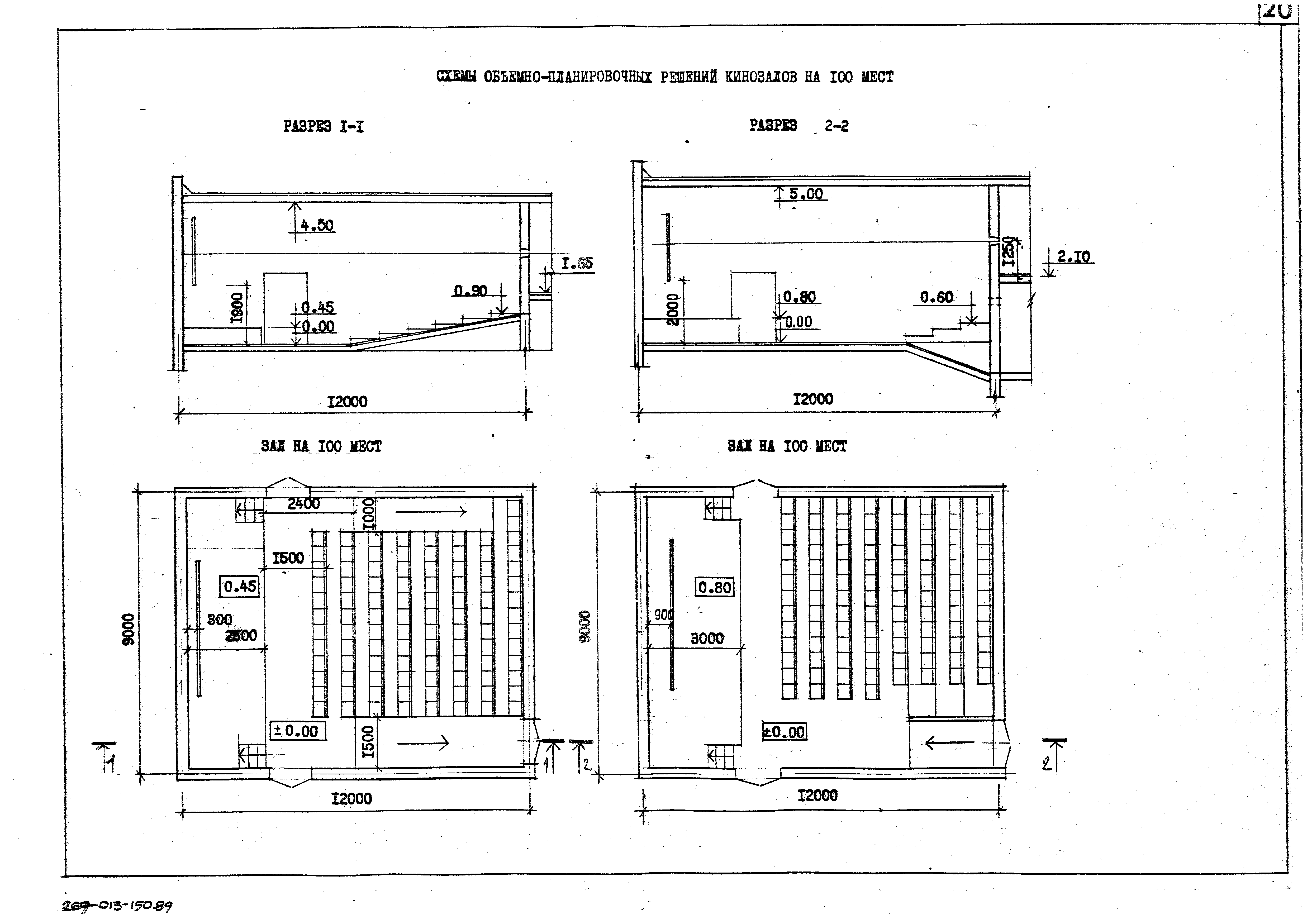
Скачать Типовой проект 269-013-150.89 Альбом типовых технологических решений зрительных залов вместимостью до 500 мест. Выпуск № 1. Кинозалы

Дата актуализации: 10.08.2017

Типовой проект 269-013-150.89

Альбом типовых технологических решений зрительных залов вместимостью до 500 мест. Выпуск № 1. Кинозалы

Обозначение: Типовой проект 269-013-150.89
Обозначение англ: 269-013-150.89
Статус:не определен законодательством
Название рус.:Альбом типовых технологических решений зрительных залов вместимостью до 500 мест. Выпуск № 1. Кинозалы
Дата добавления в базу:01.09.2013
Дата актуализации:05.05.2017
Дата введения:21.12.1989
Область применения:В альбоме представлены зрительные залы различных параметров и вместимостей. Содержание альбома может быть использовано в качестве подсобного и справочного материала при проектировании новых кинотеатров (кинозалов) круглогодичного действия, реконструкции существующих, а также залов универсального назначения, в которых осуществляется периодический показ (актовые и конференц-залы).
Разработан: ЦНИИЭП им. Б.С. Мезенцева Госгражданстроя
Утверждён:21.12.1989 Госкомархитектура (242)
Принят:31.10.1989 Главное управление кинопроката Госкино СССР (3/05-7-2015)
Расположен в:Техническая документация Строительство Справочные документы Типовые строительные конструкции, изделия и узлы Общероссийский строительный каталог Общественные здания в городах и поселках городского типа Зрелищные и культурно-просветительские учреждения. Здания для органов управления и общественных организаций Зрелищные и культурно-просветительские учреждения Кинотеатры
Типовой проект 269-013-150.89Типовой проект 269-013-150.89Типовой проект 269-013-150.89Типовой проект 269-013-150.89Типовой проект 269-013-150.89Типовой проект 269-013-150.89Типовой проект 269-013-150.89Типовой проект 269-013-150.89Типовой проект 269-013-150.89Типовой проект 269-013-150.89Типовой проект 269-013-150.89Типовой проект 269-013-150.89Типовой проект 269-013-150.89Типовой проект 269-013-150.89Типовой проект 269-013-150.89Типовой проект 269-013-150.89Типовой проект 269-013-150.89Типовой проект 269-013-150.89Типовой проект 269-013-150.89Типовой проект 269-013-150.89Типовой проект 269-013-150.89Типовой проект 269-013-150.89Типовой проект 269-013-150.89Типовой проект 269-013-150.89Типовой проект 269-013-150.89Типовой проект 269-013-150.89Типовой проект 269-013-150.89Типовой проект 269-013-150.89Типовой проект 269-013-150.89Типовой проект 269-013-150.89Типовой проект 269-013-150.89Типовой проект 269-013-150.89Типовой проект 269-013-150.89Типовой проект 269-013-150.89Типовой проект 269-013-150.89Типовой проект 269-013-150.89Типовой проект 269-013-150.89Типовой проект 269-013-150.89Типовой проект 269-013-150.89Типовой проект 269-013-150.89Типовой проект 269-013-150.89Типовой проект 269-013-150.89Типовой проект 269-013-150.89Типовой проект 269-013-150.89Типовой проект 269-013-150.89Типовой проект 269-013-150.89Типовой проект 269-013-150.89Типовой проект 269-013-150.89Типовой проект 269-013-150.89Типовой проект 269-013-150.89Типовой проект 269-013-150.89Типовой проект 269-013-150.89Типовой проект 269-013-150.89Типовой проект 269-013-150.89Типовой проект 269-013-150.89Типовой проект 269-013-150.89Типовой проект 269-013-150.89Типовой проект 269-013-150.89Типовой проект 269-013-150.89Типовой проект 269-013-150.89Типовой проект 269-013-150.89Типовой проект 269-013-150.89Типовой проект 269-013-150.89

© 2013 Ёшкин Кот :-) Карта сайта