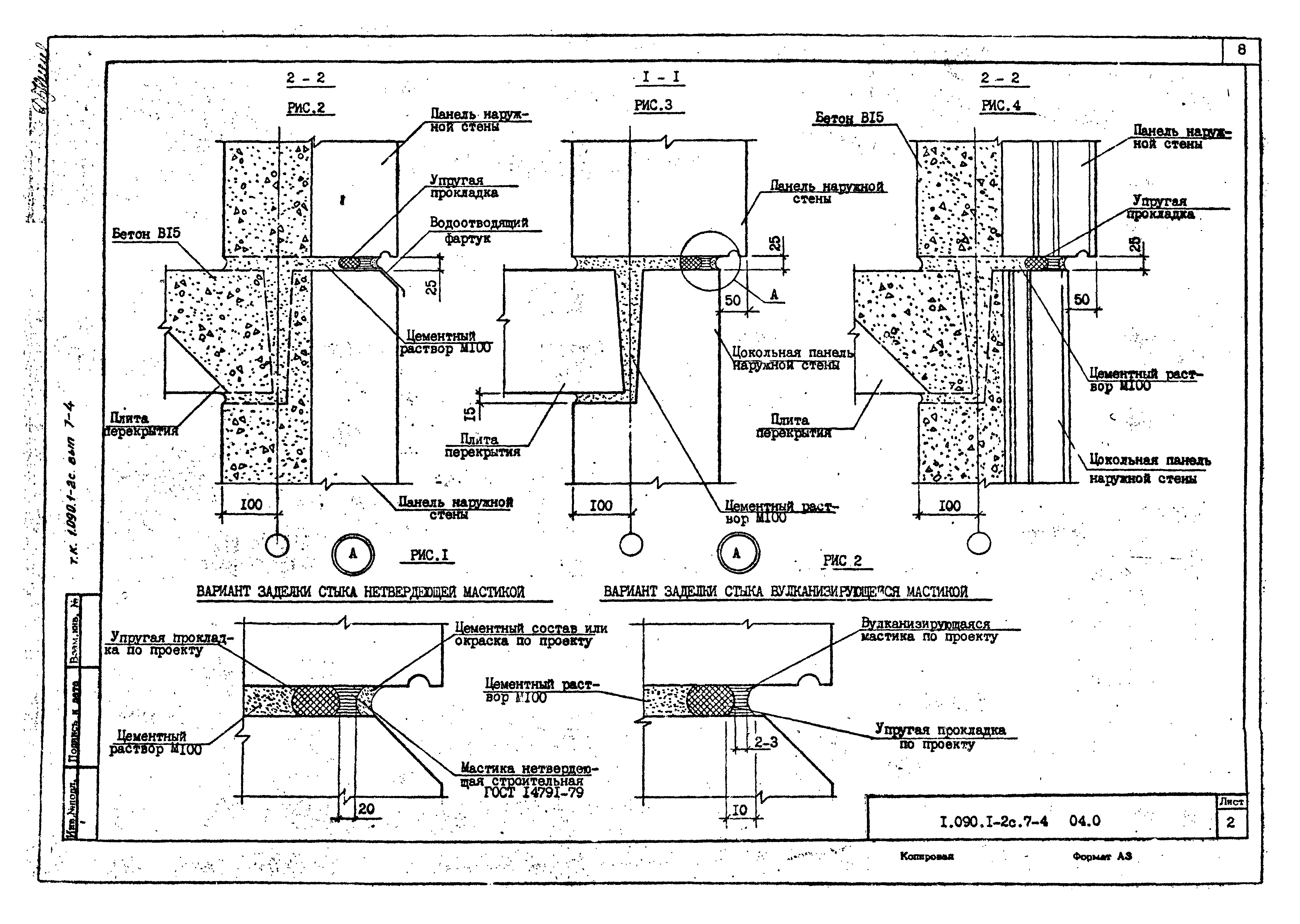
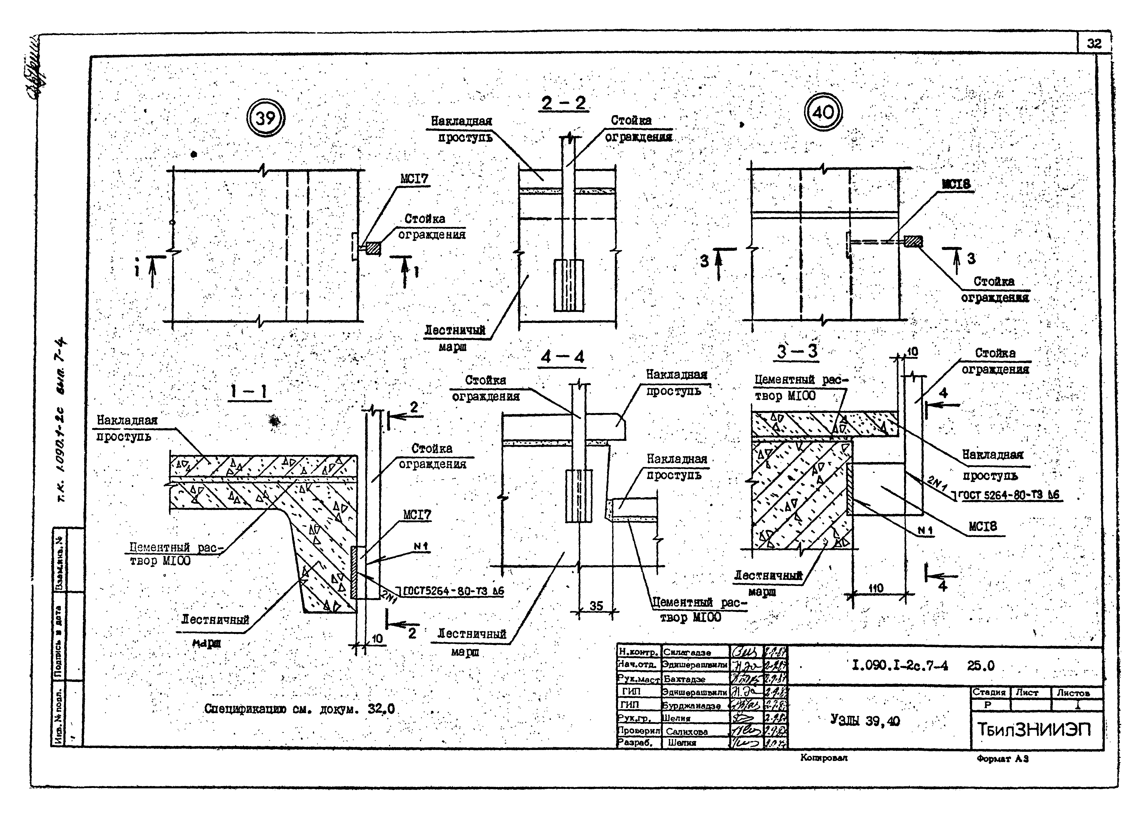
Скачать Серия 1.090.1-2с Выпуск 7-4. Монтажные узлы для применения в районах сейсмичностью 9 баллов. Изделия стальные соединительные. Рабочие чертежиДата актуализации: 10.08.2017 Серия 1.090.1-2с
Выпуск 7-4. Монтажные узлы для применения в районах сейсмичностью 9 баллов. Изделия стальные соединительные. Рабочие чертежи| Обозначение: | Серия 1.090.1-2с | | Обозначение англ: | Series 1.090.1-2с | | Статус: | не действует | | Название рус.: | Выпуск 7-4. Монтажные узлы для применения в районах сейсмичностью 9 баллов. Изделия стальные соединительные. Рабочие чертежи | | Дата добавления в базу: | 01.09.2013 | | Дата актуализации: | 05.05.2017 | | Дата введения: | 01.12.1988 | | Дата окончания срока действия: | 01.04.1991 | | Разработан: | ТбилЗНИИЭП
| | Утверждён: | 31.10.1988 Госкомархитектура (295)
| | Расположен в: |
| | Чем заменён: | |
                                           
|