| ||||||||||||||||||||||||||||||
Скачать Серия 1.090.1-2с Выпуск 4-1. Панели внутренних стен для зданий с высотой этажа 3,3 м. Рабочие чертежиДата актуализации: 10.08.2017
|
| Обозначение: | Серия 1.090.1-2с |
| Обозначение англ: | Series 1.090.1-2с |
| Статус: | не действует |
| Название рус.: | Выпуск 4-1. Панели внутренних стен для зданий с высотой этажа 3,3 м. Рабочие чертежи |
| Дата добавления в базу: | 01.09.2013 |
| Дата актуализации: | 05.05.2017 |
| Дата введения: | 01.01.1985 |
| Дата окончания срока действия: | 01.04.1991 |
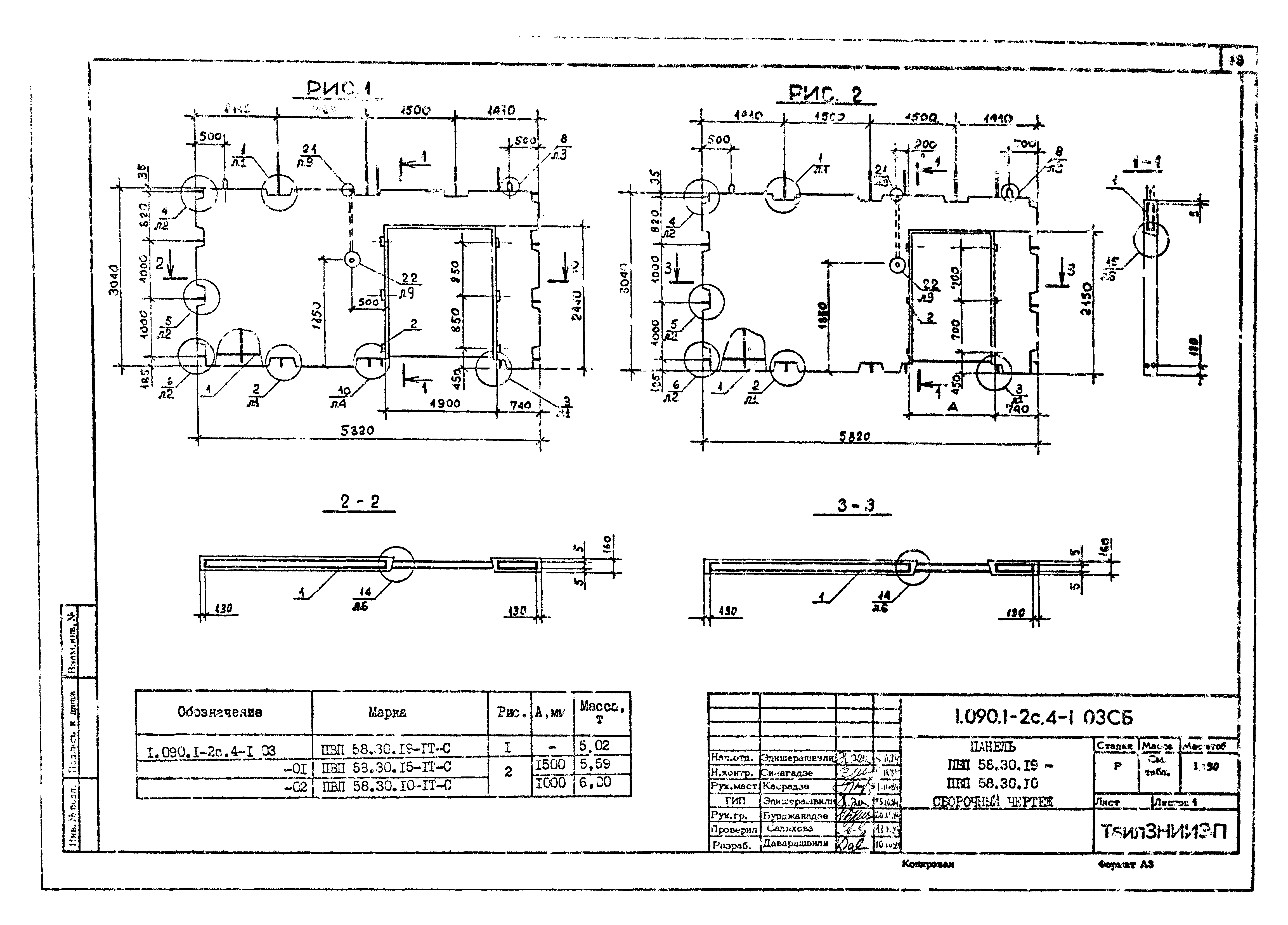
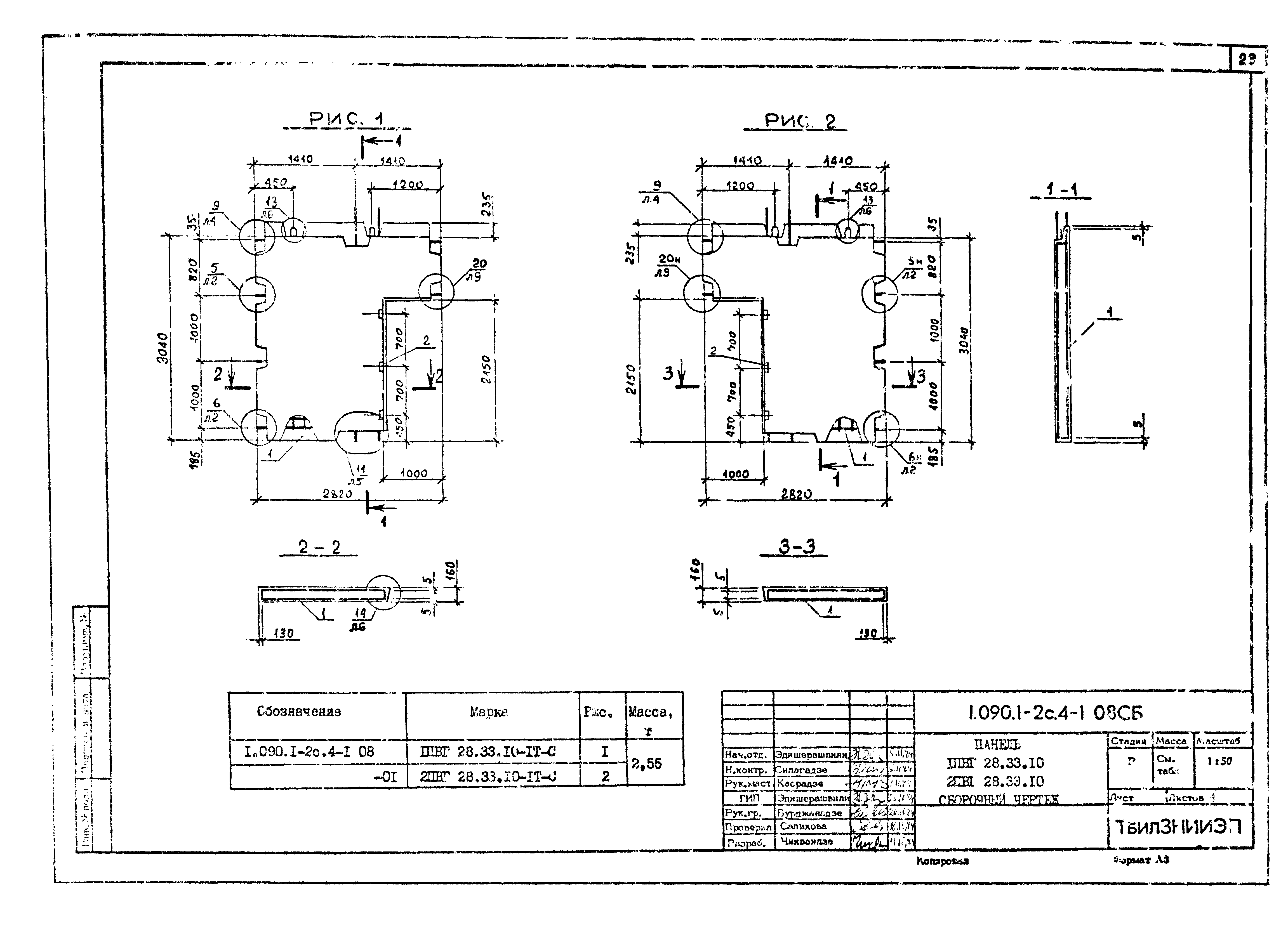
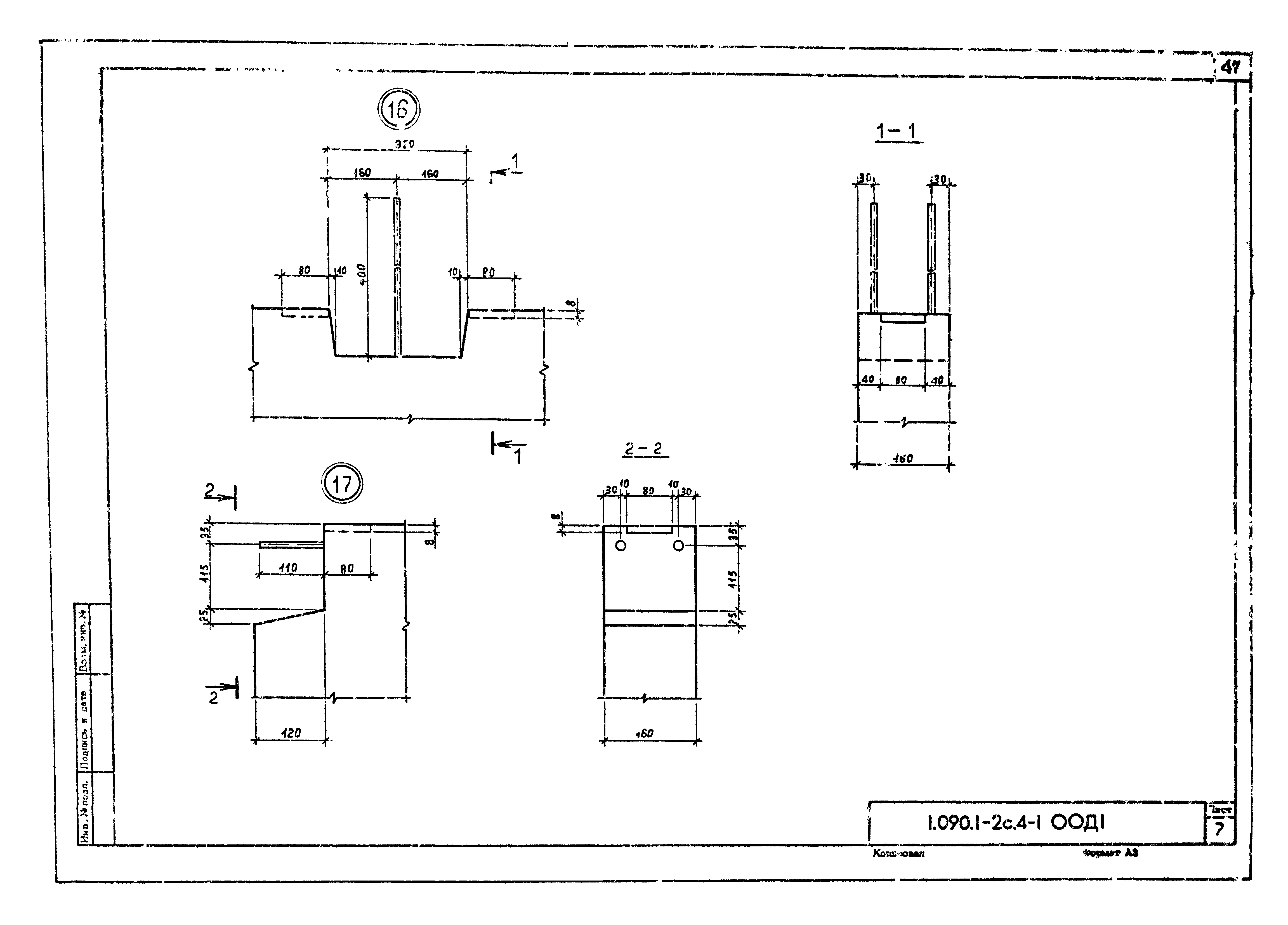
| Оглавление: | 1.090.1-2с.4-1 00ТО Техническое описание 1.090.1-2с.4-1 01 Панель ПВ 58.30.ПВ 28.30 1.090.1-2с.4-1 02 Панель ПВ 22.30-ПВ 10.30 1.090.1-2с.4-1 03 Панель НВП 58.30.19 -ПВП 58.30.10 1.090.1-2с.4-1 04 Панель ПВП 28.30.13 -1ПВП 28.30.13 1.090.1-2с.4-1 05 Панель ПВГ 58.30.10, ПВГ 58.30.13 1.090.1-2с.4-1 06 Панель ПВГ 28.30.10. ПВГ 28.30.13 1.090.1-2с.4-1 07 Панель ПВГ 58.33.10 2ПВГ 58.33.10 1.090.1-2с.4-1 08 Панель ПВГ 28.33.10 ПВГ 28.33.10 1.090.1-2с.4-1 09 Панель ПВР 70.30.56-7 -ПВР 58.30.42-3 1.090.1-2с.4-1 10 Панель ПВР 28.30.19-7-ПВР 58.33.42-7 1.090.1-2с.4-1 11 Панель ПВР 28.33.15-3, ПВ 28.33 1.090.1-2с.4-1 12 Панель ПВ 28.30, ПВ 58.33 1.090.1-2с.4-1 13 Панель ПВГ 28.30.13, ПВТ 28.30.9 1.090.1-2с.4-1 14 Панель ПВ 28.16 ШВ 28.16 1.090.1-2с.4-1 15 Панель ПВА 70.30.56-7 1.090.1-2с.4-1 16 Панель ПВА 28.30.20-7-ПВА 58.30.42-7 1.090.1-2с.4-1 00Д1 Узлы опалубочные 1.090.1-2с.4-1 00РС Ведомость расхода стали |
| Разработан: | ТбилЗНИИЭП |
| Утверждён: | 01.11.1984 Госстрой СССР (Государственный комитет Совета Министров СССР по делам строительства) (USSR Gosstroy ИИ-31) |
| Расположен в: | |
| Чем заменён: |



















































