| ||||||||||||||||||||||||||||
Скачать Серия 1.090.1-2с Выпуск 2-4. Панели наружных стен однослойные для зданий с высотой этажа 3,0 м. Пространственные каркасы. Рабочие чертежиДата актуализации: 10.08.2017
|
| Обозначение: | Серия 1.090.1-2с |
| Обозначение англ: | Series 1.090.1-2с |
| Статус: | не действует |
| Название рус.: | Выпуск 2-4. Панели наружных стен однослойные для зданий с высотой этажа 3,0 м. Пространственные каркасы. Рабочие чертежи |
| Дата добавления в базу: | 01.09.2013 |
| Дата актуализации: | 05.05.2017 |
| Дата введения: | 01.01.1985 |
| Дата окончания срока действия: | 01.04.1991 |
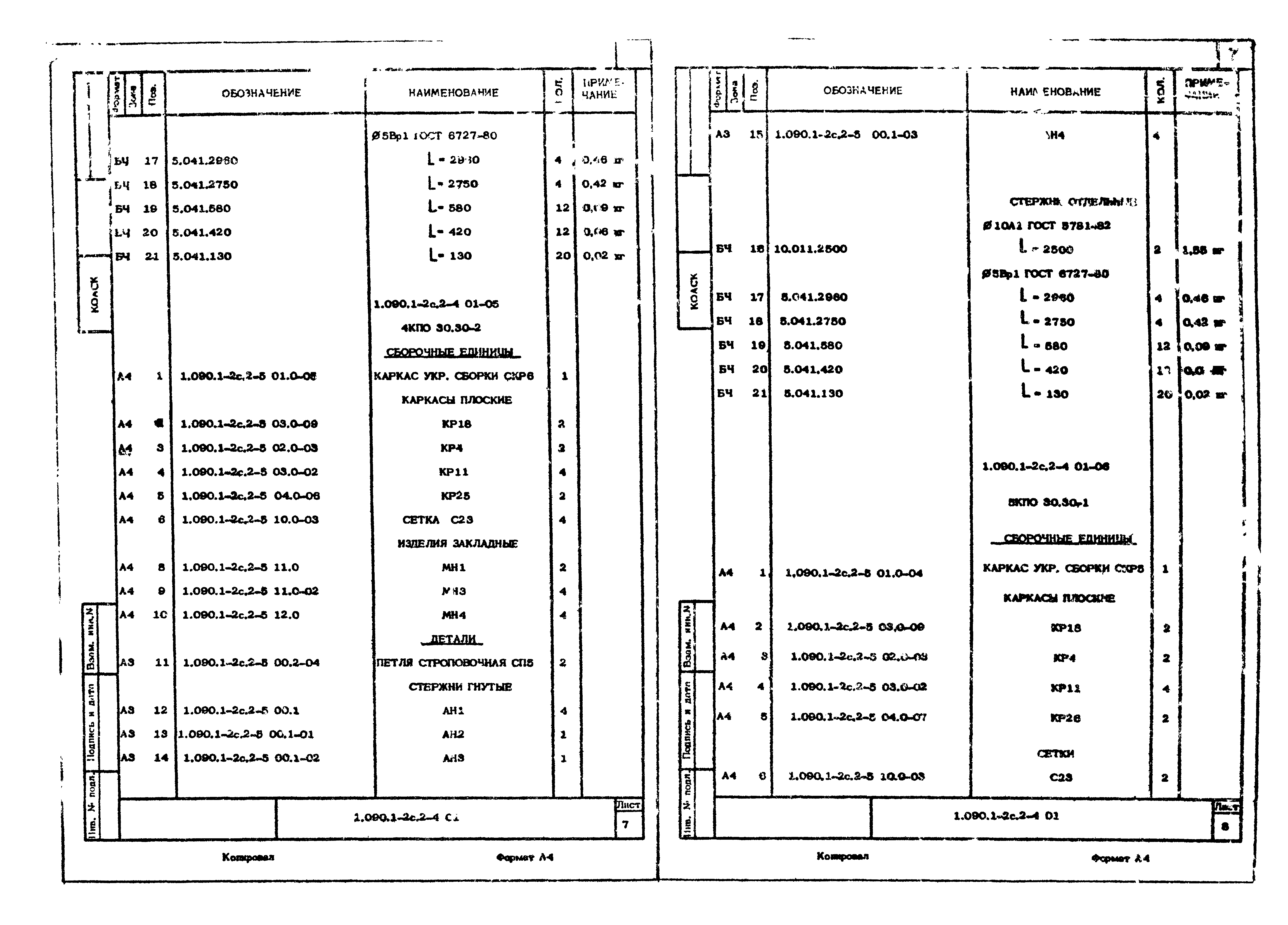
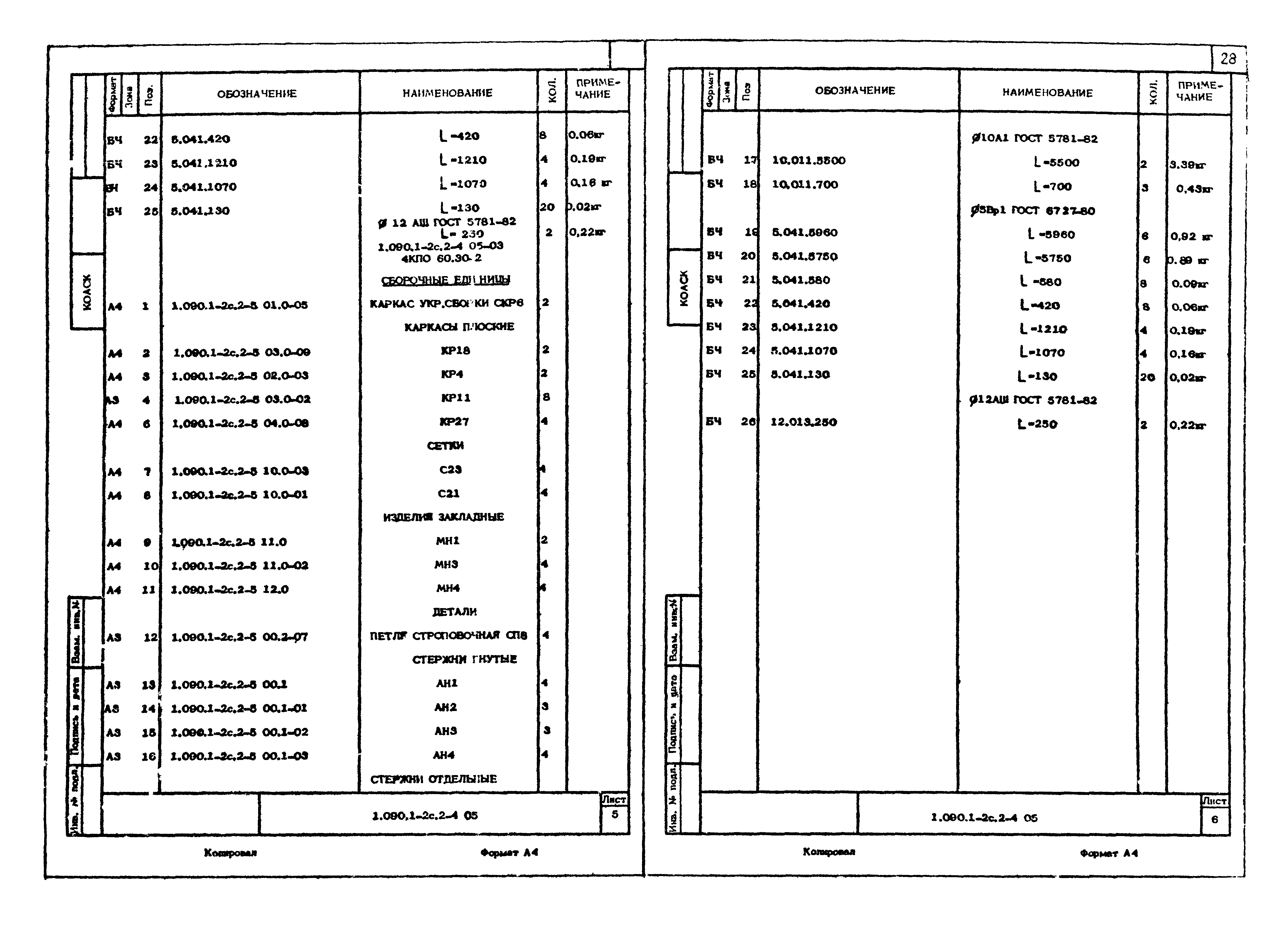
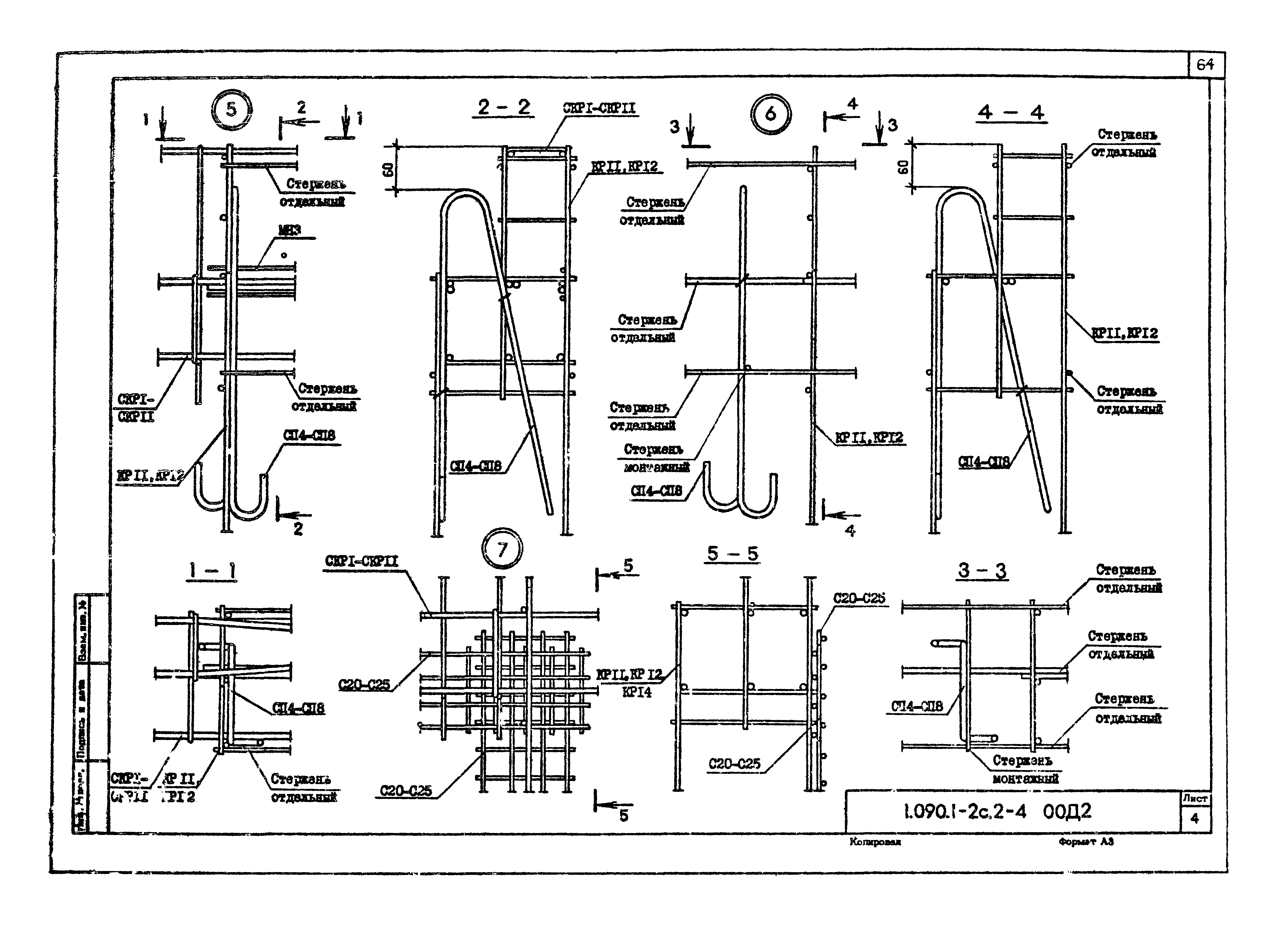
| Оглавление: | 1.090.1-2с.2-4 00ТО Техническое описание 1.090.1-2с.2-4 01 Каркас пространственный 2КПО30-6КПО30 1.090.1-2с.2-4 02 Каркас пространственный 7КПО30-9КПО30 1.090.1-2с.2-4 03 Каркас пространственный 1КПО32-2КПО32 1.090.1-2с.2-4 04 Каркас пространственный 2КПО60 1.090.1-2с.2-4 05 Каркас пространственный 3КПО60-4КПО60 1.090.1-2с.2-4 06 Каркас пространственный 1КПЛ30-4КПЛ30 1.090.1-2с.2-4 07 Каркас пространственный 5КПЛ30-8КПЛ30 1.090.1-2с.2-4 08 Каркас пространственный 1КПД30-3КПД30 1.090.1-2с.2-4 09 Каркас пространственный 4КПД30-КПД30 1.090.1-2с.2-4 10 Каркас пространственный КП30, КП24 1.090.1-2с.2-4 11 Каркас пространственный КП18, КП12, КП30 1.090.1-2с.2-4 12 Каркас пространственный 1КП32-1КП14 1.090.1-2с.2-4 13 Каркас пространственный 2КП32-2КП14 1.090.1-2с.2-4 00Д2 Узлы арматурные |
| Разработан: | ТбилЗНИИЭП |
| Утверждён: | 01.11.1984 Госстрой СССР (Государственный комитет Совета Министров СССР по делам строительства) (USSR Gosstroy ИИ-31) |
| Расположен в: |






































































