| ||||||||||||||||||||||||||||||
Скачать Серия 1.090.1-2с Выпуск 1-1. Панели наружных стен нулевого цикла однослойные. Рабочие чертежиДата актуализации: 10.08.2017
|
| Обозначение: | Серия 1.090.1-2с |
| Обозначение англ: | Series 1.090.1-2с |
| Статус: | не действует |
| Название рус.: | Выпуск 1-1. Панели наружных стен нулевого цикла однослойные. Рабочие чертежи |
| Дата добавления в базу: | 01.09.2013 |
| Дата актуализации: | 05.05.2017 |
| Дата введения: | 01.01.1985 |
| Дата окончания срока действия: | 01.04.1991 |
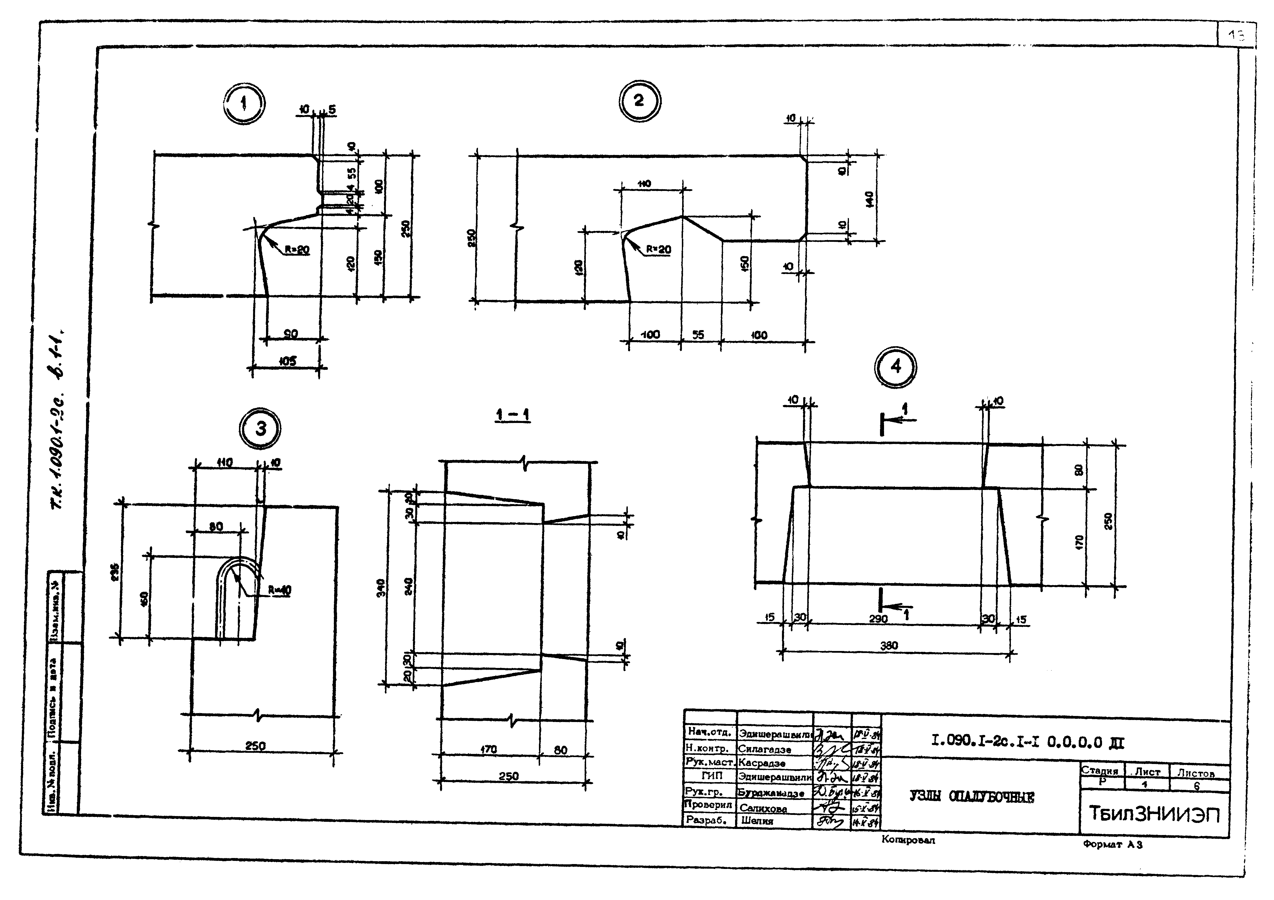
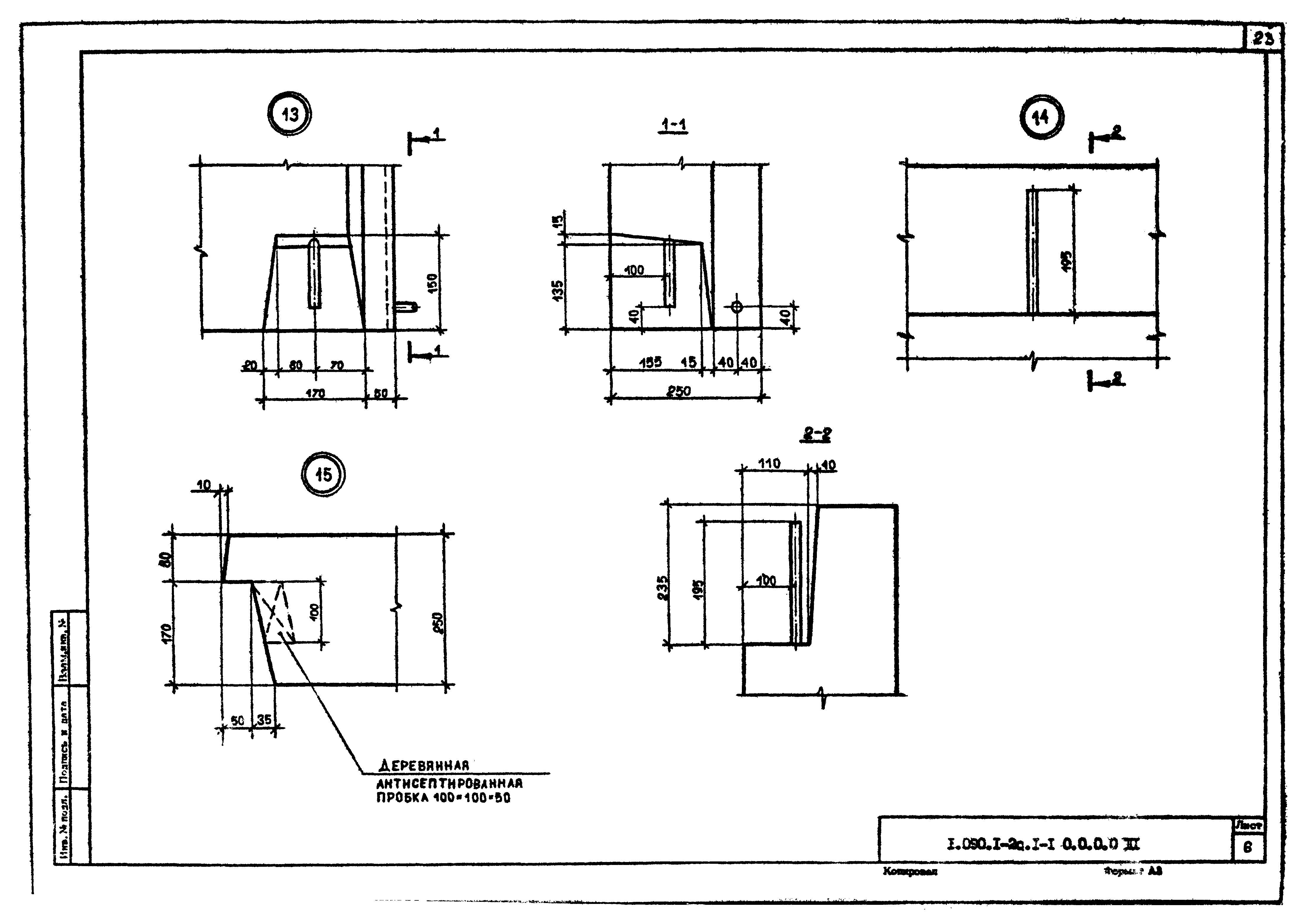
| Оглавление: | 1.090.1-2с.1-1 0.0.0.0 ТО Техническое описание 1.090.1-2с.1-1 1.0.0.0 Панель цокольная ПСЦ 60, ПСЦ 30 1.090.1-2с.1-1 2.0.0.0 Панель цокольная ПСЦ 18, 1ПСЦ 60 1.090.1-2с.1-1 3.0.0.0 Панель цокольная 1ПСЦ 30, 3ПСЦ 30 1.090.1-2с.1-1 4.0.0.0 Панель цокольная 4ПСЦ 30, 5ПСЦ 30 1.090.1-2с.1-1 5.0.0.0 Панель цокольная 1ПСЦ 32, 1ПСЦ 14 1.090.1-2с.1-1 6.0.0.0 Панель цокольная 2ПСЦ 32, 2ПСЦ 14 1.090.1-2с.1-1 0.0.0.0 Д1 Узлы опалубочные 1.090.1-2с.1-1 0.1.0.0 Каркас пространст. КП 60, КП 30 1.090.1-2с.1-1 0.2.0.0 Каркас пространст. КП 18, КП 12, 1КП 60 1.090.1-2с.1-1 0.3.0.0 Каркас пространст. 1КП 30-3КП 30 1.090.1-2с.1-1 0.4.0.0 Каркас пространст. 4КП 30, 5КП 30 1.090.1-2с.1-1 0.5.0.0 Каркас пространст. 1КП 32-1КП 14 1.090.1-2с.1-1 0.6.0.0 Каркас пространст. 2КП 32-2КП 14 1.090.1-2с.1-1 0.0.0.0 Д2 Узлы арматурные 1.090.1-2с.1-1 0.0.1.0 Каркас укрупит. Сборки СКР1 1.090.1-2с.1-1 0.0.2.0 Каркас плоский КР1-КР6 1.090.1-2с.1-1 0.0.3.0 Сетка С1-С4 1.090.1-2с.1-1 0.0.4.0 Изделие закладное МН1-МН5 1.090.1-2с.1-1 0.0.0.1 Петля строповочная СП1-СП3, Стержень гнутый АН1-АН6 1.090.1-2с.1-1 0.0.0.0РС Ведомость расхода стали |
| Разработан: | ТбилЗНИИЭП |
| Утверждён: | 01.11.1984 Госстрой СССР (Государственный комитет Совета Министров СССР по делам строительства) (USSR Gosstroy ИИ-31) |
| Расположен в: | |
| Чем заменён: |































































