| ||||||||||||||||||||||||||||||
Скачать Серия 1.423.1-5/88 Выпуск 3. Стальные связи по колоннам. Рабочие чертежиДата актуализации: 10.08.2017
|
| Обозначение: | Серия 1.423.1-5/88 |
| Обозначение англ: | Series 1.423.1-5/88 |
| Статус: | не определен законодательством |
| Название рус.: | Выпуск 3. Стальные связи по колоннам. Рабочие чертежи |
| Дата добавления в базу: | 01.09.2013 |
| Дата актуализации: | 05.05.2017 |
| Дата введения: | 01.04.1989 |
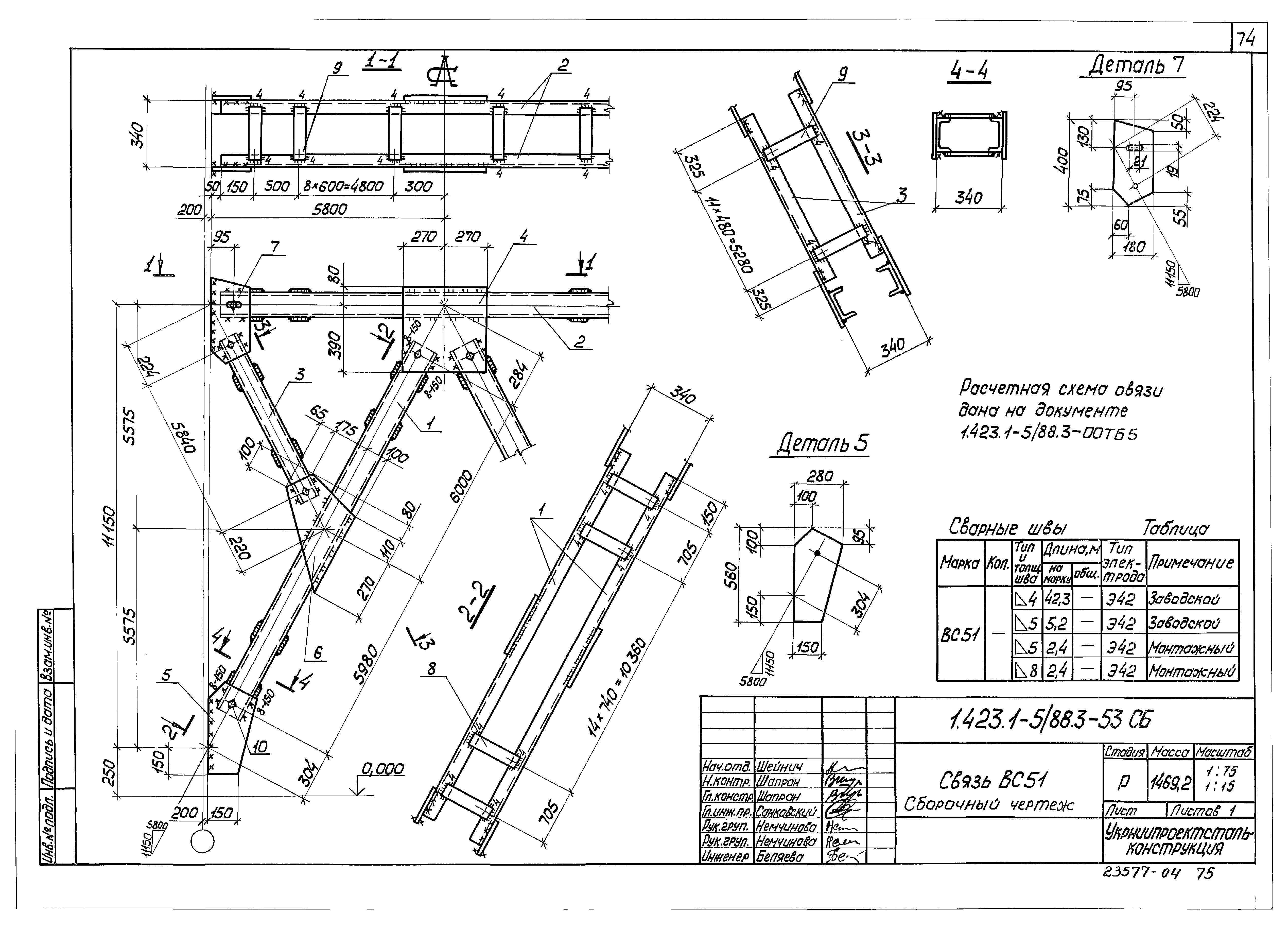
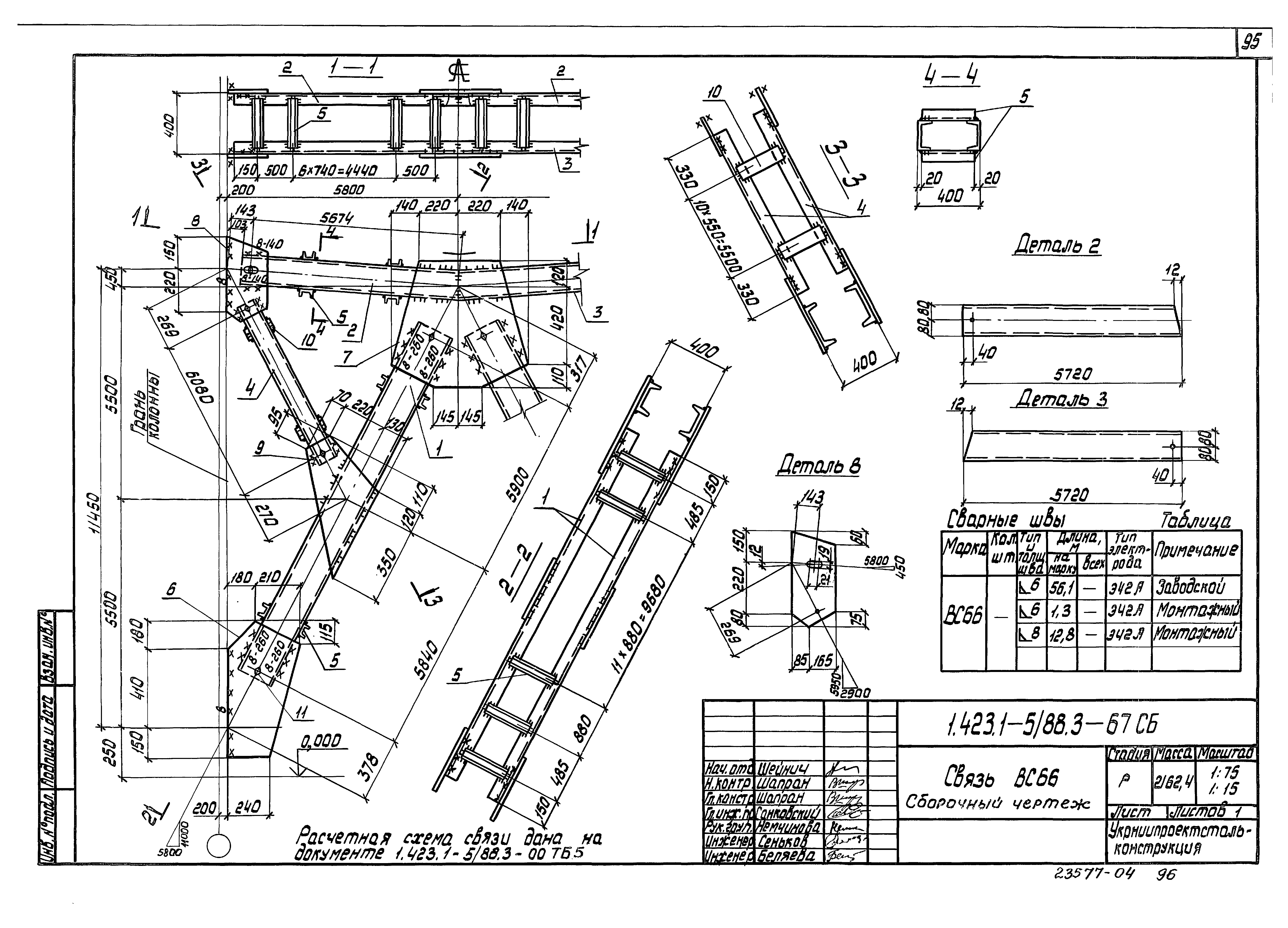
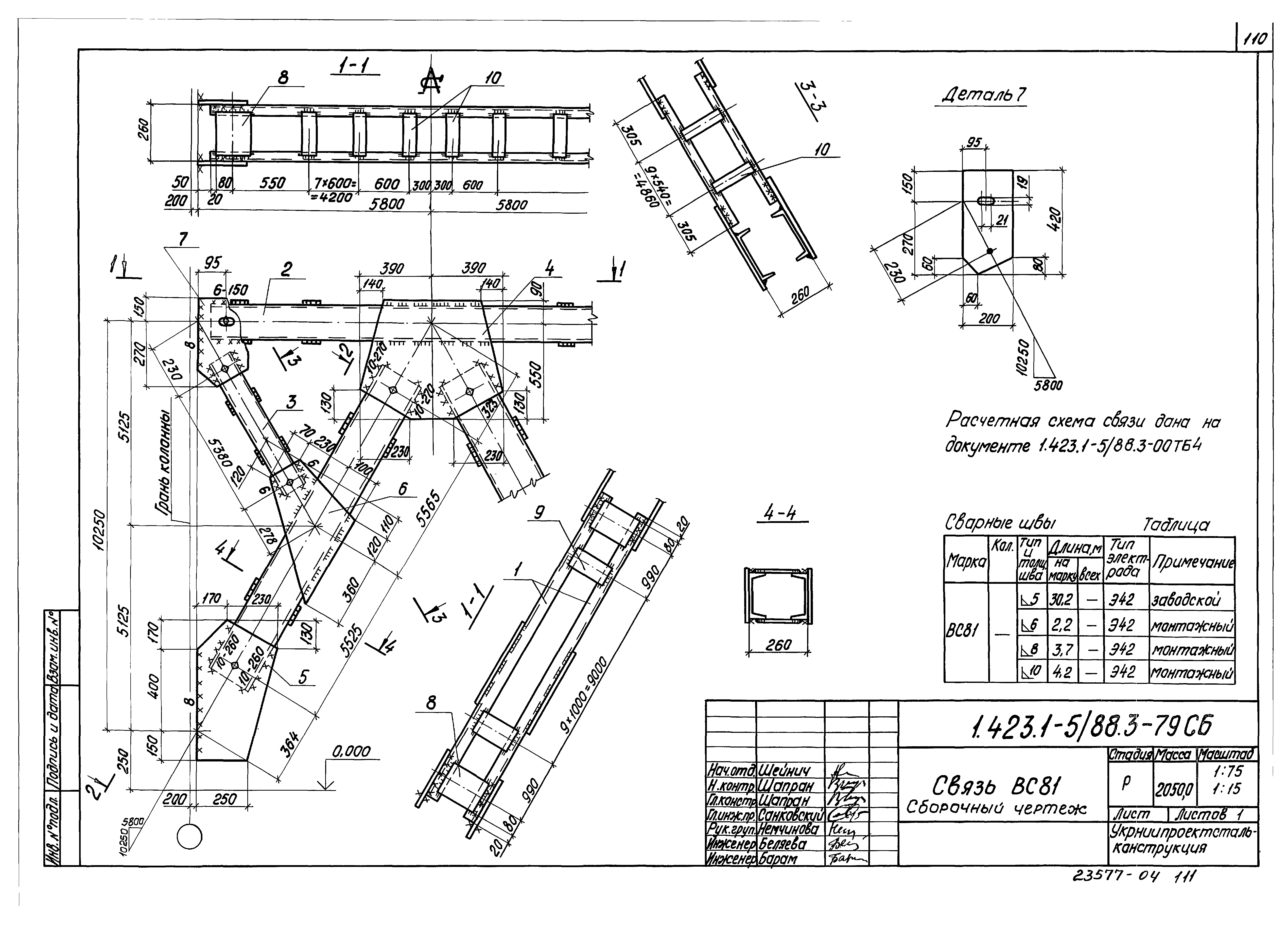
| Оглавление: | 1.423.1-5/88.3-00ПЗ Пояснительная записка 1.423.1-5/88.3-00РН Таблица расчетных нагрузок 1.423.1-5/88.3-00ТБ1 Расчетная схема и геометрические размеры связей ВС1-ВС10,ВС12,ВС17 1.423.1-5/88.3-00ТБ2 Расчетная схема и геометрические размеры связей ВС14,ВС16,ВС20,ВС22,ВС24-ВС35,ВС70-ВС76 1.423.1-5/88.3-00ТБ3 Расчетная схема и геометрические размеры связей ВС36-ВС47,ВС68,ВС69 1.423.1-5/88.3-00ТБ4 Расчетная схема и геометрические размеры связей ВС11,ВС13,ВС15,ВС77-ВС87 1.423.1-5/88.3-00ТБ5 Расчетная схема и геометрические размеры связей ВС48-ВС67 1.423.1-5/88.3-01 Связь ВС1 1.423.1-5/88.3-02 Связь ВС2 1.423.1-5/88.3-03 Связь ВС3 1.423.1-5/88.3-04 Связь ВС4 1.423.1-5/88.3-05 Связь ВС5 1.423.1-5/88.3-06 Связь ВС6 1.423.1-5/88.3-07 Связь ВС7 1.423.1-5/88.3-08 Связь ВС8 1.423.1-5/88.3-09 Связь ВС9 1.423.1-5/88.3-10 Связь ВС10 1.423.1-5/88.3-11 Связь ВС11 1.423.1-5/88.3-12 Связь ВС15 1.423.1-5/88.3-13 Связь ВС13 1.423.1-5/88.3-14 Связь ВС14 1.423.1-5/88.3-15 Связь ВС16 1.423.1-5/88.3-16 Связь ВС12 1.423.1-5/88.3-17 Связь ВС17 1.423.1-5/88.3-18 Связь ВС67 1.423.1-5/88.3-19 Связь ВС68 1.423.1-5/88.3-18СБ Связь ВС67. Сборочный чертеж 1.423.1-5/88.3-19СБ Связь ВС68. Сборочный чертеж 1.423.1-5/88.3-21 Связь ВС20 1.423.1-5/88.3-23 Связь ВС22 1.423.1-5/88.3-24 Связь ВС69 1.423.1-5/88.3-24СБ Связь ВС69. Сборочный чертеж 1.423.1-5/88.3-25 Связь ВС24 1.423.1-5/88.3-26 Связь ВС25 1.423.1-5/88.3-27 Связь ВС26 1.423.1-5/88.3-28 Связь ВС27 1.423.1-5/88.3-29 Связь ВС28 1.423.1-5/88.3-30 Связь ВС29 1.423.1-5/88.3-31 Связь ВС30 1.423.1-5/88.3-32 Связь ВС31 1.423.1-5/88.3-33 Связь ВС32 1.423.1-5/88.3-34 Связь ВС33 1.423.1-5/88.3-35 Связь ВС34 1.423.1-5/88.3-36 Связь ВС35 1.423.1-5/88.3-37 Связь ВС36 1.423.1-5/88.3-38 Связь ВС37 1.423.1-5/88.3-37 Связь ВС36. Сборочный чертеж 1.423.1-5/88.3-38СБ Связь ВС37. Сборочный чертеж 1.423.1-5/88.3-39 Связь ВС38 1.423.1-5/88.3-40 Связь ВС39 1.423.1-5/88.3-39СБ Связь ВС38. Сборочный чертеж 1.423.1-5/88.3-40СБ Связь ВС39. Сборочный чертеж 1.423.1-5/88.3-41 Связь ВС40 1.423.1-5/88.3-42 Связь ВС56 1.423.1-5/88.3-41СБ Связь ВС40. Сборочный чертеж 1.423.1-5/88.3-42СБ Связь ВС56. Сборочный чертеж 1.423.1-5/88.3-43 Связь ВС41 1.423.1-5/88.3-44 Связь ВС42 1.423.1-5/88.3-43СБ Связь ВС41. Сборочный чертеж 1.423.1-5/88.3-44СБ Связь ВС42. Сборочный чертеж 1.423.1-5/88.3-45 Связь ВС43 1.423.1-5/88.3-46 Связь ВС44 1.423.1-5/88.3-45СБ Связь ВС43. Сборочный чертеж 1.423.1-5/88.3-46СБ Связь ВС44. Сборочный чертеж 1.423.1-5/88.3-47 Связь ВС45 1.423.1-5/88.3-48 Связь ВС46 1.423.1-5/88.3-47СБ Связь ВС45. Сборочный чертеж 1.423.1-5/88.3-48СБ Связь ВС46. Сборочный чертеж 1.423.1-5/88.3-49 Связь ВС47 1.423.1-5/88.3-49СБ Связь ВС47. Сборочный чертеж 1.423.1-5/88.3-50 Связь ВС48 1.423.1-5/88.3-51 Связь ВС49 1.423.1-5/88.3-50СБ Связь ВС48. Сборочный чертеж 1.423.1-5/88.3-51СБ Связь ВС49. Сборочный чертеж 1.423.1-5/88.3-52 Связь ВС50 1.423.1-5/88.3-53 Связь ВС51 1.423.1-5/88.3-52СБ Связь ВС50. Сборочный чертеж 1.423.1-5/88.3-53СБ Связь ВС51. Сборочный чертеж 1.423.1-5/88.3-54 Связь ВС52 1.423.1-5/88.3-55 Связь ВС53 1.423.1-5/88.3-54СБ Связь ВС52. Сборочный чертеж 1.423.1-5/88.3-55СБ Связь ВС53. Сборочный чертеж 1.423.1-5/88.3-56 Связь ВС54 1.423.1-5/88.3-57 Связь ВС55 1.423.1-5/88.3-56СБ Связь ВС54. Сборочный чертеж 1.423.1-5/88.3-57СБ Связь ВС55. Сборочный чертеж 1.423.1-5/88.3-58 Связь ВС58 1.423.1-5/88.3-59 Связь ВС57 1.423.1-5/88.3-59СБ Связь ВС57. Сборочный чертеж 1.423.1-5/88.3-58СБ Связь ВС58. Сборочный чертеж 1.423.1-5/88.3-61 Связь ВС59 1.423.1-5/88.3-60 Связь ВС60 1.423.1-5/88.3-61СБ Связь ВС59. Сборочный чертеж 1.423.1-5/88.3-60СБ Связь ВС60. Сборочный чертеж 1.423.1-5/88.3-63 Связь ВС61 1.423.1-5/88.3-62 Связь ВС62 1.423.1-5/88.3-63СБ Связь ВС61. Сборочный чертеж 1.423.1-5/88.3-62СБ Связь ВС62. Сборочный чертеж 1.423.1-5/88.3-65 Связь ВС63 1.423.1-5/88.3-64 Связь ВС64 1.423.1-5/88.3-65СБ Связь ВС63. Сборочный чертеж 1.423.1-5/88.3-65СБ Связь ВС64. Сборочный чертеж 1.423.1-5/88.3-66 Связь ВС65 1.423.1-5/88.3-67 Связь ВС66 1.423.1-5/88.3-66СБ Связь ВС65. Сборочный чертеж 1.423.1-5/88.3-67СБ Связь ВС66. Сборочный чертеж 1.423.1-5/88.3-68 Связь ВС70 1.423.1-5/88.3-69 Связь ВС71 1.423.1-5/88.3-70 Связь ВС72 1.423.1-5/88.3-71 Связь ВС73 1.423.1-5/88.3-72 Связь ВС74 1.423.1-5/88.3-73 Связь ВС75 1.423.1-5/88.3-74 Связь ВС76 1.423.1-5/88.3-75 Связь ВС77 1.423.1-5/88.3-76 Связь ВС78 1.423.1-5/88.3-75СБ Связь ВС77. Сборочный чертеж 1.423.1-5/88.3-76СБ Связь ВС78. Сборочный чертеж 1.423.1-5/88.3-77 Связь ВС79 1.423.1-5/88.3-78 Связь ВС80 1.423.1-5/88.3-77СБ Связь ВС79. Сборочный чертеж 1.423.1-5/88.3-78СБ Связь ВС80. Сборочный чертеж 1.423.1-5/88.3-79 Связь ВС81 1.423.1-5/88.3-80 Связь ВС82 1.423.1-5/88.3-79СБ Связь ВС81. Сборочный чертеж 1.423.1-5/88.3-80СБ Связь ВС82. Сборочный чертеж 1.423.1-5/88.3-81 Связь ВС83 1.423.1-5/88.3-82 Связь ВС84 1.423.1-5/88.3-81СБ Связь ВС83. Сборочный чертеж 1.423.1-5/88.3-82СБ Связь ВС84. Сборочный чертеж 1.423.1-5/88.3-83 Связь ВС85 1.423.1-5/88.3-84 Связь ВС86 1.423.1-5/88.3-83СБ Связь ВС85. Сборочный чертеж 1.423.1-5/88.3-84СБ Связь ВС86. Сборочный чертеж 1.423.1-5/88.3-85 Связь ВС87 1.423.1-5/88.3-85СБ Связь ВС87. Сборочный чертеж 1.423.1-5/88.3-86 Распорка ГС1 1.423.1-5/88.3-87 Распорка ГС2 1.423.1-5/88.3-88 Распорка ГС3 1.423.1-5/88.3-89 Распорка ГС4 1.423.1-5/88.3-90 Распорка ГС5 1.423.1-5/88.3-91 Распорка ГС6 1.423.1-5/88.3-92 Распорка ГС7 1.423.1-5/88.3-93 Распорка ГС8 1.423.1-5/88.3-94 Соединительный элемент МС1 1.423.1-5/88.3-95 Соединительный элемент МС2 1.423.1-5/88.3-96 Соединительный элемент МС3 1.423.1-5/88.3-97 Соединительный элемент МС4 |
| Разработан: | Укрниипроектстальконструкция |
| Утверждён: | 23.12.1988 Госстрой СССР (Государственный комитет Совета Министров СССР по делам строительства) (USSR Gosstroy АЧ-47) |
| Издан: | ЦИТП Госстроя СССР (CITP, Gosstroy (USSR) 1989 г. ) |
| Расположен в: | |
| Заменяет собой: |

































































































































