Информационная система
«Ёшкин Кот»

Скачать базу одним архивом
Скачать обновления
История создания базы
Карта сайта

Скачать Пособие к МГСН 4.07-05 Дошкольные образовательные учреждения

Дата актуализации: 10.08.2017

Пособие к МГСН 4.07-05

Дошкольные образовательные учреждения

Обозначение: Пособие к МГСН 4.07-05
Обозначение англ: MGSN Handbook 4.07-05
Статус:действует
Название рус.:Дошкольные образовательные учреждения
Дата добавления в базу:01.09.2013
Дата актуализации:05.05.2017
Дата введения:08.06.2007
Область применения:Пособие распространяется на проектирование, в первую очередь, массовых типов государственных образовательных учреждений, предназначенных для практически здоровых детей и детей с недостатками развития, подлежащих коррекции и компенсации в развитии и в процессе подготовки к школе. Требования пособия не распространяются на проектирование детских домов для детей с нарушением психического и физического развития, а также дошкольных отделений в школах-интернатах для детей с нарушением развития.
Оглавление:Введение
1 Основные положения
2 Организация сети дошкольных образовательных учреждений, размещаемых в жилой застройке
3 Организация земельного участка
   3.1 Общие требования к земельному участку
   3.2 Планировка и оборудование элементов участка
   3.3 Благоустройство и озеленение
4 Объемно-планировочные решения зданий
   4.1 Функциональная структура дошкольных учреждений
   4.2 Общие требования к функционально-планировочной организации зданий
5 Помещения основного пребывания детей
   5.1 Универсальные групповые ячейки
   5.2 Специализированные групповые ячейки
6 Специализированные помещения для работы с детьми
   6.1 Залы для музыкальных и гимнастических занятий
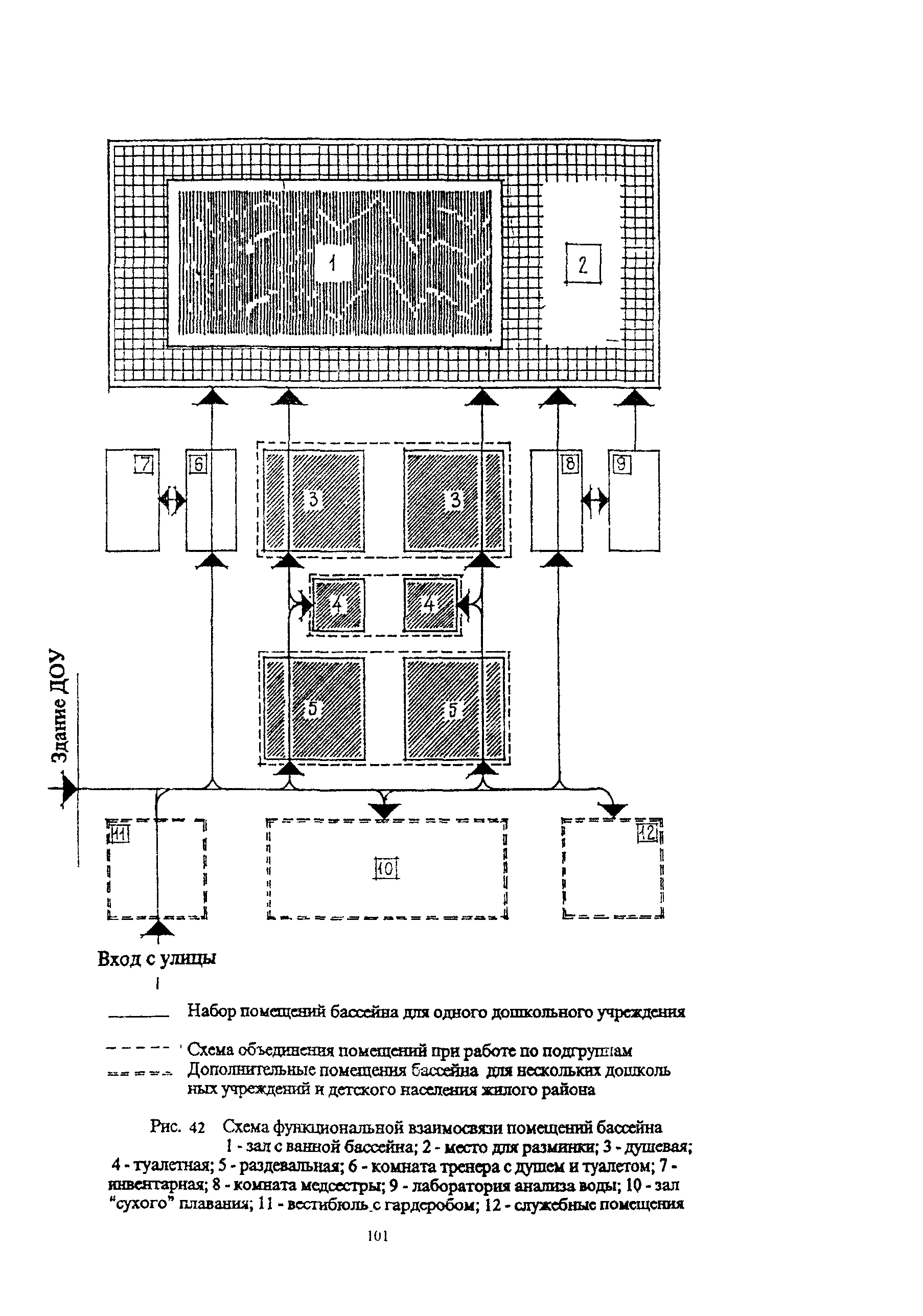
   6.2 Бассейны
7 Сопутствующие группы помещений
   7.1 Медицинские помещения
   7.2 Пищеблок
   7.3 Постирочная
   7.4 Служебно-бытовые помещения
8 Специальные требования к проектированию дошкольных образовательных учреждений компенсирующего вида
9 Условия размещения начальных классов общеобразовательной школы в зданиях детских садов
Приложение А Нормативно-методические материалы, использованные в работе над Пособием
Приложение Б Примерный ассортимент зеленых насаждений (для детского сада на 10 групп)
Приложение В Рекомендуемый состав смеси трав (в граммах на 1 м2)
Приложение Г Наполняемость детских групп с компенсирующей направленностью
Приложение Д Ширина проходов в производственных помещениях пищеблока
Иллюстрации
Разработан: ИОЗ (институт общественных зданий)
Утверждён:08.06.2007 Москомархитектура (Moskomarkhitektura 116)
Издан: ГУП НИАЦ (2007 г. )
Расположен в:Техническая документация Строительство Нормативные документы Нормативные документы субъектов Российской Федерации Нормативные документы г. Москвы
Нормативные ссылки:
Пособие к МГСН 4.07-05Пособие к МГСН 4.07-05Пособие к МГСН 4.07-05Пособие к МГСН 4.07-05Пособие к МГСН 4.07-05Пособие к МГСН 4.07-05Пособие к МГСН 4.07-05Пособие к МГСН 4.07-05Пособие к МГСН 4.07-05Пособие к МГСН 4.07-05Пособие к МГСН 4.07-05Пособие к МГСН 4.07-05Пособие к МГСН 4.07-05Пособие к МГСН 4.07-05Пособие к МГСН 4.07-05Пособие к МГСН 4.07-05Пособие к МГСН 4.07-05Пособие к МГСН 4.07-05Пособие к МГСН 4.07-05Пособие к МГСН 4.07-05Пособие к МГСН 4.07-05Пособие к МГСН 4.07-05Пособие к МГСН 4.07-05Пособие к МГСН 4.07-05Пособие к МГСН 4.07-05Пособие к МГСН 4.07-05Пособие к МГСН 4.07-05Пособие к МГСН 4.07-05Пособие к МГСН 4.07-05Пособие к МГСН 4.07-05Пособие к МГСН 4.07-05Пособие к МГСН 4.07-05Пособие к МГСН 4.07-05Пособие к МГСН 4.07-05Пособие к МГСН 4.07-05Пособие к МГСН 4.07-05Пособие к МГСН 4.07-05Пособие к МГСН 4.07-05Пособие к МГСН 4.07-05Пособие к МГСН 4.07-05Пособие к МГСН 4.07-05Пособие к МГСН 4.07-05Пособие к МГСН 4.07-05Пособие к МГСН 4.07-05Пособие к МГСН 4.07-05Пособие к МГСН 4.07-05Пособие к МГСН 4.07-05Пособие к МГСН 4.07-05Пособие к МГСН 4.07-05Пособие к МГСН 4.07-05Пособие к МГСН 4.07-05Пособие к МГСН 4.07-05Пособие к МГСН 4.07-05Пособие к МГСН 4.07-05Пособие к МГСН 4.07-05Пособие к МГСН 4.07-05Пособие к МГСН 4.07-05Пособие к МГСН 4.07-05Пособие к МГСН 4.07-05Пособие к МГСН 4.07-05Пособие к МГСН 4.07-05Пособие к МГСН 4.07-05Пособие к МГСН 4.07-05Пособие к МГСН 4.07-05Пособие к МГСН 4.07-05Пособие к МГСН 4.07-05Пособие к МГСН 4.07-05Пособие к МГСН 4.07-05Пособие к МГСН 4.07-05Пособие к МГСН 4.07-05Пособие к МГСН 4.07-05Пособие к МГСН 4.07-05Пособие к МГСН 4.07-05Пособие к МГСН 4.07-05Пособие к МГСН 4.07-05Пособие к МГСН 4.07-05Пособие к МГСН 4.07-05Пособие к МГСН 4.07-05Пособие к МГСН 4.07-05Пособие к МГСН 4.07-05Пособие к МГСН 4.07-05Пособие к МГСН 4.07-05Пособие к МГСН 4.07-05Пособие к МГСН 4.07-05Пособие к МГСН 4.07-05Пособие к МГСН 4.07-05Пособие к МГСН 4.07-05Пособие к МГСН 4.07-05Пособие к МГСН 4.07-05Пособие к МГСН 4.07-05Пособие к МГСН 4.07-05Пособие к МГСН 4.07-05Пособие к МГСН 4.07-05Пособие к МГСН 4.07-05Пособие к МГСН 4.07-05Пособие к МГСН 4.07-05Пособие к МГСН 4.07-05Пособие к МГСН 4.07-05Пособие к МГСН 4.07-05Пособие к МГСН 4.07-05Пособие к МГСН 4.07-05Пособие к МГСН 4.07-05Пособие к МГСН 4.07-05Пособие к МГСН 4.07-05Пособие к МГСН 4.07-05Пособие к МГСН 4.07-05Пособие к МГСН 4.07-05Пособие к МГСН 4.07-05Пособие к МГСН 4.07-05Пособие к МГСН 4.07-05Пособие к МГСН 4.07-05Пособие к МГСН 4.07-05Пособие к МГСН 4.07-05Пособие к МГСН 4.07-05Пособие к МГСН 4.07-05Пособие к МГСН 4.07-05Пособие к МГСН 4.07-05Пособие к МГСН 4.07-05Пособие к МГСН 4.07-05

© 2013 Ёшкин Кот :-) Карта сайта