Информационная система
«Ёшкин Кот»

Скачать базу одним архивом
Скачать обновления
История создания базы
Карта сайта

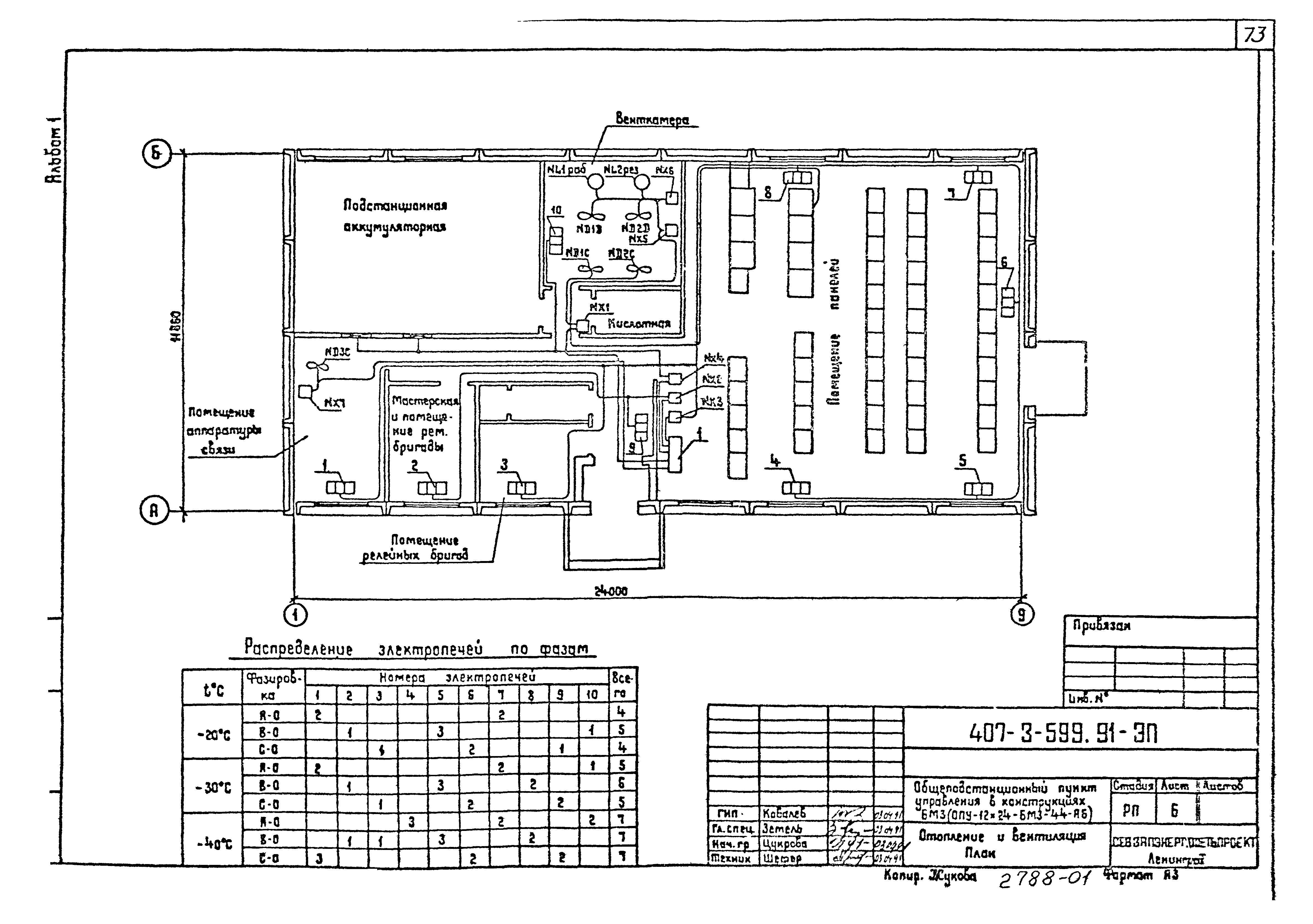
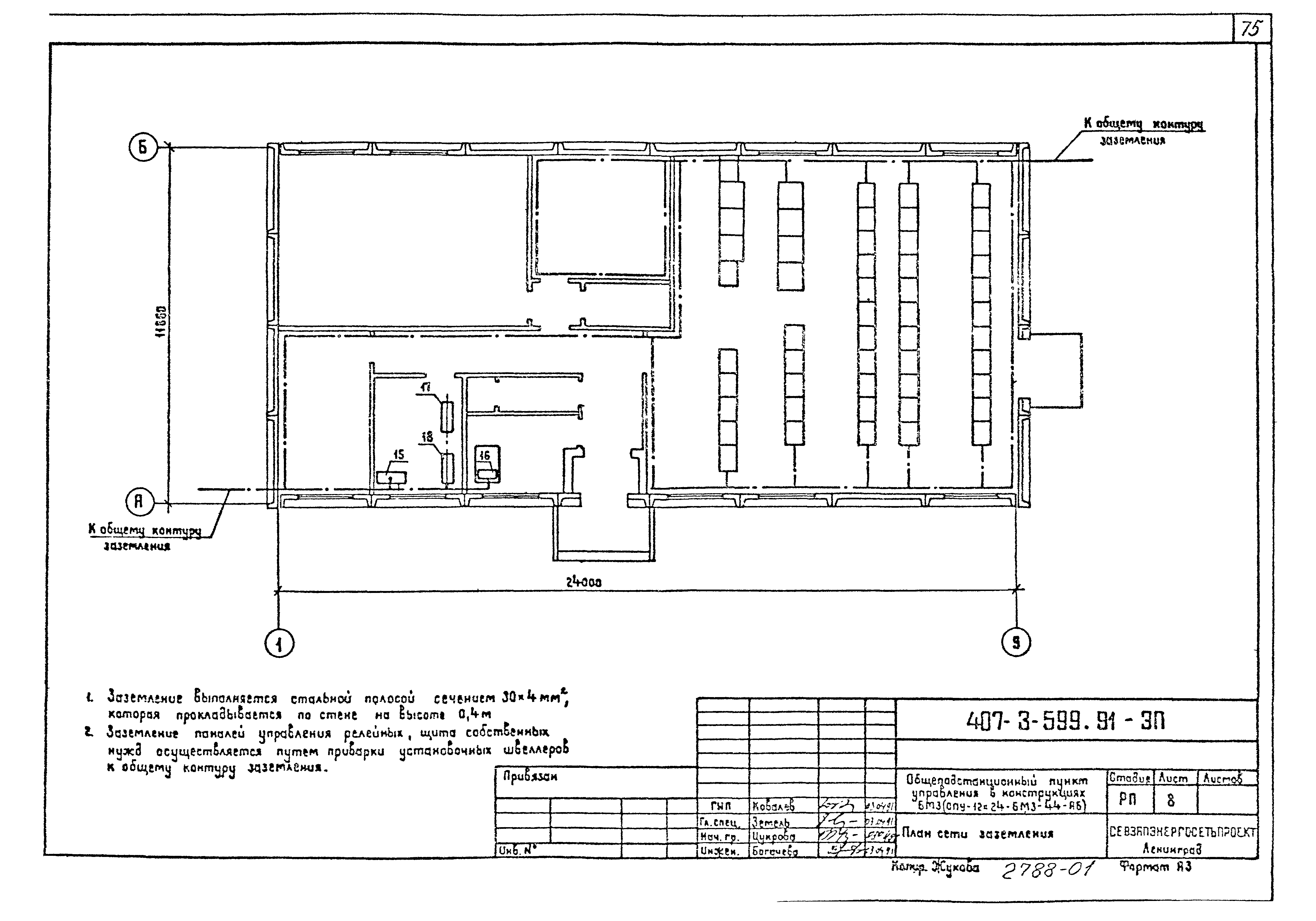
Скачать Типовой проект 407-3-599.91 Альбом 1. Общая пояснительная записка. Архитектурно-строительные решения. Отопление и вентиляция. Внутренние водопровод и канализация. Электротехнические решения. Автоматизация и управление

Дата актуализации: 10.08.2017

Типовой проект 407-3-599.91

Альбом 1. Общая пояснительная записка. Архитектурно-строительные решения. Отопление и вентиляция. Внутренние водопровод и канализация. Электротехнические решения. Автоматизация и управление

Обозначение: Типовой проект 407-3-599.91
Обозначение англ: 407-3-599.91
Статус:не действует
Название рус.:Альбом 1. Общая пояснительная записка. Архитектурно-строительные решения. Отопление и вентиляция. Внутренние водопровод и канализация. Электротехнические решения. Автоматизация и управление
Дата добавления в базу:01.09.2013
Дата актуализации:05.05.2017
Разработан: Севзапэнергосетьпроект
Утверждён:17.04.1991 Минэнерго СССР (USSR Minenergo 8)
Издан: Севзапэнергосетьпроект (1991 г. )
Расположен в:Техническая документация Строительство Справочные документы Типовые строительные конструкции, изделия и узлы Общероссийский строительный каталог Промышленные предприятия, здания и сооружения Предприятия, здания и сооружения промышленности и электроэнергетики Электроэнергетика Здания и сооружения разные
Типовой проект 407-3-599.91Типовой проект 407-3-599.91Типовой проект 407-3-599.91Типовой проект 407-3-599.91Типовой проект 407-3-599.91Типовой проект 407-3-599.91Типовой проект 407-3-599.91Типовой проект 407-3-599.91Типовой проект 407-3-599.91Типовой проект 407-3-599.91Типовой проект 407-3-599.91Типовой проект 407-3-599.91Типовой проект 407-3-599.91Типовой проект 407-3-599.91Типовой проект 407-3-599.91Типовой проект 407-3-599.91Типовой проект 407-3-599.91Типовой проект 407-3-599.91Типовой проект 407-3-599.91Типовой проект 407-3-599.91Типовой проект 407-3-599.91Типовой проект 407-3-599.91Типовой проект 407-3-599.91Типовой проект 407-3-599.91Типовой проект 407-3-599.91Типовой проект 407-3-599.91Типовой проект 407-3-599.91Типовой проект 407-3-599.91Типовой проект 407-3-599.91Типовой проект 407-3-599.91Типовой проект 407-3-599.91Типовой проект 407-3-599.91Типовой проект 407-3-599.91Типовой проект 407-3-599.91Типовой проект 407-3-599.91Типовой проект 407-3-599.91Типовой проект 407-3-599.91Типовой проект 407-3-599.91Типовой проект 407-3-599.91Типовой проект 407-3-599.91Типовой проект 407-3-599.91Типовой проект 407-3-599.91Типовой проект 407-3-599.91Типовой проект 407-3-599.91Типовой проект 407-3-599.91Типовой проект 407-3-599.91Типовой проект 407-3-599.91Типовой проект 407-3-599.91Типовой проект 407-3-599.91Типовой проект 407-3-599.91Типовой проект 407-3-599.91Типовой проект 407-3-599.91Типовой проект 407-3-599.91Типовой проект 407-3-599.91Типовой проект 407-3-599.91Типовой проект 407-3-599.91Типовой проект 407-3-599.91Типовой проект 407-3-599.91Типовой проект 407-3-599.91Типовой проект 407-3-599.91Типовой проект 407-3-599.91Типовой проект 407-3-599.91Типовой проект 407-3-599.91Типовой проект 407-3-599.91Типовой проект 407-3-599.91Типовой проект 407-3-599.91Типовой проект 407-3-599.91Типовой проект 407-3-599.91Типовой проект 407-3-599.91Типовой проект 407-3-599.91Типовой проект 407-3-599.91Типовой проект 407-3-599.91Типовой проект 407-3-599.91Типовой проект 407-3-599.91Типовой проект 407-3-599.91Типовой проект 407-3-599.91Типовой проект 407-3-599.91Типовой проект 407-3-599.91Типовой проект 407-3-599.91Типовой проект 407-3-599.91Типовой проект 407-3-599.91Типовой проект 407-3-599.91Типовой проект 407-3-599.91Типовой проект 407-3-599.91Типовой проект 407-3-599.91Типовой проект 407-3-599.91Типовой проект 407-3-599.91Типовой проект 407-3-599.91Типовой проект 407-3-599.91Типовой проект 407-3-599.91Типовой проект 407-3-599.91Типовой проект 407-3-599.91Типовой проект 407-3-599.91

© 2013 Ёшкин Кот :-) Карта сайта