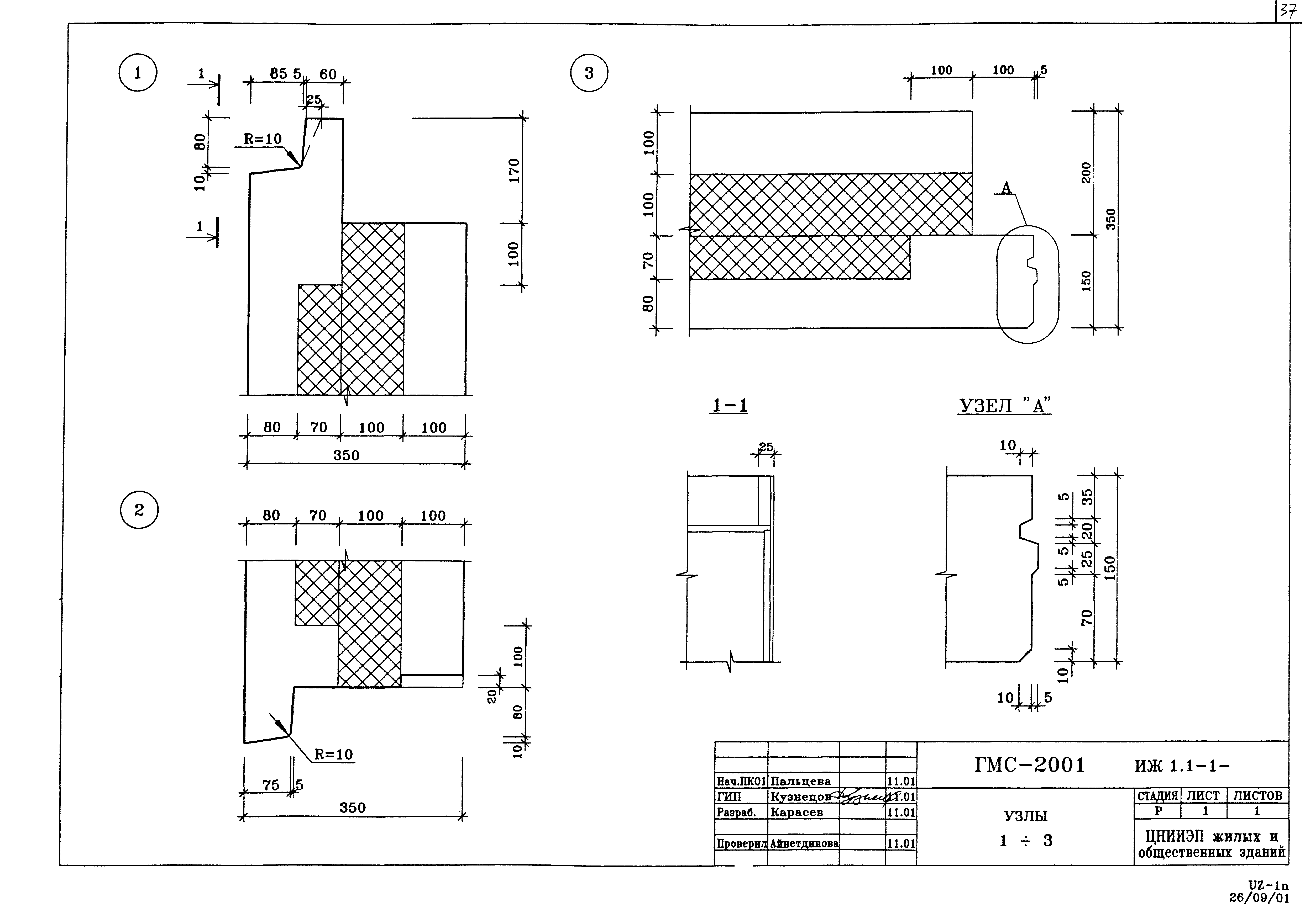
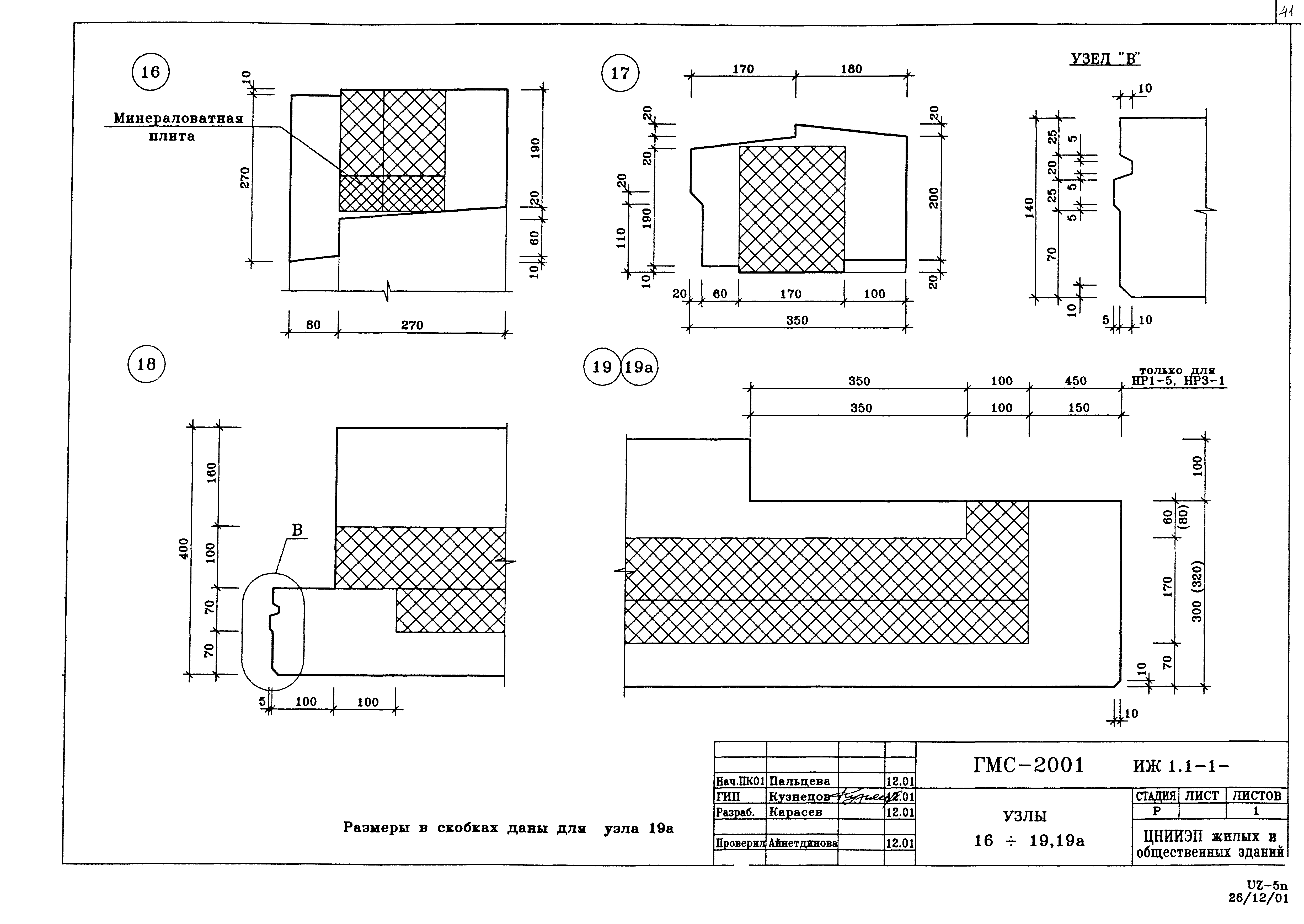
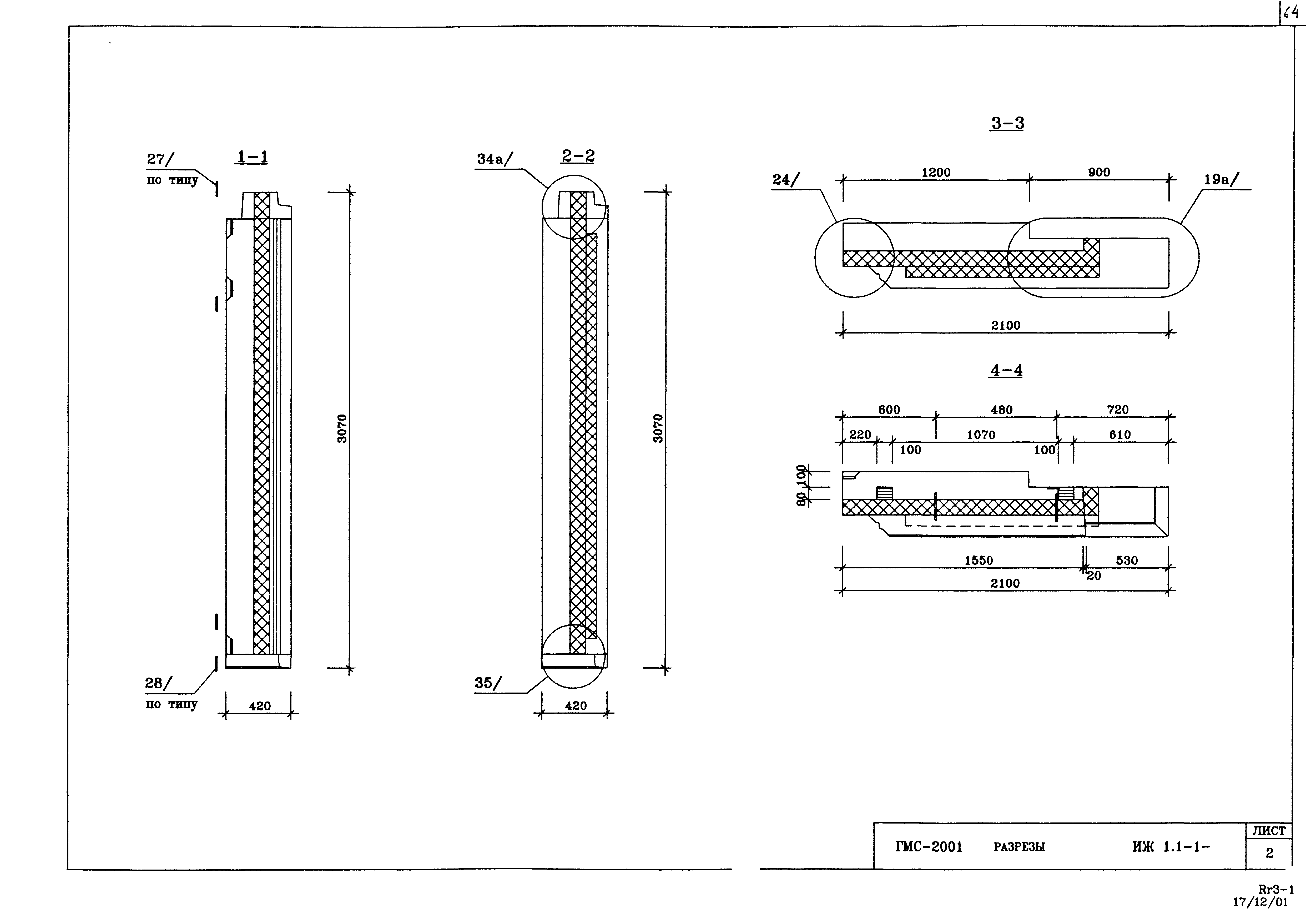
Скачать Альбом ИЖ 1.1-1 Индустриальные железобетонные изделия. Рабочая документация. Опалубочные чертежи изделий. Наружные стеновые панелиДата актуализации: 10.08.2017 Альбом ИЖ 1.1-1
Индустриальные железобетонные изделия. Рабочая документация. Опалубочные чертежи изделий. Наружные стеновые панелиОбозначение: | Альбом ИЖ 1.1-1 | Обозначение англ: | ИЖ 1.1-1 | Статус: | не определен законодательством | Название рус.: | Индустриальные железобетонные изделия. Рабочая документация. Опалубочные чертежи изделий. Наружные стеновые панели | Дата добавления в базу: | 01.09.2013 | Дата актуализации: | 05.05.2017 | Дата введения: | 01.12.2001 | Разработан: | ЦНИИЭП жилища
| Утверждён: | 01.12.2001 ЦНИИЭП жилища (TsNIIEPzhilishcha )
| Расположен в: |
|
                                                                           
|