Скачать Альбом ИЖ 4.2-1 Рабочая документация. Лестничные марши, площадки и плиты лифтовых холловДата актуализации: 10.08.2017 Альбом ИЖ 4.2-1
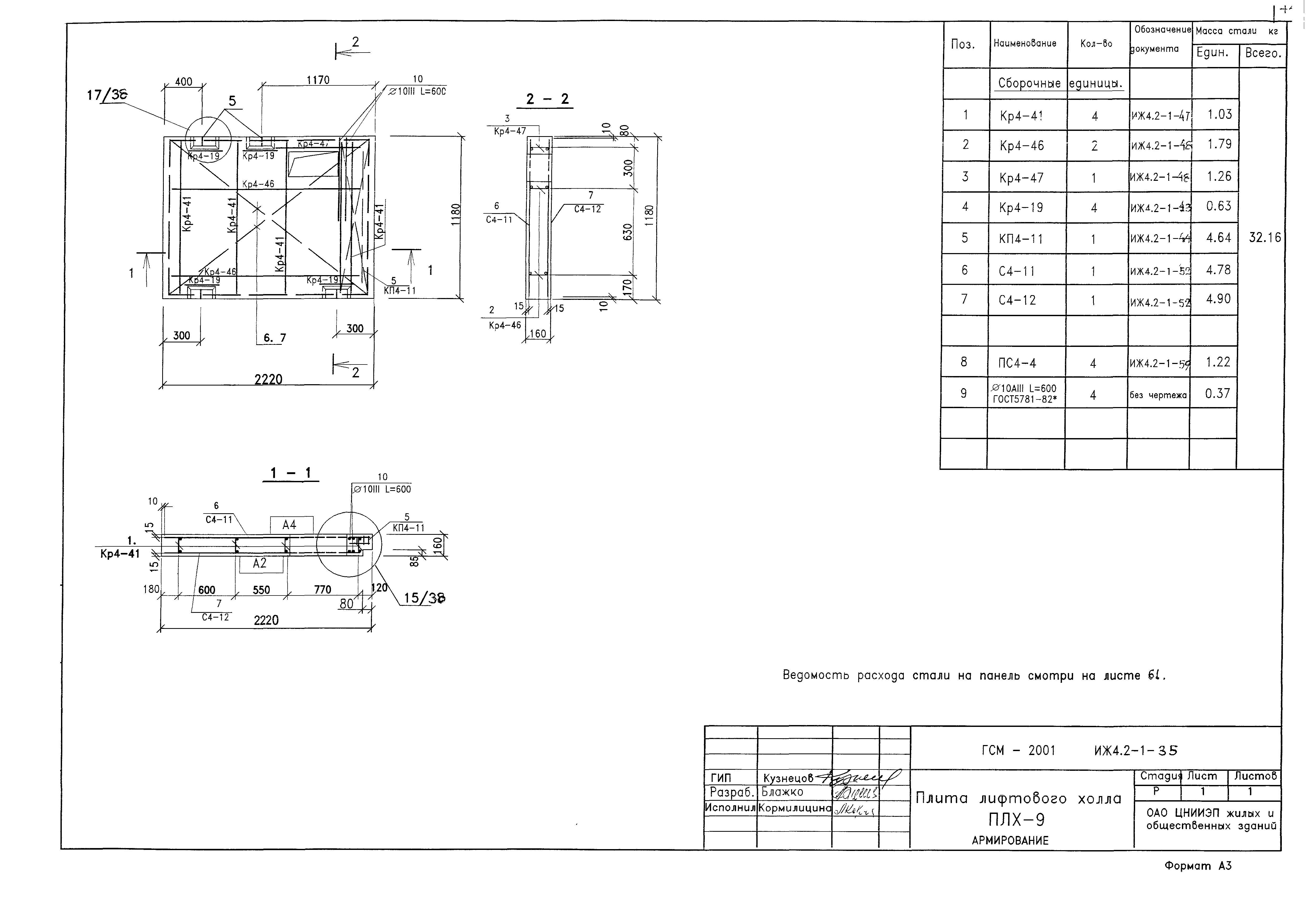
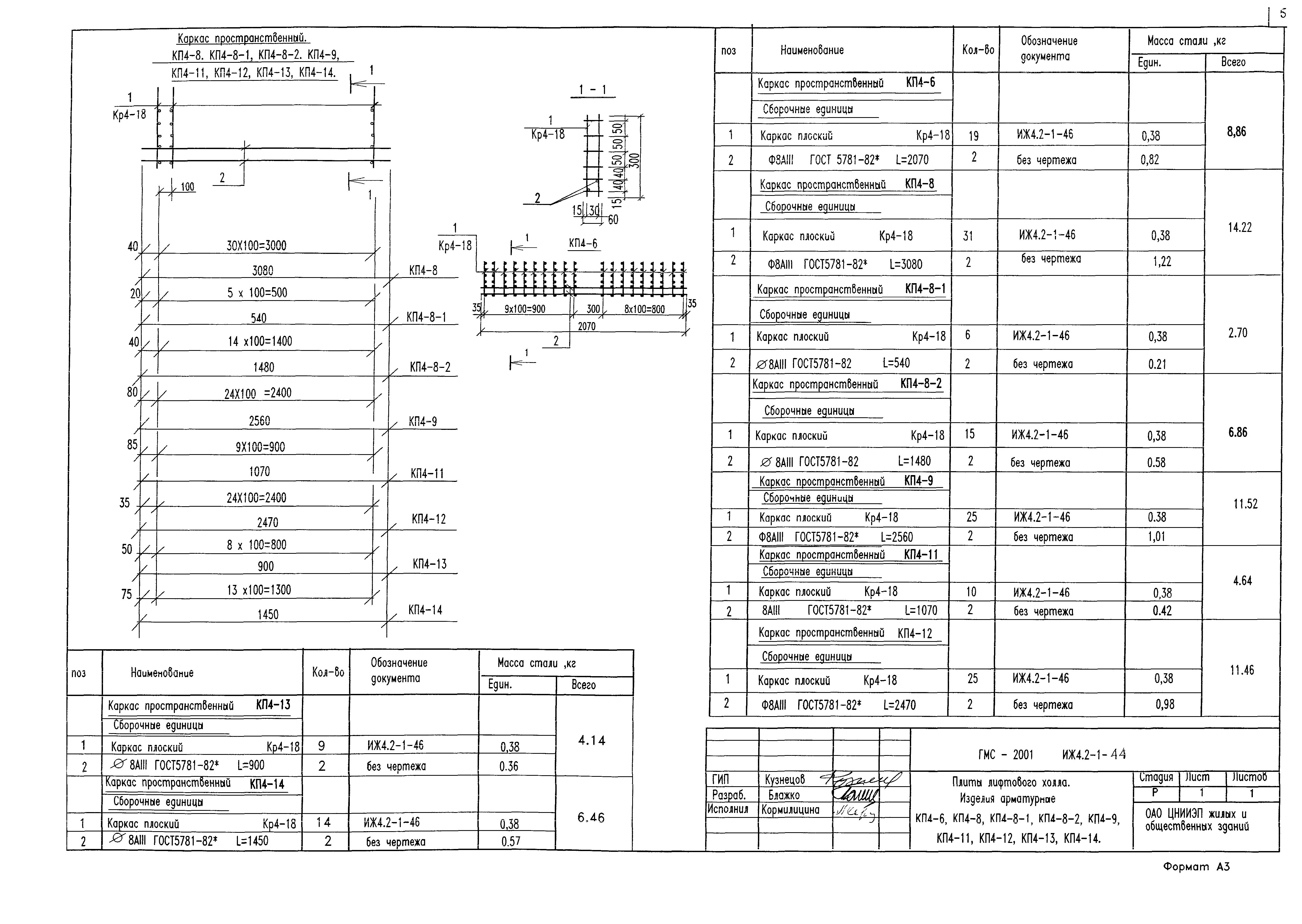
Рабочая документация. Лестничные марши, площадки и плиты лифтовых холловОбозначение: | Альбом ИЖ 4.2-1 | Обозначение англ: | ИЖ 4.2-1 | Статус: | не определен законодательством | Название рус.: | Рабочая документация. Лестничные марши, площадки и плиты лифтовых холлов | Дата добавления в базу: | 01.09.2013 | Дата актуализации: | 05.05.2017 | Дата введения: | 18.12.2002 | Оглавление: | ГМС-2001ИЖ4.2-1 Содержание, часть 1, часть 2 ГМС-2001ИЖ4.2-1-ТО Техническое описание ГМС-2001ИЖ4.2-1-Н Номенклатура ГМС-2001ИЖ4.2-1-1 Лестничный марш ЛМ1-Г. Сборочный чертеж ГМС-2001ИЖ4.2-1-2 Лестничный марш ЛМ2-Г Сборочный чертеж ГМС-2001ИЖ4.2-1-3 Лестничный марш ЛМ3. Сборочный чертеж ГМС-2001ИЖ4.2-1-4 Лестничные марши. Узлы 1, 2 ГМС-2001ИЖ4.2-1-5 Лестничные марши. Узлы 3, 4 ГМС-2001ИЖ4.2-1-6 Лестничные марши. Узлы 5, 6 ГМС-2001ИЖ4.2-1-7 Лестничная площадка ЛП1-1 ГМС-2001ИЖ4.2-1-8 Лестничная площадка ЛП2-1 ГМС-2001ИЖ4.2-1-9 Плита лифтового холла ПЛХ-1 ГМС-2001ИЖ4.2-1-10 Плита лифтового холла ПЛХ-2 ГМС-2001ИЖ4.2-1-11 Плита лифтового холла ПЛХ-3 ГМС-2001ИЖ4.2-1-12 Плита лифтового холла ПЛХ-4 ГМС-2001ИЖ4.2-1-13 Плита лифтового холла ПЛХ-5 ГМС-2001ИЖ4.2-1-14 Плита лифтового холла ПЛХ-5 -1 ГМС-2001ИЖ4.2-1-15 Плита лифтового холла ПЛХ-6 ГМС-2001ИЖ4.2-1-16 Плита лифтового холла ПЛХ-7 ГМС-2001ИЖ4.2-1-17 Плита лифтового холла ПЛХ-8 ГМС-2001ИЖ4.2-1-18 Плита лифтового холла ПЛХ-9 ГМС-2001ИЖ4.2-1-19 Узлы 1...4 ГМС-2001ИЖ4.2-1-20 Узлы 5....9 ГМС-2001ИЖ4.2-1-21 Узлы 10...14 ГМС-2001ИЖ4.2-1-22 Узлы А, Б, Б*, В ГМС-2001ИЖ4.2-1-23 Лестничная площадка ЛП1-1. Армирование ГМС-2001ИЖ4.2-1-24 Лестничная площадка ЛП2-1. Армирование ГМС-2001ИЖ4.2-1-25 Плита лифтового холла ПЛХ-1. Армирование ГМС-2001ИЖ4.2-1-26 Плита лифтового холла ПЛХ-2 Армирование ГМС-2001ИЖ4.2-1-27 Плита лифтового холла ПЛХ-3. Армирование ГМС-2001ИЖ4.2-1-28 Плита лифтового холла ПЛХ-4. Армирование ГМС-2001ИЖ4.2-1-29 Плита лифтового холла ПЛХ-4-1. Армирование ГМС-2001ИЖ4.2-1-30 Плита лифтового холла ПЛХ-5. Армирование ГМС-2001ИЖ4.2-1-31 Плита лифтового холла ПЛХ-5-1. Армирование ГМС-2001ИЖ4.2-1-32 Плита лифтового холла ПХЛ-6. Армирование ГМС-2001ИЖ4.2-1-33 Плита лифтового холла ПЛХ-7. Армирование ГМС-2001ИЖ4.2-1-34 Плита лифтового холла ПЛХ-8. Армирование ГМС-2001ИЖ4.2-1-35 Плита лифтового холла ПЛХ-9 Армирование ГМС-2001ИЖ4.2-1-36 Лестничные площадки. Арматурные узлы 5....8 ГМС-2001ИЖ4.2-1-37 Лестничные марши. Арматурные узлы 7....12 ГМС-2001ИЖ4.2-1-38 Плиты лифтового холла. Арматурные узлы 15... 17 ГМС-2001ИЖ4.2-1-39 Лестничные марши. Изделия арматурные КП4-1, КП4-2 ГМС-2001ИЖ4.2-1-40 Лестничный марш ЛМ3. Изделие арматурное КП4-3 ГМС-2001ИЖ4.2-1-41 Изделия арматурные Кр4-1, Кр4-3, Кр4-5 ГМС-2001ИЖ4.2-1-42 Изделия арматурные Кр4-7, Кр4-8, ОС-1, ОС-2 ГМС-2001ИЖ4.2-1-43 Изделия арматурные Кр4-13....Кр4-23 ГМС-2001ИЖ4.2-1-44 Плиты лифтового холла. Изделия арматурные. КП4-6,КП4-8,КП4-8-1,КП4-8-2,КП4-9,КП4-11....КП4-14 ГМС-2001ИЖ4.2-1-45 Изделия арматурные Кр4-24,Кр4-25,Кр4-25-1, Кр4-26,Кр4-28,Кр4-29,Кр4-29-1,Кр4-30,Кр4-30-1 ГМС-2001ИЖ4.2-1-46 Изделия арматурные Кр4-31,Кр4-36,Кр4-36-1, Кр4-37,Кр4-37-1,Кр4-38,Кр4-39 ГМС-2001ИЖ4.2-1-47 Изделия арматурные Кр4-40, Кр4-41 ,Кр4-42,Кр4-44 ГМС-2001ИЖ4.2-1-48 Изделия арматурные Кр4-46....Кр4-51, Кр4-52,Кр4-52-1,Кр4-53,Кр4-54 ГМС-2001ИЖ4.2-1-49 Изделия арматурные Кр4-55....Кр4-61 ГМС-2001ИЖ4.2-1-50 Изделия арматурные С4-3....С4-6,С4-9, С4-10,С4-16,С4-18 ГМС-2001ИЖ4.2-1-51 Изделия арматурные С4-7, С4-8 ГМС-2001ИЖ4.2-1-52 Изделия арматурные С4-11, С4-12, С4-15 ГМС-2001ИЖ4.2-1-53 Изделия арматурные С4-17 и С4-19 ГМС-2001ИЖ4.2-1-54 Изделия арматурные С4-21 и С4-22 ГМС-2001ИЖ4.2-1-55 Изделие закладное М4-1 ГМС-2001ИЖ4.2-1-56 Изделие закладное МП-2 ГМС-2001ИЖ4.2-1-57 Изделие закладное МП-2-1 ГМС-2001ИЖ4.2-1-58 Петли строповочные ПС4-1, ПС4-2 ГМС-2001ИЖ4.2-1-59 Петли строповочные ПС4-4, ПС4-5, ПС4-6 ГМС-2001ИЖ4.2-1-60 Петля строповочная ПС4-7 ГМС-2001ИЖ4.2-1-61 Ведомость расхода стали на элемент, кг | Разработан: | ЦНИИЭП жилища
| Утверждён: | 18.12.2002 ЦНИИЭП жилища (TsNIIEPzhilishcha 287)
| Расположен в: |
|
                                                                      
|