Информационная система
«Ёшкин Кот»

Скачать базу одним архивом
Скачать обновления
История создания базы
Карта сайта

Скачать Серия 1.031.9-3.01 Выпуск 1. Перегородки. Рабочие чертежи

Дата актуализации: 10.08.2017

Серия 1.031.9-3.01

Выпуск 1. Перегородки. Рабочие чертежи

Обозначение: Серия 1.031.9-3.01
Обозначение англ: Series 1.031.9-3.01
Статус:не действует
Название рус.:Выпуск 1. Перегородки. Рабочие чертежи
Дата добавления в базу:01.09.2013
Дата актуализации:05.05.2017
Оглавление:1.031.9-3.01.1-ПЗ Пояснительная записка
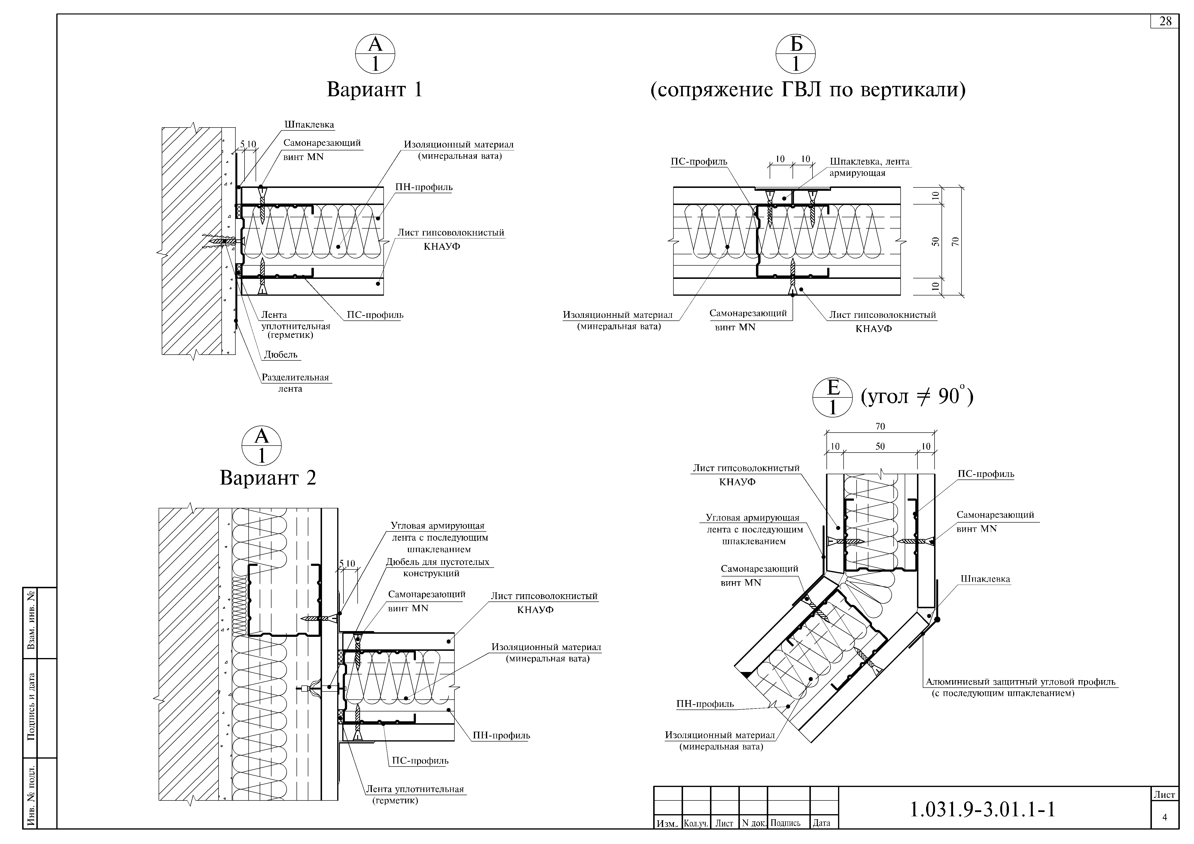
1.031.9-3.01.1-1 Перегородка С 361
1.031.9-3.01.1-2 Устройство проёма в металлическом каркасе, удлинение стоечных профилей
1.031.9-3.01.1-3 Перегородка С 362
1.031.9-3.01.1-4 Перегородка С 363
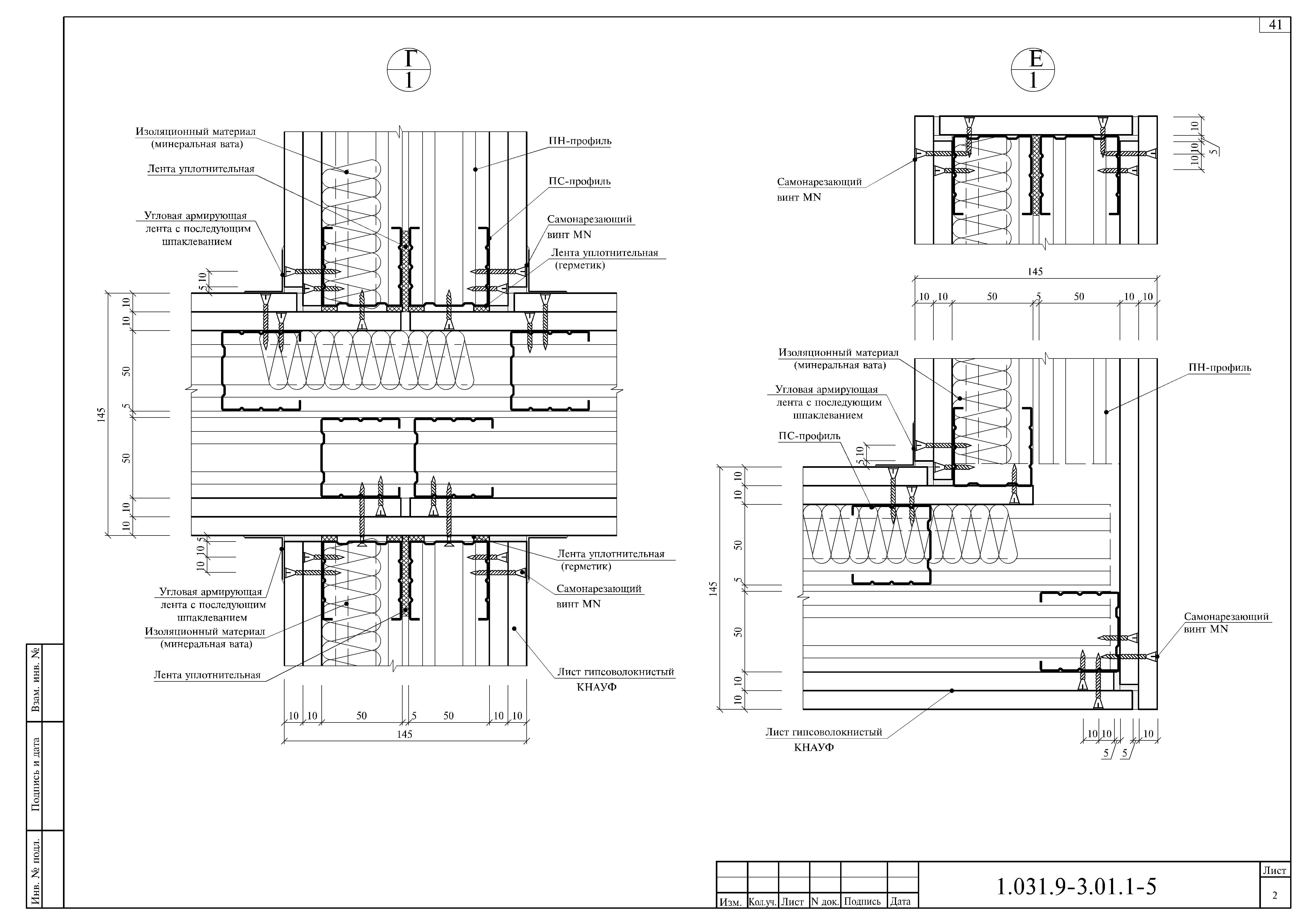
1.031.9-3.01.1-5 Перегородка С 365
1.031.9-3.01.1-6 Перегородка С 366
1.031.9-3.01.1-7 Перегородка С 367
1.031.9-3.01.1-8 Перегородка С 368
1.031.9-3.01.1-9 Перегородка С 369
1.031.9-3.01.1-10 Сопряжение перегородок с коммуникационными трассами
1.031.9-3.01.1-11 Установка коробок под электрооборудование
1.031.9-3.01.1-12 Встроенный пожарный шкаф
1.031.9-3.01.1-13 Система для крепления навесного оборудования
1.031.9-3.01.1-П1 Приложение 1
1.031.9-3.01.1-П2 Приложение 2
Разработан: ЗАО НП Челябинский Промстройпроект
Утверждён:05.06.2001 Глава Администрации Челябинской области (33)
Принят: КНАУФ
Расположен в:Техническая документация Строительство Справочные документы Типовые строительные конструкции, изделия и узлы Разработанные другими министерствами, ведомствами и организациями
Чем заменён:
Серия 1.031.9-3.01Серия 1.031.9-3.01Серия 1.031.9-3.01Серия 1.031.9-3.01Серия 1.031.9-3.01Серия 1.031.9-3.01Серия 1.031.9-3.01Серия 1.031.9-3.01Серия 1.031.9-3.01Серия 1.031.9-3.01Серия 1.031.9-3.01Серия 1.031.9-3.01Серия 1.031.9-3.01Серия 1.031.9-3.01Серия 1.031.9-3.01Серия 1.031.9-3.01Серия 1.031.9-3.01Серия 1.031.9-3.01Серия 1.031.9-3.01Серия 1.031.9-3.01Серия 1.031.9-3.01Серия 1.031.9-3.01Серия 1.031.9-3.01Серия 1.031.9-3.01Серия 1.031.9-3.01Серия 1.031.9-3.01Серия 1.031.9-3.01Серия 1.031.9-3.01Серия 1.031.9-3.01Серия 1.031.9-3.01Серия 1.031.9-3.01Серия 1.031.9-3.01Серия 1.031.9-3.01Серия 1.031.9-3.01Серия 1.031.9-3.01Серия 1.031.9-3.01Серия 1.031.9-3.01Серия 1.031.9-3.01Серия 1.031.9-3.01Серия 1.031.9-3.01Серия 1.031.9-3.01Серия 1.031.9-3.01Серия 1.031.9-3.01Серия 1.031.9-3.01Серия 1.031.9-3.01Серия 1.031.9-3.01Серия 1.031.9-3.01Серия 1.031.9-3.01Серия 1.031.9-3.01Серия 1.031.9-3.01Серия 1.031.9-3.01Серия 1.031.9-3.01Серия 1.031.9-3.01Серия 1.031.9-3.01Серия 1.031.9-3.01Серия 1.031.9-3.01Серия 1.031.9-3.01Серия 1.031.9-3.01Серия 1.031.9-3.01Серия 1.031.9-3.01Серия 1.031.9-3.01Серия 1.031.9-3.01Серия 1.031.9-3.01Серия 1.031.9-3.01Серия 1.031.9-3.01Серия 1.031.9-3.01Серия 1.031.9-3.01Серия 1.031.9-3.01Серия 1.031.9-3.01Серия 1.031.9-3.01Серия 1.031.9-3.01Серия 1.031.9-3.01Серия 1.031.9-3.01Серия 1.031.9-3.01Серия 1.031.9-3.01Серия 1.031.9-3.01

© 2013 Ёшкин Кот :-) Карта сайта