Информационная система
«Ёшкин Кот»

Скачать базу одним архивом
Скачать обновления
История создания базы
Карта сайта

Скачать НТП 24-94 Нормы технологического проектирования производства водорода методом электролиза воды

Дата актуализации: 10.08.2017

НТП 24-94

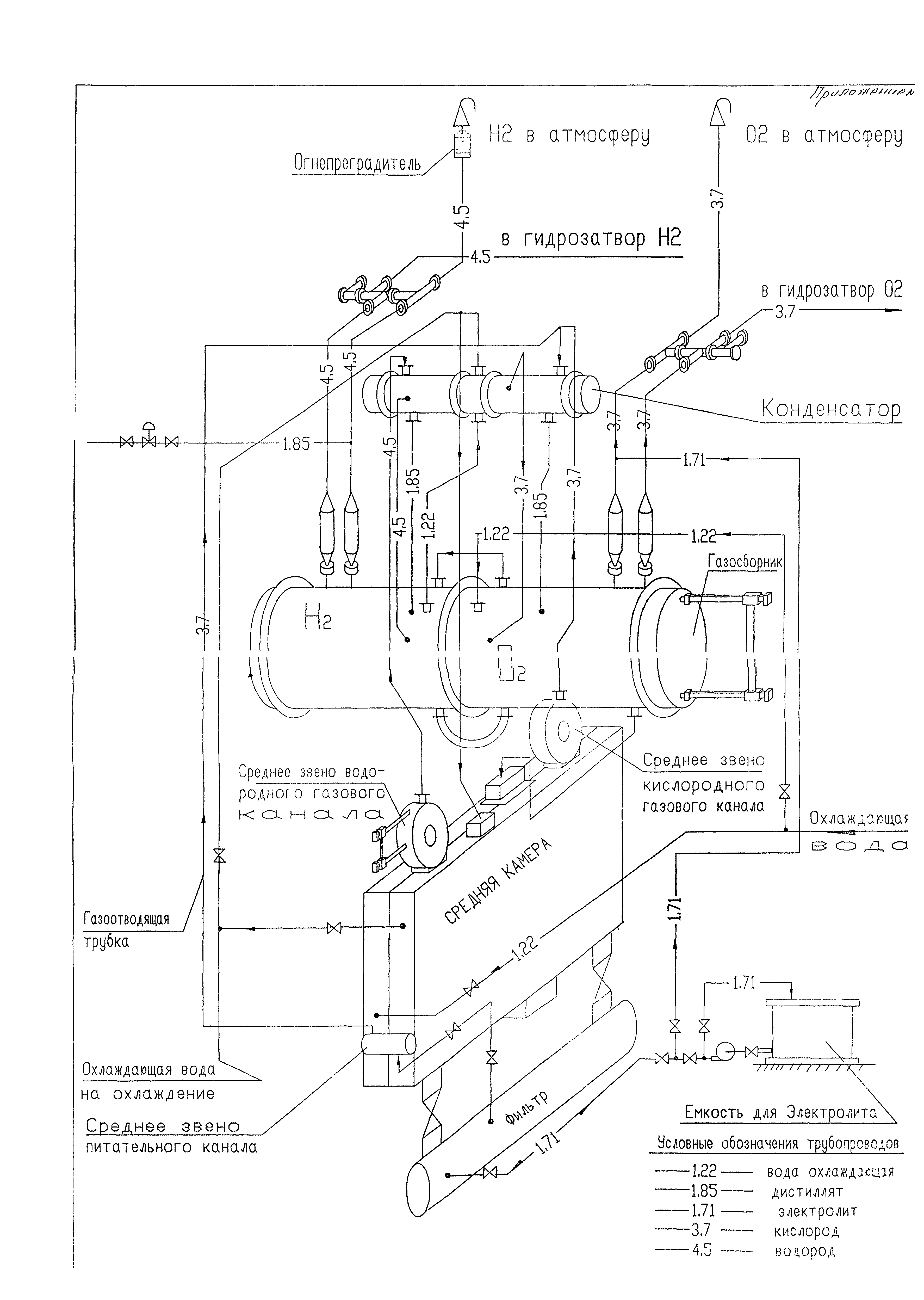
Нормы технологического проектирования производства водорода методом электролиза воды

Обозначение: НТП 24-94
Обозначение англ: NTP 24-94
Статус:действует
Название рус.:Нормы технологического проектирования производства водорода методом электролиза воды
Дата добавления в базу:01.09.2013
Дата актуализации:05.05.2017
Область применения:Нормы определяют требования к проектированию технологических процессов, обязательные для всех проектных организаций, разрабатывающих проекты на строительство новых, реконструкцию, расширение и техническое перевооружение действующих производств (цехов) водорода методом электролиза воды на предприятиях масложировой промышленности.
Утверждён: Комитет РФ по пищевой и перерабатывающей промышленности (Food and Food Processing Industry Committee )
Принят: ГУГПС МВД России (GUGPS, Russian Federation Ministry of Internal Affairs )
НПО Масложирпром (Maslozhirprom NPO )
Санэпиднадзор РФ
Расположен в:Техническая документация Строительство Нормативные документы Отраслевые и ведомственные нормативно-методические документы Проектирование и строительство объектов других министерств
Заменяет собой:
  • «Инструкция по технологическому проектированию цехов по производству водорода методом электролиза воды» (утв. 03.02.1986)
Нормативные ссылки:
НТП 24-94НТП 24-94НТП 24-94НТП 24-94НТП 24-94НТП 24-94НТП 24-94НТП 24-94НТП 24-94НТП 24-94НТП 24-94НТП 24-94НТП 24-94НТП 24-94НТП 24-94НТП 24-94НТП 24-94НТП 24-94НТП 24-94НТП 24-94НТП 24-94НТП 24-94НТП 24-94НТП 24-94НТП 24-94НТП 24-94НТП 24-94НТП 24-94НТП 24-94НТП 24-94НТП 24-94НТП 24-94НТП 24-94НТП 24-94НТП 24-94НТП 24-94НТП 24-94

© 2013 Ёшкин Кот :-) Карта сайта