Информационная система
«Ёшкин Кот»

Скачать базу одним архивом
Скачать обновления
История создания базы
Карта сайта

Скачать Шифр М25.41/2000 Выпуск 1. Материалы для проектирования и рабочие чертежи узлов

Дата актуализации: 10.08.2017

Шифр М25.41/2000

Выпуск 1. Материалы для проектирования и рабочие чертежи узлов

Обозначение: Шифр М25.41/2000
Обозначение англ: М25.41/2000
Статус:не действует
Название рус.:Выпуск 1. Материалы для проектирования и рабочие чертежи узлов
Дата добавления в базу:01.09.2013
Дата актуализации:05.05.2017
Оглавление:М25.41/2000 Содержание
М25.41/2000-ПЗ Пояснительная записка
М25.41/2000-ПЗ 1. Область применения
М25.41/2000-ПЗ 2. Применяемые материалы и изделия
М25.41/2000-ПЗ 3. Облицовка стен
М25.41/2000-ПЗ 4. Облицовка мансардных помещений
М25.41/2000-ПЗ 5. Коммуникационные шахты
М25.41/2000-ПЗ 6. Отделка поверхностей конструкций из гипсоволокнистых листов
М25.41/2000-ПЗ 7. Основные правила технической
М25.41/2000-ПЗ 8. Приемка смонтированных конструкций с применением гипсоволокнистых листов
Раздел I. Конструкции облицовок стен (С 66)
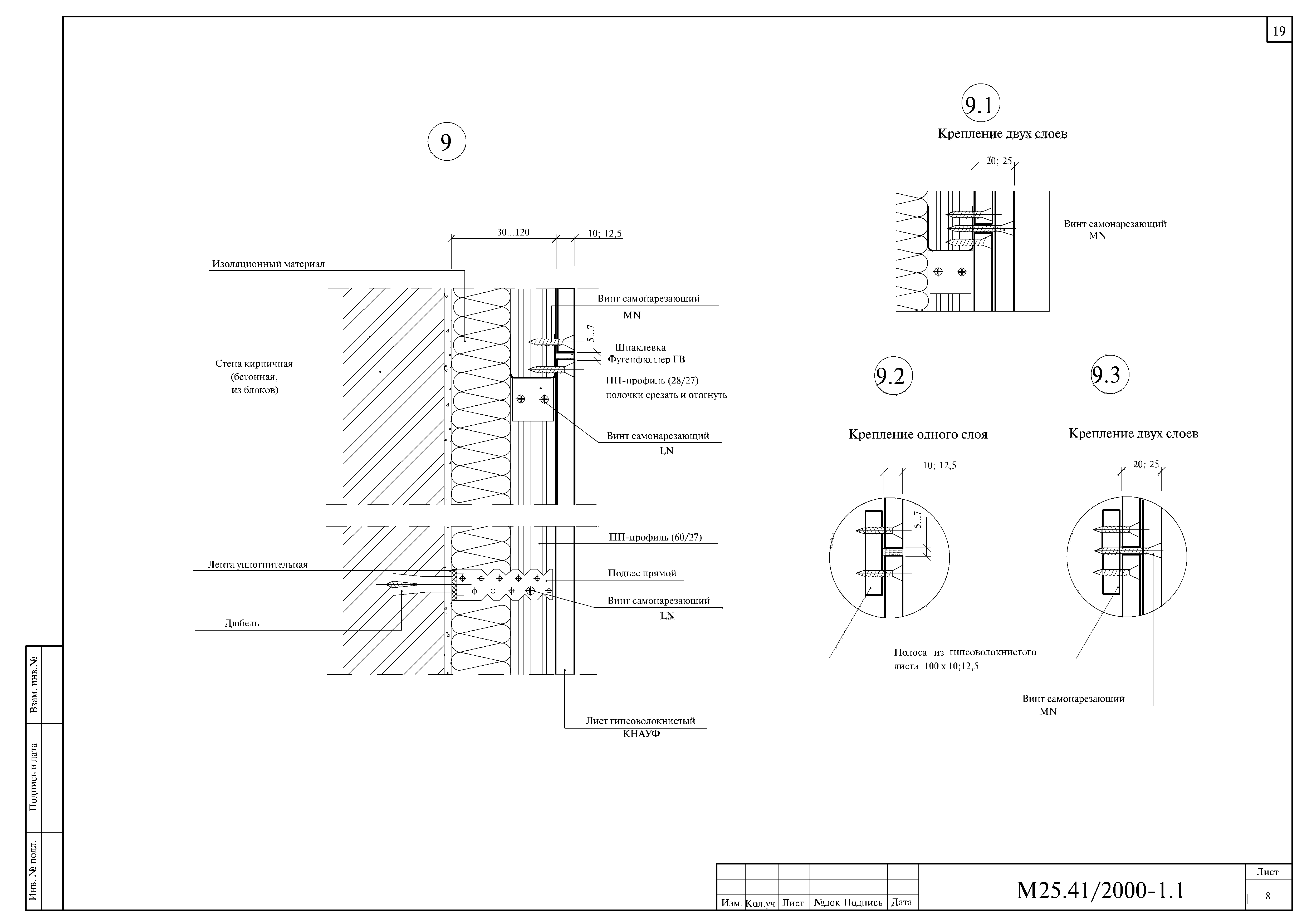
М25.41/2000-1.1. С 663 Облицовка по металлическому каркасу из ПП- и ПН-профилей
М25.41/2000-1.2. С 665, С 666 Облицовка по металлическому каркасу из ПС- и ПН-профилей
М25.41/2000-1.3. Сопряжение облицовок с коммуникационными трассами
Раздел II Конструкции облицовок мансардных помещений (М 68)
М25.41/2000-2.0. Внутренняя отделка мансард
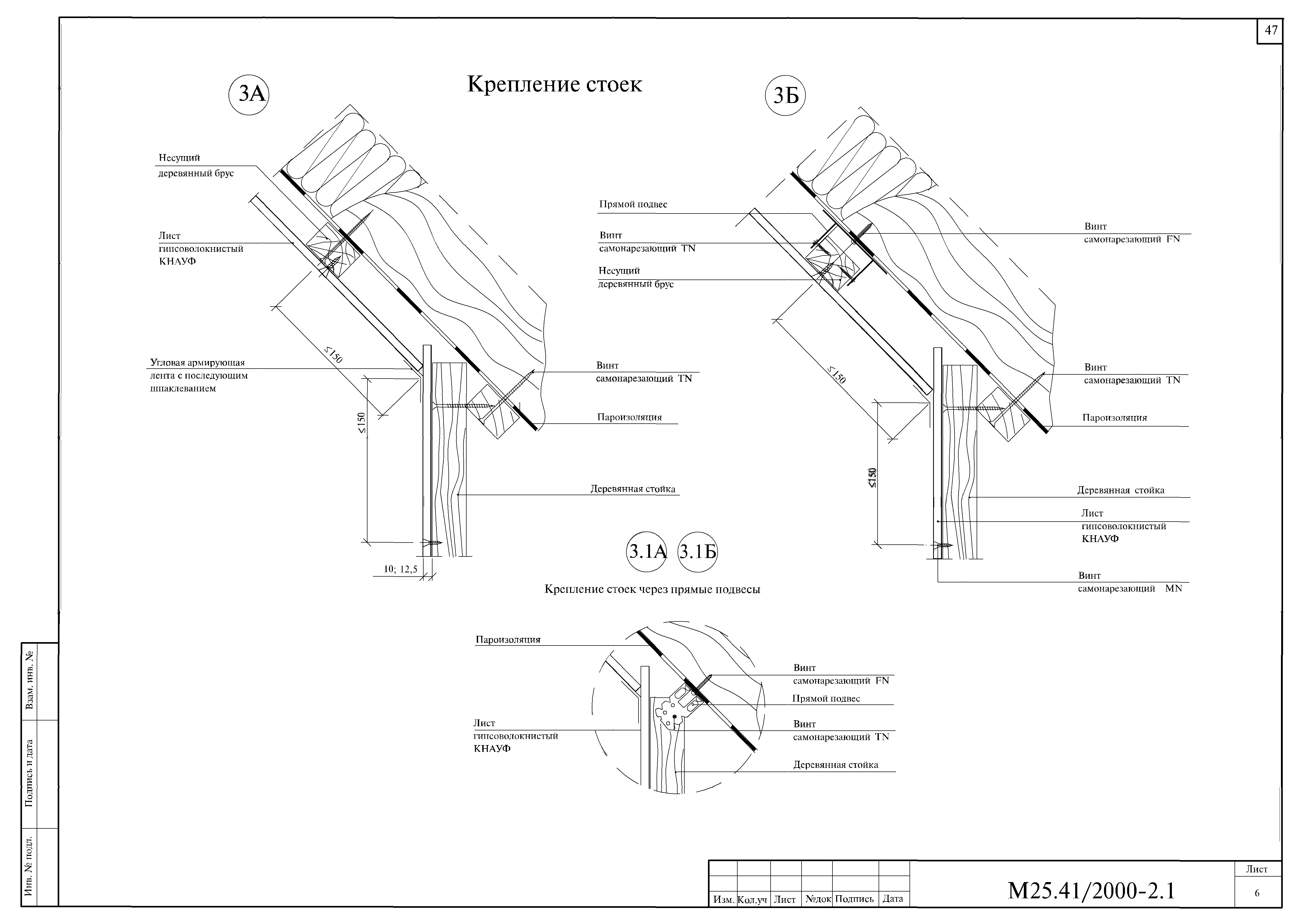
М25.41/2000-2.1. М 681 Облицовка мансарды по деревянному каркасу
М25.41/2000-2.2. М 682 Облицовка мансарды по металлическому каркасу
Раздел III Коммуникационные шахты
М25.41/2000-3.1. Коммуникационные шахты
М25.41/2000-П1 Приложение 1
Разработан: АО ЦНИИпромзданий
Утверждён:01.01.2001 ОАО ЦНИИпромзданий (TsNIIpromzdaniy OAO )
Расположен в:Техническая документация Строительство Справочные документы Типовые строительные конструкции, изделия и узлы Разработанные другими министерствами, ведомствами и организациями
Чем заменён:
Шифр М25.41/2000Шифр М25.41/2000Шифр М25.41/2000Шифр М25.41/2000Шифр М25.41/2000Шифр М25.41/2000Шифр М25.41/2000Шифр М25.41/2000Шифр М25.41/2000Шифр М25.41/2000Шифр М25.41/2000Шифр М25.41/2000Шифр М25.41/2000Шифр М25.41/2000Шифр М25.41/2000Шифр М25.41/2000Шифр М25.41/2000Шифр М25.41/2000Шифр М25.41/2000Шифр М25.41/2000Шифр М25.41/2000Шифр М25.41/2000Шифр М25.41/2000Шифр М25.41/2000Шифр М25.41/2000Шифр М25.41/2000Шифр М25.41/2000Шифр М25.41/2000Шифр М25.41/2000Шифр М25.41/2000Шифр М25.41/2000Шифр М25.41/2000Шифр М25.41/2000Шифр М25.41/2000Шифр М25.41/2000Шифр М25.41/2000Шифр М25.41/2000Шифр М25.41/2000Шифр М25.41/2000Шифр М25.41/2000Шифр М25.41/2000Шифр М25.41/2000Шифр М25.41/2000Шифр М25.41/2000Шифр М25.41/2000Шифр М25.41/2000Шифр М25.41/2000Шифр М25.41/2000Шифр М25.41/2000Шифр М25.41/2000Шифр М25.41/2000Шифр М25.41/2000Шифр М25.41/2000Шифр М25.41/2000Шифр М25.41/2000Шифр М25.41/2000Шифр М25.41/2000Шифр М25.41/2000Шифр М25.41/2000Шифр М25.41/2000Шифр М25.41/2000Шифр М25.41/2000Шифр М25.41/2000Шифр М25.41/2000Шифр М25.41/2000Шифр М25.41/2000Шифр М25.41/2000Шифр М25.41/2000

© 2013 Ёшкин Кот :-) Карта сайта