Информационная система
«Ёшкин Кот»

Скачать базу одним архивом
Скачать обновления
История создания базы
Карта сайта

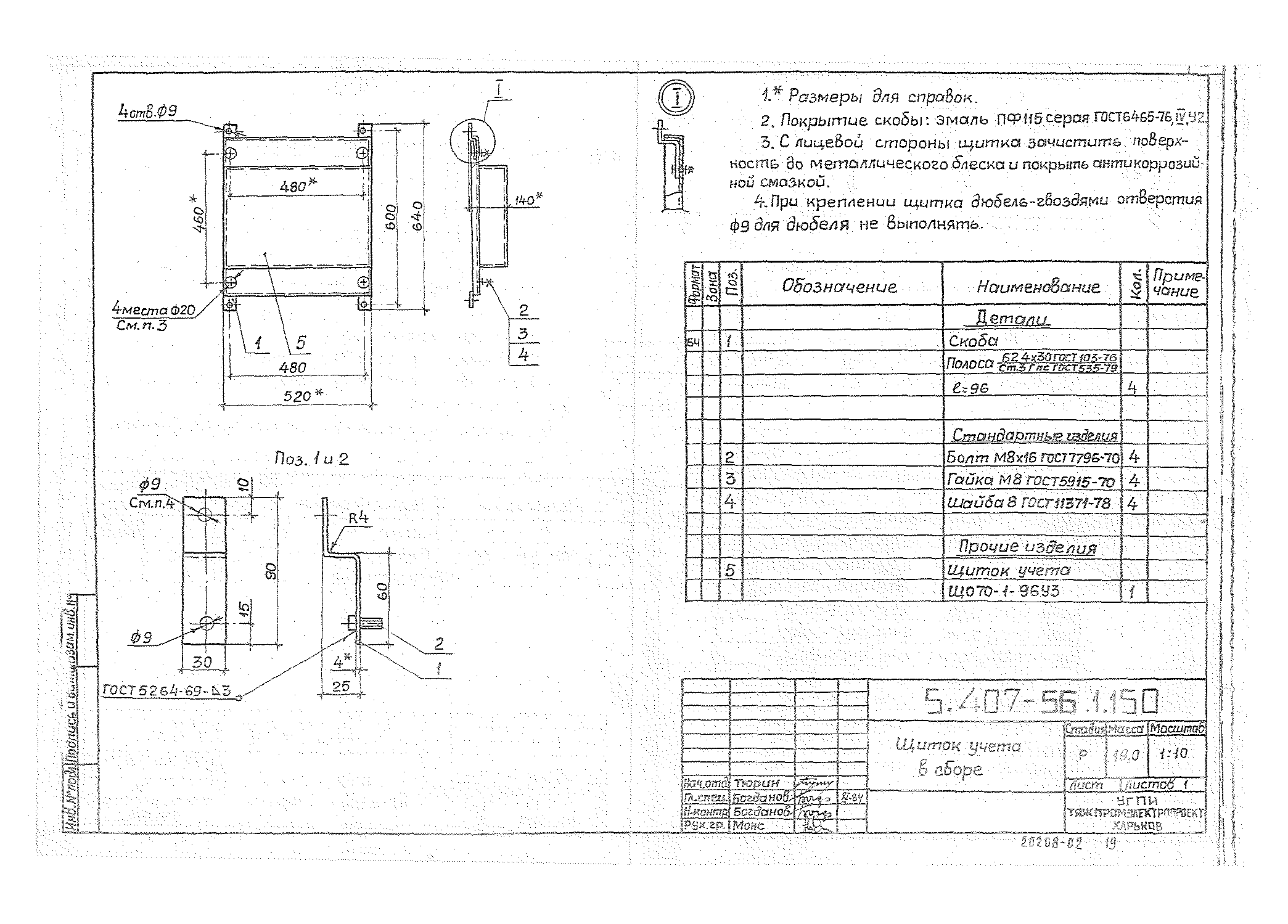
Скачать Серия 5.407-56 Выпуск 1. Монтажные чертежи

Дата актуализации: 10.08.2017

Серия 5.407-56

Выпуск 1. Монтажные чертежи

Обозначение: Серия 5.407-56
Обозначение англ: Series 5.407-56
Статус:не действует
Название рус.:Выпуск 1. Монтажные чертежи
Дата добавления в базу:01.09.2013
Дата актуализации:05.05.2017
Дата окончания срока действия:01.04.1991
Разработан: УГПИ Тяжпромэлектропроект Минмонтажспецстроя УССР
Утверждён:19.11.1984 Минмонтажспецстрой СССР (USSR Minmontazhspetsstroy )
Расположен в:Техническая документация Строительство Справочные документы Типовые строительные конструкции, изделия и узлы Общероссийский строительный каталог Строительные конструкции, изделия и узлы зданий и сооружений для всех видов строительства Инженерное оборудование Инженерное оборудование; изделия и узлы инженерного оборудования зданий и сооружений Электрооборудование и электросети Установки трансформаторных подстанций и распределительных устройств
Заменяет собой:
  • Серия 4.407-185 «Установка распределительных щитов и шкафов (изготовление заводов треста Электромонтажиндустрия)»
Чем заменён:
Серия 5.407-56Серия 5.407-56Серия 5.407-56Серия 5.407-56Серия 5.407-56Серия 5.407-56Серия 5.407-56Серия 5.407-56Серия 5.407-56Серия 5.407-56Серия 5.407-56Серия 5.407-56Серия 5.407-56Серия 5.407-56Серия 5.407-56Серия 5.407-56Серия 5.407-56Серия 5.407-56Серия 5.407-56Серия 5.407-56Серия 5.407-56Серия 5.407-56Серия 5.407-56Серия 5.407-56Серия 5.407-56Серия 5.407-56Серия 5.407-56Серия 5.407-56Серия 5.407-56Серия 5.407-56Серия 5.407-56

© 2013 Ёшкин Кот :-) Карта сайта