Скачать Типовой проект 907-2-263.86 Альбом 2. Конструкции металлические. Конструкции железобетонныеДата актуализации: 10.08.2017 Типовой проект 907-2-263.86
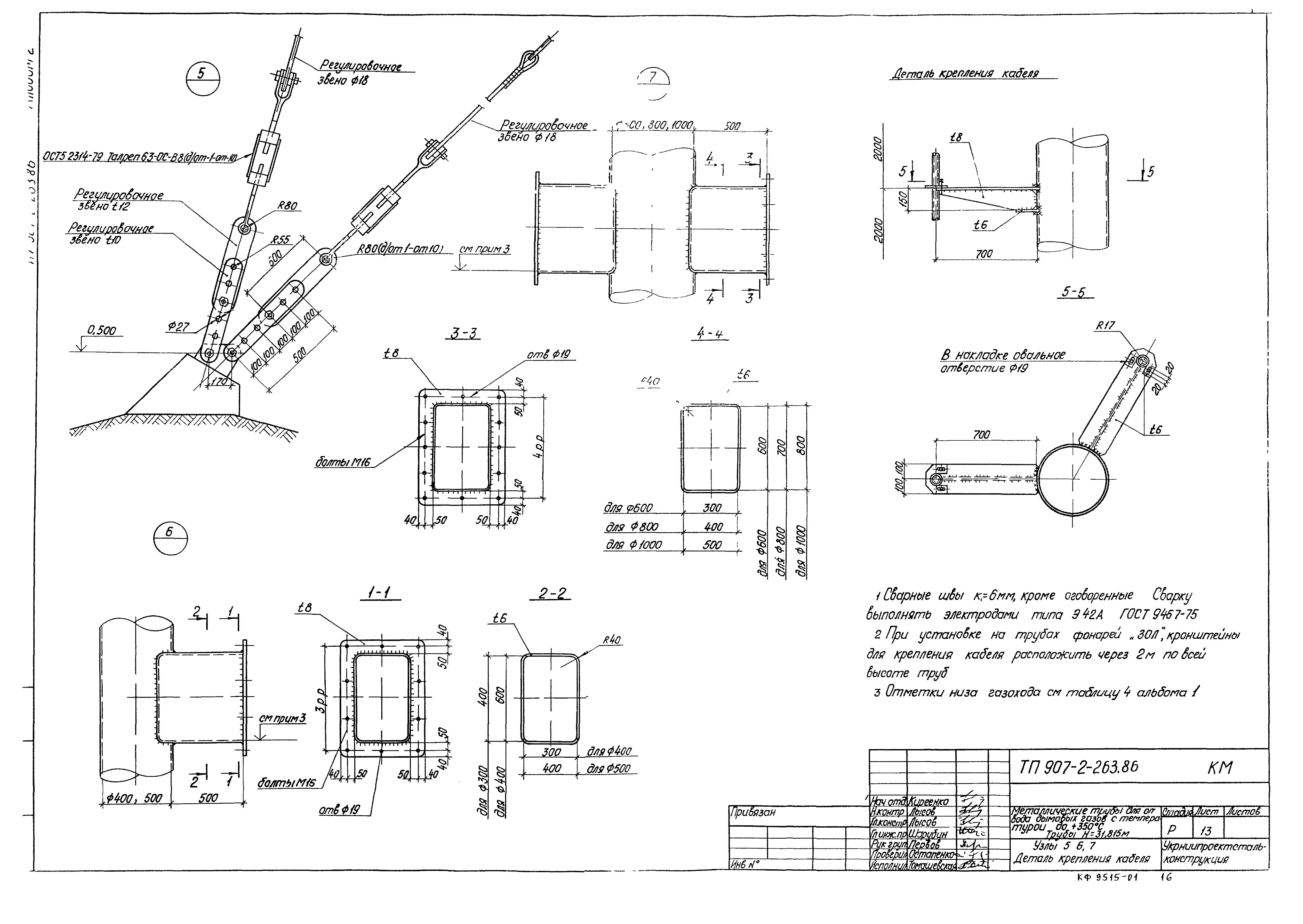
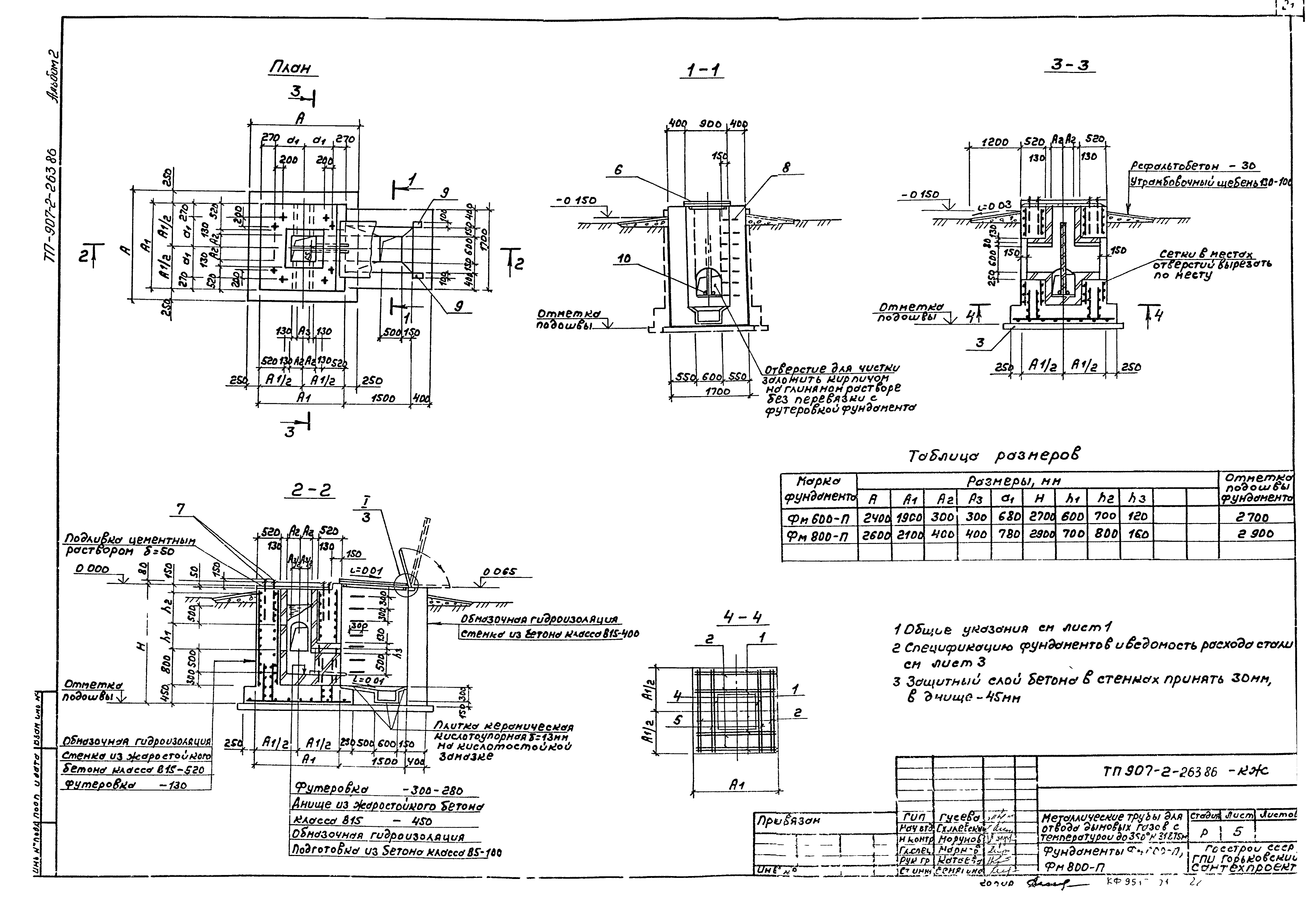
Альбом 2. Конструкции металлические. Конструкции железобетонныеОбозначение: | Типовой проект 907-2-263.86 | Обозначение англ: | 907-2-263.86 | Статус: | не определен законодательством | Название рус.: | Альбом 2. Конструкции металлические. Конструкции железобетонные | Дата добавления в базу: | 01.09.2013 | Дата актуализации: | 05.05.2017 | Дата введения: | 09.12.1986 | Оглавление: | Конструкции металлические КМ-1 Общие данные КМ-2 Труба Н=31,815 м Д=400 мм. Техническая спецификация металла КМ-3 Труба Н=31,815 м Д=500 мм. Техническая спецификация металла КМ-4 Труба Н=31,815 м Д=600 мм. Техническая спецификация металла КМ-5 Труба Н=31,815 м Д=800 мм. Техническая спецификация металла КМ-6 Труба Н=31,815 м Д=1000 мм. Техническая спецификация металла КМ-7 Труба Н=31,815 м Д=400, 500 мм. Ведомость металлоконструкций по видам профилей КМ-8 Труба Н=31,815 м Д=600, 800 мм. Ведомость металлоконструкций по видам профилей КМ-9 Труба Н=31,815 м Д=1000 мм. Ведомость металлоконструкций по видам профилей КМ-10 Схемы труб Н=31,815 м Д=400; 500 и 600 мм КМ-11 Схемы труб Н=31,815 м Д=800 и 1000 мм КМ-12 Узлы 1-4 КМ-13 Узлы 5-7. Деталь крепления кабеля КМ-14 Оттяжки от 1 - от 10 Конструкции железобетонные КЖ-1 Общие данные КЖ-2 Схема расположения фундаментов трубы. Фундамент ФМ1 КЖ-3 Спецификация фундаментов с подземным примыканием газоходов КЖ-4 Фундаменты ФМ 400-П; ФМ 500-П КЖ-5 Фундаменты ФМ 600-П; ФМ 800-П КЖ-6 Фундаменты ФМ 1000-П КЖ-7 Спецификация фундаментов с надземным примыканием газоходов КЖ-8 Фундаменты ФМ 400-Н; ФМ 500-Н; ФМ 600-Н; ФМ 800-Н КД-9 Фундамент ФМ 1000-Н КЖ И ТУ Технические условия КЖ И 001 Сетка арматурная (С1-С5, С11-С-13) КЖ И 002 Сетка арматурная (С6-С10) КЖ И 003 Изделие закладное МН1 КЖ И 004 Изделие закладное МН2 КЖ И 005 Щит покрытие (ШП1) КЖ И 006 Рама металлическая (РМ1) КЖ И 007 Щит деревянный (ДЩ1) | Разработан: | Государственный проектный и научно-исслед. институт УкрНИИпроектстальконструкция Госстроя СССР ГПИ Горьковский Сантехпроект
| Утверждён: | 03.11.1985 Госстрой СССР (Государственный комитет Совета Министров СССР по делам строительства) (USSR Gosstroy 61)
| Издан: | ЦИТП Госстроя СССР (CITP, Gosstroy (USSR) 1988 г. )
| Расположен в: |
|
                          
|