Информационная система
«Ёшкин Кот»

Скачать базу одним архивом
Скачать обновления
История создания базы
Карта сайта

Скачать Серия 1.400-10/76 Выпуск 2. Узлы колонн и подкрановых балок. Чертежи КМ

Дата актуализации: 10.08.2017

Серия 1.400-10/76

Выпуск 2. Узлы колонн и подкрановых балок. Чертежи КМ

Обозначение: Серия 1.400-10/76
Обозначение англ: Series 1.400-10/76
Статус:не действует
Название рус.:Выпуск 2. Узлы колонн и подкрановых балок. Чертежи КМ
Дата добавления в базу:01.09.2013
Дата актуализации:05.05.2017
Дата окончания срока действия:01.07.1984
Оглавление:Пояснительная записка
I Пример оформления чертежей КМ с применением типовых узлов
Пример оформления чертежей КМ с применением типовых узлов. План колонн на отм. 0.000
Пример оформления чертежей КМ с применением типовых узлов. Поперечные разрезы 1-1 и 2-2
Пример оформления чертежей КМ с применением типовых узлов. Таблицы расчетных данных к типовым узлам
Пример оформления чертежей КМ с применением типовых узлов. Продольные разрезы 3-3; 4-4; 5-5; 6-6
Пример оформления чертежей КМ с применением типовых узлов. Схемы подкрановых балок, тормозных площадок и связей по нижним поясам подкрановых балок
Пример оформления чертежей КМ с применением типовых узлов. Схемы подкрановых балок
Общие примечания
II Схемы с маркировкой узлов колонн и подкрановых балок
Маркировка узлов деталей неразрезных подкрановых балок
Маркировка узлов ступенчатых колонн без прохода вдоль крановых путей и узлов колонн в температурном режиме
Маркировка узлов ступенчатых колонн с проходом вдоль крановых путей и маркировка упоров
Маркировка узлов колонн постоянного сечения без прохода и с проходом вдоль крановых путей
Маркировка узлов опирания подкрановых балок на железобетонные колонны
III Заводские и монтажные узлы подкрановых балок
Детали приварки опорных ребер и ребер жесткости неразрезных подкрановых балок при отрыве менее 55 т. Узлы 1; 2
Детали приварки опорных ребер и ребер жесткости неразрезных подкрановых балок при отрыве более 55 т. Узлы 3; 4; 5
Монтажные сварные стыки неразрезных подкрановых балок. Узлы 6; 7
Монтажные стыки стенок неразрезных подкрановых балок на высокопрочных болтах. Узлы 8; 9
Монтажные стыки верхних поясов неразрезных подкрановых балок на высокопрочных болтах. Узлы 10; 11; 12
Монтажные стыки нижних поясов неразрезных подкрановых балок на высокопрочных болтах. Узлы 13; 14
Расположение отверстий в верхних поясах подкрановых балок при креплении рельса на планках и отверстий в ж.д. рельсе Р43 при креплении на крюках
Упоры. Узлы 15; 16; 17; 18
IV Узлы опирания подкрановых балок на стальные ступенчатые колонны
Опирание балок на ступенчатую колонну при отрыве менее 55 т. Крайний ряд. Узел 19
Опирание балок на ступенчатую колонну при отрыве менее 55 т. Средний ряд. Узел 20
Опирание балок на ступенчатую колонну при отрыве более 55 т. Крайний ряд. Узел 21
Опирание балок на ступенчатую колонну при отрыве более 55 т. Средний ряд. Узел 22
Опирание балок на ступенчатую колонну при отрыве менее 55 т. Крайний ряд. Узел 23
Опирание балок на ступенчатую колонну при отрыве более 55 т. Крайний ряд. Узел 24
Опирание балок на ступенчатую колонну с проходом в стенке колонны при отрыве менее 55 т. Крайний ряд. Узел 25
Опирание балок на ступенчатую колонну с проходом в стенке колонны при отрыве менее 55 т. Средний ряд. Узел 26
Опирание балок на ступенчатую колонну с проходом в стенке колонны при отрыве менее 55 т. Крайний ряд. Узел 27
Опирание балок на ступенчатую колонну с проходом в стенке колонны при отрыве более 55 т. Крайний ряд. Узел 28
Опирание балок на ступенчатую колонну с проходом в стенке колонны при отрыве более 55 т. Средний ряд. Узел 29
Опирание балок на ступенчатую колонну с проходом в стенке колонны при отрыве более 55 т. Крайний ряд. Узел 30
Опирание балок с двумя опорными ребрами на ступенчатую колонну с проходом в стенке колонны при отрыве более 55 т. Крайний ряд. Узел 31
Опирание балок с двумя опорными ребрами на ступенчатую колонну с проходом в стенке колонны при отрыве более 55 т. Средний ряд. Узел 32
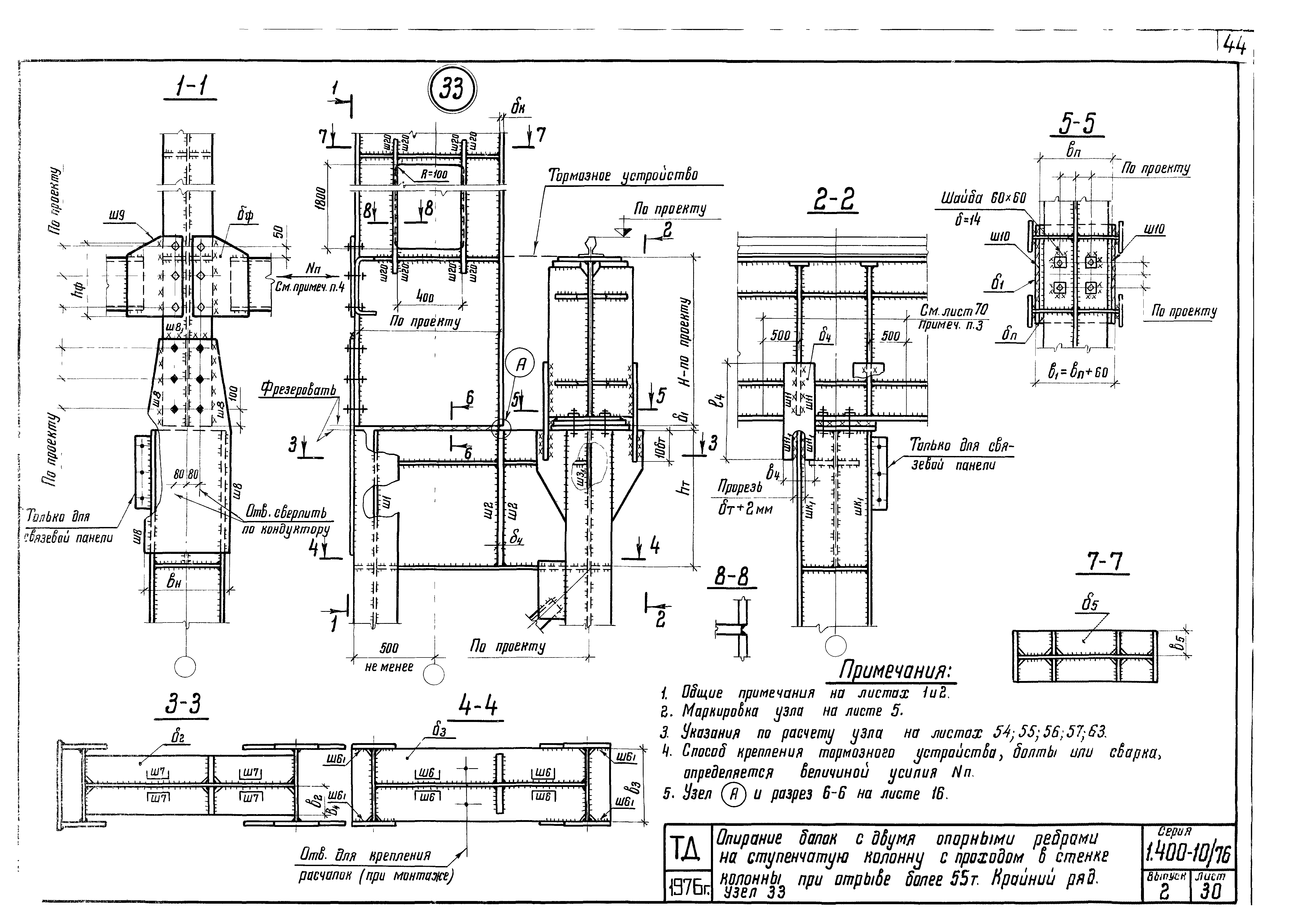
Опирание балок с двумя опорными ребрами на ступенчатую колонну с проходом в стенке колонны при отрыве более 55 т. Крайний ряд. Узел 33
V Узлы опирания подкрановых балок на колонны постоянного сечения
Опирание балок на колонну постоянного сечения. Крайний ряд. Узел 34
Опирание балок на колонну постоянного сечения. Средний ряд. Узел 35
Опирание балок на колонну постоянного сечения с проходом в стенке колонны. Средний ряд. Узел 36
VI Узлы опирания подкрановых балок на железобетонные колонны
Опирание балок на железобетонные колонны крайнего и среднего рядов. Узлы 37; 38
Опирание балок разной высоты на железобетонную колонну. Средний ряд. Узел 39
VII Промежуточные узлы подкрановых балок
Опирание балок разной высоты на ступенчатую колонну. Узел 40
Опирание балок разной высоты на ступенчатую колонну. Узел 41
Опирание балок разной высоты на ступенчатую колонну. Узел 42
VIII Промежуточные узлы ступенчатых колонн
Диафрагмы и одноплоскостная решетка стальных ступенчатых колонн. Узлы 43; 44
Диафрагмы и двухплоскостная решетка стальных ступенчатых колонн. Узлы 45; 46
Укрупнительные монтажные стыки ступенчатых колонн. Узлы 47; 48
Детали для крепления стеновых панелей. Узлы 49; 50; 51; 52
Детали для крепления стеновых панелей. Узлы 53; 54
IX Базы ступенчатых и сплошностенчатых колонн
Базы ступенчатых колонн крайнего ряда с ветвями из прокатных профилей с решеткой в одной плоскости. Узел 55
Базы ступенчатых колонн крайнего ряда с ветвями из прокатных профилей. Узел 56
Базы ступенчатых колонн крайнего ряда с ветвями из гнутых и прокатных профилей. Узел 57
Базы ступенчатых колонн крайнего ряда с ветвями из гнутых и составных профилей с уширенными полками. Узел 58
Базы ступенчатых колонн крайнего ряда с ветвями из сварных профилей. Узел 59
Базы ступенчатых колонн среднего ряда с ветвями из сварных профилей. Узел 60
Базы колонн постоянного сечения. Узел 61
Базы ступенчатых колонн в температурном шве. Узлы 62; 63; 64
Х Рекомендации по расчету узлов стальных колонн
Расчет монтажных стыков неразрезных подкрановых балок на высокопрочных болтах
Расчет упора
Расчет траверсы ступенчатой колонны крайнего ряда
Расчет траверсы и прохода в стенке ступенчатой колонны среднего ряда
Расчет ребер жесткости траверсы ступенчатой колонны
Расчет сварных швов траверсы колонны и накладки
Расчет элементов траверсы колонны постоянного сечения
Расчет сварных швов и элементов траверсы колонны постоянного сечения
Расчет подставки под неразрезные подкрановые балки разной высоты при опирании на металлические и железобетонные колонны
Расчет подставки под неразрезные подкрановые балки разной высоты при опирании на металлические колонны, устанавливаемые в связевой панели
Расчет подставки под неразрезные подкрановые балки разной высоты при опирании на железобетонные колонны, устанавливаемые в связевой панели
Расчет креплений неразрезных подкрановых балок в связевой панели на отрыв при опирании одним или двумя ребрами
Расчет опирания балок разной высоты на стальную колонну
Расчет баз ступенчатых колонн
Расчет баз колонн постоянного сечения
Расчет баз колонн постоянного сечения и анкерных плиток
Указания по изготовлению сварных подкрановых балок
Разработан: ЦНИИпроектстальконструкция
Утверждён:17.03.1977 Госстрой СССР (Государственный комитет Совета Министров СССР по делам строительства) (USSR Gosstroy 21)
Расположен в:Техническая документация Строительство Справочные документы Типовые строительные конструкции, изделия и узлы Общероссийский строительный каталог Строительные конструкции, изделия и узлы зданий и сооружений для всех видов строительства Конструкции, изделия и узлы зданий Несущие конструкции одноэтажных зданий Узлы и детали сопряжения железобетонных и стальных конструкций
Чем заменён:
Серия 1.400-10/76Серия 1.400-10/76Серия 1.400-10/76Серия 1.400-10/76Серия 1.400-10/76Серия 1.400-10/76Серия 1.400-10/76Серия 1.400-10/76Серия 1.400-10/76Серия 1.400-10/76Серия 1.400-10/76Серия 1.400-10/76Серия 1.400-10/76Серия 1.400-10/76Серия 1.400-10/76Серия 1.400-10/76Серия 1.400-10/76Серия 1.400-10/76Серия 1.400-10/76Серия 1.400-10/76Серия 1.400-10/76Серия 1.400-10/76Серия 1.400-10/76Серия 1.400-10/76Серия 1.400-10/76Серия 1.400-10/76Серия 1.400-10/76Серия 1.400-10/76Серия 1.400-10/76Серия 1.400-10/76Серия 1.400-10/76Серия 1.400-10/76Серия 1.400-10/76Серия 1.400-10/76Серия 1.400-10/76Серия 1.400-10/76Серия 1.400-10/76Серия 1.400-10/76Серия 1.400-10/76Серия 1.400-10/76Серия 1.400-10/76Серия 1.400-10/76Серия 1.400-10/76Серия 1.400-10/76Серия 1.400-10/76Серия 1.400-10/76Серия 1.400-10/76Серия 1.400-10/76Серия 1.400-10/76Серия 1.400-10/76Серия 1.400-10/76Серия 1.400-10/76Серия 1.400-10/76Серия 1.400-10/76Серия 1.400-10/76Серия 1.400-10/76Серия 1.400-10/76Серия 1.400-10/76Серия 1.400-10/76Серия 1.400-10/76Серия 1.400-10/76Серия 1.400-10/76Серия 1.400-10/76Серия 1.400-10/76Серия 1.400-10/76Серия 1.400-10/76Серия 1.400-10/76Серия 1.400-10/76Серия 1.400-10/76Серия 1.400-10/76Серия 1.400-10/76Серия 1.400-10/76Серия 1.400-10/76Серия 1.400-10/76Серия 1.400-10/76Серия 1.400-10/76Серия 1.400-10/76Серия 1.400-10/76Серия 1.400-10/76Серия 1.400-10/76Серия 1.400-10/76Серия 1.400-10/76Серия 1.400-10/76Серия 1.400-10/76

© 2013 Ёшкин Кот :-) Карта сайта