Информационная система
«Ёшкин Кот»

Скачать базу одним архивом
Скачать обновления
История создания базы
Карта сайта

Скачать Типовой проект 801-2-87.13.87 Альбом IV. Строительные изделия

Дата актуализации: 10.08.2017

Типовой проект 801-2-87.13.87

Альбом IV. Строительные изделия

Обозначение: Типовой проект 801-2-87.13.87
Обозначение англ: 801-2-87.13.87
Статус:не определен законодательством
Название рус.:Альбом IV. Строительные изделия
Дата добавления в базу:01.09.2013
Дата актуализации:05.05.2017
Дата введения:18.05.1987
Оглавление:ТУ Технические условия
АР.И1 Рамка металлическая РМ-1
АР.И2 Рамка металлическая РМ-2
АР.И3 Рамка металлическая РМ-3
АР.И4 Сетка С-1
АР.И5 Изделие закладное МД2
АР.И6 Изделие закладное МД1
АР.И7 Перемычка 7ПГ35-23а, 5ПГ35-17а
КЖ.И1 Полурама РПС21-4; 6-Па; РПС18-4; 6-Па; РПС21-4; 6-Пб; РПС18-4; 6Пб
КЖ.И2 Колонна 1К57.3-2Па; б; 1К51.3-3.1Па; б
КЖ.И3 Плита покрытия 1ПГ-2(3) АIVт-Па; 1ПГ-3(3) АIVт-Пб; 2ПГ-3(4) АIVт-Па; 1ПВ10-3(4) АIVт-Па; 1ПВ7-3(4) АIVт-Па; 1ПВ4-3(4) АIVт-Па; 1ПВ4-3(4) АIVт-Пб; 2ПВ7-4(4) АIVт-Па
КЖ.И3 сб Плита покрытия 1ПГ-2(3) АIVт-Па; 1ПГ-3(3) АIVт-Пб; 2ПГ-3(4) АIVт-Па; 1ПВ10-3(4) АIVт-Па; 1ПВ7-3(4) АIVт-Па; 1ПВ4-3(4) АIVт-Па; 1ПВ4-3(4) АIVт-Пб; 2ПВ7-4(4) АIVт-Па
КЖ.И4 Стеновая панель ПСТБ.12.25-Тма; ПСТ3.12.25-Тма
КЖ.И5 Опорная подушка ОП-5а
КЖ.И6 сб Стойка фахверка СФ1. Сборочный чертеж
КЖ.И6 Стойка фахверка СФ1
КЖ.И7 Изделие соединительное МС-5
КЖ.И8 Насадка НС-1
КЖ.И9 Изделие закладное ЗД-1
КЖ.И10 Изделие закладное ЗД-3
КЖ.И11 Насадка НС-8
КЖ.И12 Изделие закладное ЗД-2
КЖ.И13 Подвеска МС-8; МС-9
КЖ.И14 Металлическая решетка МР1
КЖ.И15 Щит Щ-3
КЖ.И16 Щит Щ-1
КЖ.И17 Щит Щ-2; Щ-4
КЖ.И18 ЩО-1
КЖ.И19 Панель длиной 1,2 м, высотой 1,2 м простеночная ПСТ 12.12.25-ТМ. Сборочный чертеж
КЖ.И20 Каркас пространственный КП-1
КЖ.И21 Сетка С-1. Сборочный чертеж
КЖ.И22 Каркас плоский КР-1. Сборочный чертеж
КЖ.И23 Петля монтажная М10-2
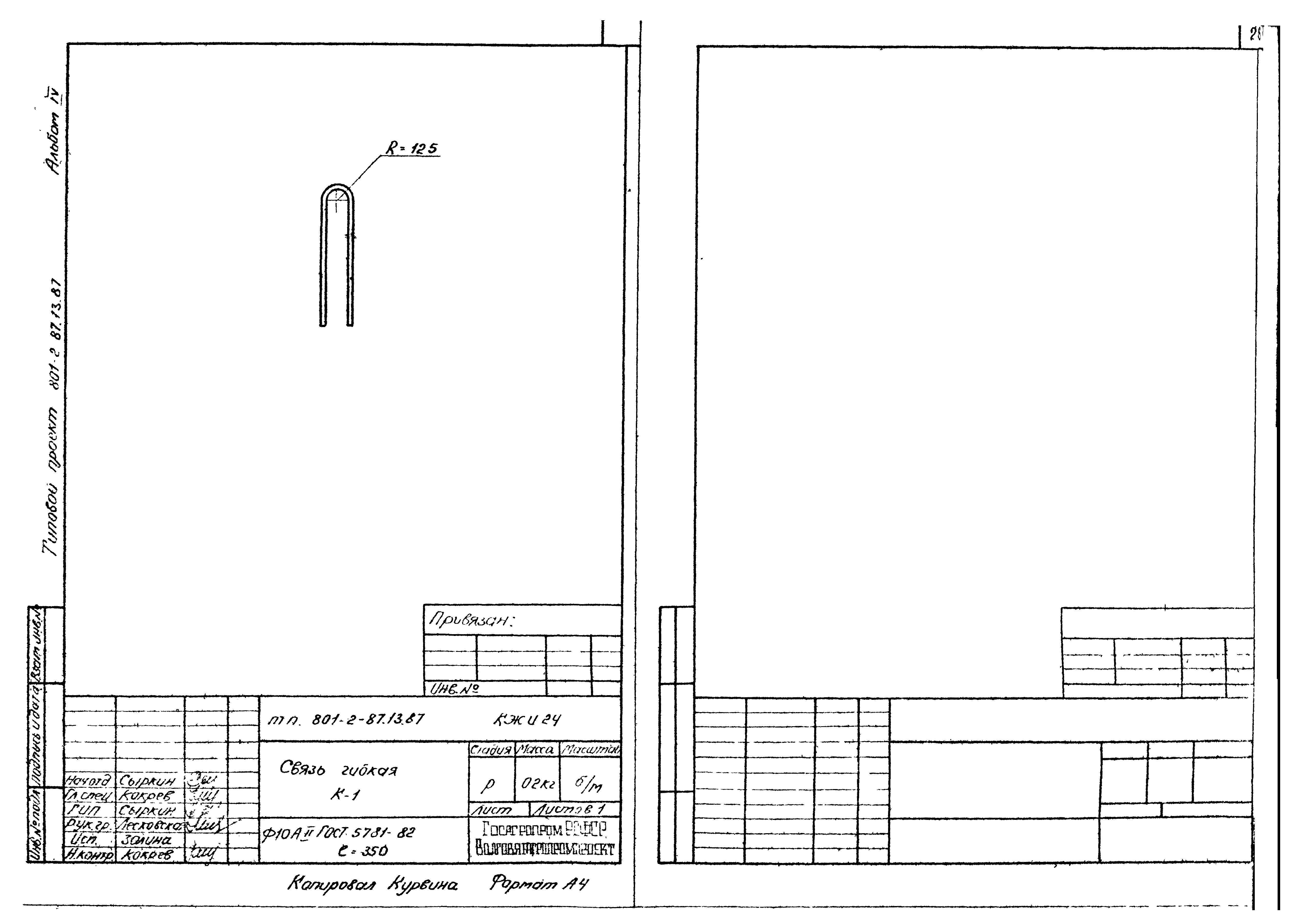
КЖ.И24 Связь гибкая К-1
КЖ.И25 Панель длиной 0,6м, высотой 1,2 м простеночная ПСТ 0,6.12.25-ТМ. Сборочный чертеж
КЖ.И26 Каркас пространственный КП-2. Сборочный чертеж
КЖ.И27 Сетка С-2. Сборочный чертеж
КЖ.И28 Каркас плоский. Сборочный чертеж
КМ.И1 сб Балка металлическая (Б-1; Б-1а; Б-2). Сборочный чертеж
КМ.И1 Балка металлическая Б-1; Б-1а; Б-2
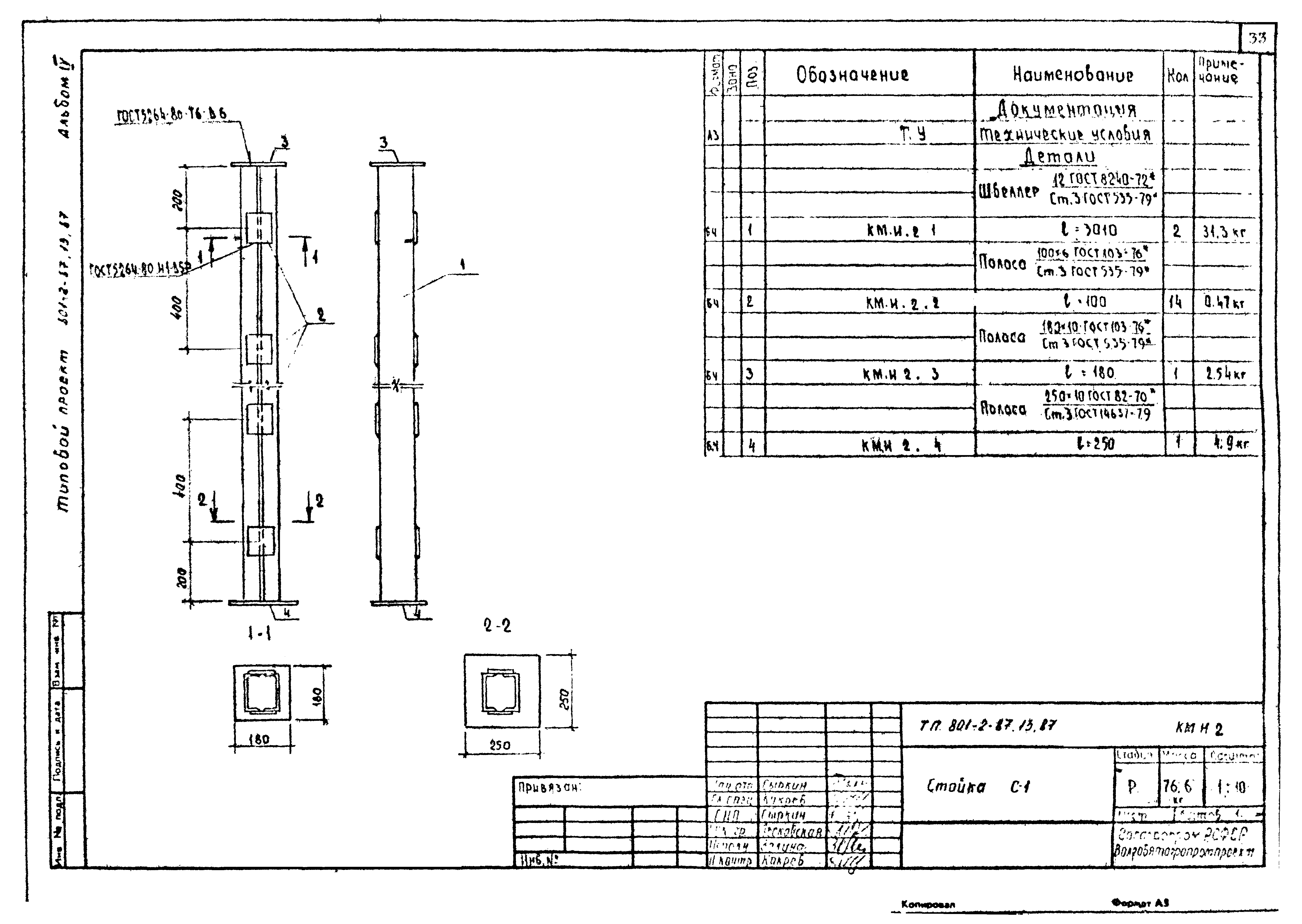
КМ.И2 Стойка С1
КМ.И3 сб Калитка (К-1; К-2; К-3). Сборочный чертеж
КМ.И3 Калитка К-1; К-2; К-3
КМ.И4 Рама РМ-1
КМ.И5 сб Рама (РМ-2; РМ-3). Сборочный чертеж
КМ.И5 Рама РМ-2; РМ-3
КМ.И6 Стойка СМ-1
КМ.И7 сб Панель ограждения (ОГ-1; ОГ-2; ОГ-3). Сборочный чертеж
КМ.И7 Панель ограждения ОГ-1; ОГ-2; ОГ-3
ТХ.И1 Воронка
ОВН1 Конструкция изоляций трубопровода диметром 20-40
ОВН2 Общий вид полиэтиленового воздуховода и узлы
ОВН2 Узлы крепления воздуховода полиэтиленовой пленки диаметром 315 (окончание)
ОВН2 Детали воздуховода из полиэтиленовой пленки (начало)
ОВН2 Детали воздуховода из полиэтиленовой пленки (окончание)
ВК.И1 Поилка
ВК.И2 Поилка
ВК.И3 Бак для воды
ВК.И4 Бак для воды
ВК.И5 Поилка. Сборочный чертеж
ВК.И6 Поилка
Разработан: ВИЭСХ
Институт Волговятагропромпроект
Утверждён:18.05.1987 Госагропром РСФСР (Russian Federation Gosagroprom 41-В)
Расположен в:Техническая документация Строительство Справочные документы Типовые строительные конструкции, изделия и узлы Общероссийский строительный каталог Сельскохозяйственные предприятия, здания и сооружения Предприятия, здания и сооружения для крупного рогатого скота Здания и сооружения Производство молока и выращивание нетелей Коровники
Типовой проект 801-2-87.13.87Типовой проект 801-2-87.13.87Типовой проект 801-2-87.13.87Типовой проект 801-2-87.13.87Типовой проект 801-2-87.13.87Типовой проект 801-2-87.13.87Типовой проект 801-2-87.13.87Типовой проект 801-2-87.13.87Типовой проект 801-2-87.13.87Типовой проект 801-2-87.13.87Типовой проект 801-2-87.13.87Типовой проект 801-2-87.13.87Типовой проект 801-2-87.13.87Типовой проект 801-2-87.13.87Типовой проект 801-2-87.13.87Типовой проект 801-2-87.13.87Типовой проект 801-2-87.13.87Типовой проект 801-2-87.13.87Типовой проект 801-2-87.13.87Типовой проект 801-2-87.13.87Типовой проект 801-2-87.13.87Типовой проект 801-2-87.13.87Типовой проект 801-2-87.13.87Типовой проект 801-2-87.13.87Типовой проект 801-2-87.13.87Типовой проект 801-2-87.13.87Типовой проект 801-2-87.13.87Типовой проект 801-2-87.13.87Типовой проект 801-2-87.13.87Типовой проект 801-2-87.13.87Типовой проект 801-2-87.13.87Типовой проект 801-2-87.13.87Типовой проект 801-2-87.13.87Типовой проект 801-2-87.13.87Типовой проект 801-2-87.13.87Типовой проект 801-2-87.13.87Типовой проект 801-2-87.13.87Типовой проект 801-2-87.13.87Типовой проект 801-2-87.13.87Типовой проект 801-2-87.13.87Типовой проект 801-2-87.13.87Типовой проект 801-2-87.13.87Типовой проект 801-2-87.13.87Типовой проект 801-2-87.13.87Типовой проект 801-2-87.13.87Типовой проект 801-2-87.13.87Типовой проект 801-2-87.13.87

© 2013 Ёшкин Кот :-) Карта сайта