Информационная система
«Ёшкин Кот»

Скачать базу одним архивом
Скачать обновления
История создания базы
Карта сайта

Скачать Серия 3.903-13 Опорные конструкции под водоподогреватели. Рабочие чертежи

Дата актуализации: 10.08.2017

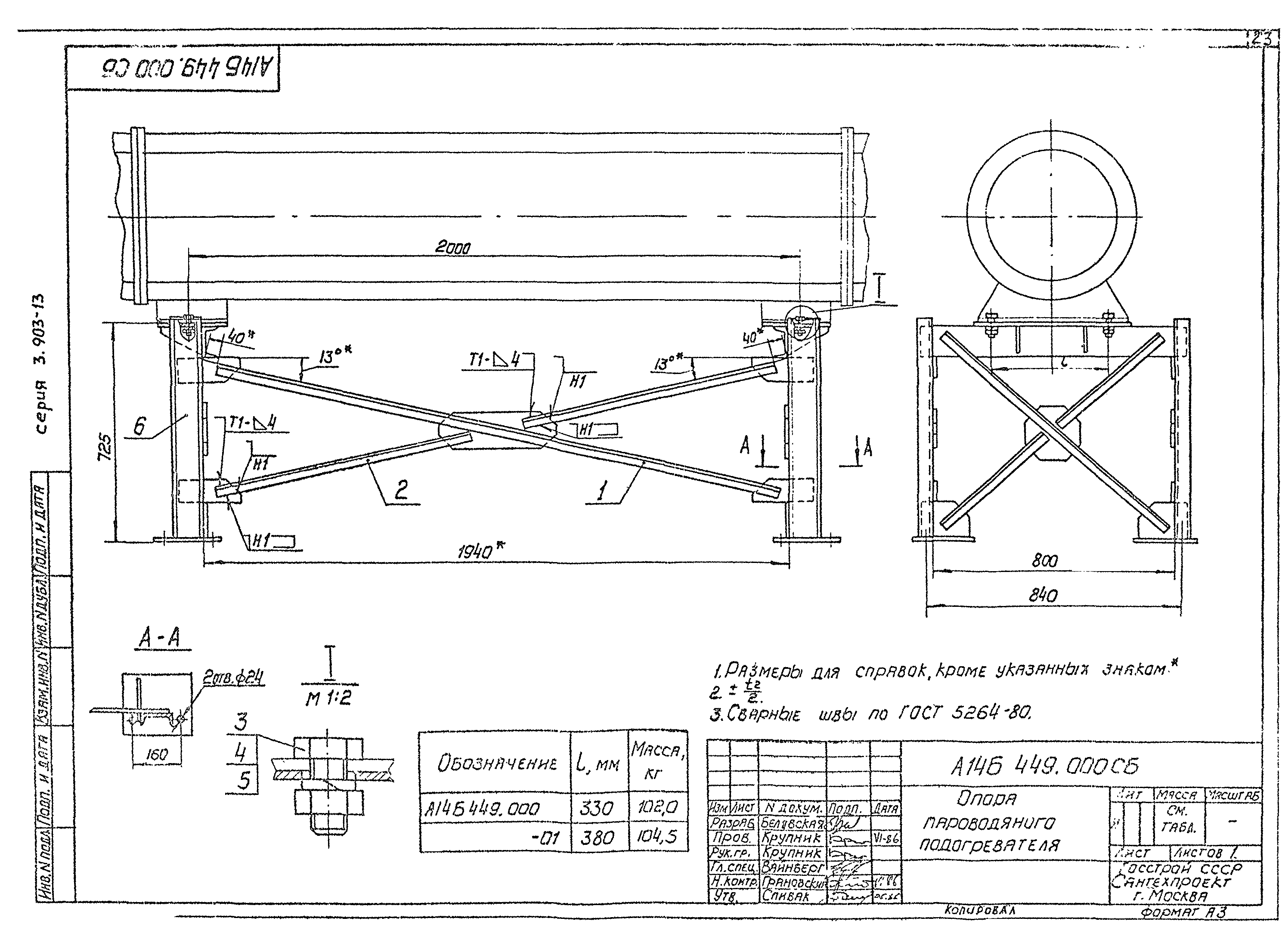
Серия 3.903-13

Опорные конструкции под водоподогреватели. Рабочие чертежи

Обозначение: Серия 3.903-13
Обозначение англ: Series 3.903-13
Статус:не определен законодательством
Название рус.:Опорные конструкции под водоподогреватели. Рабочие чертежи
Дата добавления в базу:01.09.2013
Дата актуализации:05.05.2017
Дата введения:01.10.1986
Область применения:В рабочих чертежах серии 3.903-13 приведены опорные конструкции для крепления водоподогревателей, предназначенных для систем отопления и горячего водоснабжения
Разработан: Сантехниипроект Госстроя России
Утверждён:31.07.1986 Главпроект Госстроя СССР (46)
Расположен в:Техническая документация Строительство Справочные документы Типовые строительные конструкции, изделия и узлы Общероссийский строительный каталог Строительные конструкции, изделия и узлы зданий и сооружений для всех видов строительства Инженерное оборудование Инженерное оборудование; изделия и узлы инженерного оборудования зданий и сооружений Теплоснабжение Водоподогреватели, баки, воздухосборники
Серия 3.903-13Серия 3.903-13Серия 3.903-13Серия 3.903-13Серия 3.903-13Серия 3.903-13Серия 3.903-13Серия 3.903-13Серия 3.903-13Серия 3.903-13Серия 3.903-13Серия 3.903-13Серия 3.903-13Серия 3.903-13Серия 3.903-13Серия 3.903-13Серия 3.903-13Серия 3.903-13Серия 3.903-13Серия 3.903-13Серия 3.903-13Серия 3.903-13Серия 3.903-13Серия 3.903-13Серия 3.903-13Серия 3.903-13Серия 3.903-13Серия 3.903-13Серия 3.903-13Серия 3.903-13Серия 3.903-13Серия 3.903-13Серия 3.903-13Серия 3.903-13Серия 3.903-13Серия 3.903-13Серия 3.903-13Серия 3.903-13Серия 3.903-13Серия 3.903-13Серия 3.903-13Серия 3.903-13Серия 3.903-13Серия 3.903-13Серия 3.903-13Серия 3.903-13Серия 3.903-13Серия 3.903-13Серия 3.903-13Серия 3.903-13Серия 3.903-13Серия 3.903-13Серия 3.903-13Серия 3.903-13Серия 3.903-13Серия 3.903-13Серия 3.903-13Серия 3.903-13Серия 3.903-13Серия 3.903-13Серия 3.903-13Серия 3.903-13Серия 3.903-13Серия 3.903-13Серия 3.903-13Серия 3.903-13Серия 3.903-13Серия 3.903-13Серия 3.903-13Серия 3.903-13Серия 3.903-13Серия 3.903-13Серия 3.903-13Серия 3.903-13Серия 3.903-13Серия 3.903-13Серия 3.903-13Серия 3.903-13Серия 3.903-13Серия 3.903-13Серия 3.903-13Серия 3.903-13Серия 3.903-13Серия 3.903-13Серия 3.903-13Серия 3.903-13Серия 3.903-13Серия 3.903-13Серия 3.903-13Серия 3.903-13Серия 3.903-13Серия 3.903-13Серия 3.903-13Серия 3.903-13Серия 3.903-13Серия 3.903-13Серия 3.903-13Серия 3.903-13Серия 3.903-13Серия 3.903-13Серия 3.903-13Серия 3.903-13Серия 3.903-13Серия 3.903-13Серия 3.903-13Серия 3.903-13Серия 3.903-13Серия 3.903-13Серия 3.903-13Серия 3.903-13

© 2013 Ёшкин Кот :-) Карта сайта