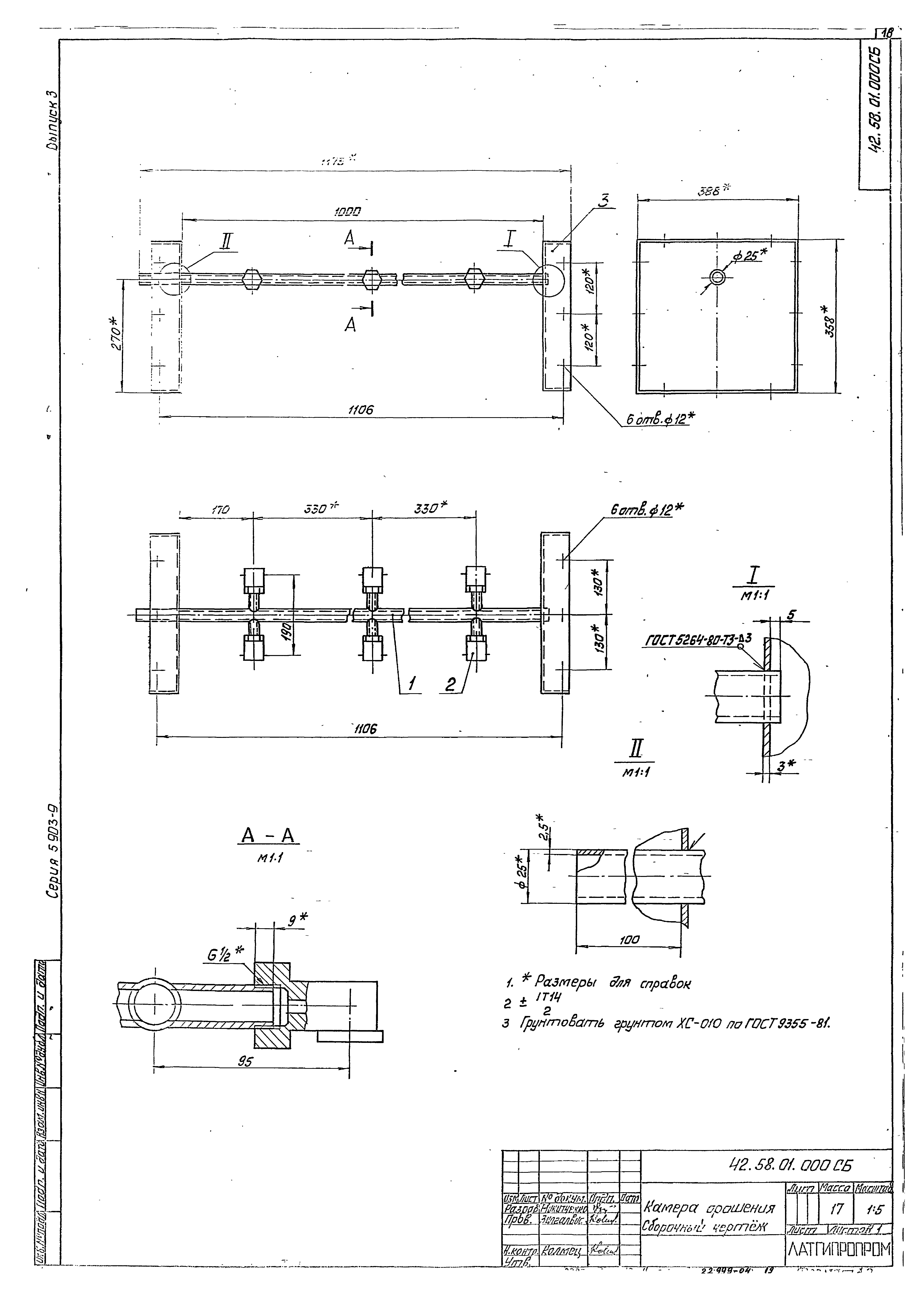
Скачать Серия 5.903-9 Выпуск 3. Теплообменники контактные КТАН-0,25УГ. Рабочие чертежиДата актуализации: 10.08.2017 Серия 5.903-9
Выпуск 3. Теплообменники контактные КТАН-0,25УГ. Рабочие чертежиОбозначение: | Серия 5.903-9 | Обозначение англ: | Series 5.903-9 | Статус: | не определен законодательством | Название рус.: | Выпуск 3. Теплообменники контактные КТАН-0,25УГ. Рабочие чертежи | Дата добавления в базу: | 01.09.2013 | Дата актуализации: | 05.05.2017 | Дата введения: | 15.04.1988 | Разработан: | Латгипропром
| Утверждён: | 22.01.1988 Госстрой Латвийской ССР (11)
| Расположен в: |
|
                              
|