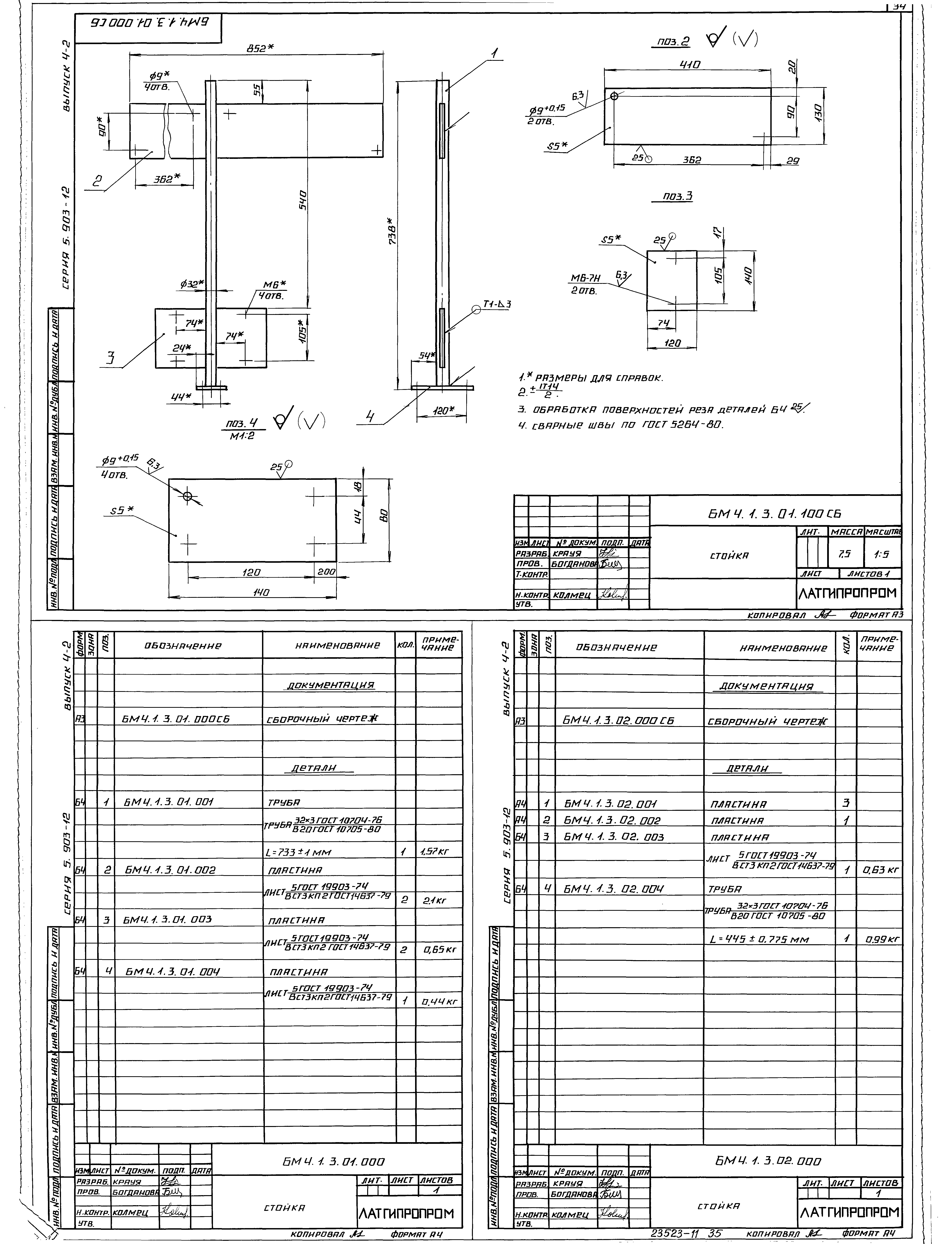
Скачать Серия 5.903-12 Выпуск 4-2. Блок жидких присадок БЖП-2х0,4-16,0. Рабочие чертежиДата актуализации: 10.08.2017 Серия 5.903-12
Выпуск 4-2. Блок жидких присадок БЖП-2х0,4-16,0. Рабочие чертежиОбозначение: | Серия 5.903-12 | Обозначение англ: | Series 5.903-12 | Статус: | не определен законодательством | Название рус.: | Выпуск 4-2. Блок жидких присадок БЖП-2х0,4-16,0. Рабочие чертежи | Дата добавления в базу: | 01.09.2013 | Дата актуализации: | 05.05.2017 | Дата введения: | 01.07.1989 | Разработан: | Латгипропром
| Утверждён: | 16.06.1989 ММСС СССР
| Расположен в: |
|
                                    
|