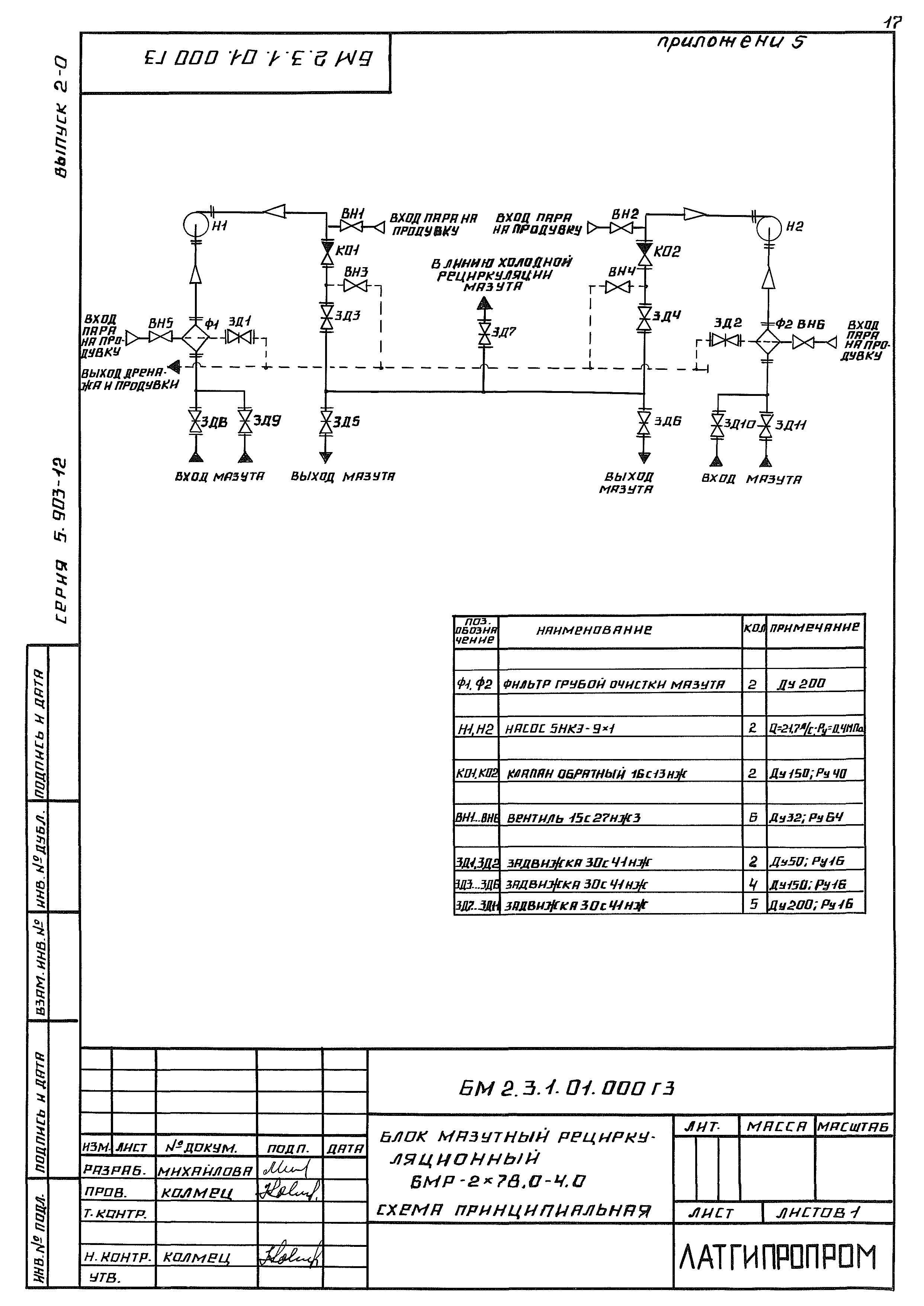
Скачать Серия 5.903-12 Выпуск 2-0. Блоки мазутные рециркуляционные. Указания по применению и изготовлениюДата актуализации: 10.08.2017 Серия 5.903-12
Выпуск 2-0. Блоки мазутные рециркуляционные. Указания по применению и изготовлениюОбозначение: | Серия 5.903-12 | Обозначение англ: | Series 5.903-12 | Статус: | не определен законодательством | Название рус.: | Выпуск 2-0. Блоки мазутные рециркуляционные. Указания по применению и изготовлению | Дата добавления в базу: | 01.09.2013 | Дата актуализации: | 05.05.2017 | Дата введения: | 01.04.1989 | Разработан: | Латгипропром
| Утверждён: | 22.02.1989 ММСС СССР
| Расположен в: |
|
                  
|