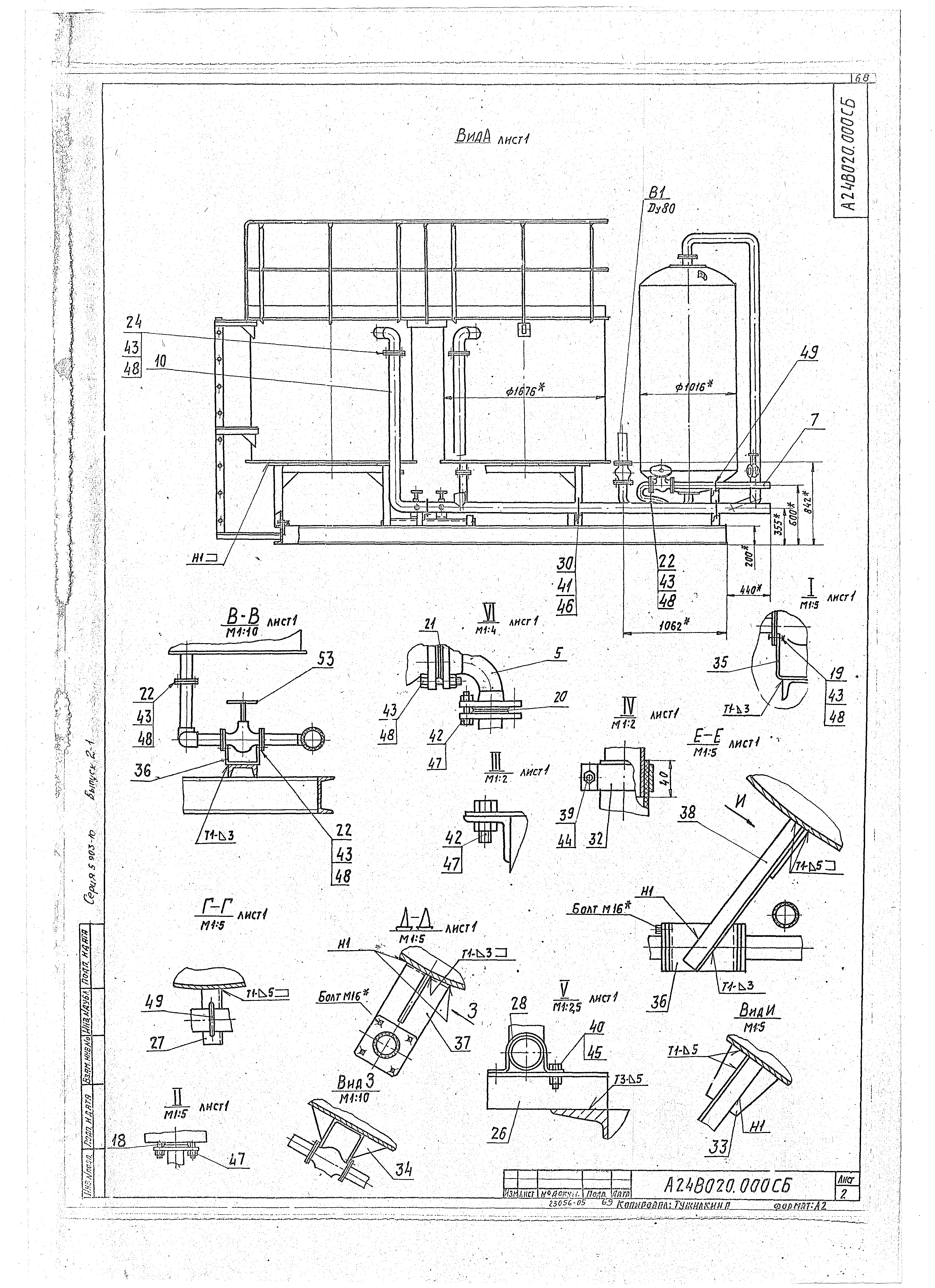
Скачать Серия 5.903-10 Выпуск 2-1. Блоки регенерации натрий-катионитных фильтров. Рабочие чертежиДата актуализации: 10.08.2017 Серия 5.903-10
Выпуск 2-1. Блоки регенерации натрий-катионитных фильтров. Рабочие чертежиОбозначение: | Серия 5.903-10 | Обозначение англ: | Series 5.903-10 | Статус: | не определен законодательством | Название рус.: | Выпуск 2-1. Блоки регенерации натрий-катионитных фильтров. Рабочие чертежи | Дата добавления в базу: | 01.09.2013 | Дата актуализации: | 05.05.2017 | Дата введения: | 01.09.1988 | Разработан: | Сантехниипроект Госстроя России
| Утверждён: | 10.12.1987 ММСС СССР
| Издан: | ЦИТП Госстроя СССР (CITP, Gosstroy (USSR) 1989 г. )
| Расположен в: |
|
                                                                       
|